Astegiudiziarie.it è parte di Rete Aste Network

Accedi o registrati

Non sei ancora registrato?

Oppure

Accedi

Abitazione di tipo economico

Via Oleandri, 2, 24040 Verdellino BG, Italia, Verdellino (BG)

€ 59.947,00

Offerta minima € 44.960,25


Codice A4339260

Lotto Lotto unico

Data udienza 15/01/2026 ore 15:30

Termine presentazione offerte 14/01/2026 ore 12:00

Abitazione di tipo economico

Via Oleandri, 2, 24040 Verdellino BG, Italia, Verdellino (BG)

€ 59.947,00

Offerta minima € 44.960,25


Codice A4339260

Lotto Lotto unico

Data udienza 15/01/2026 ore 15:30

Termine presentazione offerte 14/01/2026 ore 12:00

Ti interessa questa vendita?

Documentazione

Visualizza su mappa

Mappa geografica del bene

Punti di interesse

Fonte dati

Nel raggio di {{range}}Km

Loading...
  • {{ getIcon(poi.type) }} {{ poi.localized }}: {{poi.count}}
  • {{ getIcon(poi.type) }} {{ poi.localized }}: {{poi.count}}
Dati non disponibili

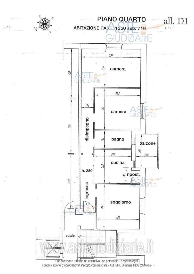
Abitazione al piano quarto ed autorimessa al piano terra, parti di un edificio residenziale di cinque piani fuori terra ultimato nell'anno 1973 e oggetto di rifacimento e coibentazione facciate nell'anno 2023. L'abitazione al quarto piano è così composta: vano ingresso, soggiorno, cucina con piccolo ripostiglio, n.2 camere, bagno, disimpegno notte e balcone. La superficie complessiva è di circa mq 131,00.L'autorimessa al piano terra è ampia e adeguata al ricovero di un'autovettura di grandi dimensioni.

Indirizzo
Via Oleandri, 2, 24040 Verdellino BG, Italia, Verdellino (BG)


Codice asta
4339260


Lotto
Lotto unico


Numero beni
1


Genere
Immobili


Categoria
Immobile residenziale


Valore di stima
-


Abitazione di tipo economico

Abitazione al piano quarto e autorimessa al piano terra, parti di un edificio residenziale di cinque piani fuori terraultimato nell'anno 1973 e oggetto di rifacimento e coibentazione facciate nell'anno 2023.L'edificio è sito in Comune di Verdellino località Zingonia con accesso da Via Oleandri n.2, è postoin zona residenziale contraddistinta da condomini di grandi dimensioni e attività commerciali.L'abitazione al quarto piano è così composta: vano ingresso, soggiorno, cucina con piccoloripostiglio, n.2 camere, bagno, disimpegno notte e balcone. La superficie complessiva è di circa mq131,00.L'autorimessa al piano terra è ampia e adeguata al ricovero di un'autovettura di grandi dimensioni.Identificazione

Indirizzo
Via Oleandri, 2, 24040 Verdellino BG, Italia, Verdellino (BG)


Piano
-


Disponibilità
INCOR


Vani
-


Bagni
-


Metri quadri
-


Certificazione energetica
-


Data udienza
15/01/2026 ore 15:30


Tipo di vendita
Senza incanto


Modalità di vendita
Asincrona telematica


Luogo
N.A. -


Luogo presentazione offerte
-


Termine presentazione offerte
14/01/2026 ore 12:00


Prezzo base
€ 59.947,00


Offerta minima
€ 44.960,25


Rialzo minimo in caso di gara
€ 2.000,00


Deposito cauzionale
10% del prezzo offerto


Deposito in conto spese
-


Tribunale
Bergamo

Tipo di procedura
Espropriazione immobiliare (cartabia)

Ruolo
52/2025

Giudice
Scibetta Vincenzo domenico

Recapiti
-

Email
-

Delegato alla vendita
Sodo Filippo
(Procede alle operazioni di vendita)

Recapiti
Tel. 035221575

Email
procedure@studiosodo.eu

Custode giudiziario
V.g.c. s.r.l. 
(Gestisce la visita del bene)

Recapiti
Tel. 0350763005

Scheda COD. 4339260 - Pubblicata dal 12/11/2025

La presente scheda di vendita riporta integralmente informazioni e documenti pervenuti ufficialmente dal Ministero e dal professionista incaricato.


Pubblicazione autorizzata dall’Autorità competente, è vietata ogni ripubblicazione o riproduzione anche parziale


Ti interessa questa vendita?

Documentazione

Visualizza su mappa

Mappa geografica del bene

Punti di interesse

Fonte dati

Nel raggio di {{range}}Km

Loading...
  • {{ getIcon(poi.type) }} {{ poi.localized }}: {{poi.count}}
  • {{ getIcon(poi.type) }} {{ poi.localized }}: {{poi.count}}
Dati non disponibili