Astegiudiziarie.it è parte di Rete Aste Network

Accedi o registrati

Non sei ancora registrato?

Oppure

Accedi

Appartamento

Via XX Settembre, 71, Verbania (VB)

€ 320.000,00

Offerta minima € 240.000,00


Codice A421981

Lotto Lotto unico

Data udienza 23/06/2026 ore 10:00

Termine presentazione offerte 22/06/2026 ore 12:00

Appartamento

Via XX Settembre, 71, Verbania (VB)

€ 320.000,00

Offerta minima € 240.000,00


Codice A421981

Lotto Lotto unico

Data udienza 23/06/2026 ore 10:00

Termine presentazione offerte 22/06/2026 ore 12:00

Ti interessa questa vendita?

Documentazione

Visualizza su mappa

Mappa geografica del bene

Punti di interesse

Fonte dati

Nel raggio di {{range}}Km

Loading...
  • {{ getIcon(poi.type) }} {{ poi.localized }}: {{poi.count}}
  • {{ getIcon(poi.type) }} {{ poi.localized }}: {{poi.count}}
Dati non disponibili

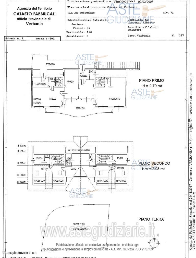
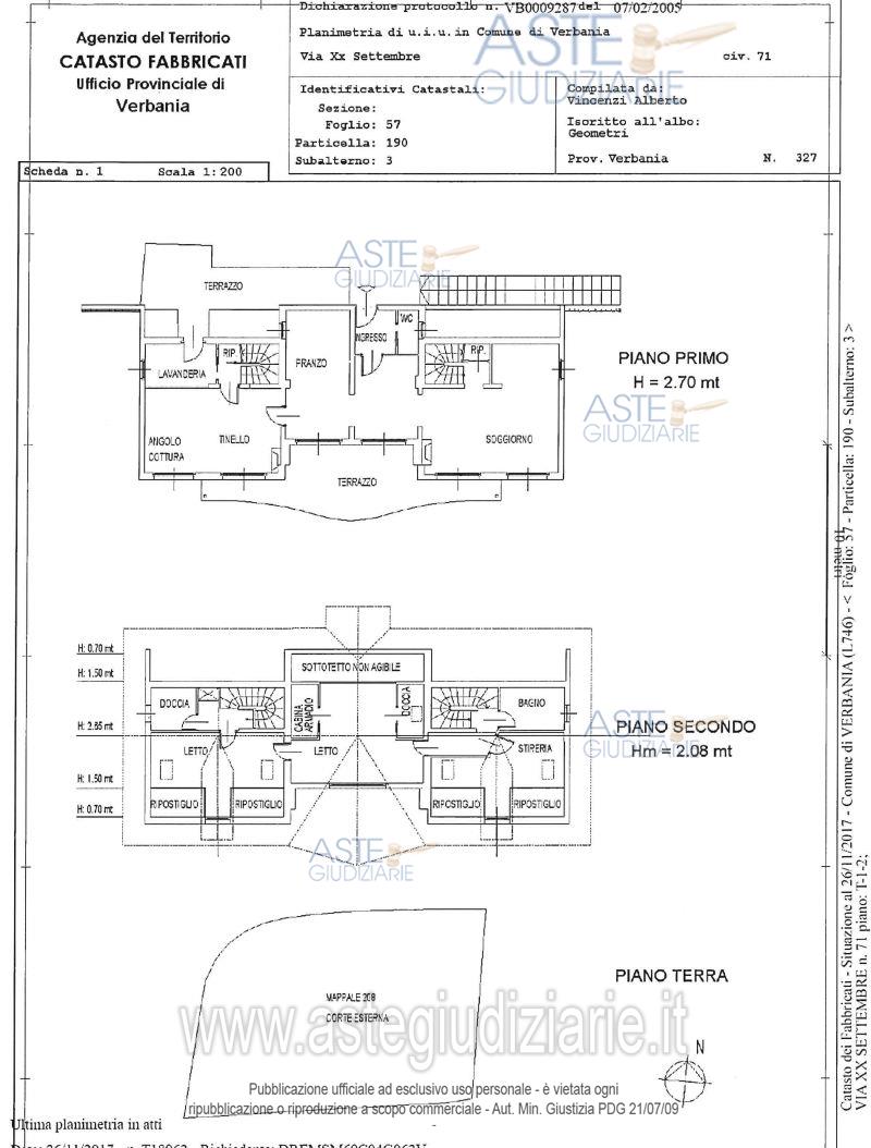
Piena proprietà di appartamento su due piani (primo e secondo) con annessa pertinenziale porzione di terreno. Posto auto scoperto.

Indirizzo
Via XX Settembre, 71, Verbania (VB)


Codice asta
421981


Lotto
Lotto unico


Numero beni
1


Genere
Immobili


Categoria
Immobile residenziale


Valore di stima
-


Appartamento

Appartamento su due piani (primo e secondo) con annessa pertinenziale porzione di terreno e posto auto scoperto.

Indirizzo
Via XX Settembre, 71, Verbania (VB)


Piano
-


Disponibilità
-


Vani
12,50


Bagni
2


Metri quadri
261,90


Certificazione energetica
-


Data udienza
23/06/2026 ore 10:00


Tipo di vendita
Senza incanto


Modalità di vendita
Asincrona telematica


Luogo
N.A. -


Luogo presentazione offerte
-


Termine presentazione offerte
22/06/2026 ore 12:00


Prezzo base
€ 320.000,00


Offerta minima
€ 240.000,00


Rialzo minimo in caso di gara
€ 10.000,00


Deposito cauzionale
50.000,00


Deposito in conto spese
-


Tribunale
Verbania

Tipo di procedura
Esecuzione immobiliare post legge 80

Ruolo
111/2017

Giudice
Sinico Caterina
(Procede alle operazioni di vendita)

Recapiti
-

Email
-

Custode giudiziario
Aste giudiziarie inlinea spa 
(Gestisce la visita del bene)

Recapiti
-

Scheda COD. 421981 - Pubblicata dal 17/04/2026

La presente scheda di vendita riporta integralmente informazioni e documenti pervenuti ufficialmente dal Ministero e dal professionista incaricato.

Pubblicazione notarizzata su Blockchain


Pubblicazione autorizzata dall’Autorità competente, è vietata ogni ripubblicazione o riproduzione anche parziale


Ti interessa questa vendita?

Documentazione

Visualizza su mappa

Mappa geografica del bene

Storico delle vendite

Data venditaPrezzo base
09/05/2018€ 320.000,00
12/11/2019€ 320.000,00
14/12/2021€ 320.000,00
20/12/2022€ 320.000,00
04/06/2024€ 320.000,00
17/06/2025€ 320.000,00
23/06/2026€ 320.000,00

Punti di interesse

Fonte dati

Nel raggio di {{range}}Km

Loading...
  • {{ getIcon(poi.type) }} {{ poi.localized }}: {{poi.count}}
  • {{ getIcon(poi.type) }} {{ poi.localized }}: {{poi.count}}
Dati non disponibili