Astegiudiziarie.it è parte di Rete Aste Network

Accedi o registrati

Non sei ancora registrato?

Oppure

Accedi

Abitazione di tipo popolare

Frazione Crosa, 6, 13847 Vallanzengo BI, Italia, Vallanzengo (BI)

€ 36.750,00

Offerta minima € 27.562,50


Codice A4331497

Lotto Lotto unico

Data udienza 27/01/2026 ore 16:15

Termine presentazione offerte 26/01/2026 ore 13:00

Abitazione di tipo popolare

Frazione Crosa, 6, 13847 Vallanzengo BI, Italia, Vallanzengo (BI)

€ 36.750,00

Offerta minima € 27.562,50


Codice A4331497

Lotto Lotto unico

Data udienza 27/01/2026 ore 16:15

Termine presentazione offerte 26/01/2026 ore 13:00

Ti interessa questa vendita?

Documentazione

Visualizza su mappa

Mappa geografica del bene

Punti di interesse

Fonte dati

Nel raggio di {{range}}Km

Loading...
  • {{ getIcon(poi.type) }} {{ poi.localized }}: {{poi.count}}
  • {{ getIcon(poi.type) }} {{ poi.localized }}: {{poi.count}}
Dati non disponibili

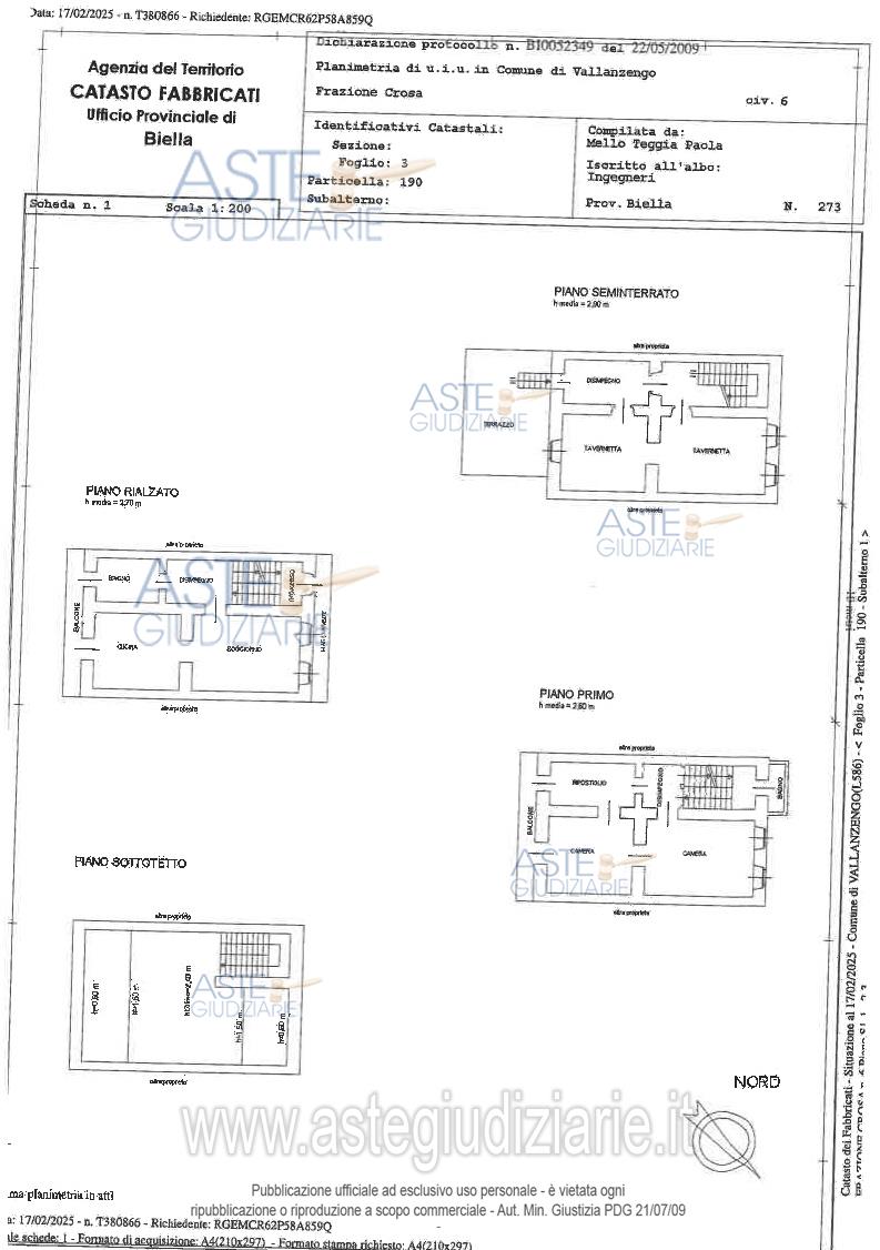
Fabbricato di civile abitazione elevato a due piani fuori terra oltre al piano seminterrato ed al piano sottotetto

Indirizzo
Frazione Crosa, 6, 13847 Vallanzengo BI, Italia, Vallanzengo (BI)


Codice asta
4331497


Lotto
Lotto unico


Numero beni
1


Genere
Immobili


Categoria
Immobile residenziale


Valore di stima
-


Abitazione di tipo popolare

Fabbricato di civile abitazione elevato a due piani fuori terra oltre al piano seminterrato ed al piano sottotetto, entrostante all’area distinta in mappa al Catasto dei Terreni al foglio 6, particella n. 190 (ente urbano di are 0,91, coerenti: strada comunale e particelle 387 e 191 dello stesso foglio di mappa), così composto: - nel piano seminterrato: vano scala, due tavernette, disimpegno e terrazzo;- nel piano terreno/rialzato: ingresso-vano scala, disimpegno, soggiorno, cucina, bagno e due balconi;- nel piano primo: vano scala, due camere, ripostiglio, bagno e balcone;- nel piano sottotetto: vano scala e soffitta.

Indirizzo
Frazione Crosa, 6, 13847 Vallanzengo BI, Italia, Vallanzengo (BI)


Piano
s1 1 2 3


Disponibilità
OCCUPATO


Vani
10,00


Bagni
-


Metri quadri
237,00


Certificazione energetica
-


Dati catastali

Foglio:3, Particella:190, Subalterno:1


Data udienza
27/01/2026 ore 16:15


Tipo di vendita
Senza incanto


Modalità di vendita
Asincrona telematica


Luogo
-


Luogo presentazione offerte
-


Termine presentazione offerte
26/01/2026 ore 13:00


Prezzo base
€ 36.750,00


Offerta minima
€ 27.562,50


Rialzo minimo in caso di gara
€ 1.000,00


Deposito cauzionale
10% del prezzo offerto


Deposito in conto spese
-


Tribunale
Biella

Tipo di procedura
Espropriazione immobiliare (cartabia)

Ruolo
82/2024

Giudice
Migliore Emanuele

Recapiti
-

Email
-

Delegato alla vendita
Maggia Carlo
(Procede alle operazioni di vendita)

Recapiti
Tel. 0150991500

Email
info@centroasteimmobiliari.it

Custode giudiziario
Maggia Carlo
(Gestisce la visita del bene)

Recapiti
Tel. 0150991500

Scheda COD. 4331497 - Pubblicata dal 03/12/2025

La presente scheda di vendita riporta integralmente informazioni e documenti pervenuti ufficialmente dal Ministero e dal professionista incaricato.


Pubblicazione autorizzata dall’Autorità competente, è vietata ogni ripubblicazione o riproduzione anche parziale


Ti interessa questa vendita?

Documentazione

Visualizza su mappa

Mappa geografica del bene

Storico delle vendite

Data venditaPrezzo base
30/09/2025€ 49.000,00
27/01/2026€ 36.750,00

Punti di interesse

Fonte dati

Nel raggio di {{range}}Km

Loading...
  • {{ getIcon(poi.type) }} {{ poi.localized }}: {{poi.count}}
  • {{ getIcon(poi.type) }} {{ poi.localized }}: {{poi.count}}
Dati non disponibili