Astegiudiziarie.it è parte di Rete Aste Network

Accedi o registrati

Non sei ancora registrato?

Oppure

Accedi

Abitazione di tipo civile

Corso Trieste, 70, 02020 Turania RI, Italia, Turania (RI)

€ 55.500,00

Offerta minima € 41.625,00


Codice A4332575

Lotto Lotto unico

Data udienza 12/02/2026 ore 15:00

Termine presentazione offerte 11/02/2026 ore 23:59

Abitazione di tipo civile

Corso Trieste, 70, 02020 Turania RI, Italia, Turania (RI)

€ 55.500,00

Offerta minima € 41.625,00


Codice A4332575

Lotto Lotto unico

Data udienza 12/02/2026 ore 15:00

Termine presentazione offerte 11/02/2026 ore 23:59

Ti interessa questa vendita?

Documentazione

Visualizza su mappa

Mappa geografica del bene

Punti di interesse

Fonte dati

Nel raggio di {{range}}Km

Loading...
  • {{ getIcon(poi.type) }} {{ poi.localized }}: {{poi.count}}
  • {{ getIcon(poi.type) }} {{ poi.localized }}: {{poi.count}}
Dati non disponibili

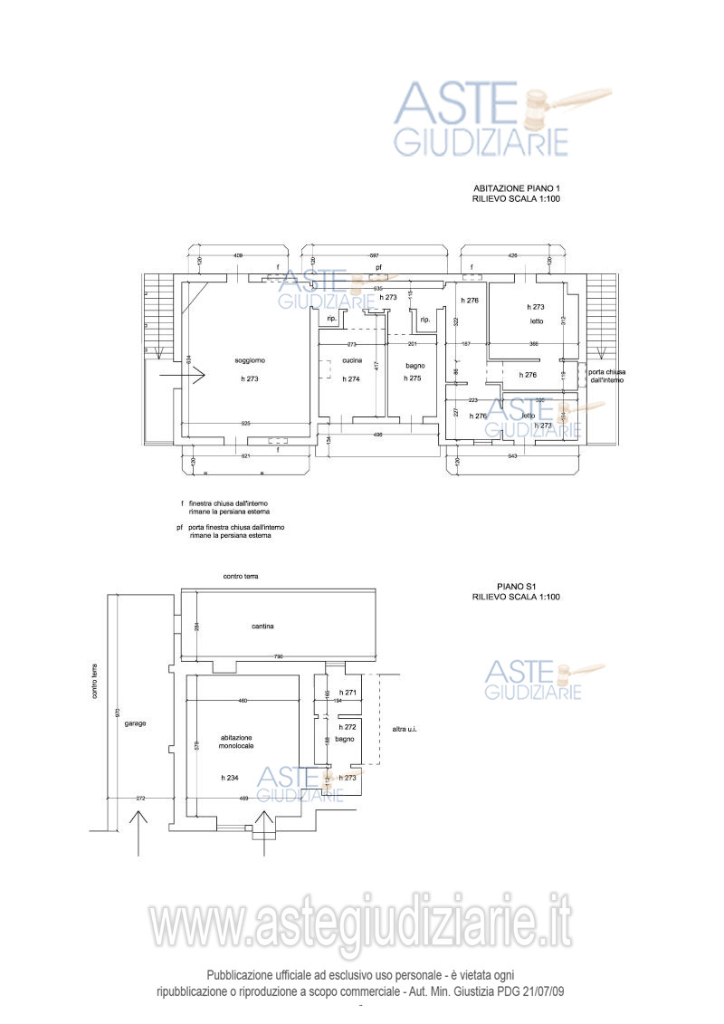
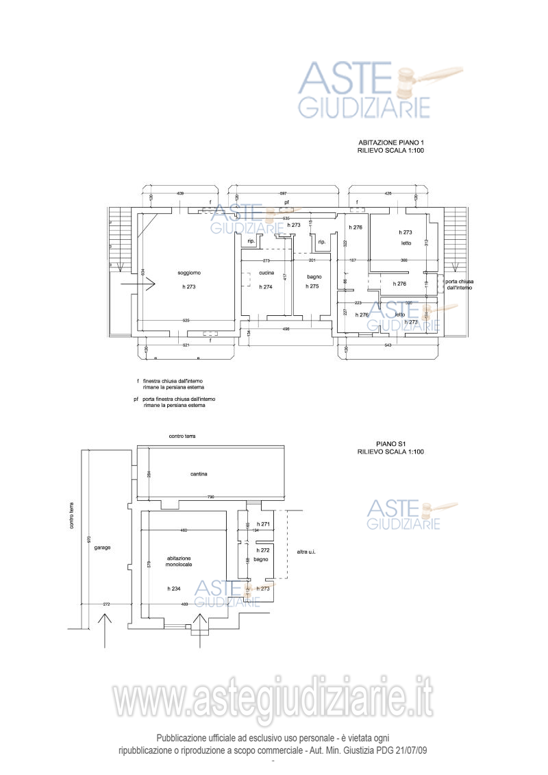
Appartamento in Turania (RI) in Corso Trieste n.70, facente parte di una costruzione bifamiliare articolata su tre piani, piano S1, piano T e piano 1, con circostante terreno corte comune indivisa, con cantina e garage al piano S1.

Indirizzo
Corso Trieste, 70, 02020 Turania RI, Italia, Turania (RI)


Codice asta
4332575


Lotto
Lotto unico


Numero beni
1


Genere
Immobili


Categoria
Immobile residenziale


Valore di stima
-


Abitazione di tipo civile

Appartamento in Turania (RI), Corso Trieste 70, facente parte di una costruzione bifamiliare articolata su tre piani, piano S1, piano T e piano 1, con circostante terreno corte comune indivisa, con cantina e garage al piano S1.

Indirizzo
Corso Trieste, 70, 02020 Turania RI, Italia, Turania (RI)


Piano
-


Disponibilità
OCCUPATO


Vani
8,00


Bagni
-


Metri quadri
153,00


Certificazione energetica
-


Dati catastali

Foglio:5, Particella:342, Subalterno:2
Foglio:5, Particella:342, Subalterno:4


Data udienza
12/02/2026 ore 15:00


Tipo di vendita
Senza incanto


Modalità di vendita
Asincrona telematica


Luogo
-


Luogo presentazione offerte
-


Termine presentazione offerte
11/02/2026 ore 23:59


Prezzo base
€ 55.500,00


Offerta minima
€ 41.625,00


Rialzo minimo in caso di gara
€ 2.500,00


Deposito cauzionale
10% del prezzo offerto


Deposito in conto spese
-


Tribunale
Tivoli

Tipo di procedura
Esecuzione immobiliare post legge 80

Ruolo
340/2024

Delegato alla vendita
Salta Anna maria
(Procede alle operazioni di vendita)

Recapiti
Cell. 3466782573

Email
saltaannamaria@gmail.com

Custode giudiziario
Ivg di roma srl 
(Gestisce la visita del bene)

Recapiti
Tel. 0689569801

Scheda COD. 4332575 - Pubblicata dal 23/12/2025

La presente scheda di vendita riporta integralmente informazioni e documenti pervenuti ufficialmente dal Ministero e dal professionista incaricato.


Pubblicazione autorizzata dall’Autorità competente, è vietata ogni ripubblicazione o riproduzione anche parziale


Ti interessa questa vendita?

Documentazione

Visualizza su mappa

Mappa geografica del bene

Storico delle vendite

Data venditaPrezzo base
02/12/2025€ 74.000,00
12/02/2026€ 55.500,00

Punti di interesse

Fonte dati

Nel raggio di {{range}}Km

Loading...
  • {{ getIcon(poi.type) }} {{ poi.localized }}: {{poi.count}}
  • {{ getIcon(poi.type) }} {{ poi.localized }}: {{poi.count}}
Dati non disponibili