Astegiudiziarie.it è parte di Rete Aste Network

Accedi o registrati

Non sei ancora registrato?

Oppure

Accedi

Abitazione di tipo civile

Via Monsignor Guido Tonetti, 6/8, 28069 Trecate NO, Italia, Trecate (NO)

€ 74.000,00

Offerta minima € 55.500,00


Codice A4347453

Lotto Lotto unico

Data udienza 04/06/2026 ore 12:00

Termine presentazione offerte 03/06/2026 ore 12:00

Abitazione di tipo civile

Via Monsignor Guido Tonetti, 6/8, 28069 Trecate NO, Italia, Trecate (NO)

€ 74.000,00

Offerta minima € 55.500,00


Codice A4347453

Lotto Lotto unico

Data udienza 04/06/2026 ore 12:00

Termine presentazione offerte 03/06/2026 ore 12:00

Ti interessa questa vendita?

Documentazione

Visualizza su mappa

Mappa geografica del bene

Punti di interesse

Fonte dati

Nel raggio di {{range}}Km

Loading...
  • {{ getIcon(poi.type) }} {{ poi.localized }}: {{poi.count}}
  • {{ getIcon(poi.type) }} {{ poi.localized }}: {{poi.count}}
Dati non disponibili

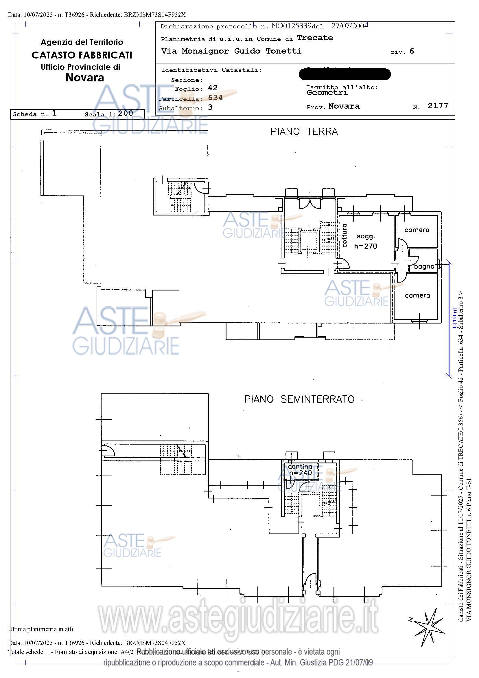
Piena proprietà di 1000/1000, in fabbricato condominiale denominato Condominio Il Campo A di appartamento posto al piano terra/rialzato (1 f.t.), raggiungibile direttamente dall’atrio condominiale, composto da: ingresso su soggiorno con angolo cottura, disimpegno, camera, bagno ed altra camera matrimoniale, oltre ad un balcone esterno al piano terra/rialzato, e cantina di pertinenza posta al piano seminterrato.

Indirizzo
Via Monsignor Guido Tonetti, 6/8, 28069 Trecate NO, Italia, Trecate (NO)


Codice asta
4347453


Lotto
Lotto unico


Numero beni
1


Genere
Immobili


Categoria
Immobile residenziale


Valore di stima
-


Abitazione di tipo civile

Piena proprietà di 1000/1000, in fabbricato condominiale denominato Condominio Il Campo A di appartamento posto al piano terra/rialzato (1 f.t.), raggiungibile direttamente dall’atrio condominiale, composto da: ingresso su soggiorno con angolo cottura, disimpegno, camera, bagno ed altra camera matrimoniale, oltre ad un balcone esterno al piano terra/rialzato, e cantina di pertinenza posta al piano seminterrato.

Indirizzo
Via Monsignor Guido Tonetti, 6/8, 28069 Trecate NO, Italia, Trecate (NO)


Piano
T S1


Disponibilità
OCCUPATO


Vani
-


Bagni
-


Metri quadri
-


Certificazione energetica
-


Dati catastali

Foglio:42, Sezione:NCEU, Particella:634, Subalterno:3
Foglio:42, Sezione:NCEU, Particella:634, Subalterno:22


Data udienza
04/06/2026 ore 12:00


Tipo di vendita
Senza incanto


Modalità di vendita
Asincrona telematica


Luogo
N.A. -


Luogo presentazione offerte
-


Termine presentazione offerte
03/06/2026 ore 12:00


Prezzo base
€ 74.000,00


Offerta minima
€ 55.500,00


Rialzo minimo in caso di gara
€ 1.300,00


Deposito cauzionale
10% del prezzo offerto


Deposito in conto spese
-


Tribunale
Novara

Tipo di procedura
Espropriazione immobiliare (cartabia)

Ruolo
167/2024

Giudice
Incardona Rossella

Recapiti
-

Email
-

Delegato alla vendita
Cattaneo Amanda
(Procede alle operazioni di vendita)

Recapiti
-

Email
segreteria@davnovara.it

Custode giudiziario
Vigone Lorenzo
(Gestisce la visita del bene)

Recapiti
Tel. 0321628676

Scheda COD. 4347453 - Pubblicata dal 24/03/2026

La presente scheda di vendita riporta integralmente informazioni e documenti pervenuti ufficialmente dal Ministero e dal professionista incaricato.


Pubblicazione autorizzata dall’Autorità competente, è vietata ogni ripubblicazione o riproduzione anche parziale


Ti interessa questa vendita?

Documentazione

Visualizza su mappa

Mappa geografica del bene

Punti di interesse

Fonte dati

Nel raggio di {{range}}Km

Loading...
  • {{ getIcon(poi.type) }} {{ poi.localized }}: {{poi.count}}
  • {{ getIcon(poi.type) }} {{ poi.localized }}: {{poi.count}}
Dati non disponibili