Astegiudiziarie.it è parte di Rete Aste Network

Accedi o registrati

Non sei ancora registrato?

Oppure

Accedi

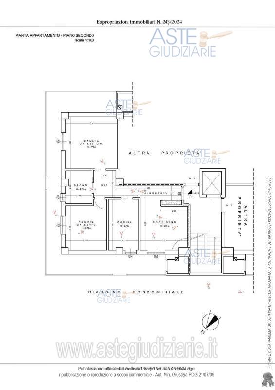
giudiziariagiudiziariaTribunale di TRANIESECUZIONI CIVILI IMMOBILIARIESECUZIONE IMMOBILIARE POST LEGGE 802432024Delegato alla venditaCarloBarracchiaBRRCRL65C06I907Cstudiolegalebarcan@gmail.com0883532077truetrueGiudiceDilettaCalòfalsefalse2374097LOTTO UNICOIMMOBILIIMMOBILE RESIDENZIALEVia Polonia n.50 e n.3876125TraniBarletta-Andria-TraniPugliaItaliaLOTTO UNICOBene n.1-Appartamento ubicato in Trani (BT) alla Via Polonia n.50, scala Y1, interno 9, piano 2, identificato al catasto fabbricati al foglio 23, part. 1363, sub. 11, cat. A/3, cl. 6, consistenza 5,5 vani, sup. catastale 86 mq., rendita € 426,08, piano 2. Bene n.2-Box auto ubicato in Trani (BT) alla Via Polonia n.38, edificio Y1, piano S2, identificato al catasto fabbricati al foglio 23, part. 1363, sub.56, cat. C/6, cl. 3, consistenza 25 mq., sup. catastale 28 mq., rendita € 46,48, piano S2.3065292IMMOBILE RESIDENZIALEABITAZIONE DI TIPO ECONOMICOVia Polonia n.50 76125TraniBarletta-Andria-TraniPugliaItaliaLOTTO UNICO Bene n.1 - Piena proprietà, per la quota di 1000/1000, dell’appartamento ubicato in Trani (BT) alla Via Polonia n.50, scala Y1, interno 9, piano 2, identificato al catasto fabbricati al foglio 23, particella 1363, subalterno 11, categoria A/3, classe 6, consistenza 5,5 vani, superficie catastale 86 mq., rendita € 426,08, piano 2.L’unità immobiliare si sviluppa su un unico livello. Trattasi di un appartamento situato al secondo piano, distinto con il numero interno 9, a cui si accede, dal portone condominiale mediante scala Y1 a rampe con sviluppo ad “U”; precisamente si ha accesso all’immobile dalla prima porta a sinistra per chi salendo le scale arriva sul pianerottolo. È composto da quattro vani principali più accessori (ingresso/disimpegno, bagno, corridoio, balconi e ripostiglio esterno). Si sviluppa come segue: ingresso, soggiorno, cucina abitabile, corridoio che diventa disimpegno della zona notte distinta da due camere da letto e wc centrale. L’appartamento è ben illuminato ed è servito da un unico balcone sui tutti i rispettivi lati di esposizione, due lati si affacciano sul parco attrezzato del complesso residenziale e parcheggio scoperto e l’altro sull’area adibita a garage del condominio a cui si accede dal portone carrabile in via Polonia n.38. Dalla porta di entrata, dopo aver attraversato un piccolo ingresso, le stanze si sviluppano tutte sul lato sinistro e il corridoio conduce in fondo al wc con vasca da bagno e al disimpegno da cui si accede alla camera da letto matrimoniale sul lato destro. La prima stanza che si incontra, dalla porta d’ingresso superato l’armadio a muro, è il soggiorno che non presenta nessuna chiusura quasi completamente a vista; segue la cucina abitabile e sempre su lato sinistro si incontra la camera da letto singola. In posizione centrale rispetto al corridoio si trova il bagno, unico dell’appartamento e sul lato destro del disimpegno si accede alla camera da letto matrimoniale. Si tratta di ambienti molto luminosi. La sala soggiorno e la camera da letto matrimoniale sono illuminate da una portafinestra a due ante a battente in alluminio effetto legno e doppio vetro di dimensioni 1,38x2,36 m, la cucina, invece, è illuminata da una portafinestra con anta singola dalle dimensioni di 0,90x2,36 m, che conduce al balcone il cui lato si affaccia direttamente sul parco attrezzato e vano scala di accesso. La camera da letto singola è illuminata da una finestra di dimensioni 1,38x1,36 m e il bagno da una finestra ad anta singola con apertura a battente di dimensioni 0,66x1,36 m. Dal balcone che si affaccia sul lato ingresso condominiale si accede al piccolo ripostiglio lavanderia dove è ubicato il vano caldaia esterno. Il pavimento dell’appartamento è costituito da piastrelle in grès porcellanato con finitura opaca di colore marrone chiaro di formato 60x60 cm, mentre le piastrelle del bagno che si presentano con la stessa finitura hanno un formato di 30x30 cm per il pavimento e un formato di 30x40 cm per il rivestimento delle pareti, il quale è intervallato da greca ed ultimato da una cornice in ceramica. Le piastrelle della cucina sono di formato 10x10 cm e rivestono solo il lato attrezzato. Si precisa che l’altezza utile dei vani è di ca. 2,70 m. Per una descrizione dettagliata si rinvia all'avviso di vendita ed alla perizia di stima. Realizzato in regime di edilizia residenziale pubblica convenzionata e agevolata e finanziata in tutto o in parte con risorse pubbliche, con vincoli ancora vigenti a carico del proprietario debitore. Per la normativa urbanistica e regolarità edilizia si rinvia all'avviso di vendita ed alla perizia di stima. Per le pratiche edilizie si rinvia all'avviso di vendita ed alla perizia di stima. Per le certificazioni energetiche e dichiarazioni di conformità si rinvia all'avviso di vendita ed alla perizia di stima. Per i giudizi di conformità si rinvia all'avviso di vendita ed alla perizia di stima. F23136311OCCUP865.53065293ALTRA CATEGORIASTALLE, SCUDERIE, RIMESSE, AUTORIMESSEVia Polonia n.3876125TraniBarletta-Andria-TraniPugliaItaliaBene n.2 - Piena proprietà, per la quota di 1000/1000, del box auto ubicato in Trani (BT) alla Via Polonia n.38, edificio Y1, piano S2, identificato al catasto fabbricati al foglio 23, particella 1363, subalterno 56, categoria C/6, classe 3, consistenza 25 mq., superficie catastale 28 mq., rendita € 46,48, piano S2.La porzione di autorimessa oggetto di stima è costituita da un unico vano di circa 25,36 mq calpestabili, ma chiuso su tre lati da tramezzi, confinante con la corsia di scorrimento. È presente la serranda di chiusura. Il box auto ha la possibilità di ospitare una sola automobile, oltre a scaffalature. Esso ha una larghezza di 4,75 m e una lunghezza di 5,12 m ed è posizionato vicino alla rampa di ingresso/uscita del piano interrato e questo ne facilita la manovra di ingresso/uscita.Il posto singolo sviluppa una superficie lorda complessiva di 27,57 mq. Per una descrizione dettagliata si rinvia all'avviso di vendita ed alla perizia di stima. Realizzato in regime di edilizia residenziale pubblica convenzionata e agevolata e finanziata in tutto o in parte con risorse pubbliche, con vincoli ancora vigenti a carico del proprietario debitore. Per la normativa urbanistica e regolarità edilizia si rinvia all'avviso di vendita ed alla perizia di stima. Per le pratiche edilizie si rinvia all'avviso di vendita ed alla perizia di stima. Per le certificazioni energetiche e dichiarazioni di conformità si rinvia all'avviso di vendita ed alla perizia di stima. Per i giudizi di conformità si rinvia all'avviso di vendita ed alla perizia di stima. F23136356OCCUP2026-04-21T10:30:00SENZA INCANTOSINCRONA TELEMATICAN.A.182.000,001.365.000,003.700,002026-04-20T23:59:00gestore delle venditehttp://www.astetelematiche.ithttp://www.astetelematiche.itsito pubblicitahttps://www.astegiudiziarie.ithttps://www.astegiudiziarie.itsito pubblicitahttps://www.astalegale.nethttps://www.astalegale.net2026-01-08AVVISO DI RETTIFICASi precisa che l'offerta minima è pari ad € 136.500,00, come riportato correttamente nell'avviso di vendita.2026-01-09

Abitazione di tipo economico, stalle, scuderie, rimesse, autorimesse

Via Polonia n.50 e n.38, Trani (BT)

€ 182.000,00

Offerta minima € 136.500,00


Codice A4342893

Lotto Lotto unico

Data udienza 21/04/2026 ore 10:30

Termine presentazione offerte 20/04/2026 ore 23:59

Abitazione di tipo economico, stalle, scuderie, rimesse, autorimesse

Via Polonia n.50 e n.38, Trani (BT)

€ 182.000,00

Offerta minima € 136.500,00


Codice A4342893

Lotto Lotto unico

Data udienza 21/04/2026 ore 10:30

Termine presentazione offerte 20/04/2026 ore 23:59

Vendita deserta

Ti interessa questa vendita?

Documentazione

Visualizza su mappa

Mappa geografica del bene

Punti di interesse

Fonte dati

Nel raggio di {{range}}Km

Loading...
  • {{ getIcon(poi.type) }} {{ poi.localized }}: {{poi.count}}
  • {{ getIcon(poi.type) }} {{ poi.localized }}: {{poi.count}}
Dati non disponibili

LOTTO UNICOBene n.1-Appartamento ubicato in Trani (BT) alla Via Polonia n.50, scala Y1, interno 9, piano 2, identificato al catasto fabbricati al foglio 23, part. 1363, sub. 11, cat. A/3, cl. 6, consistenza 5,5 vani, sup. catastale 86 mq., rendita € 426,08, piano 2. Bene n.2-Box auto ubicato in Trani (BT) alla Via Polonia n.38, edificio Y1, piano S2, identificato al catasto fabbricati al foglio 23, part. 1363, sub.56, cat. C/6, cl. 3, consistenza 25 mq., sup. catastale 28 mq., rendita € 46,48, piano S2.

Indirizzo
Via Polonia n.50 e n.38, Trani (BT)


Codice asta
4342893


Lotto
Lotto unico


Numero beni
2


Genere
Immobili


Categoria
Immobile residenziale


Valore di stima
-


Abitazione di tipo economico

LOTTO UNICO Bene n.1 - Piena proprietà, per la quota di 1000/1000, dell’appartamento ubicato in Trani (BT) alla Via Polonia n.50, scala Y1, interno 9, piano 2, identificato al catasto fabbricati al foglio 23, particella 1363, subalterno 11, categoria A/3, classe 6, consistenza 5,5 vani, superficie catastale 86 mq., rendita € 426,08, piano 2.L’unità immobiliare si sviluppa su un unico livello. Trattasi di un appartamento situato al secondo piano, distinto con il numero interno 9, a cui si accede, dal portone condominiale mediante scala Y1 a rampe con sviluppo ad “U”; precisamente si ha accesso all’immobile dalla prima porta a sinistra per chi salendo le scale arriva sul pianerottolo. È composto da quattro vani principali più accessori (ingresso/disimpegno, bagno, corridoio, balconi e ripostiglio esterno). Si sviluppa come segue: ingresso, soggiorno, cucina abitabile, corridoio che diventa disimpegno della zona notte distinta da due camere da letto e wc centrale. L’appartamento è ben illuminato ed è servito da un unico balcone sui tutti i rispettivi lati di esposizione, due lati si affacciano sul parco attrezzato del complesso residenziale e parcheggio scoperto e l’altro sull’area adibita a garage del condominio a cui si accede dal portone carrabile in via Polonia n.38. Dalla porta di entrata, dopo aver attraversato un piccolo ingresso, le stanze si sviluppano tutte sul lato sinistro e il corridoio conduce in fondo al wc con vasca da bagno e al disimpegno da cui si accede alla camera da letto matrimoniale sul lato destro. La prima stanza che si incontra, dalla porta d’ingresso superato l’armadio a muro, è il soggiorno che non presenta nessuna chiusura quasi completamente a vista; segue la cucina abitabile e sempre su lato sinistro si incontra la camera da letto singola. In posizione centrale rispetto al corridoio si trova il bagno, unico dell’appartamento e sul lato destro del disimpegno si accede alla camera da letto matrimoniale. Si tratta di ambienti molto luminosi. La sala soggiorno e la camera da letto matrimoniale sono illuminate da una portafinestra a due ante a battente in alluminio effetto legno e doppio vetro di dimensioni 1,38x2,36 m, la cucina, invece, è illuminata da una portafinestra con anta singola dalle dimensioni di 0,90x2,36 m, che conduce al balcone il cui lato si affaccia direttamente sul parco attrezzato e vano scala di accesso. La camera da letto singola è illuminata da una finestra di dimensioni 1,38x1,36 m e il bagno da una finestra ad anta singola con apertura a battente di dimensioni 0,66x1,36 m. Dal balcone che si affaccia sul lato ingresso condominiale si accede al piccolo ripostiglio lavanderia dove è ubicato il vano caldaia esterno. Il pavimento dell’appartamento è costituito da piastrelle in grès porcellanato con finitura opaca di colore marrone chiaro di formato 60x60 cm, mentre le piastrelle del bagno che si presentano con la stessa finitura hanno un formato di 30x30 cm per il pavimento e un formato di 30x40 cm per il rivestimento delle pareti, il quale è intervallato da greca ed ultimato da una cornice in ceramica. Le piastrelle della cucina sono di formato 10x10 cm e rivestono solo il lato attrezzato. Si precisa che l’altezza utile dei vani è di ca. 2,70 m. Per una descrizione dettagliata si rinvia all'avviso di vendita ed alla perizia di stima. Realizzato in regime di edilizia residenziale pubblica convenzionata e agevolata e finanziata in tutto o in parte con risorse pubbliche, con vincoli ancora vigenti a carico del proprietario debitore. Per la normativa urbanistica e regolarità edilizia si rinvia all'avviso di vendita ed alla perizia di stima. Per le pratiche edilizie si rinvia all'avviso di vendita ed alla perizia di stima. Per le certificazioni energetiche e dichiarazioni di conformità si rinvia all'avviso di vendita ed alla perizia di stima. Per i giudizi di conformità si rinvia all'avviso di vendita ed alla perizia di stima.

Indirizzo
Via Polonia n.50 , Trani (BT)


Piano
-


Disponibilità
OCCUPATO


Vani
5,50


Bagni
-


Metri quadri
86,00


Certificazione energetica
-


Dati catastali

Foglio:23, Sezione:F, Particella:1363, Subalterno:11


Stalle, scuderie, rimesse, autorimesse

Bene n.2 - Piena proprietà, per la quota di 1000/1000, del box auto ubicato in Trani (BT) alla Via Polonia n.38, edificio Y1, piano S2, identificato al catasto fabbricati al foglio 23, particella 1363, subalterno 56, categoria C/6, classe 3, consistenza 25 mq., superficie catastale 28 mq., rendita € 46,48, piano S2.La porzione di autorimessa oggetto di stima è costituita da un unico vano di circa 25,36 mq calpestabili, ma chiuso su tre lati da tramezzi, confinante con la corsia di scorrimento. È presente la serranda di chiusura. Il box auto ha la possibilità di ospitare una sola automobile, oltre a scaffalature. Esso ha una larghezza di 4,75 m e una lunghezza di 5,12 m ed è posizionato vicino alla rampa di ingresso/uscita del piano interrato e questo ne facilita la manovra di ingresso/uscita.Il posto singolo sviluppa una superficie lorda complessiva di 27,57 mq. Per una descrizione dettagliata si rinvia all'avviso di vendita ed alla perizia di stima. Realizzato in regime di edilizia residenziale pubblica convenzionata e agevolata e finanziata in tutto o in parte con risorse pubbliche, con vincoli ancora vigenti a carico del proprietario debitore. Per la normativa urbanistica e regolarità edilizia si rinvia all'avviso di vendita ed alla perizia di stima. Per le pratiche edilizie si rinvia all'avviso di vendita ed alla perizia di stima. Per le certificazioni energetiche e dichiarazioni di conformità si rinvia all'avviso di vendita ed alla perizia di stima. Per i giudizi di conformità si rinvia all'avviso di vendita ed alla perizia di stima.

Indirizzo
Via Polonia n.38, Trani (BT)


Piano
-


Disponibilità
OCCUPATO


Vani
-


Bagni
-


Metri quadri
-


Certificazione energetica
-


Dati catastali

Foglio:23, Sezione:F, Particella:1363, Subalterno:56


Data udienza
21/04/2026 ore 10:30


Tipo di vendita
Senza incanto


Modalità di vendita
Sincrona telematica


Luogo
N.A. -


Luogo presentazione offerte
-


Termine presentazione offerte
20/04/2026 ore 23:59


Prezzo base
€ 182.000,00


Offerta minima
€ 136.500,00


Rialzo minimo in caso di gara
€ 3.700,00


Deposito cauzionale
10% del prezzo offerto


Deposito in conto spese
-


Tribunale
Trani

Tipo di procedura
Esecuzione immobiliare post legge 80

Ruolo
243/2024

Giudice
Calò Diletta

Recapiti
-

Email
-

Delegato alla vendita
Barracchia Carlo
(Procede alle operazioni di vendita)
(Gestisce la visita del bene)

Recapiti
Tel. 0883532077

Email

Data
09/01/2026


Tipologia
AVVISO DI RETTIFICA


Descrizione
Si precisa che l'offerta minima è pari ad € 136.500,00, come riportato correttamente nell'avviso di vendita.


Data
09/01/2026


Tipologia
AVVISO DI RETTIFICA


Descrizione
Si precisa che l'offerta minima è pari ad € 136.500,00, come riportato correttamente nell'avviso di vendita.


Scheda COD. 4342893 - Pubblicata dal 13/02/2026

La presente scheda di vendita riporta integralmente informazioni e documenti pervenuti ufficialmente dal Ministero e dal professionista incaricato.


Pubblicazione autorizzata dall’Autorità competente, è vietata ogni ripubblicazione o riproduzione anche parziale


Ti interessa questa vendita?

Documentazione

Visualizza su mappa

Mappa geografica del bene

Punti di interesse

Fonte dati

Nel raggio di {{range}}Km

Loading...
  • {{ getIcon(poi.type) }} {{ poi.localized }}: {{poi.count}}
  • {{ getIcon(poi.type) }} {{ poi.localized }}: {{poi.count}}
Dati non disponibili