Astegiudiziarie.it è parte di Rete Aste Network

Accedi o registrati

Non sei ancora registrato?

Oppure

Accedi

Appartamento, garage o autorimessa

Via Padre Pio, 1, 27010 Torrevecchia Pia PV, Italia, Torrevecchia Pia (PV)

€ 87.470,00

Offerta minima € 65.603,00


Codice A4346575

Lotto Lotto unico

Data udienza 28/04/2026 ore 12:00

Termine presentazione offerte 27/04/2026 ore 12:00

Appartamento, garage o autorimessa

Via Padre Pio, 1, 27010 Torrevecchia Pia PV, Italia, Torrevecchia Pia (PV)

€ 87.470,00

Offerta minima € 65.603,00


Codice A4346575

Lotto Lotto unico

Data udienza 28/04/2026 ore 12:00

Termine presentazione offerte 27/04/2026 ore 12:00

Ti interessa questa vendita?

Documentazione

Visualizza su mappa

Mappa geografica del bene

Punti di interesse

Fonte dati

Nel raggio di {{range}}Km

Loading...
  • {{ getIcon(poi.type) }} {{ poi.localized }}: {{poi.count}}
  • {{ getIcon(poi.type) }} {{ poi.localized }}: {{poi.count}}
Dati non disponibili

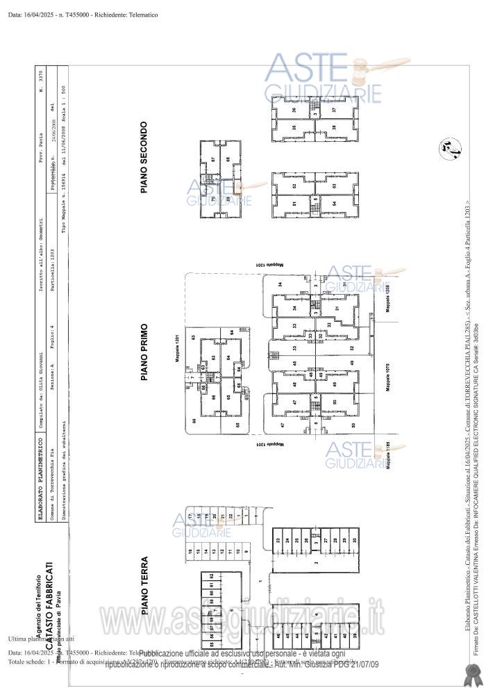
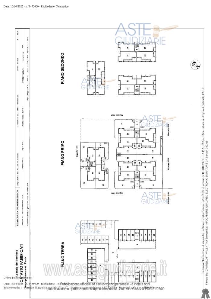
Appartamento di civile abitazione posto al piano rialzato con area esterna esclusiva e autorimessa di pertinenza al piano terra.

Indirizzo
Via Padre Pio, 1, 27010 Torrevecchia Pia PV, Italia, Torrevecchia Pia (PV)


Codice asta
4346575


Lotto
Lotto unico


Numero beni
2


Genere
Immobili


Categoria
Immobile residenziale


Valore di stima
-


Appartamento

Quota della piena proprietà di appartamento di civile abitazione posto al piano rialzato con area esterna esclusiva.

Indirizzo
Via Padre Pio, 1, 27010 Torrevecchia Pia PV, Italia, Torrevecchia Pia (PV)


Piano
-


Disponibilità
-


Vani
5,50


Bagni
-


Metri quadri
96,00


Certificazione energetica
-


Garage o autorimessa

Autorimessa di pertinenza al piano terra.

Indirizzo
Via Padre Pio, 1, 27010 Torrevecchia Pia PV, Italia, Torrevecchia Pia (PV)


Piano
-


Disponibilità
-


Vani
-


Bagni
-


Metri quadri
28,00


Certificazione energetica
-


Data udienza
28/04/2026 ore 12:00


Tipo di vendita
Senza incanto


Modalità di vendita
Asincrona telematica


Luogo
-


Luogo presentazione offerte
-


Termine presentazione offerte
27/04/2026 ore 12:00


Prezzo base
€ 87.470,00


Offerta minima
€ 65.603,00


Rialzo minimo in caso di gara
€ 1.000,00


Deposito cauzionale
10% del prezzo offerto


Deposito in conto spese
-


Tribunale
Pavia

Tipo di procedura
Espropriazione immobiliare (cartabia)

Ruolo
24/2025

Delegato alla vendita
Sandri Stefania
(Procede alle operazioni di vendita)

Recapiti
-

Email
-

Custode giudiziario
Ivg di pavia e lodi 
(Gestisce la visita del bene)

Recapiti
-

Scheda COD. 4346575 - Pubblicata dal 06/03/2026

La presente scheda di vendita riporta integralmente informazioni e documenti pervenuti ufficialmente dal Ministero e dal professionista incaricato.


Pubblicazione autorizzata dall’Autorità competente, è vietata ogni ripubblicazione o riproduzione anche parziale


Ti interessa questa vendita?

Documentazione

Visualizza su mappa

Mappa geografica del bene

Punti di interesse

Fonte dati

Nel raggio di {{range}}Km

Loading...
  • {{ getIcon(poi.type) }} {{ poi.localized }}: {{poi.count}}
  • {{ getIcon(poi.type) }} {{ poi.localized }}: {{poi.count}}
Dati non disponibili