Astegiudiziarie.it è parte di Rete Aste Network

Accedi o registrati

Non sei ancora registrato?

Oppure

Accedi

Abitazione di tipo economico

VIA VERRES, 29, Torino (TO)

€ 41.000,00

Offerta minima € 30.750,00


Codice A4349595

Lotto Lotto unico

Data udienza 16/06/2026 ore 10:00

Termine presentazione offerte 15/06/2026 ore 12:00

Abitazione di tipo economico

VIA VERRES, 29, Torino (TO)

€ 41.000,00

Offerta minima € 30.750,00


Codice A4349595

Lotto Lotto unico

Data udienza 16/06/2026 ore 10:00

Termine presentazione offerte 15/06/2026 ore 12:00

Ti interessa questa vendita?

Documentazione

Visualizza su mappa

Mappa geografica del bene

Punti di interesse

Fonte dati

Nel raggio di {{range}}Km

Loading...
  • {{ getIcon(poi.type) }} {{ poi.localized }}: {{poi.count}}
  • {{ getIcon(poi.type) }} {{ poi.localized }}: {{poi.count}}
Dati non disponibili

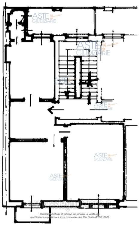
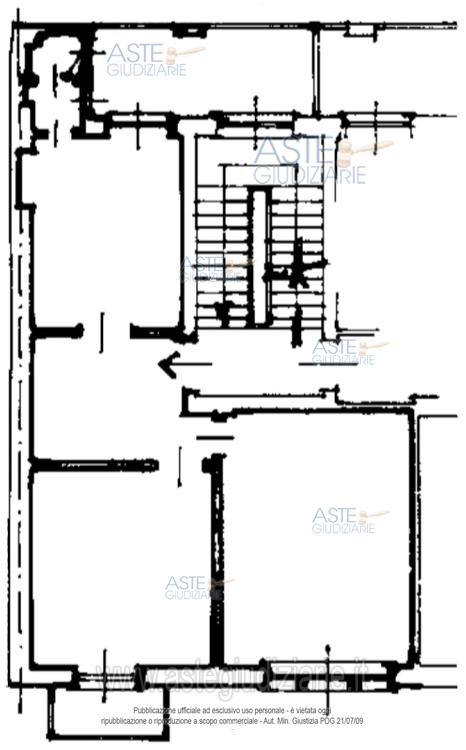
Alloggio al piano quarto (5° f.t.), composto di tre vani, disimpegno, bagno, balcone e terrazzo, annessa cantina, al piano interrato, distinta con il numero “6” nella planimetria del relativo piano allegata al Regolamento di condominio

Indirizzo
VIA VERRES, 29, Torino (TO)


Codice asta
4349595


Lotto
Lotto unico


Numero beni
1


Genere
Immobili


Categoria
Immobile residenziale


Valore di stima
-


Abitazione di tipo economico

Alloggio al piano quarto (5° f.t.), composto di tre vani, disimpegno, bagno, balcone e terrazzo, annessa cantina, al piano interrato, distinta con il numero “6” nella planimetria del relativo piano allegata al Regolamento di condominio

Indirizzo
VIA VERRES, 29, Torino (TO)


Piano
-


Disponibilità
-


Vani
-


Bagni
-


Metri quadri
-


Certificazione energetica
-


Data udienza
16/06/2026 ore 10:00


Tipo di vendita
Senza incanto


Modalità di vendita
Asincrona telematica


Luogo
N.A. -


Luogo presentazione offerte
-


Termine presentazione offerte
15/06/2026 ore 12:00


Prezzo base
€ 41.000,00


Offerta minima
€ 30.750,00


Rialzo minimo in caso di gara
€ 2.000,00


Deposito cauzionale
10% del prezzo offerto


Deposito in conto spese
-


Tribunale
Torino

Tipo di procedura
Espropriazione immobiliare (cartabia)

Ruolo
618/2024

Giudice
Duretto 

Recapiti
-

Email
-

Delegato alla vendita
Merlo Silvia
(Procede alle operazioni di vendita)

Recapiti
Cell. 3293449704

Email
avv.merlo@hotmail.it

Custode giudiziario
Merlo Silvia
(Gestisce la visita del bene)

Recapiti
Cell. 3899861477

Scheda COD. 4349595 - Pubblicata dal 17/04/2026

La presente scheda di vendita riporta integralmente informazioni e documenti pervenuti ufficialmente dal Ministero e dal professionista incaricato.


Pubblicazione autorizzata dall’Autorità competente, è vietata ogni ripubblicazione o riproduzione anche parziale


Ti interessa questa vendita?

Documentazione

Visualizza su mappa

Mappa geografica del bene

Punti di interesse

Fonte dati

Nel raggio di {{range}}Km

Loading...
  • {{ getIcon(poi.type) }} {{ poi.localized }}: {{poi.count}}
  • {{ getIcon(poi.type) }} {{ poi.localized }}: {{poi.count}}
Dati non disponibili