Astegiudiziarie.it è parte di Rete Aste Network

Accedi o registrati

Non sei ancora registrato?

Oppure

Accedi

Abitazione di tipo signorile

Via Massena, 103, 10128 Torino TO, Italia, Torino (TO)

€ 750.000,00

Offerta minima € 562.500,00


Codice A4315669

Lotto Lotto unico

Data udienza 03/02/2026 ore 15:00

Termine presentazione offerte 02/02/2026 ore 12:00

Abitazione di tipo signorile

Via Massena, 103, 10128 Torino TO, Italia, Torino (TO)

€ 750.000,00

Offerta minima € 562.500,00


Codice A4315669

Lotto Lotto unico

Data udienza 03/02/2026 ore 15:00

Termine presentazione offerte 02/02/2026 ore 12:00

Ti interessa questa vendita?

Documentazione

Visualizza su mappa

Mappa geografica del bene

Punti di interesse

Fonte dati

Nel raggio di {{range}}Km

Loading...
  • {{ getIcon(poi.type) }} {{ poi.localized }}: {{poi.count}}
  • {{ getIcon(poi.type) }} {{ poi.localized }}: {{poi.count}}
Dati non disponibili

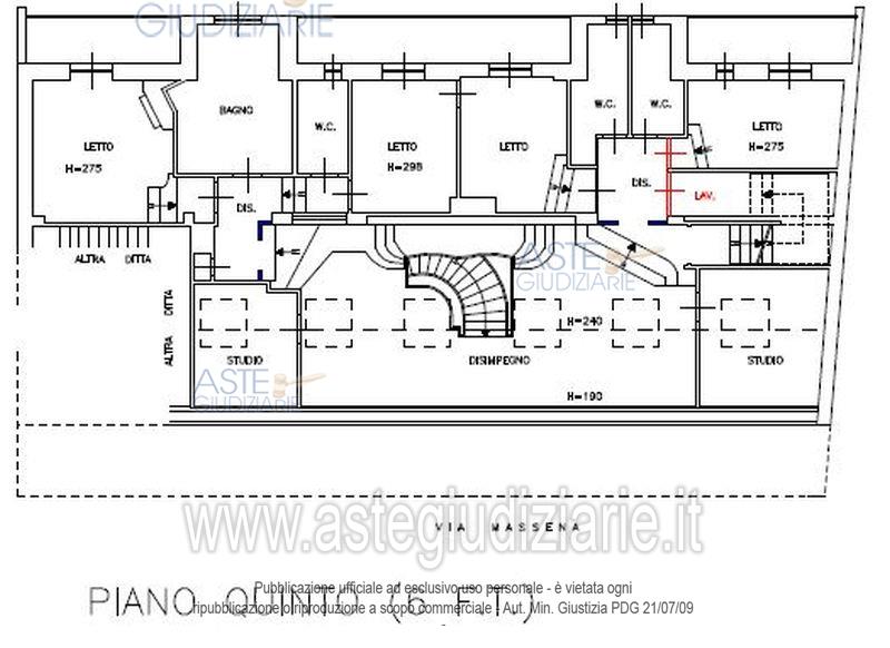
In zona Crocetta, prestigioso appartamento di 417 mq. su più livelli collegato da scale interne comode e non a chiocciola. al quarto piano ampio salone, cucina , una camera due bagni e ampio terrazzo. al quinto piano, sei camere da letto ognuna con servizi, vetrata panoramica. da scala si accede al tetto con ampio terrazzo di proprietà esclusiva. tre cantine

Indirizzo
Via Massena, 103, 10128 Torino TO, Italia, Torino (TO)


Codice asta
4315669


Lotto
Lotto unico


Numero beni
1


Genere
Immobili


Categoria
Immobile residenziale


Valore di stima
-


Abitazione di tipo signorile

ampio e prestigioso appartamento su tre livelli di mq 417 in zona crocetta

Indirizzo
Via Massena, 103, 10128 Torino TO, Italia, Torino (TO)


Piano
4 5 6


Disponibilità
OCCUP


Vani
17,00


Bagni
-


Metri quadri
417,00


Certificazione energetica
-


Dati catastali

Foglio:1349, Particella:191, Subalterno:34


Data udienza
03/02/2026 ore 15:00


Tipo di vendita
Competitiva


Modalità di vendita
Asincrona telematica


Luogo
N.A. -


Luogo presentazione offerte
-


Termine presentazione offerte
02/02/2026 ore 12:00


Prezzo base
€ 750.000,00


Offerta minima
€ 562.500,00


Rialzo minimo in caso di gara
€ 5.000,00


Deposito cauzionale
-


Deposito in conto spese
-


Tribunale
Torino

Tipo di procedura
Liquidazione controllata(cci)

Ruolo
11/2023

Curatore
Rendine Rosa daniela
(Procede alle operazioni di vendita)
(Gestisce la visita del bene)

Recapiti
Cell. 3355297505
Tel. 011505747

Scheda COD. 4315669 - Pubblicata dal 10/12/2025

La presente scheda di vendita riporta integralmente informazioni e documenti pervenuti ufficialmente dal Ministero e dal professionista incaricato.

Pubblicazione notarizzata su Blockchain


Pubblicazione autorizzata dall’Autorità competente, è vietata ogni ripubblicazione o riproduzione anche parziale


Ti interessa questa vendita?

Documentazione

Visualizza su mappa

Mappa geografica del bene

Storico delle vendite

Data venditaPrezzo base
14/01/2025€ 928.000,00
15/04/2025€ 928.000,00
15/07/2025€ 850.000,00
04/11/2025€ 800.000,00
03/02/2026€ 750.000,00

Punti di interesse

Fonte dati

Nel raggio di {{range}}Km

Loading...
  • {{ getIcon(poi.type) }} {{ poi.localized }}: {{poi.count}}
  • {{ getIcon(poi.type) }} {{ poi.localized }}: {{poi.count}}
Dati non disponibili