Astegiudiziarie.it è parte di Rete Aste Network

Accedi o registrati

Non sei ancora registrato?

Oppure

Accedi

Abitazione di tipo economico

Via Musinu n.7, Thiesi (SS)

€ 20.000,00

Offerta minima € 15.000,00


Codice A4280698

Lotto Lotto unico

Data vendita 09/03/2026 ore 17:00

Termine presentazione offerte 08/03/2026 ore 18:00

Abitazione di tipo economico

Via Musinu n.7, Thiesi (SS)

€ 20.000,00

Offerta minima € 15.000,00


Codice A4280698

Lotto Lotto unico

Data Vendita 09/03/2026 ore 17:00

Termine presentazione offerte 08/03/2026 ore 18:00

Vendita non aggiudicata

Ti interessa questa vendita?

Documentazione

Visualizza su mappa

Mappa geografica del bene

Punti di interesse

Fonte dati

Nel raggio di {{range}}Km

Loading...
  • {{ getIcon(poi.type) }} {{ poi.localized }}: {{poi.count}}
  • {{ getIcon(poi.type) }} {{ poi.localized }}: {{poi.count}}
Dati non disponibili

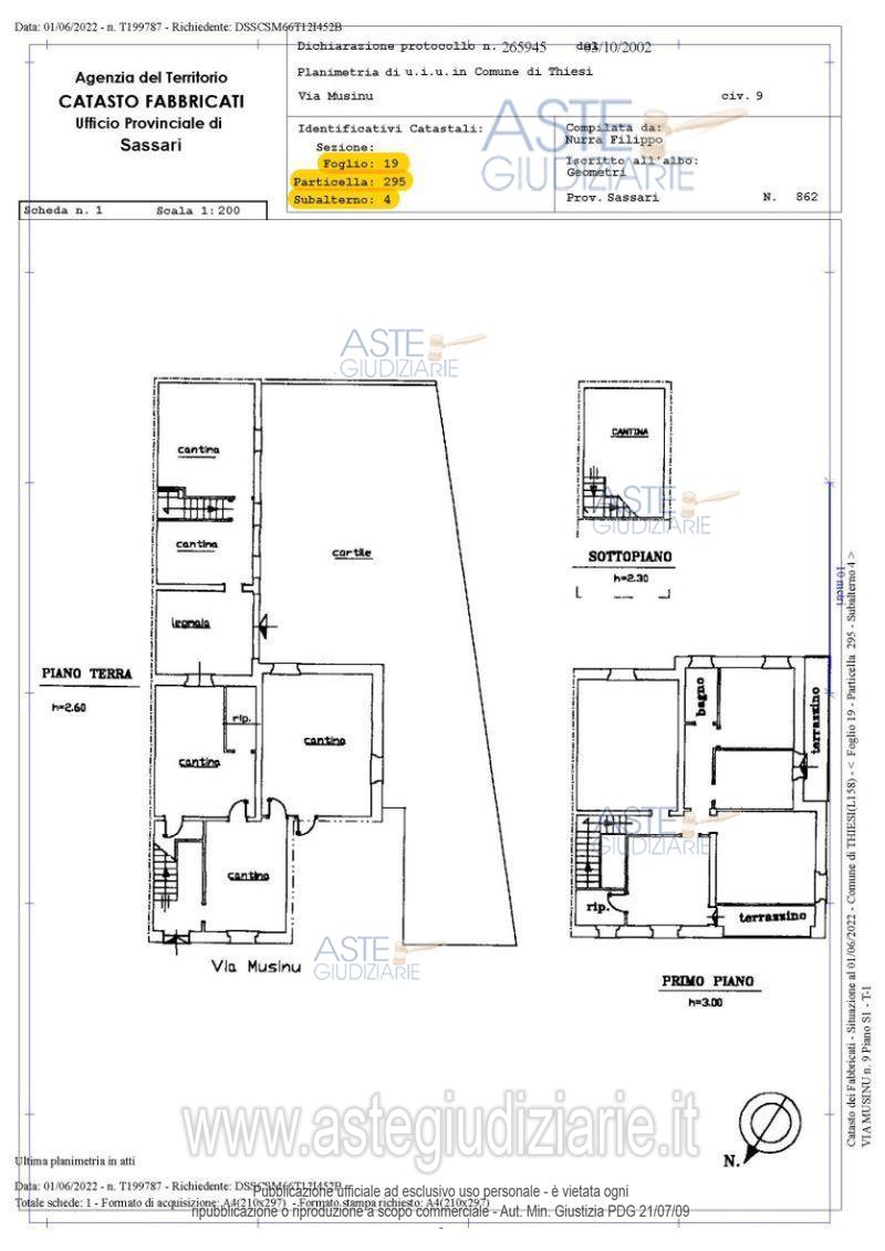
Fabbricatoa Thiesi (SS) - Via Musinu n.7, piano T-1; distinto in catasto fabbricati Fg. 19, Part. 295, Sub. 4, Categoria A3 - Fg. 19, Part. 295, Sub. 5, Categoria C6, P.terra e Primo, ampio ingresso, disimpegno, bagno, lavanderia locali sgombero al piano terra; disimpegno/corridoio, tre vani letto, soggiorno, cucina dispensa, bagno e terrazzi al P.primo, il tutto con annessa area cortilizia esclusiva, con irregolarità, da considerarsi NON SANABILI come DA elaborato peritale depositato in atti.

Indirizzo
Via Musinu n.7, Thiesi (SS)


Codice asta
4280698


Lotto
Lotto unico


Numero beni
1


Genere
Immobili


Categoria
Immobile residenziale


Valore di stima
-


Abitazione di tipo economico

Fabbricato civile ubicato a Thiesi (SS) - Via Musinu n.7, piano T-1; distinto in catasto fabbricati Fg. 19,Part. 295, Sub. 4, Categoria A3 - Fg. 19, Part. 295, Sub. 5, Categoria C6, corpo di fabbrica disposto alP.terra e Primo, composto da ampio ingresso, disimpegno, bagno, lavanderia e locali sgombero al pianoterra; disimpegno/corridoio, tre vani letto, soggiorno, cucina con annessa dispensa, bagno e terrazzi alP.primo, il tutto con annessa area cortilizia esclusiva, confinante con la strada Via Musinu e con proprietà diterzi per tre lati. Totale superficie convenzionale: 281,13 mq. In data 05/09/2025, si è verificato un incendio accidentale all’interno dell’immobile sopradescritto, con idanni alle strutture indicati nell’allegata relazione dei Vigili del Fuoco.

Indirizzo
Via Musinu n.7,, Thiesi (SS)


Piano
-


Disponibilità
-


Vani
-


Bagni
-


Metri quadri
-


Certificazione energetica
-


Tribunale
Sassari

Tipo di procedura
Esecuzione immobiliare post legge 80

Ruolo
186/2021

Giudice
Remonti 

Recapiti
-

Email
-

Delegato alla vendita
Fadda 
(Procede alle operazioni di vendita)

Recapiti
-

Email
-

Custode giudiziario
Istituto vendite giudiziarie sassari 
(Gestisce la visita del bene)

Recapiti
Tel. 079260228

Email

Scheda COD. 4280698 - Pubblicata dal 19/01/2026

La presente scheda di vendita riporta integralmente informazioni e documenti pervenuti ufficialmente dal Ministero e dal professionista incaricato.

La sua pubblicazione è prolungata, in conformità agli accordi con il Tribunale, con l’obiettivo di garantire un’informazione continua e aggiornata, nel rispetto delle tempistiche procedurali.

Pubblicazione notarizzata su Blockchain


Pubblicazione autorizzata dall’Autorità competente, è vietata ogni ripubblicazione o riproduzione anche parziale


Ti interessa questa vendita?

Documentazione

Visualizza su mappa

Mappa geografica del bene

Storico delle vendite

Data venditaPrezzo base
19/10/2023€ 140.000,00
25/01/2024€ 105.000,00
23/04/2024€ 78.750,00
18/07/2024€ 59.062,50
14/11/2024€ 44.296,87
06/02/2025€ 33.222,65
09/03/2026€ 20.000,00

Punti di interesse

Fonte dati

Nel raggio di {{range}}Km

Loading...
  • {{ getIcon(poi.type) }} {{ poi.localized }}: {{poi.count}}
  • {{ getIcon(poi.type) }} {{ poi.localized }}: {{poi.count}}
Dati non disponibili