Astegiudiziarie.it è parte di Rete Aste Network

Accedi o registrati

Non sei ancora registrato?

Oppure

Accedi

Appartamento

via Tesoro, 23, Taranto (TA)

€ 34.000,00

Offerta minima € 25.500,00


Codice A4343055

Lotto Lotto unico

Data udienza 17/03/2026 ore 16:00

Termine presentazione offerte 16/03/2026 ore 12:00

Appartamento

via Tesoro, 23, Taranto (TA)

€ 34.000,00

Offerta minima € 25.500,00


Codice A4343055

Lotto Lotto unico

Data udienza 17/03/2026 ore 16:00

Termine presentazione offerte 16/03/2026 ore 12:00

Ti interessa questa vendita?

Documentazione

Visualizza su mappa

Mappa geografica del bene

Punti di interesse

Fonte dati

Nel raggio di {{range}}Km

Loading...
  • {{ getIcon(poi.type) }} {{ poi.localized }}: {{poi.count}}
  • {{ getIcon(poi.type) }} {{ poi.localized }}: {{poi.count}}
Dati non disponibili

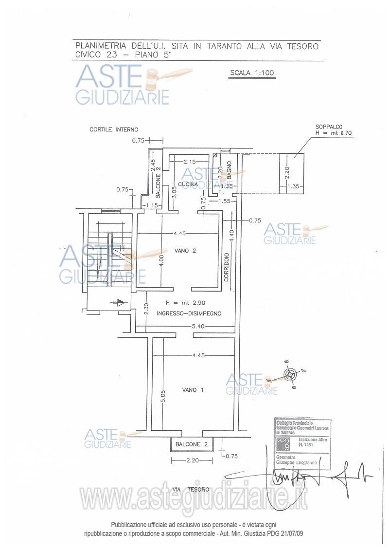
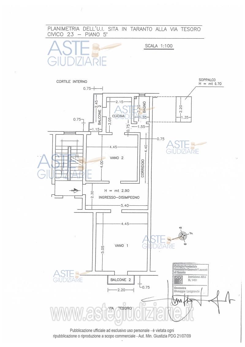
Appartamento al piano quinto, composto da ingresso-disimpegno, due vani più cucina oltre a un bagno e accessorio corridoio.

Indirizzo
via Tesoro, 23, Taranto (TA)


Codice asta
4343055


Lotto
Lotto unico


Numero beni
1


Genere
Immobili


Categoria
Immobile residenziale


Valore di stima
-


Appartamento

Appartamento al piano quinto, composto da ingresso-disimpegno, due vani più cucina oltre a un bagno e accessorio corridoio.

Indirizzo
Via Tesoro, 23, 74121 Taranto TA, Italia, Taranto (TA)


Piano
-


Disponibilità
-


Vani
4,50


Bagni
1


Metri quadri
76,80


Certificazione energetica
-


Data udienza
17/03/2026 ore 16:00


Tipo di vendita
Senza incanto


Modalità di vendita
Asincrona telematica


Luogo
N.A. -


Luogo presentazione offerte
-


Termine presentazione offerte
16/03/2026 ore 12:00


Prezzo base
€ 34.000,00


Offerta minima
€ 25.500,00


Rialzo minimo in caso di gara
€ 1.000,00


Deposito cauzionale
10% del prezzo offerto


Deposito in conto spese
-


Tribunale
Taranto

Tipo di procedura
Espropriazione immobiliare (cartabia)

Ruolo
150/2025

Giudice
Paiano Andrea

Recapiti
-

Email
-

Delegato alla vendita
D'ambrosio Alessandro
(Procede alle operazioni di vendita)

Recapiti
-

Email
-

Custode giudiziario
D'ambrosio Alessandro
(Gestisce la visita del bene)

Recapiti
-

Scheda COD. 4343055 - Pubblicata dal 16/01/2026

La presente scheda di vendita riporta integralmente informazioni e documenti pervenuti ufficialmente dal Ministero e dal professionista incaricato.


Pubblicazione autorizzata dall’Autorità competente, è vietata ogni ripubblicazione o riproduzione anche parziale


Ti interessa questa vendita?

Documentazione

Visualizza su mappa

Mappa geografica del bene

Punti di interesse

Fonte dati

Nel raggio di {{range}}Km

Loading...
  • {{ getIcon(poi.type) }} {{ poi.localized }}: {{poi.count}}
  • {{ getIcon(poi.type) }} {{ poi.localized }}: {{poi.count}}
Dati non disponibili