Astegiudiziarie.it è parte di Rete Aste Network

Accedi o registrati

Non sei ancora registrato?

Oppure

Accedi

Appartamento

Frazione Franco Zina 24, Strona (BI)

€ 21.937,50

Offerta minima € 16.453,13


Codice A4334454

Lotto 1

Data udienza 12/05/2026 ore 15:30

Termine presentazione offerte 11/05/2026 ore 13:00

Appartamento

Frazione Franco Zina 24, Strona (BI)

€ 21.937,50

Offerta minima € 16.453,13


Codice A4334454

Lotto 1

Data udienza 12/05/2026 ore 15:30

Termine presentazione offerte 11/05/2026 ore 13:00

Ti interessa questa vendita?

Documentazione

Visualizza su mappa

Mappa geografica del bene

Punti di interesse

Fonte dati

Nel raggio di {{range}}Km

Loading...
  • {{ getIcon(poi.type) }} {{ poi.localized }}: {{poi.count}}
  • {{ getIcon(poi.type) }} {{ poi.localized }}: {{poi.count}}
Dati non disponibili

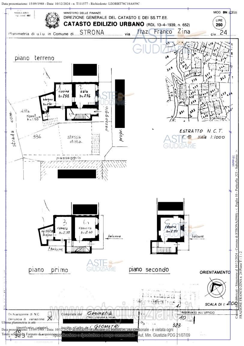
Fabbricato di civile abitazione elevato a tre piani fuori terra il tutto entrostante porzione di area contraddistinta al foglio 10 particella 323 del Catasto Terreni, nonché appezzamento di terreno...

Indirizzo
Frazione Franco Zina 24, Strona (BI)


Codice asta
4334454


Lotto
1


Numero beni
1


Genere
Immobili


Categoria
Immobile residenziale


Valore di stima
-


Appartamento

Fabbricato di civile abitazione elevato a tre piani fuori terra il tutto entrostante porzione di area contraddistinta al foglio 10 particella 323 del Catasto Terreni, nonché appezzamento di terreno adiacente e pertinenziale al suddetto fabbricato distinto con il mappale n.336 dello stesso foglio di mappa. Il fabbricato è composto da ingresso/vano scala, sala, cucina, bagno, ripostiglio esterno al piano terreno; al piano primo si trovano il disimpegno/vano scala, due camere da letto, un bagno e due balconi; al piano secondo si trova un’altra camera con balcone. Il lotto comprende anche altri terreni non identificabili con esattezza trattandosi di appezzamenti non recintati, distanti dall’abitazione invasi da sterpaglie e rovi.

Indirizzo
Frazione Franco Zina 24, Strona (BI)


Piano
-


Disponibilità
LIBERO


Vani
6,00


Bagni
-


Metri quadri
110,00


Certificazione energetica
-


Data udienza
12/05/2026 ore 15:30


Tipo di vendita
Senza incanto


Modalità di vendita
Asincrona telematica


Luogo
N.A. -


Luogo presentazione offerte
-


Termine presentazione offerte
11/05/2026 ore 13:00


Prezzo base
€ 21.937,50


Offerta minima
€ 16.453,13


Rialzo minimo in caso di gara
€ 500,00


Deposito cauzionale
10% del prezzo offerto


Deposito in conto spese
-


Tribunale
Biella

Tipo di procedura
Espropriazione immobiliare (cartabia)

Ruolo
88/2024

Giudice
Migliore Emanuele

Recapiti
-

Email
-

Delegato alla vendita
Montarolo Carla
(Procede alle operazioni di vendita)

Recapiti
-

Email
-

Custode giudiziario
Montarolo Carla
(Gestisce la visita del bene)

Recapiti
Tel. 0152520367

Scheda COD. 4334454 - Pubblicata dal 26/02/2026

La presente scheda di vendita riporta integralmente informazioni e documenti pervenuti ufficialmente dal Ministero e dal professionista incaricato.


Pubblicazione autorizzata dall’Autorità competente, è vietata ogni ripubblicazione o riproduzione anche parziale


Ti interessa questa vendita?

Documentazione

Visualizza su mappa

Mappa geografica del bene

Storico delle vendite

Data venditaPrezzo base
11/11/2025€ 39.000,00
10/02/2026€ 29.250,00
12/05/2026€ 21.937,50

Punti di interesse

Fonte dati

Nel raggio di {{range}}Km

Loading...
  • {{ getIcon(poi.type) }} {{ poi.localized }}: {{poi.count}}
  • {{ getIcon(poi.type) }} {{ poi.localized }}: {{poi.count}}
Dati non disponibili