Astegiudiziarie.it è parte di Rete Aste Network

Accedi o registrati

Non sei ancora registrato?

Oppure

Accedi

Abitazione di tipo popolare

Corso Repubblica, 249, 09010 Siliqua SU, Italia, Siliqua (SU)

€ 30.100,00

Offerta minima € 22.575,00


Codice A396867

Lotto Lotto unico

Data vendita 10/03/2026 ore 09:00

Termine presentazione offerte 09/03/2026 ore 13:00

Abitazione di tipo popolare

Corso Repubblica, 249, 09010 Siliqua SU, Italia, Siliqua (SU)

€ 30.100,00

Offerta minima € 22.575,00


Codice A396867

Lotto Lotto unico

Data Vendita 10/03/2026 ore 09:00

Termine presentazione offerte 09/03/2026 ore 13:00

Vendita deserta

Ti interessa questa vendita?

Documentazione

Visualizza su mappa

Mappa geografica del bene

Punti di interesse

Fonte dati

Nel raggio di {{range}}Km

Loading...
  • {{ getIcon(poi.type) }} {{ poi.localized }}: {{poi.count}}
  • {{ getIcon(poi.type) }} {{ poi.localized }}: {{poi.count}}
Dati non disponibili

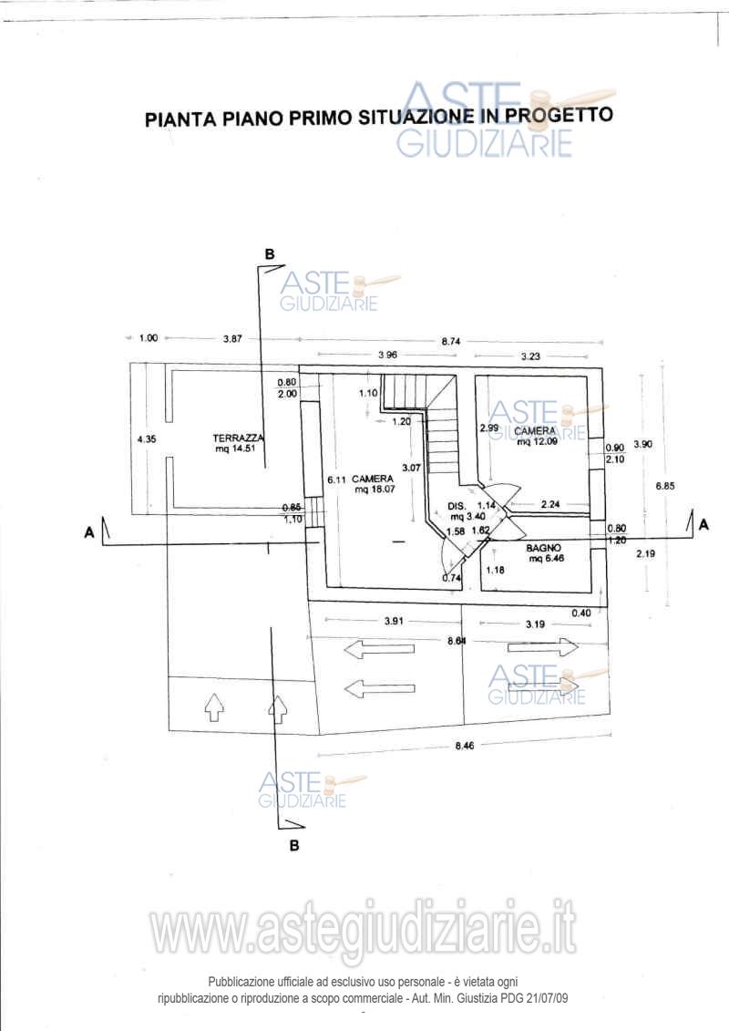
Piena proprietà del fabbricato ad uso civile abitazione, disposto due livelli, avente accesso dal Corso Repubblica n. 249, costituito di: soggiorno, sala da pranzo, cucina, un bagno, servizio e cortile al piano terra; due camere e un disimpegno al piano primo; completa la consistenza un locale ad uso deposito ubicato nel cortile al piano terra.

Indirizzo
Corso Repubblica, 249, 09010 Siliqua SU, Italia, Siliqua (SU)


Codice asta
396867


Lotto
Lotto unico


Numero beni
1


Genere
Immobili


Categoria
Immobile residenziale


Valore di stima
-


Abitazione di tipo popolare

In Comune di Siliqua: piena proprietà del fabbricato ad uso civile abitazione, disposto due livelli, avente accesso dal Corso Repubblica n. 249, costituito di: soggiorno, sala da pranzo, cucina, un bagno, servizio e cortile al piano terra; due camere e un disimpegno al piano primo; completa la consistenza un locale ad uso deposito ubicato nel cortile al piano terra.

Indirizzo
Corso Repubblica n. 249, Siliqua (CA)


Piano
-


Disponibilità
-


Vani
8,00


Bagni
-


Metri quadri
190,00


Certificazione energetica
-


Tribunale
Cagliari

Tipo di procedura
Contenzioso civile

Ruolo
8440/2014

Giudice
Aquaro Vincenzo

Recapiti
-

Email
-

Delegato alla vendita
Vadilonga Massimiliano
(Procede alle operazioni di vendita)

Recapiti
Tel. 07060222574

Email
ufficiouniconotai@pec.it

Scheda COD. 396867 - Pubblicata dal 16/01/2026

La presente scheda di vendita riporta integralmente informazioni e documenti pervenuti ufficialmente dal Ministero e dal professionista incaricato.

La sua pubblicazione è prolungata, in conformità agli accordi con il Tribunale, con l’obiettivo di garantire un’informazione continua e aggiornata, nel rispetto delle tempistiche procedurali.

Pubblicazione notarizzata su Blockchain


Pubblicazione autorizzata dall’Autorità competente, è vietata ogni ripubblicazione o riproduzione anche parziale


Ti interessa questa vendita?

Documentazione

Visualizza su mappa

Mappa geografica del bene

Storico delle vendite

Data venditaPrezzo base
19/10/2017€ 81.400,00
23/11/2017€ 81.400,00
22/02/2018€ 81.400,00
29/03/2018€ 81.400,00
25/02/2020€ 73.300,00
11/03/2025€ 58.640,00
15/07/2025€ 46.912,00
18/11/2025€ 37.600,00
10/03/2026€ 30.100,00

Punti di interesse

Fonte dati

Nel raggio di {{range}}Km

Loading...
  • {{ getIcon(poi.type) }} {{ poi.localized }}: {{poi.count}}
  • {{ getIcon(poi.type) }} {{ poi.localized }}: {{poi.count}}
Dati non disponibili