Astegiudiziarie.it è parte di Rete Aste Network

Accedi o registrati

Non sei ancora registrato?

Oppure

Accedi

Abitazione di tipo civile

Via Guglielmo Pepe, 14, 88040 Settingiano CZ, Italia, Settingiano (CZ)

€ 79.200,00

Offerta minima € 59.400,00


Codice A4329227

Lotto 0

Data udienza 24/02/2026 ore 16:30

Termine presentazione offerte 23/02/2026 ore 12:00

Abitazione di tipo civile

Via Guglielmo Pepe, 14, 88040 Settingiano CZ, Italia, Settingiano (CZ)

€ 79.200,00

Offerta minima € 59.400,00


Codice A4329227

Lotto 0

Data udienza 24/02/2026 ore 16:30

Termine presentazione offerte 23/02/2026 ore 12:00

Ti interessa questa vendita?

Documentazione

Visualizza su mappa

Mappa geografica del bene

Punti di interesse

Fonte dati

Nel raggio di {{range}}Km

Loading...
  • {{ getIcon(poi.type) }} {{ poi.localized }}: {{poi.count}}
  • {{ getIcon(poi.type) }} {{ poi.localized }}: {{poi.count}}
Dati non disponibili

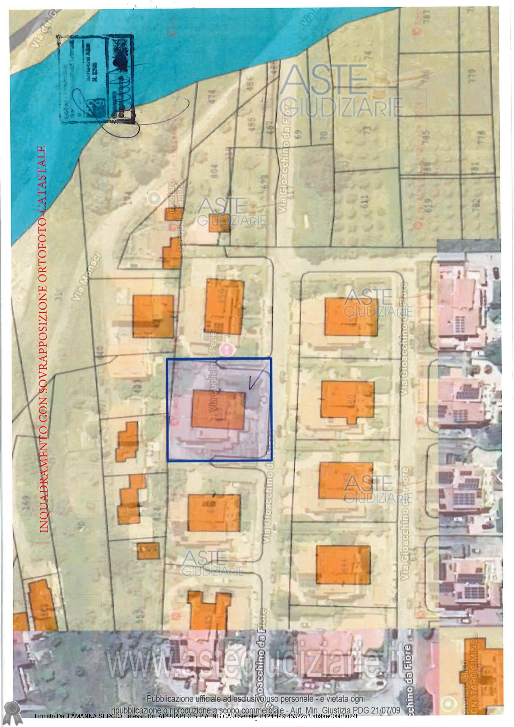
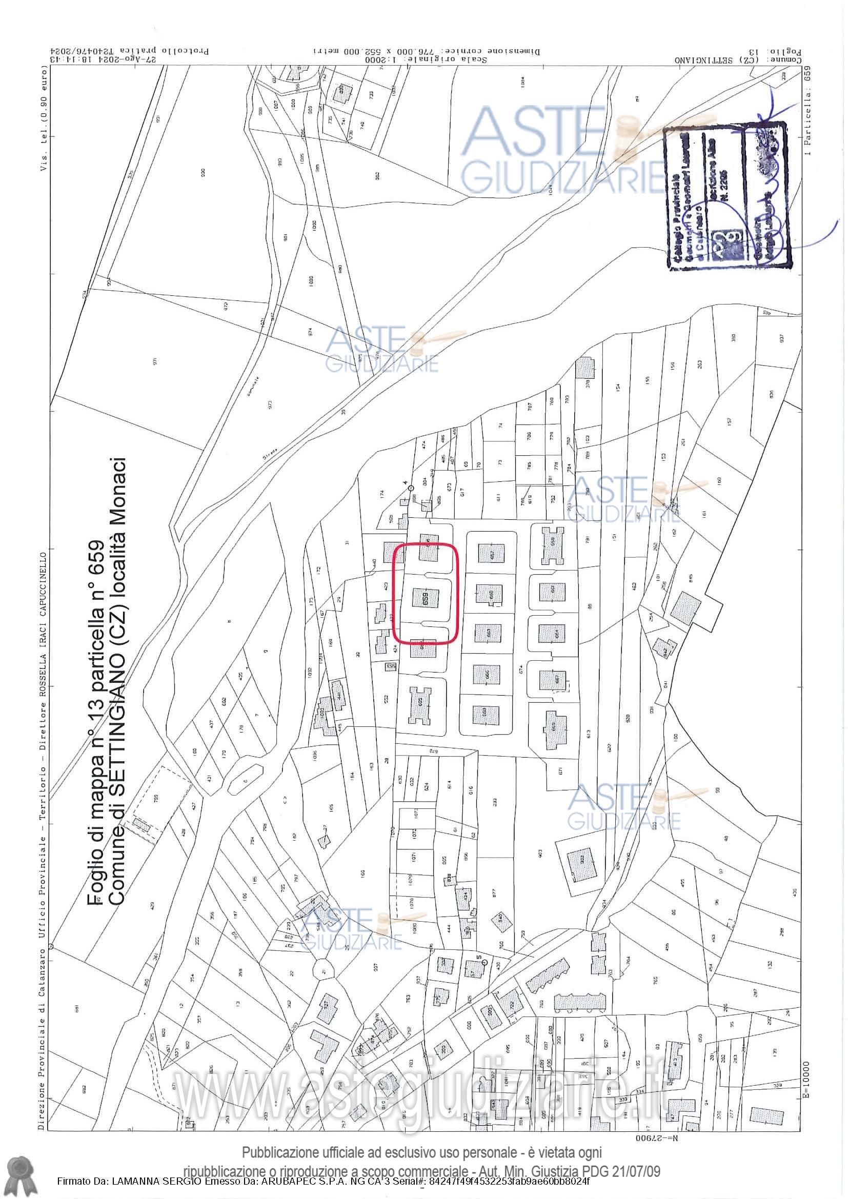
“Appartamento in villette a schiera quadrifamiliare, in tre piani fuori terra, sito in Comune di Settingiano (CZ), frazione Martelletto, via Guglielmo Pepe 14 (ex via Monaci), nel NCEU foglio 13 part.lla 659 sub 1, via Monaci snc, piano T - 1 - 2, cat. A/2, classe U, consistenza 7 vani, superficie 165 mq., escluse aree scoperte di 145 mq.”

Indirizzo
Via Guglielmo Pepe, 14, 88040 Settingiano CZ, Italia, Settingiano (CZ)


Codice asta
4329227


Lotto
0


Numero beni
1


Genere
Immobili


Categoria
Immobile residenziale


Valore di stima
-


Abitazione di tipo civile

Appartamento in villette a schiera quadrifamiliare, in tre piani fuori terra, piano T-1-2, cat. A/2, consistenza 7 vani, superficie mq 165, escluse aree scoperte di mq 145

Indirizzo
Frazione Martelletto, via Guglielmo Pepe 14 (ex via Monaci), Settingiano (CZ)


Piano
T


Disponibilità
-


Vani
7,00


Bagni
-


Metri quadri
165,00


Certificazione energetica
-


Dati catastali

Foglio:13, Particella:659, Subalterno:1


Data udienza
24/02/2026 ore 16:30


Tipo di vendita
Senza incanto


Modalità di vendita
Asincrona telematica


Luogo
N.A. -


Luogo presentazione offerte
-


Termine presentazione offerte
23/02/2026 ore 12:00


Prezzo base
€ 79.200,00


Offerta minima
€ 59.400,00


Rialzo minimo in caso di gara
€ 1.500,00


Deposito cauzionale
10% del prezzo offerto


Deposito in conto spese
-


Tribunale
Catanzaro

Tipo di procedura
Espropriazione immobiliare (cartabia)

Ruolo
27/2024

Giudice
Di credico Chiara

Recapiti
-

Email
-

Delegato alla vendita
Rotundo Carlo
(Gestisce la visita del bene)

Recapiti
Cell. 3402563290
Tel. 3402563290

Delegato alla vendita
Rotundo Carlo
(Procede alle operazioni di vendita)

Recapiti
Cell. 3402563290
Tel. 0961721253

Email
avv.rotundo@studiolegis.net

Scheda COD. 4329227 - Pubblicata dal 12/12/2025

La presente scheda di vendita riporta integralmente informazioni e documenti pervenuti ufficialmente dal Ministero e dal professionista incaricato.


Pubblicazione autorizzata dall’Autorità competente, è vietata ogni ripubblicazione o riproduzione anche parziale


Ti interessa questa vendita?

Documentazione

Visualizza su mappa

Mappa geografica del bene

Storico delle vendite

Data venditaPrezzo base
22/07/2025€ 132.000,00
11/11/2025€ 99.000,00
24/02/2026€ 79.200,00

Punti di interesse

Fonte dati

Nel raggio di {{range}}Km

Loading...
  • {{ getIcon(poi.type) }} {{ poi.localized }}: {{poi.count}}
  • {{ getIcon(poi.type) }} {{ poi.localized }}: {{poi.count}}
Dati non disponibili