Astegiudiziarie.it è parte di Rete Aste Network

Accedi o registrati

Non sei ancora registrato?

Oppure

Accedi

Abitazione di tipo civile

Via 7 Marzo n. 18, 00037 Segni RM, Italia, Segni (RM)

€ 95.000,00

Offerta minima € 71.250,00


Codice A4344942

Lotto Lotto unico

Data udienza 17/04/2026 ore 15:00

Termine presentazione offerte 16/04/2026 ore 23:59

Abitazione di tipo civile

Via 7 Marzo n. 18, 00037 Segni RM, Italia, Segni (RM)

€ 95.000,00

Offerta minima € 71.250,00


Codice A4344942

Lotto Lotto unico

Data udienza 17/04/2026 ore 15:00

Termine presentazione offerte 16/04/2026 ore 23:59

Ti interessa questa vendita?

Visualizza su mappa

Mappa geografica del bene

Punti di interesse

Fonte dati

Nel raggio di {{range}}Km

Loading...
  • {{ getIcon(poi.type) }} {{ poi.localized }}: {{poi.count}}
  • {{ getIcon(poi.type) }} {{ poi.localized }}: {{poi.count}}
Dati non disponibili

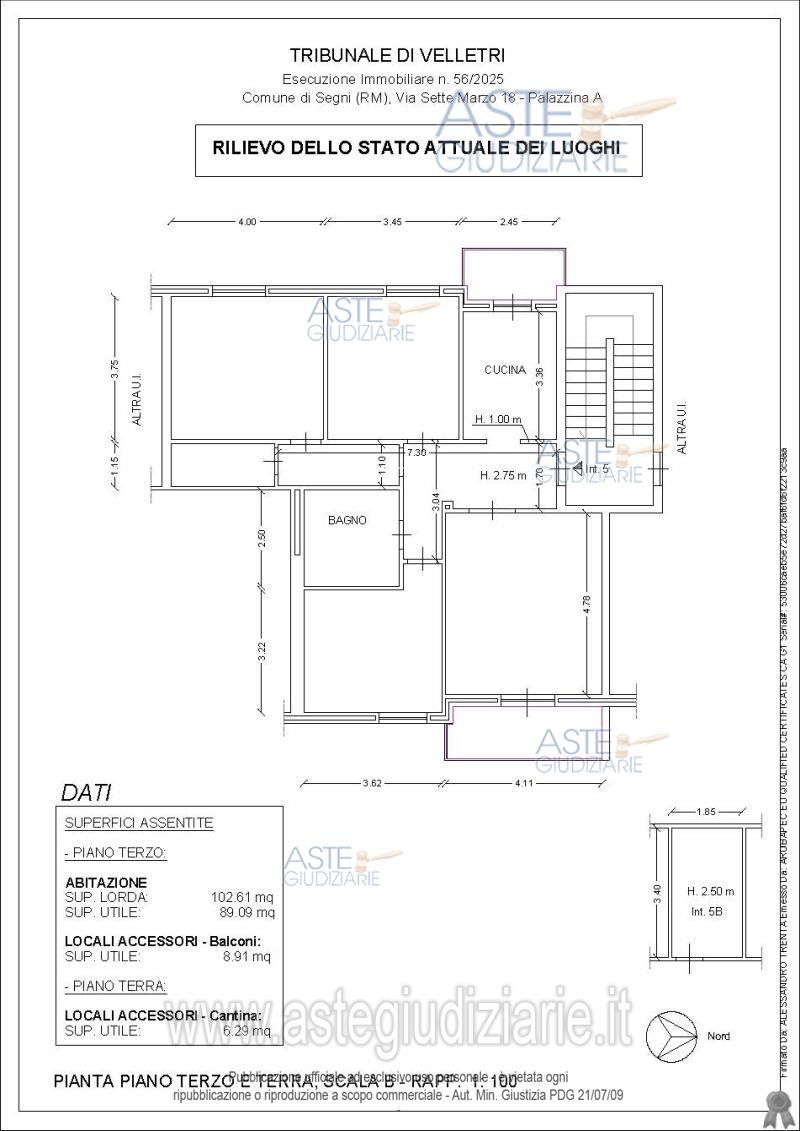
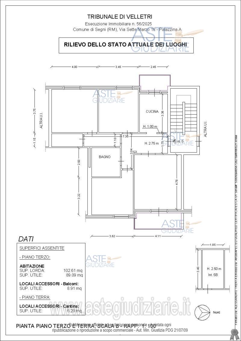
Diritto di proprietà superficiaria di appartamento sito in Via Sette Marzo n. 18, piano terzo interno 5, edificio "A", scala B, con annessa cantina al piano terra, distinta con interno 5/B e posto auto pertinenziale scoperto

Indirizzo
Via 7 Marzo n. 18, 00037 Segni RM, Italia, Segni (RM)


Codice asta
4344942


Lotto
Lotto unico


Numero beni
1


Genere
Immobili


Categoria
Immobile residenziale


Valore di stima
-


Abitazione di tipo civile

Diritto di proprietà superficiaria di appartamento sito in Via Sette Marzo n. 18, piano terzo interno 5, edificio "A", scala B, con annessa cantina al piano terra, distinta con interno 5/B e posto auto pertinenziale scoperto

Indirizzo
Via 7 Marzo n. 18, 00037 Segni RM, Italia, Segni (RM)


Piano
3 T


Disponibilità
Occupato


Vani
6,50


Bagni
-


Metri quadri
107,00


Certificazione energetica
-


Dati catastali

Foglio:31, Particella:630, Subalterno:13


Data udienza
17/04/2026 ore 15:00


Tipo di vendita
Senza incanto


Modalità di vendita
Asincrona telematica


Luogo
N.A. -


Luogo presentazione offerte
-


Termine presentazione offerte
16/04/2026 ore 23:59


Prezzo base
€ 95.000,00


Offerta minima
€ 71.250,00


Rialzo minimo in caso di gara
€ 5.000,00


Deposito cauzionale
10% del prezzo offerto


Deposito in conto spese
-


Tribunale
Velletri

Tipo di procedura
Espropriazione immobiliare (cartabia)

Ruolo
56/2025

Giudice
Di serafino Dott.ssa anna luisa

Recapiti
-

Email
-

Delegato alla vendita
Pistoia Avv. paolo
(Procede alle operazioni di vendita)
(Gestisce la visita del bene)

Recapiti
-

In ottemperanza a quanto disposto dal G.E. (verbale di udienza) in tutti gli avvisi dovrà essere indicato che l’immobile oggetto di espropriazione è stato realizzato in regime di edilizia residenziale pubblica convenzionata, come risulta dalla Convenzione Edilizia stipulata, ai sensi dell’art. 35 della L. 865/71, in data 27/11/1976 dalla società costruttrice “Cooperativa Segni 70” con il Comune di Segni, trascritta presso la Conservatoria dei R.R. di Velletri con formalità n. 614 del 02/03/1977

Scheda COD. 4344942 - Pubblicata dal 20/02/2026

La presente scheda di vendita riporta integralmente informazioni e documenti pervenuti ufficialmente dal Ministero e dal professionista incaricato.


Pubblicazione autorizzata dall’Autorità competente, è vietata ogni ripubblicazione o riproduzione anche parziale


Ti interessa questa vendita?

Visualizza su mappa

Mappa geografica del bene

Punti di interesse

Fonte dati

Nel raggio di {{range}}Km

Loading...
  • {{ getIcon(poi.type) }} {{ poi.localized }}: {{poi.count}}
  • {{ getIcon(poi.type) }} {{ poi.localized }}: {{poi.count}}
Dati non disponibili