Astegiudiziarie.it è parte di Rete Aste Network

Accedi o registrati

Non sei ancora registrato?

Oppure

Accedi

Appartamento

Via PIAVE 8, Scaldasole (PV)

€ 72.100,00

Offerta minima € 54.075,00


Codice A4350139

Lotto 2

Data udienza 23/06/2026 ore 15:00

Termine presentazione offerte 22/06/2026 ore 12:00

Appartamento

Via PIAVE 8, Scaldasole (PV)

€ 72.100,00

Offerta minima € 54.075,00


Codice A4350139

Lotto 2

Data udienza 23/06/2026 ore 15:00

Termine presentazione offerte 22/06/2026 ore 12:00

Ti interessa questa vendita?

Documentazione

Visualizza su mappa

Mappa geografica del bene

Punti di interesse

Fonte dati

Nel raggio di {{range}}Km

Loading...
  • {{ getIcon(poi.type) }} {{ poi.localized }}: {{poi.count}}
  • {{ getIcon(poi.type) }} {{ poi.localized }}: {{poi.count}}
Dati non disponibili

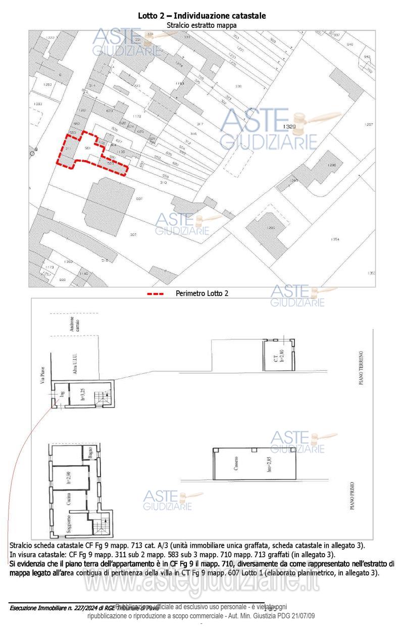
Abitazione al piano terra

Indirizzo
Via PIAVE 8, Scaldasole (PV)


Codice asta
4350139


Lotto
2


Numero beni
1


Genere
Immobili


Categoria
Immobile residenziale


Valore di stima
-


Appartamento

Abitazione al piano terra composta da un piccolo locale ingresso e altro locale di abitazione con scala di salita per il piano primo con corridoio, due camere da letto, cucina, soggiorno, bagno e in corpo staccato dall’abitazione, accessibile da androne carraio e corte, fabbricato con locali accessori su due piani non collegati internamente di cui al piano terra ex locale caldaia e autorimessa con piccola area di pertinenza esclusiva, il tutto per una superficie commerciale complessiva di 142 mq

Indirizzo
Via PIAVE 8, Scaldasole (PV)


Piano
-


Disponibilità
LIBERO


Vani
50,00


Bagni
-


Metri quadri
142,00


Certificazione energetica
-


Data udienza
23/06/2026 ore 15:00


Tipo di vendita
Senza incanto


Modalità di vendita
Asincrona telematica


Luogo
N.A. -


Luogo presentazione offerte
-


Termine presentazione offerte
22/06/2026 ore 12:00


Prezzo base
€ 72.100,00


Offerta minima
€ 54.075,00


Rialzo minimo in caso di gara
€ 1.000,00


Deposito cauzionale
10% del prezzo offerto


Deposito in conto spese
-


Tribunale
Pavia

Tipo di procedura
Espropriazione immobiliare (cartabia)

Ruolo
227/2024

Giudice
Appiani Francesca claris

Recapiti
-

Email
-

Delegato alla vendita
Abela Gaetano
(Procede alle operazioni di vendita)

Recapiti
-

Email
-

Custode giudiziario
Giudiziarie di vigevano Istituto vendite
(Gestisce la visita del bene)

Recapiti
Tel. 0381691137

Scheda COD. 4350139 - Pubblicata dal 22/04/2026

La presente scheda di vendita riporta integralmente informazioni e documenti pervenuti ufficialmente dal Ministero e dal professionista incaricato.


Pubblicazione autorizzata dall’Autorità competente, è vietata ogni ripubblicazione o riproduzione anche parziale


Ti interessa questa vendita?

Documentazione

Visualizza su mappa

Mappa geografica del bene

Punti di interesse

Fonte dati

Nel raggio di {{range}}Km

Loading...
  • {{ getIcon(poi.type) }} {{ poi.localized }}: {{poi.count}}
  • {{ getIcon(poi.type) }} {{ poi.localized }}: {{poi.count}}
Dati non disponibili