Astegiudiziarie.it è parte di Rete Aste Network

Accedi o registrati

Non sei ancora registrato?

Oppure

Accedi

Abitazione di tipo civile

Viale Italia, 85037 San Brancato PZ, Italia, Sant'Arcangelo (PZ)

€ 122.000,00

Offerta minima € 91.500,00


Codice A4344946

Lotto Lotto unico

Data udienza 08/04/2026 ore 15:00

Termine presentazione offerte 07/04/2026 ore 13:00

Abitazione di tipo civile

Viale Italia, 85037 San Brancato PZ, Italia, Sant'Arcangelo (PZ)

€ 122.000,00

Offerta minima € 91.500,00


Codice A4344946

Lotto Lotto unico

Data udienza 08/04/2026 ore 15:00

Termine presentazione offerte 07/04/2026 ore 13:00

Ti interessa questa vendita?

Documentazione

Visualizza su mappa

Mappa geografica del bene

Punti di interesse

Fonte dati

Nel raggio di {{range}}Km

Loading...
  • {{ getIcon(poi.type) }} {{ poi.localized }}: {{poi.count}}
  • {{ getIcon(poi.type) }} {{ poi.localized }}: {{poi.count}}
Dati non disponibili

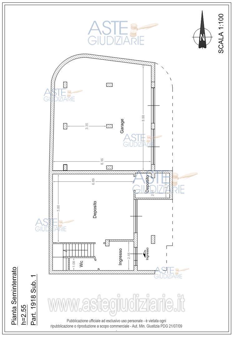
Abitazione, ubicata in Sant’Arcangelo (PZ) Viale Italia, snc Fg.18 Part. 1918 Sub.1.

Indirizzo
Viale Italia, 85037 San Brancato PZ, Italia, Sant'Arcangelo (PZ)


Codice asta
4344946


Lotto
Lotto unico


Numero beni
1


Genere
Immobili


Categoria
Immobile residenziale


Valore di stima
-


Abitazione di tipo civile

QUOTA 1/1 Abitazione, ubicata in Sant’Arcangelo (PZ) Viale Italia, snc Fg.18 Part. 1918 Sub.1.

Indirizzo
Viale Italia, 85037 San Brancato PZ, Italia, Sant'Arcangelo (PZ)


Piano
-


Disponibilità
OCCUPATO


Vani
8,00


Bagni
-


Metri quadri
210,00


Certificazione energetica
-


Dati catastali

Foglio:18, Particella:1918, Subalterno:1


Data udienza
08/04/2026 ore 15:00


Tipo di vendita
Senza incanto


Modalità di vendita
Asincrona telematica


Luogo
N.A. -


Luogo presentazione offerte
-


Termine presentazione offerte
07/04/2026 ore 13:00


Prezzo base
€ 122.000,00


Offerta minima
€ 91.500,00


Rialzo minimo in caso di gara
-


Deposito cauzionale
10% del prezzo offerto


Deposito in conto spese
-


Tribunale
Lagonegro

Tipo di procedura
Esecuzione immobiliare post legge 80

Ruolo
84/2014

Giudice
De piano Aniello maria

Recapiti
-

Email
-

Delegato alla vendita
Alfano Paolo
(Procede alle operazioni di vendita)

Recapiti
Cell. 3475175268

Email
paolo.alfano@gmail.com

Custode giudiziario
Carnevale Massimiliano
(Gestisce la visita del bene)

Recapiti
Cell. 335495522

Scheda COD. 4344946 - Pubblicata dal 13/02/2026

La presente scheda di vendita riporta integralmente informazioni e documenti pervenuti ufficialmente dal Ministero e dal professionista incaricato.


Pubblicazione autorizzata dall’Autorità competente, è vietata ogni ripubblicazione o riproduzione anche parziale


Ti interessa questa vendita?

Documentazione

Visualizza su mappa

Mappa geografica del bene

Punti di interesse

Fonte dati

Nel raggio di {{range}}Km

Loading...
  • {{ getIcon(poi.type) }} {{ poi.localized }}: {{poi.count}}
  • {{ getIcon(poi.type) }} {{ poi.localized }}: {{poi.count}}
Dati non disponibili