Astegiudiziarie.it è parte di Rete Aste Network

Accedi o registrati

Non sei ancora registrato?

Oppure

Accedi

Abitazione di tipo civile

Via Cimabue, 22 Piano 2 interno 5, Sant'Antimo (NA)

€ 99.563,00

Offerta minima € 74.672,00


Codice A4275859

Lotto Lotto unico

Data udienza 26/02/2026 ore 16:00

Termine presentazione offerte 25/02/2026 ore 12:00

Abitazione di tipo civile

Via Cimabue, 22 Piano 2 interno 5, Sant'Antimo (NA)

€ 99.563,00

Offerta minima € 74.672,00


Codice A4275859

Lotto Lotto unico

Data udienza 26/02/2026 ore 16:00

Termine presentazione offerte 25/02/2026 ore 12:00

Ti interessa questa vendita?

Documentazione

Visualizza su mappa

Mappa geografica del bene

Punti di interesse

Fonte dati

Nel raggio di {{range}}Km

Loading...
  • {{ getIcon(poi.type) }} {{ poi.localized }}: {{poi.count}}
  • {{ getIcon(poi.type) }} {{ poi.localized }}: {{poi.count}}
Dati non disponibili

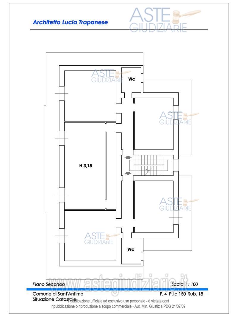
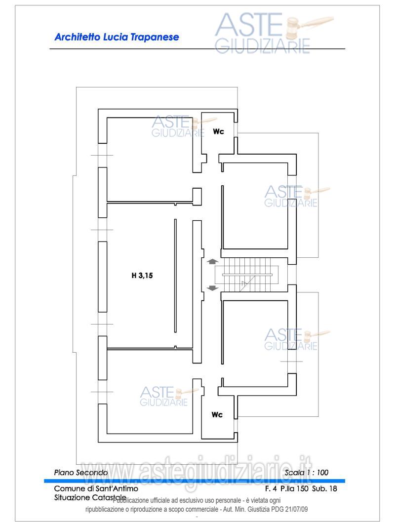
Diritto pieno e intera proprietà unità immobiliare ad uso residenziale in Sant’Antimo, Via Cimabue civico 22 - identificazione catastale: foglio 4, p.lla 150, sub. 18, di sup. catastale complessiva mq 198 (aree scoperte mq. 12); consistenza 7 vani, cat. A/2, SUP interna dell’appartamento circa mq 144,79, balconi circa mq 76,92. Trattasi di appartamento al 2° piano di fabbricato ad uso famigliare, occupato dai debitori esecutati.

Indirizzo
Via Cimabue, 22 Piano 2 interno 5, Sant'Antimo (NA)


Codice asta
4275859


Lotto
Lotto unico


Numero beni
1


Genere
Immobili


Categoria
Immobile residenziale


Valore di stima
-


Abitazione di tipo civile

Diritto pieno e intera proprietà unità immobiliare ad uso residenziale in Sant’Antimo, Via Cimabue civico 22 - identificazione catastale: foglio 4, p.lla 150, sub. 18, di sup. catastale complessiva mq 198 (aree scoperte mq. 12); consistenza 7 vani, cat. A/2, SUP interna dell’appartamento circa mq 144,79, balconi circa mq 76,92. Trattasi di appartamento al 2° piano di fabbricato ad uso famigliare, occupato dai debitori esecutati

Indirizzo
Via Cimabue, 22, Sant'Antimo (NA)


Piano
2


Disponibilità
OCCUPATO


Vani
7,00


Bagni
-


Metri quadri
144,79


Certificazione energetica
-


Dati catastali

Foglio:4, Particella:150, Subalterno:18


Data udienza
26/02/2026 ore 16:00


Tipo di vendita
Senza incanto


Modalità di vendita
Asincrona telematica


Luogo
-


Luogo presentazione offerte
-


Termine presentazione offerte
25/02/2026 ore 12:00


Prezzo base
€ 99.563,00


Offerta minima
€ 74.672,00


Rialzo minimo in caso di gara
€ 3.000,00


Deposito cauzionale
10% del prezzo offerto


Deposito in conto spese
-


Tribunale
Napoli

Tipo di procedura
Esecuzione immobiliare post legge 80

Ruolo
1310/2013

Custode giudiziario
Russo Francesco
(Procede alle operazioni di vendita)
(Gestisce la visita del bene)

Recapiti
Tel. 0815404454

Scheda COD. 4275859 - Pubblicata dal 21/10/2025

La presente scheda di vendita riporta integralmente informazioni e documenti pervenuti ufficialmente dal Ministero e dal professionista incaricato.

Pubblicazione notarizzata su Blockchain


Pubblicazione autorizzata dall’Autorità competente, è vietata ogni ripubblicazione o riproduzione anche parziale


Ti interessa questa vendita?

Documentazione

Visualizza su mappa

Mappa geografica del bene

Storico delle vendite

Data venditaPrezzo base
21/09/2023€ 177.000,00
28/05/2024€ 132.750,00
26/02/2026€ 99.563,00

Punti di interesse

Fonte dati

Nel raggio di {{range}}Km

Loading...
  • {{ getIcon(poi.type) }} {{ poi.localized }}: {{poi.count}}
  • {{ getIcon(poi.type) }} {{ poi.localized }}: {{poi.count}}
Dati non disponibili