Astegiudiziarie.it è parte di Rete Aste Network

Accedi o registrati

Non sei ancora registrato?

Oppure

Accedi

Abitazione di tipo economico

Via Nazionale n. 44/A Ex 60, San Teodoro (SS)

€ 460.000,00

Offerta minima € 460.000,00


Codice A320572

Lotto Unico

Data udienza 10/02/2026 ore 16:00

Termine presentazione offerte 09/02/2026 ore 12:00

Abitazione di tipo economico

Via Nazionale n. 44/A Ex 60, San Teodoro (SS)

€ 460.000,00

Offerta minima € 460.000,00


Codice A320572

Lotto Unico

Data udienza 10/02/2026 ore 16:00

Termine presentazione offerte 09/02/2026 ore 12:00

Ti interessa questa vendita?

Visualizza su mappa

Mappa geografica del bene

Punti di interesse

Fonte dati

Nel raggio di {{range}}Km

Loading...
  • {{ getIcon(poi.type) }} {{ poi.localized }}: {{poi.count}}
  • {{ getIcon(poi.type) }} {{ poi.localized }}: {{poi.count}}
Dati non disponibili

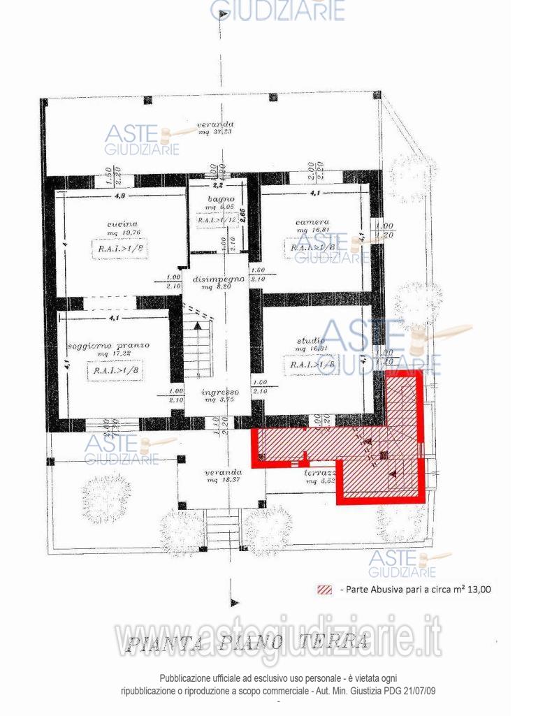
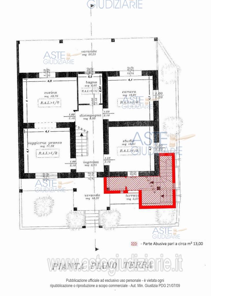
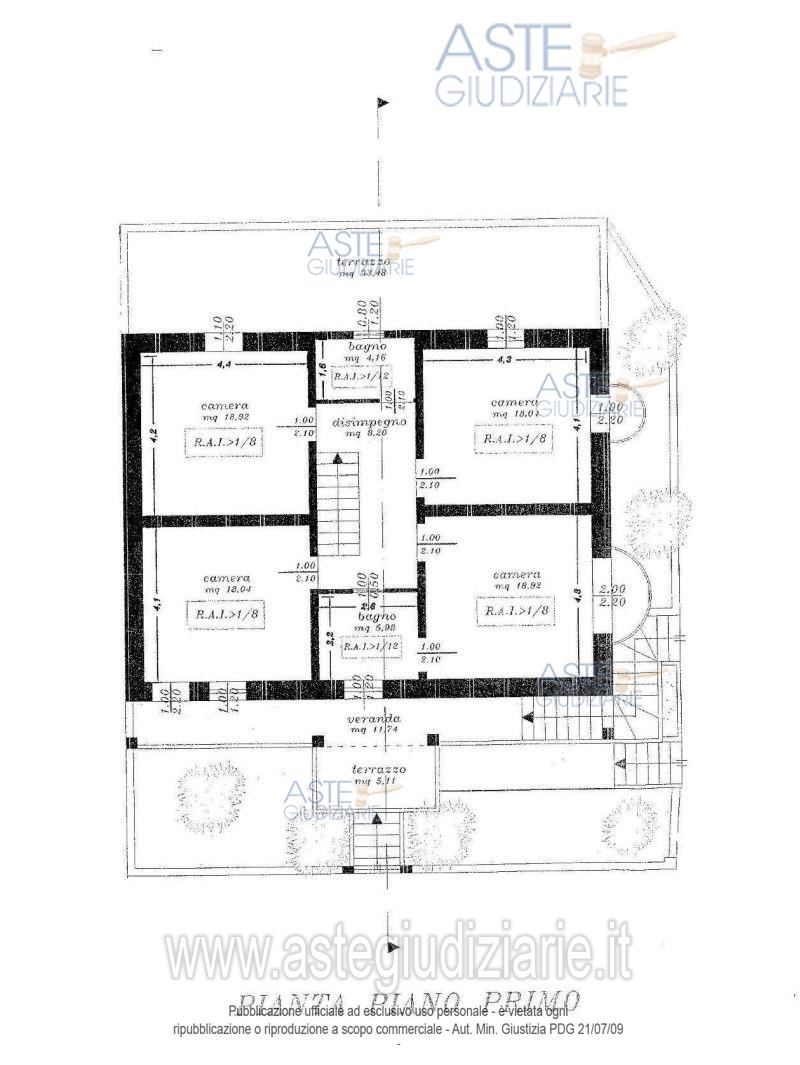
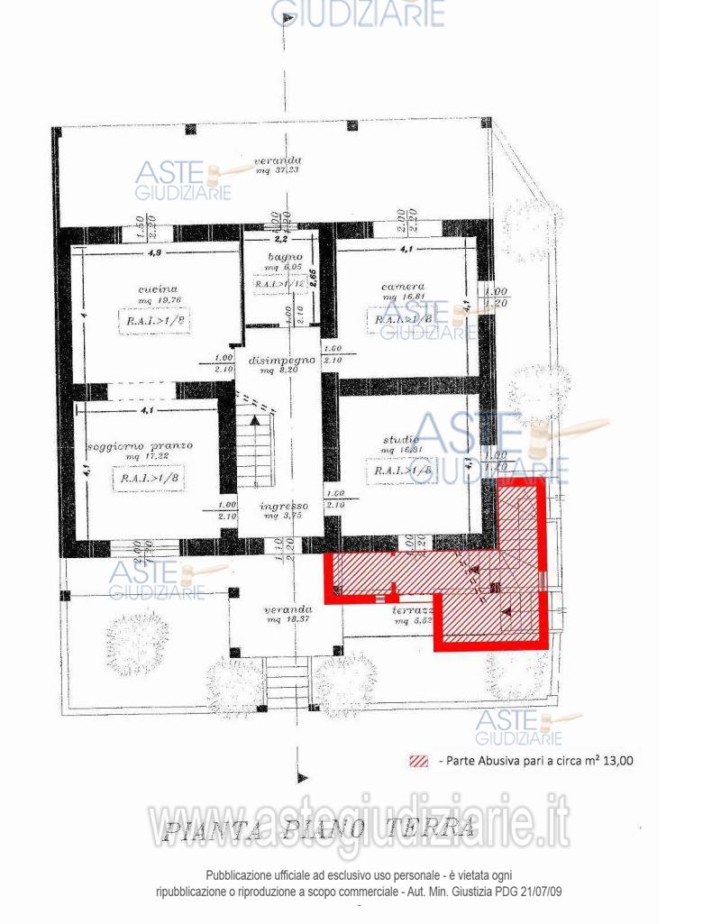
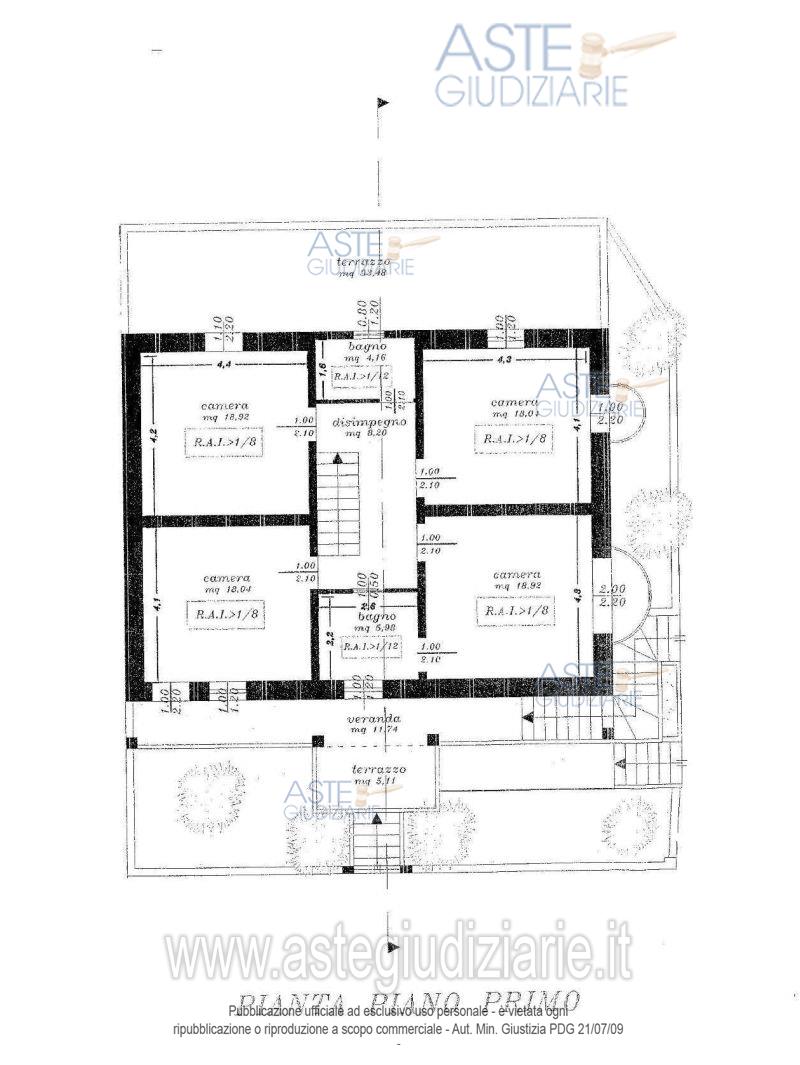
: Casa di civile abitazione sita in San Teodoro (SS) Via Nazionale 44/ (ex 60) Località Straulas – disposta su due piani fuori terra, inserito in un contesto residenziale con ingresso direttamente prospiciente sulla strada statale SS n°125, nota come Via Nazionale… della superficie convenzionale complessiva di mq. 335,64. Valore di stima: € 460.000,00

Indirizzo
Via Nazionale n. 44/A Ex 60, San Teodoro (SS)


Codice asta
320572


Lotto
Unico


Numero beni
1


Genere
Immobili


Categoria
Immobile residenziale


Valore di stima
€ 655.000,00


Abitazione di tipo economico

Immobile ubicato a San Teodoro ( OT ) – Via Nazionale n° 60 – Loc Straulas, in NCEU al Fg. 27 mapp. 8 sub 1, uso abitazione disposto su due piani fuori terra con terrazza, veranda, balcone scoperto; superficie convenzionale mq. 332,15 . La superficie convenzionale complessiva è di mq. 337,15 .

Indirizzo
Località Straulas-Via Nazionale 60, San Teodoro (SS)


Piano
-


Disponibilità
LIBERO


Vani
9,50


Bagni
3


Metri quadri
337,15


Certificazione energetica
-


Data udienza
10/02/2026 ore 16:00


Tipo di vendita
Senza incanto


Modalità di vendita
Asincrona telematica


Luogo
-


Luogo presentazione offerte
-


Termine presentazione offerte
09/02/2026 ore 12:00


Prezzo base
€ 460.000,00


Offerta minima
€ 460.000,00


Rialzo minimo in caso di gara
€ 5.000,00


Deposito cauzionale
10% del prezzo offerto


Deposito in conto spese
-


Tribunale
Nuoro

Tipo di procedura
Esecuzione immobiliare

Ruolo
19/2013

Giudice
De vito Riccardo

Recapiti
-

Email
-

Delegato alla vendita
Sanna Giovanna
(Procede alle operazioni di vendita)

Recapiti
Tel. 078434184

Email
avvgiovannasanna@gmail.com

Custode giudiziario
Ivg tempio pausania 

Recapiti
Tel. 079630505

Email
visite.ivgnuoro@gmail.com

Scheda COD. 320572 - Pubblicata dal 05/12/2025

La presente scheda di vendita riporta integralmente informazioni e documenti pervenuti ufficialmente dal Ministero e dal professionista incaricato.

Pubblicazione notarizzata su Blockchain


Pubblicazione autorizzata dall’Autorità competente, è vietata ogni ripubblicazione o riproduzione anche parziale


Ti interessa questa vendita?

Visualizza su mappa

Mappa geografica del bene

Storico delle vendite

Data venditaPrezzo base
14/01/2016€ 655.000,00
07/06/2016€ 491.250,00
11/10/2016€ 368.438,00
11/01/2017€ 276.328,50
30/01/2018€ 276.328,50
02/05/2018€ 207.246,38
15/01/2019€ 155.450,00
13/09/2019€ 124.360,00
15/12/2020€ 124.360,00
10/02/2022€ 124.360,00
18/07/2023€ 124.360,00
10/02/2026€ 460.000,00

Punti di interesse

Fonte dati

Nel raggio di {{range}}Km

Loading...
  • {{ getIcon(poi.type) }} {{ poi.localized }}: {{poi.count}}
  • {{ getIcon(poi.type) }} {{ poi.localized }}: {{poi.count}}
Dati non disponibili