Astegiudiziarie.it è parte di Rete Aste Network

Accedi o registrati

Non sei ancora registrato?

Oppure

Accedi

Abitazione di tipo economico

Via Carlo Botta, 3, San Giorgio di Lomellina (PV)

€ 53.000,00

Offerta minima € 39.750,00


Codice A4329692

Lotto Lotto unico

Data udienza 24/03/2026 ore 15:30

Termine presentazione offerte 23/03/2026 ore 12:00

Abitazione di tipo economico

Via Carlo Botta, 3, San Giorgio di Lomellina (PV)

€ 53.000,00

Offerta minima € 39.750,00


Codice A4329692

Lotto Lotto unico

Data udienza 24/03/2026 ore 15:30

Termine presentazione offerte 23/03/2026 ore 12:00

Vendita deserta

Ti interessa questa vendita?

Documentazione

Visualizza su mappa

Mappa geografica del bene

Punti di interesse

Fonte dati

Nel raggio di {{range}}Km

Loading...
  • {{ getIcon(poi.type) }} {{ poi.localized }}: {{poi.count}}
  • {{ getIcon(poi.type) }} {{ poi.localized }}: {{poi.count}}
Dati non disponibili

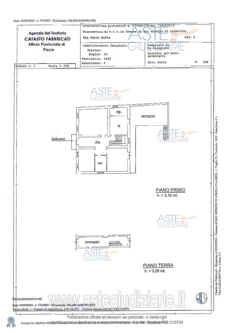
Fabbricato a due piani fuori terra, costituito da appartamento a piano terra, appartamento a piano primo autorimessa e area pertinenziale.

Indirizzo
Via Carlo Botta, 3, San Giorgio di Lomellina (PV)


Codice asta
4329692


Lotto
Lotto unico


Numero beni
1


Genere
Immobili


Categoria
Immobile residenziale


Valore di stima
-


Abitazione di tipo economico

Fabbricato a due piani fuori terra, costituito da appartamento a piano terra, appartamento a piano primo autorimessa e area pertinenziale. L'appartamento situato al piano terra (sub. 4) è composto da: due locali, cucina, bagno, portico, locale caldaia e ripostiglio con accesso da esterno. L'appartamento situato al piano primo (sub. 5) con accesso da vano scala che si diparte dal piano terra è composto da: tre locali, cucina, ripostiglio, bagno, disimpegno, balcone in lato di ovest e terrazzo in lato di est. Al piano terra è presente inoltre un locale destinato ad autorimessa (sub. 3).

Indirizzo
Via Carlo Botta, 3, San Giorgio di Lomellina (PV)


Piano
-


Disponibilità
Occupato


Vani
-


Bagni
-


Metri quadri
-


Certificazione energetica
-


Tribunale
Pavia

Tipo di procedura
Espropriazione immobiliare (cartabia)

Ruolo
261/2024

Giudice
Rizzi Erminio

Recapiti
-

Email
-

Delegato alla vendita
Borri Roberto
(Procede alle operazioni di vendita)

Recapiti
Tel. 038234728

Email
notai@paviaesecuzioni.it

Custode giudiziario
Ifir piemonte ivg srl 
(Gestisce la visita del bene)

Recapiti
Tel. 0381691137

Email

Scheda COD. 4329692 - Pubblicata dal 03/02/2026

La presente scheda di vendita riporta integralmente informazioni e documenti pervenuti ufficialmente dal Ministero e dal professionista incaricato.

La sua pubblicazione è prolungata, in conformità agli accordi con il Tribunale, con l’obiettivo di garantire un’informazione continua e aggiornata, nel rispetto delle tempistiche procedurali.


Pubblicazione autorizzata dall’Autorità competente, è vietata ogni ripubblicazione o riproduzione anche parziale


Ti interessa questa vendita?

Documentazione

Visualizza su mappa

Mappa geografica del bene

Storico delle vendite

Data venditaPrezzo base
22/07/2025€ 94.100,00
18/11/2025€ 70.600,00
24/03/2026€ 53.000,00

Punti di interesse

Fonte dati

Nel raggio di {{range}}Km

Loading...
  • {{ getIcon(poi.type) }} {{ poi.localized }}: {{poi.count}}
  • {{ getIcon(poi.type) }} {{ poi.localized }}: {{poi.count}}
Dati non disponibili