Astegiudiziarie.it è parte di Rete Aste Network

Accedi o registrati

Non sei ancora registrato?

Oppure

Accedi

Appartamento

Via San Sebastiano, Sala Consilina (SA)

€ 145.703,24

Offerta minima € 109.277,43


Codice A4332057

Lotto 2

Data udienza 14/01/2026 ore 18:00

Termine presentazione offerte 13/01/2026 ore 13:00

Appartamento

Via San Sebastiano, Sala Consilina (SA)

€ 145.703,24

Offerta minima € 109.277,43


Codice A4332057

Lotto 2

Data udienza 14/01/2026 ore 18:00

Termine presentazione offerte 13/01/2026 ore 13:00

Ti interessa questa vendita?

Documentazione

Visualizza su mappa

Mappa geografica del bene

Punti di interesse

Fonte dati

Nel raggio di {{range}}Km

Loading...
  • {{ getIcon(poi.type) }} {{ poi.localized }}: {{poi.count}}
  • {{ getIcon(poi.type) }} {{ poi.localized }}: {{poi.count}}
Dati non disponibili

Appartamento

Indirizzo
Via San Sebastiano, Sala Consilina (SA)


Codice asta
4332057


Lotto
2


Numero beni
1


Genere
Immobili


Categoria
Immobile residenziale


Valore di stima
-


Appartamento

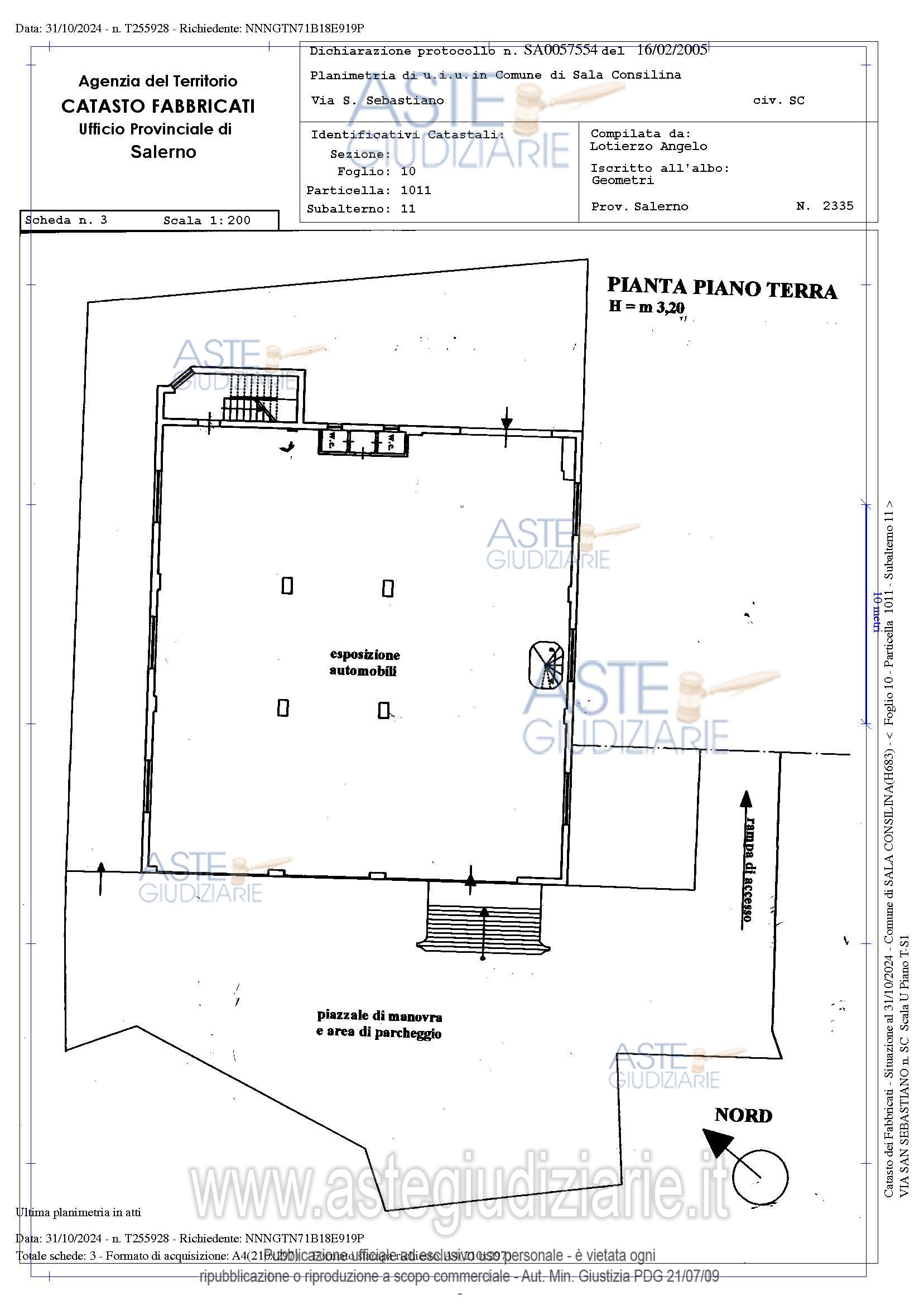
Appartamento sito al piano primo

Indirizzo
Via San Sebastiano, Sala Consilina (SA)


Piano
-


Disponibilità
-


Vani
8,00


Bagni
-


Metri quadri
320,93


Certificazione energetica
-


Data udienza
14/01/2026 ore 18:00


Tipo di vendita
Senza incanto


Modalità di vendita
Asincrona telematica


Luogo
N.A. -


Luogo presentazione offerte
-


Termine presentazione offerte
13/01/2026 ore 13:00


Prezzo base
€ 145.703,24


Offerta minima
€ 109.277,43


Rialzo minimo in caso di gara
-


Deposito cauzionale
10% del prezzo offerto


Deposito in conto spese
-


Tribunale
Lagonegro

Tipo di procedura
Esecuzione immobiliare post legge 80

Ruolo
86/2013

Delegato alla vendita
Cappelli Igino
(Procede alle operazioni di vendita)

Recapiti
-

Email
info@avvocatoiginocappelli.it

Custode giudiziario
Cappelli Igino
(Gestisce la visita del bene)

Recapiti
Cell. 3403958748

Scheda COD. 4332057 - Pubblicata dal 10/11/2025

La presente scheda di vendita riporta integralmente informazioni e documenti pervenuti ufficialmente dal Ministero e dal professionista incaricato.

Pubblicazione notarizzata su Blockchain


Pubblicazione autorizzata dall’Autorità competente, è vietata ogni ripubblicazione o riproduzione anche parziale


Ti interessa questa vendita?

Documentazione

Visualizza su mappa

Mappa geografica del bene

Storico delle vendite

Data venditaPrezzo base
14/10/2025€ 194.270,98
14/01/2026€ 145.703,24

Punti di interesse

Fonte dati

Nel raggio di {{range}}Km

Loading...
  • {{ getIcon(poi.type) }} {{ poi.localized }}: {{poi.count}}
  • {{ getIcon(poi.type) }} {{ poi.localized }}: {{poi.count}}
Dati non disponibili