Astegiudiziarie.it è parte di Rete Aste Network

Accedi o registrati

Non sei ancora registrato?

Oppure

Accedi

Abitazione di tipo popolare

Via Noicattaro, 168, Rutigliano (BA)

€ 162.000,00

Offerta minima € 121.500,00


Codice A4343152

Lotto 2

Data udienza 14/05/2026 ore 10:00

Termine presentazione offerte 07/05/2026 ore 12:00

Abitazione di tipo popolare

Via Noicattaro, 168, Rutigliano (BA)

€ 162.000,00

Offerta minima € 121.500,00


Codice A4343152

Lotto 2

Data udienza 14/05/2026 ore 10:00

Termine presentazione offerte 07/05/2026 ore 12:00

Ti interessa questa vendita?

Visualizza su mappa

Mappa geografica del bene

Punti di interesse

Fonte dati

Nel raggio di {{range}}Km

Loading...
  • {{ getIcon(poi.type) }} {{ poi.localized }}: {{poi.count}}
  • {{ getIcon(poi.type) }} {{ poi.localized }}: {{poi.count}}
Dati non disponibili

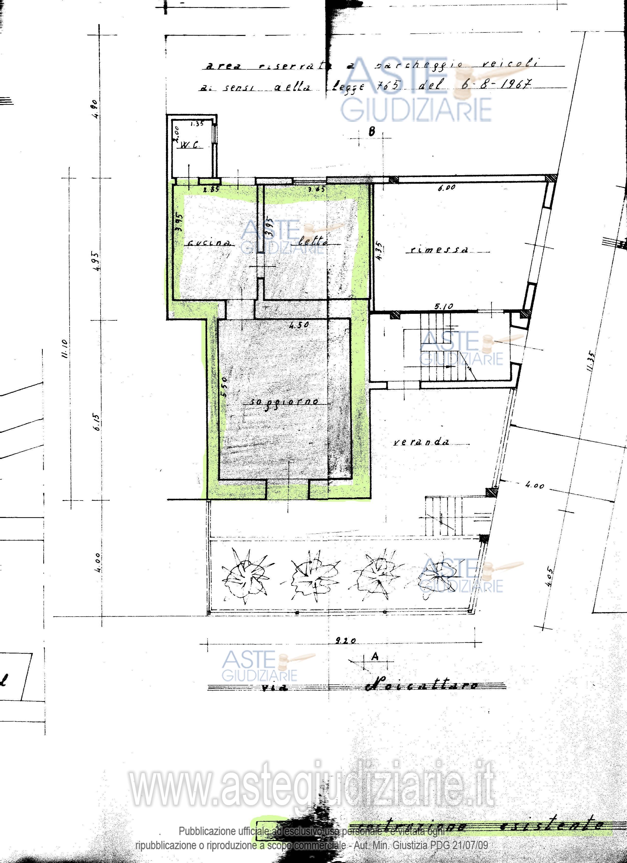
Nuda proprietà (1/1) dell’appartamento composto su due piani fuori terra e seminterrato, con accesso indipendente da stradina privata e da giardino pertinenziale, cucina e salottino a piano rialzato, con bagno; due stanze da letto a primo piano con affaccio su strada privata da balconi, con bagno; cantina a piano seminterrato con centrale termica (dismessa); lavatoio a secondo piano, con la restante parte a terrazzo.

Indirizzo
Via Noicattaro, 168, Rutigliano (BA)


Codice asta
4343152


Lotto
2


Numero beni
1


Genere
Immobili


Categoria
Immobile residenziale


Valore di stima
-


Abitazione di tipo popolare

Nuda proprietà (1/1) dell’appartamento composto su due piani fuori terra e seminterrato, con accesso indipendente da stradina privata e da giardino pertinenziale, cucina e salottino a piano rialzato, con bagno; due stanze da letto a primo piano con affaccio su strada privata da balconi, con bagno; cantina a piano seminterrato con centrale termica (dismessa); lavatoio a secondo piano, con la restante parte a terrazzo.

Indirizzo
Via Noicattaro, 168, Rutigliano (BA)


Piano
-


Disponibilità
-


Vani
6,00


Bagni
2


Metri quadri
147,00


Certificazione energetica
-


Dati catastali

Foglio:5, Particella:695, Subalterno:1


Data udienza
14/05/2026 ore 10:00


Tipo di vendita
Senza incanto


Modalità di vendita
Asincrona telematica


Luogo
-


Luogo presentazione offerte
-


Termine presentazione offerte
07/05/2026 ore 12:00


Prezzo base
€ 162.000,00


Offerta minima
€ 121.500,00


Rialzo minimo in caso di gara
€ 4.000,00


Deposito cauzionale
10% del prezzo offerto


Deposito in conto spese
-


Tribunale
Bari

Tipo di procedura
Espropriazione immobiliare (cartabia)

Ruolo
443/2024

Giudice
Cutolo Chiara

Recapiti
-

Email
-

Delegato alla vendita
Rella Rosa
(Procede alle operazioni di vendita)

Recapiti
-

Email
rossella_rella@yahoo.it

Custode giudiziario
Rella Rosa
(Gestisce la visita del bene)

Recapiti
-

Scheda COD. 4343152 - Pubblicata dal 19/01/2026

La presente scheda di vendita riporta integralmente informazioni e documenti pervenuti ufficialmente dal Ministero e dal professionista incaricato.


Pubblicazione autorizzata dall’Autorità competente, è vietata ogni ripubblicazione o riproduzione anche parziale


Ti interessa questa vendita?

Visualizza su mappa

Mappa geografica del bene

Punti di interesse

Fonte dati

Nel raggio di {{range}}Km

Loading...
  • {{ getIcon(poi.type) }} {{ poi.localized }}: {{poi.count}}
  • {{ getIcon(poi.type) }} {{ poi.localized }}: {{poi.count}}
Dati non disponibili