Astegiudiziarie.it è parte di Rete Aste Network

Accedi o registrati

Non sei ancora registrato?

Oppure

Accedi

Abitazione di tipo civile, terreno

frazione di Camposilvano, Roverè Veronese (VR)

€ 72.000,00


Abitazione di tipo civile, terreno

frazione di Camposilvano, Roverè Veronese (VR)

€ 72.000,00


Codice A4340951

Lotto 2

Data udienza In attesa di fissazione nuova vendita

Ti interessa questa vendita?

Documentazione

Visualizza su mappa

Mappa geografica del bene

Punti di interesse

Fonte dati

Nel raggio di {{range}}Km

Loading...
  • {{ getIcon(poi.type) }} {{ poi.localized }}: {{poi.count}}
  • {{ getIcon(poi.type) }} {{ poi.localized }}: {{poi.count}}
Dati non disponibili

Lotto 2 (integrazione CTU 13.11.25) Roverè Veronese (VR) fraz. Camposilvano piena proprietà appartamento 2°piano in condominio (compresi i proporzionali diritti di comproprietà su enti e spazi comuni art.1117cc compresa area sedime e pertinenza fabbricato C.F. Roverè V.se Fg11mn306 ente urbano are08.46) e piena proprietà di terreno in continuità formato da zona edificabile“B-Area urbana di completamento edilizio”mq 419 e zona“E–territorio agricolo”ca.mq2185(complessivi 2604mq catastali)

Indirizzo
frazione di Camposilvano, Roverè Veronese (VR)


Codice asta
4340951


Lotto
2


Numero beni
2


Genere
Immobili


Categoria
Immobile residenziale


Valore di stima
-


Abitazione di tipo civile

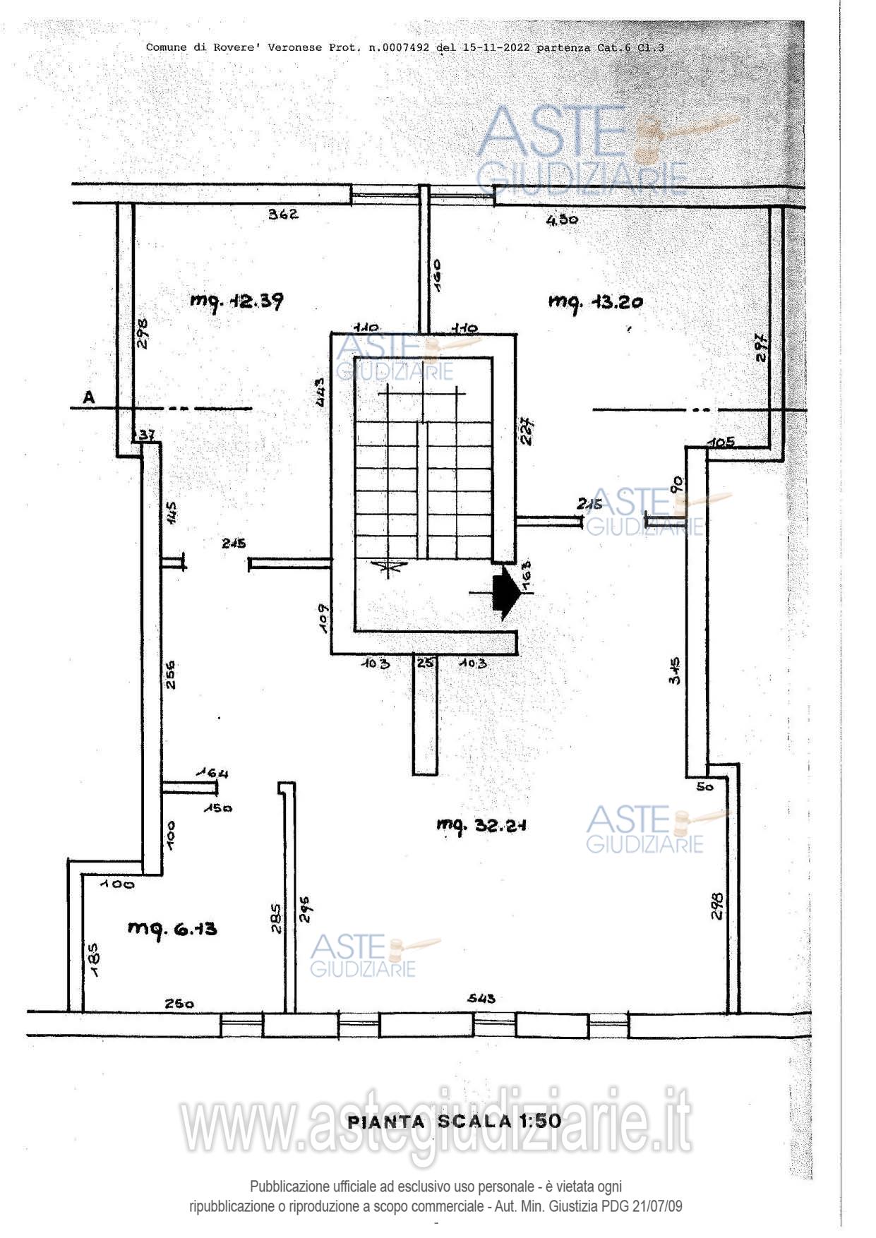
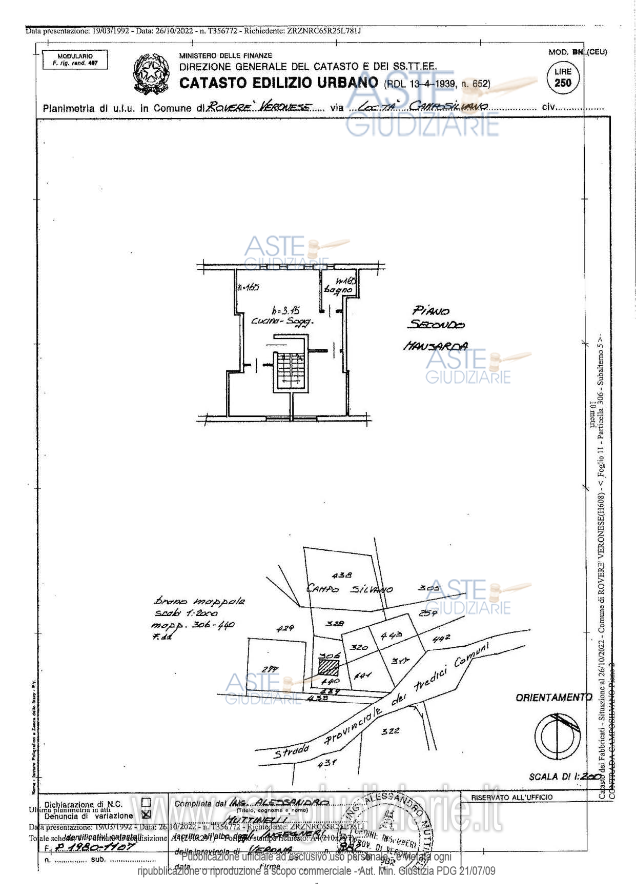
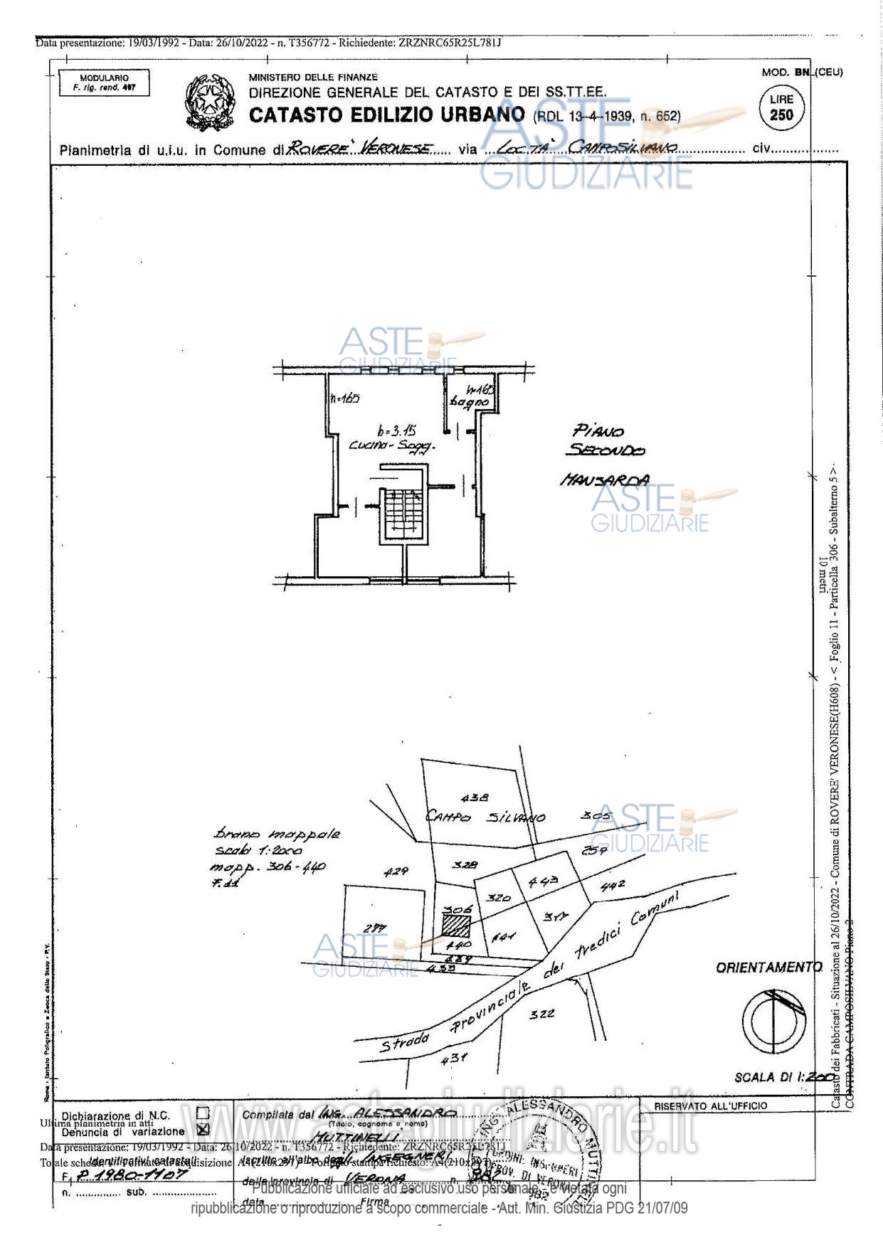
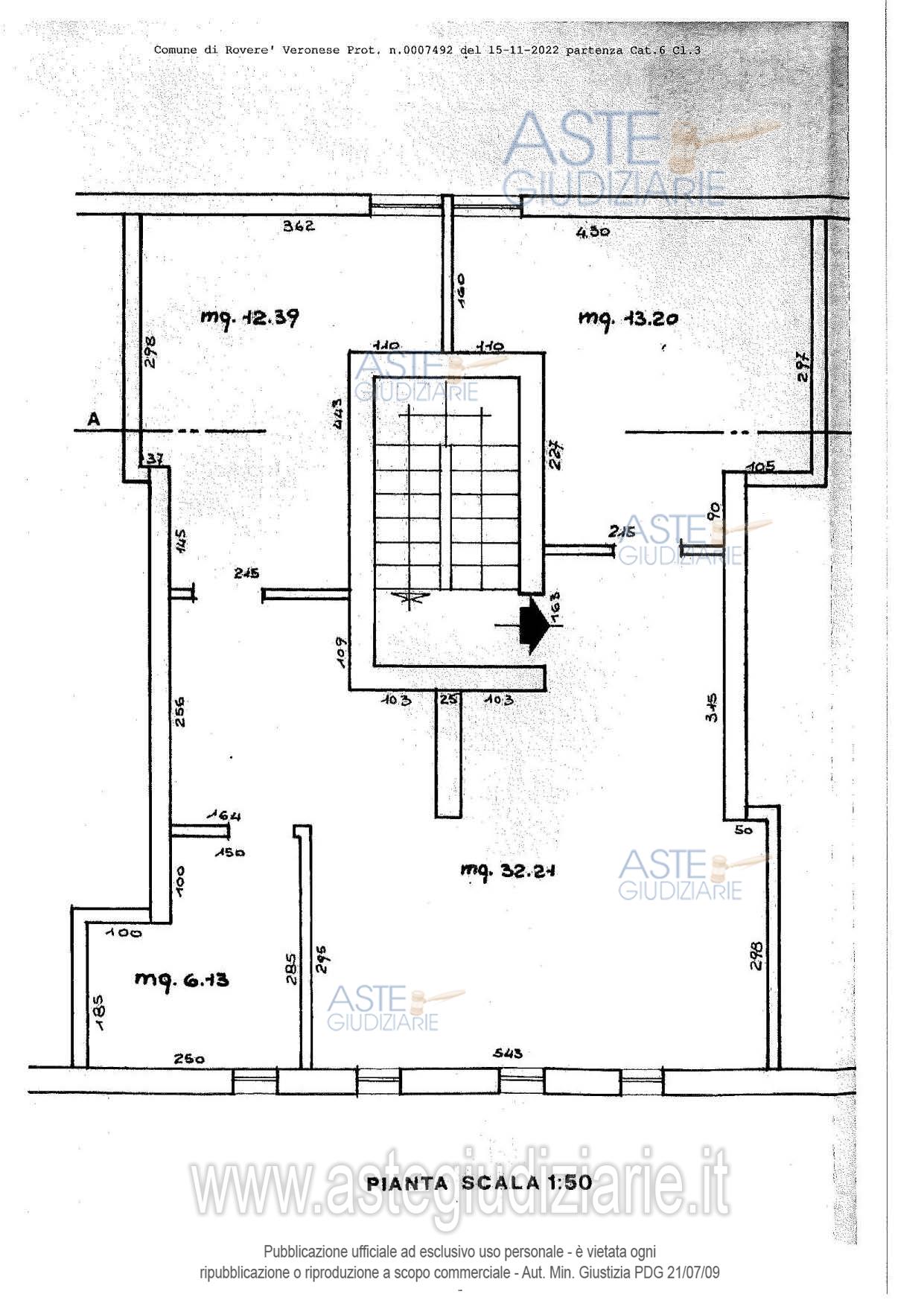
Lotto 2 (integrazione CTU del 13 novembre 2025) In Comune di Roverè Veronese (VR), frazione di Camposilvano a circa otto chilometri a nord del Comune capoluogo, in località residenziale a scarsa densità abitativa, piena proprietà di appartamento al secondo piano di un fabbricato di tipo condominiale. Sono compresi nella vendita i proporzionali diritti di comproprietà su enti comuni e spazi di uso comune ai sensi dell’art. 1117 c.c., ivi compresa l’area di sedime e pertinenza del fabbricato Catasto Fabbricati del Comune di Roverè Veronese, Fg. 11 m.n. 306 - ente urbano di are 08.46

Indirizzo
frazione di Camposilvano, Roverè Veronese (VR)


Piano
-


Disponibilità
-


Vani
-


Bagni
-


Metri quadri
-


Certificazione energetica
-


Dati catastali

Foglio:11, Particella:306, Subalterno:5, Subalterno 2:Cat. A/2


Terreno

Lotto 2 (integrazione CTU del 13 novembre 2025) In Comune di Roverè Veronese (VR), frazione di Camposilvano a circa otto chilometri a nord del Comune capoluogo, in località residenziale a scarsa densità abitativa, piena proprietà di terreno in continuità formato da una zona edificabile in zona “B - Area urbana di completamento edilizio”, per mq 419 e da una zona “E – territorio agricolo”, per circa mq. 2185, (per complessivi 2604 mq catastali).

Indirizzo
frazione di Camposilvano, Roverè Veronese (VR)


Piano
-


Disponibilità
-


Vani
-


Bagni
-


Metri quadri
-


Certificazione energetica
-


Dati catastali

Foglio:11, Particella:328
Foglio:11, Particella:438


Tribunale
Verona

Tipo di procedura
Esecuzione immobiliare post legge 80

Ruolo
141/2022

Giudice
Salmaso Paola

Recapiti
-

Email
-

Delegato alla vendita
Saraceno  Melchiorre
(Procede alle operazioni di vendita)

Recapiti
Tel. 0458006661

Email
notes@notariato.it

Custode giudiziario
Adami  Massimo
(Gestisce la visita del bene)

Recapiti
Tel. 045591566

Email

Scheda COD. 4340951 - Pubblicata dal 05/12/2025

La presente scheda di vendita riporta integralmente informazioni e documenti pervenuti ufficialmente dal Ministero e dal professionista incaricato.

La sua pubblicazione è prolungata, in conformità agli accordi con il Tribunale, con l’obiettivo di garantire un’informazione continua e aggiornata, nel rispetto delle tempistiche procedurali.

Pubblicazione notarizzata su Blockchain


Pubblicazione autorizzata dall’Autorità competente, è vietata ogni ripubblicazione o riproduzione anche parziale


Ti interessa questa vendita?

Documentazione

Visualizza su mappa

Mappa geografica del bene

Punti di interesse

Fonte dati

Nel raggio di {{range}}Km

Loading...
  • {{ getIcon(poi.type) }} {{ poi.localized }}: {{poi.count}}
  • {{ getIcon(poi.type) }} {{ poi.localized }}: {{poi.count}}
Dati non disponibili