Astegiudiziarie.it è parte di Rete Aste Network

Accedi o registrati

Non sei ancora registrato?

Oppure

Accedi

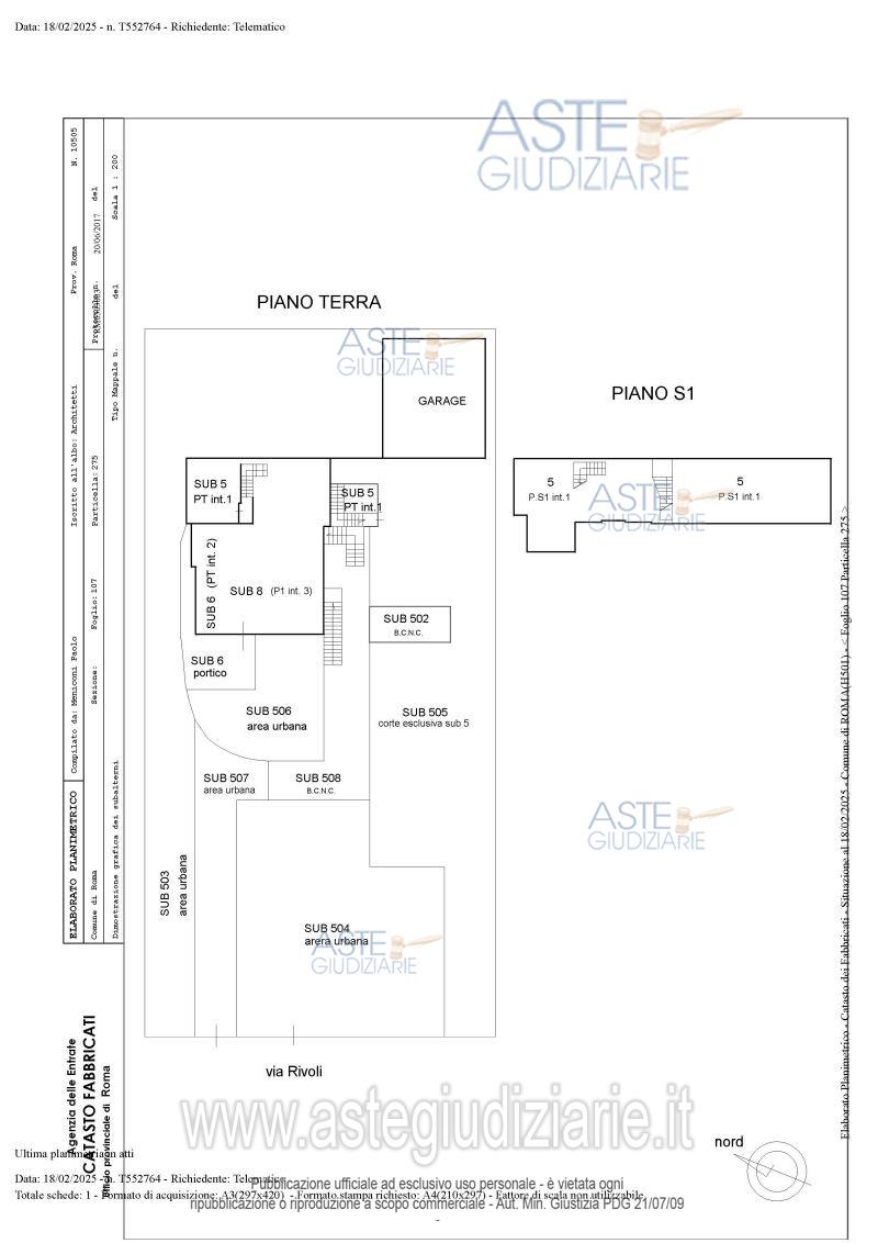
giudiziariagiudiziariaTribunale di ROMAESECUZIONI CIVILI IMMOBILIARIESPROPRIAZIONE IMMOBILIARE (CARTABIA)4802024Delegato alla venditaFrancescaRoccadoroRCCFNC77M43H501LtruefalseCustodeIvg di roma srlPRCFNC50L27A241Tpvp@visiteivgroma.it0689569801falsetrue2414902LOTTO UNICOIMMOBILIIMMOBILE RESIDENZIALEVia Rivoli, 238, 00123 Roma RM, Italia00123RomaRomaLazioItaliaQuota pari al 100% del diritto di piena proprietà di porzione di fabbricato a destinazione residenziale ubicato in via Rivoli, 238. 3115303IMMOBILE RESIDENZIALEABITAZIONE DI TIPO POPOLAREVia Rivoli, 238, 00123 Roma RM, Italia00123RomaRomaLazioItaliaQuota pari al 100% del diritto di piena proprietà di porzione di fabbricato a destinazione residenziale ubicato in via Rivoli, 238. Il bene è situato nell’area suburbana nord – ovest del comune di Roma, esternamente al G.R.A., in località denominata "Le Cerquette". L’unità immobiliare a destinazione residenziale risulta composta da: ingresso al piano terra con portico e corte di pertinenza esclusiva, soggiorno, cucina, bagno, ampia camera e veranda al piano interrato, oltre un ulteriore camera da letto al piano terra ed accessibile direttamente dal vano soggiorno, attraverso una scala di collegamento interna. La residenza sviluppa una superficie commerciale ragguagliata di circa mq 139,00. Il bene è censito nel Catasto dei Fabbricati del Comune di Roma al foglio 107 – part. 275 – sub. 5 graff. 505 – z.c. 6 – cat. A/4 – classe 5 – cons. 6,5 vani – sup. cat. totale mq 135 escluse aree scoperte mq 119 – rendita € 621,04 – Piano T-S1 Ai fini della regolarità urbanistico-edilizia in data 11.01.2002 e stata rilasciata concessione in sanatoria n. 271985 rif. prot. n. 17110. Sussistono alcune difformità tra i luoghi ed il progetto allegato all’istanza di condono per le quali si potrà presentare pratica edilizia per la regolarizzazione e/o ripristino dello stato dei luoghi. Il bene confina con via Rivoli, area di distacco, sub. 8, sub. 502. Non sussistono formalità pregiudizievoli non cancellabili con il decreto di trasferimento. Stato di occupazione libero Il tutto come meglio descritto nell’elaborato peritale depositato in atti.10727552026-06-23T10:00:00SENZA INCANTOASINCRONA TELEMATICAN.A.114.972,0086.229,005.000,002026-06-22T23:59:00sito pubblicitahttps://www.asteannunci.ithttps://www.asteannunci.itsito pubblicitahttps://www.fallcoaste.ithttps://www.fallcoaste.itsito pubblicitahttps://www.astegiudiziarie.ithttps://www.astegiudiziarie.itgestore delle venditehttps://www.fallcoaste.ithttps://www.fallcoaste.it2026-03-27

Abitazione di tipo popolare

Via Rivoli, 238, 00123 Roma RM, Italia, Roma (RM)

€ 114.972,00

Offerta minima € 86.229,00


Codice A4348368

Lotto Lotto unico

Data udienza 23/06/2026 ore 10:00

Termine presentazione offerte 22/06/2026 ore 23:59

Abitazione di tipo popolare

Via Rivoli, 238, 00123 Roma RM, Italia, Roma (RM)

€ 114.972,00

Offerta minima € 86.229,00


Codice A4348368

Lotto Lotto unico

Data udienza 23/06/2026 ore 10:00

Termine presentazione offerte 22/06/2026 ore 23:59

Ti interessa questa vendita?

Documentazione

Visualizza su mappa

Mappa geografica del bene

Punti di interesse

Fonte dati

Nel raggio di {{range}}Km

Loading...
  • {{ getIcon(poi.type) }} {{ poi.localized }}: {{poi.count}}
  • {{ getIcon(poi.type) }} {{ poi.localized }}: {{poi.count}}
Dati non disponibili

Quota pari al 100% del diritto di piena proprietà di porzione di fabbricato a destinazione residenziale ubicato in via Rivoli, 238.

Indirizzo
Via Rivoli, 238, 00123 Roma RM, Italia, Roma (RM)


Codice asta
4348368


Lotto
Lotto unico


Numero beni
1


Genere
Immobili


Categoria
Immobile residenziale


Valore di stima
-


Abitazione di tipo popolare

Quota pari al 100% del diritto di piena proprietà di porzione di fabbricato a destinazione residenziale ubicato in via Rivoli, 238. Il bene è situato nell’area suburbana nord – ovest del comune di Roma, esternamente al G.R.A., in località denominata "Le Cerquette". L’unità immobiliare a destinazione residenziale risulta composta da: ingresso al piano terra con portico e corte di pertinenza esclusiva, soggiorno, cucina, bagno, ampia camera e veranda al piano interrato, oltre un ulteriore camera da letto al piano terra ed accessibile direttamente dal vano soggiorno, attraverso una scala di collegamento interna. La residenza sviluppa una superficie commerciale ragguagliata di circa mq 139,00. Il bene è censito nel Catasto dei Fabbricati del Comune di Roma al foglio 107 – part. 275 – sub. 5 graff. 505 – z.c. 6 – cat. A/4 – classe 5 – cons. 6,5 vani – sup. cat. totale mq 135 escluse aree scoperte mq 119 – rendita € 621,04 – Piano T-S1 Ai fini della regolarità urbanistico-edilizia in data 11.01.2002 e stata rilasciata concessione in sanatoria n. 271985 rif. prot. n. 17110. Sussistono alcune difformità tra i luoghi ed il progetto allegato all’istanza di condono per le quali si potrà presentare pratica edilizia per la regolarizzazione e/o ripristino dello stato dei luoghi. Il bene confina con via Rivoli, area di distacco, sub. 8, sub. 502. Non sussistono formalità pregiudizievoli non cancellabili con il decreto di trasferimento. Stato di occupazione libero Il tutto come meglio descritto nell’elaborato peritale depositato in atti.

Indirizzo
Via Rivoli, 238, 00123 Roma RM, Italia, Roma (RM)


Piano
T-S1


Disponibilità
-


Vani
6,50


Bagni
1


Metri quadri
139,36


Certificazione energetica
-


Dati catastali

Foglio:107, Particella:275, Subalterno:5


Data udienza
23/06/2026 ore 10:00


Tipo di vendita
Senza incanto


Modalità di vendita
Asincrona telematica


Luogo
N.A. -


Luogo presentazione offerte
-


Termine presentazione offerte
22/06/2026 ore 23:59


Prezzo base
€ 114.972,00


Offerta minima
€ 86.229,00


Rialzo minimo in caso di gara
€ 5.000,00


Deposito cauzionale
-


Deposito in conto spese
-


Tribunale
Roma

Tipo di procedura
Espropriazione immobiliare (cartabia)

Ruolo
480/2024

Giudice
Lauropoli Giuseppe

Recapiti
-

Email
-

Delegato alla vendita
Roccadoro Francesca
(Procede alle operazioni di vendita)

Recapiti
-

Email
-

Custode giudiziario
Ivg di roma srl 
(Gestisce la visita del bene)

Recapiti
Tel. 0689569801

Scheda COD. 4348368 - Pubblicata dal 13/04/2026

La presente scheda di vendita riporta integralmente informazioni e documenti pervenuti ufficialmente dal Ministero e dal professionista incaricato.


Pubblicazione autorizzata dall’Autorità competente, è vietata ogni ripubblicazione o riproduzione anche parziale


Ti interessa questa vendita?

Documentazione

Visualizza su mappa

Mappa geografica del bene

Punti di interesse

Fonte dati

Nel raggio di {{range}}Km

Loading...
  • {{ getIcon(poi.type) }} {{ poi.localized }}: {{poi.count}}
  • {{ getIcon(poi.type) }} {{ poi.localized }}: {{poi.count}}
Dati non disponibili