Astegiudiziarie.it è parte di Rete Aste Network

Accedi o registrati

Non sei ancora registrato?

Oppure

Accedi

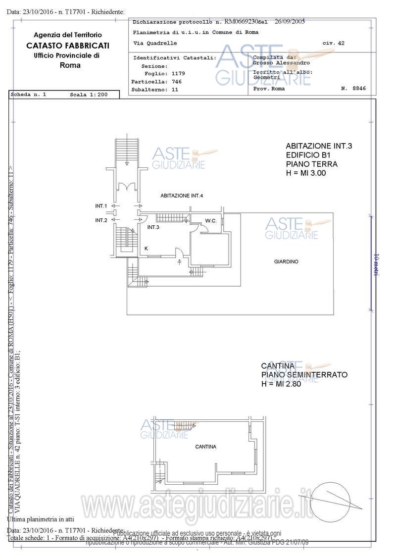
giudiziariagiudiziariaTribunale di ROMAESECUZIONI CIVILI IMMOBILIARIESECUZIONE IMMOBILIARE POST LEGGE 8010712014GiudiceD'ambrosiofalsefalseIstituto Vendite GiudiziarieIvg di roma srlPRCFNC50L27A241Tpvp@visiteivgroma.itfalsetrueGiudiceD'ambrosiofalsefalseDelegato alla venditaBarbaraStanchiSTNBBR73L44H501Wst.legalestanchi@gmail.com063722800truefalseDelegato alla venditaBarbaraStanchiSTNBBR73L44H501Wst.legalestanchi@gmail.com063722800truefalse2361554LOTTO UNICOIMMOBILIIMMOBILE RESIDENZIALEVia Quadrelle n 4200143RomaRomaLazioItaliaquota 1/1 del diritto di piena proprietà del compendio immobiliare consistente in un appartamento composto al piano terra da soggiorno, con annesso angolo cottura, camera, bagno, disimpegno, area pertinenziale a giardino, al piano seminterrato, con destinazione d’uso a cantina, da soggiorno, due camere, bagno, disimpegni, ripostiglio e in un posto auto scoperto, posto al piano terra, situato presso l’area antistante l’ingresso del fabbricato identificato con il n. 203050183ALTRA CATEGORIAPOSTO AUTOVia Quadrelle n 4200143RomaRomaLazioItaliaquota 1/1 del diritto di piena proprietà del compendio immobiliare, edificio B1, piano T/S1, int. 3, consistente in un appartamento composto al piano terra da soggiorno, con annesso angolo cottura, camera, bagno, disimpegno, area pertinenziale a giardino, al piano seminterrato, con destinazione d’uso a cantina, da soggiorno, due camere, bagno, disimpegni, ripostiglio e in un posto auto scoperto, posto al piano terra, situato presso l’area antistante l’ingresso del fabbricato identificato con il n. 20, confinante: con u.i. int. 4/vano scala/giardino, salvo altri (appartamento), con posto auto 21/area cortilizia di ingresso, salvo altri (posto auto scoperto);censito: al Catasto Fabbricati di detto Comune al foglio 1179, part. 746, sub 11, cl.5, cat. A/2, rendita catastale € 557,77 (appartamento), al foglio 1179, part. 746, sub 44, cl.8, cat. C/6, rendita catastale € 26,03 (posto auto scoperto).L’immobile è stato realizzato con permesso di costruire n. 933 prot. 52665 del 09/09/2004 ed ultima variante prot. 72636 del 25/10/2006. Non è dotato di agibilità. Presenta al piano seminterrato una variazione con opere della destinazione dell’originaria “cantina”, attualmente adibita ad uso residenziale. I locali in questione non presentano i requisiti per l’idoneità a tale destinazione residenziale. Le spese necessarie al legittimo stato quo ante della cantina, tramite presentazione di C.I.L.A., sono preventivate in un costo pari a € 3.000,00 comprensive dell’onorario del tecnico del progettista, nonché della direzione dei lavori, dei diritti comunali e delle opere edili per un costo pari a € 7.000,00.LIBER3050184IMMOBILE RESIDENZIALEAPPARTAMENTOVia Quadrelle n 4200143RomaRomaLazioItaliaquota 1/1 del diritto di piena proprietà del compendio immobiliare, edificio B1, piano T/S1, int. 3, consistente in un appartamento composto al piano terra da soggiorno, con annesso angolo cottura, camera, bagno, disimpegno, area pertinenziale a giardino, al piano seminterrato, con destinazione d’uso a cantina, da soggiorno, due camere, bagno, disimpegni, ripostiglio e in un posto auto scoperto, posto al piano terra, situato presso l’area antistante l’ingresso del fabbricato identificato con il n. 20, confinante: con u.i. int. 4/vano scala/giardino, salvo altri (appartamento), con posto auto 21/area cortilizia di ingresso, salvo altri (posto auto scoperto);censito: al Catasto Fabbricati di detto Comune al foglio 1179, part. 746, sub 11, cl.5, cat. A/2, rendita catastale € 557,77 (appartamento), al foglio 1179, part. 746, sub 44, cl.8, cat. C/6, rendita catastale € 26,03 (posto auto scoperto).L’immobile è stato realizzato con permesso di costruire n. 933 prot. 52665 del 09/09/2004 ed ultima variante prot. 72636 del 25/10/2006. Non è dotato di agibilità. Presenta al piano seminterrato una variazione con opere della destinazione dell’originaria “cantina”, attualmente adibita ad uso residenziale. I locali in questione non presentano i requisiti per l’idoneità a tale destinazione residenziale. Le spese necessarie al legittimo stato quo ante della cantina, tramite presentazione di C.I.L.A., sono preventivate in un costo pari a € 3.000,00 comprensive dell’onorario del tecnico del progettista, nonché della direzione dei lavori, dei diritti comunali e delle opere edili per un costo pari a € 7.000,00.LIBER2026-02-11T14:00:00SENZA INCANTOASINCRONA TELEMATICAN.A.128.352,0096.240,003.000,002026-02-10T23:59:00sito pubblicitahttps://www.fallcoaste.ithttps://www.fallcoaste.itgestore delle venditehttp://www.astetelematiche.ithttp://www.astetelematiche.itsito pubblicitahttps://www.asteannunci.ithttps://www.asteannunci.itsito pubblicitahttps://www.astegiudiziarie.ithttps://www.astegiudiziarie.it2025-12-03

Appartamento, posto auto

Via Quadrelle n 42, Roma (RM)

€ 128.352,00

Offerta minima € 96.264,00


Codice A4217675

Lotto Lotto unico

Data udienza 11/02/2026 ore 14:00

Termine presentazione offerte 10/02/2026 ore 23:59

Appartamento, posto auto

Via Quadrelle n 42, Roma (RM)

€ 128.352,00

Offerta minima € 96.264,00


Codice A4217675

Lotto Lotto unico

Data udienza 11/02/2026 ore 14:00

Termine presentazione offerte 10/02/2026 ore 23:59

Ti interessa questa vendita?

Visualizza su mappa

Mappa geografica del bene

Punti di interesse

Fonte dati

Nel raggio di {{range}}Km

Loading...
  • {{ getIcon(poi.type) }} {{ poi.localized }}: {{poi.count}}
  • {{ getIcon(poi.type) }} {{ poi.localized }}: {{poi.count}}
Dati non disponibili

quota 1/1 del diritto di piena proprietà del compendio immobiliare consistente in un appartamento composto al piano terra da soggiorno, con annesso angolo cottura, camera, bagno, disimpegno, area pertinenziale a giardino, al piano seminterrato, con destinazione d’uso a cantina, da soggiorno, due camere, bagno, disimpegni, ripostiglio e in un posto auto scoperto, posto al piano terra, situato presso l’area antistante l’ingresso del fabbricato identificato con il n. 20

Indirizzo
Via Quadrelle n 42, Roma (RM)


Codice asta
4217675


Lotto
Lotto unico


Numero beni
2


Genere
Immobili


Categoria
Immobile residenziale


Valore di stima
-


Appartamento

quota 1/1 del diritto di piena proprietà del compendio immobiliare, edificio B1, piano T/S1, int. 3, consistente in un appartamento composto al piano terra da soggiorno, con annesso angolo cottura, camera, bagno, disimpegno, area pertinenziale a giardino, al piano seminterrato, con destinazione d’uso a cantina, da soggiorno, due camere, bagno, disimpegni, ripostiglio e in un posto auto scoperto, posto al piano terra, situato presso l’area antistante l’ingresso del fabbricato identificato con il n. 20, confinante: con u.i. int. 4/vano scala/giardino, salvo altri (appartamento), con posto auto 21/area cortilizia di ingresso, salvo altri (posto auto scoperto);censito: al Catasto Fabbricati di detto Comune al foglio 1179, part. 746, sub 11, cl.5, cat. A/2, rendita catastale € 557,77 (appartamento), al foglio 1179, part. 746, sub 44, cl.8, cat. C/6, rendita catastale € 26,03 (posto auto scoperto).L’immobile è stato realizzato con permesso di costruire n. 933 prot. 52665 del 09/09/2004 ed ultima variante prot. 72636 del 25/10/2006. Non è dotato di agibilità. Presenta al piano seminterrato una variazione con opere della destinazione dell’originaria “cantina”, attualmente adibita ad uso residenziale. I locali in questione non presentano i requisiti per l’idoneità a tale destinazione residenziale. Le spese necessarie al legittimo stato quo ante della cantina, tramite presentazione di C.I.L.A., sono preventivate in un costo pari a € 3.000,00 comprensive dell’onorario del tecnico del progettista, nonché della direzione dei lavori, dei diritti comunali e delle opere edili per un costo pari a € 7.000,00.

Indirizzo
Via Quadrelle n 42, Roma (RM)


Piano
T


Disponibilità
LIBERO


Vani
4,00


Bagni
1


Metri quadri
93,60


Certificazione energetica
-


Posto auto

quota 1/1 del diritto di piena proprietà del compendio immobiliare, edificio B1, piano T/S1, int. 3, consistente in un appartamento composto al piano terra da soggiorno, con annesso angolo cottura, camera, bagno, disimpegno, area pertinenziale a giardino, al piano seminterrato, con destinazione d’uso a cantina, da soggiorno, due camere, bagno, disimpegni, ripostiglio e in un posto auto scoperto, posto al piano terra, situato presso l’area antistante l’ingresso del fabbricato identificato con il n. 20, confinante: con u.i. int. 4/vano scala/giardino, salvo altri (appartamento), con posto auto 21/area cortilizia di ingresso, salvo altri (posto auto scoperto);censito: al Catasto Fabbricati di detto Comune al foglio 1179, part. 746, sub 11, cl.5, cat. A/2, rendita catastale € 557,77 (appartamento), al foglio 1179, part. 746, sub 44, cl.8, cat. C/6, rendita catastale € 26,03 (posto auto scoperto).L’immobile è stato realizzato con permesso di costruire n. 933 prot. 52665 del 09/09/2004 ed ultima variante prot. 72636 del 25/10/2006. Non è dotato di agibilità. Presenta al piano seminterrato una variazione con opere della destinazione dell’originaria “cantina”, attualmente adibita ad uso residenziale. I locali in questione non presentano i requisiti per l’idoneità a tale destinazione residenziale. Le spese necessarie al legittimo stato quo ante della cantina, tramite presentazione di C.I.L.A., sono preventivate in un costo pari a € 3.000,00 comprensive dell’onorario del tecnico del progettista, nonché della direzione dei lavori, dei diritti comunali e delle opere edili per un costo pari a € 7.000,00.

Indirizzo
Via Quadrelle n 42, Roma (RM)


Piano
T


Disponibilità
LIBERO


Vani
1,00


Bagni
0


Metri quadri
12,00


Certificazione energetica
-


Data udienza
11/02/2026 ore 14:00


Tipo di vendita
Senza incanto


Modalità di vendita
Asincrona telematica


Luogo
N.A. -


Luogo presentazione offerte
-


Termine presentazione offerte
10/02/2026 ore 23:59


Prezzo base
€ 128.352,00


Offerta minima
€ 96.264,00


Rialzo minimo in caso di gara
€ 3.000,00


Deposito cauzionale
-


Deposito in conto spese
-


Tribunale
Roma

Tipo di procedura
Esecuzione immobiliare post legge 80

Ruolo
1071/2014

Giudice
D'ambrosio 

Recapiti
-

Email
-

Delegato alla vendita
Stanchi Barbara
(Procede alle operazioni di vendita)

Recapiti
Tel. 063722800

Email
-

Custode giudiziario
Ivg di roma srl 
(Gestisce la visita del bene)

Recapiti
-

Scheda COD. 4217675 - Pubblicata dal 19/12/2025

La presente scheda di vendita riporta integralmente informazioni e documenti pervenuti ufficialmente dal Ministero e dal professionista incaricato.

Pubblicazione notarizzata su Blockchain


Pubblicazione autorizzata dall’Autorità competente, è vietata ogni ripubblicazione o riproduzione anche parziale


Ti interessa questa vendita?

Visualizza su mappa

Mappa geografica del bene

Storico delle vendite

Data venditaPrezzo base
02/12/2025€ 160.440,00
11/02/2026€ 128.352,00

Punti di interesse

Fonte dati

Nel raggio di {{range}}Km

Loading...
  • {{ getIcon(poi.type) }} {{ poi.localized }}: {{poi.count}}
  • {{ getIcon(poi.type) }} {{ poi.localized }}: {{poi.count}}
Dati non disponibili