Astegiudiziarie.it è parte di Rete Aste Network

Accedi o registrati

Non sei ancora registrato?

Oppure

Accedi

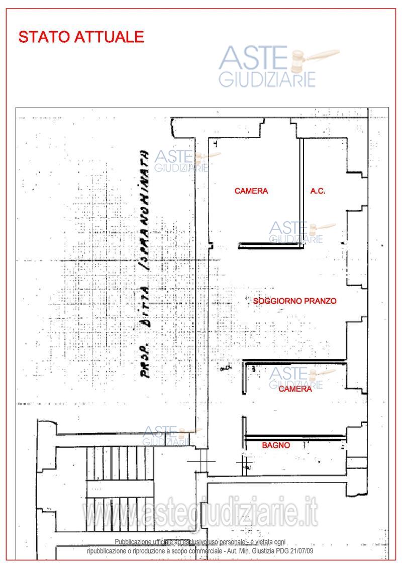
giudiziariagiudiziariaTribunale di ROMAESECUZIONI CIVILI IMMOBILIARIESPROPRIAZIONE IMMOBILIARE (CARTABIA)9772024CustodeFrancoProcissiPRCFNC50L27A241Tpvp@visiteivgroma.it0683751500falsetrueDelegato alla venditaEmanuelePicaPCIMNL81T04H501Aepica@bertiniepartners.it064825571truefalse2421327LOTTO UNICOIMMOBILIIMMOBILE RESIDENZIALEVia Monza, 9, 00182 Roma RM, Italia00182RomaRomaLazioItaliaQuota pari a 1/1 del diritto di piena proprietà su immobile sito in Roma, via Monza n. 9 – facenteparte del Fabbricato denominato “Fabbricato 3” e precisamente: appartamento posto al pianoprimo rialzato (in catasto piano secondo) della scala “C”, distinto con il numero interno 3,composto di due camere, cameretta ed accessori, per complessivi mq. 75.3123082IMMOBILE RESIDENZIALEABITAZIONE DI TIPO CIVILEVia Monza, 9, 00182 Roma RM, Italia00182RomaRomaLazioItaliaQuota pari a 1/1 del diritto di piena proprietà su immobile sito in Roma, via Monza n. 9 – facenteparte del Fabbricato denominato “Fabbricato 3” e precisamente: appartamento posto al pianoprimo rialzato (in catasto piano secondo) della scala “C”, distinto con il numero interno 3,composto di due camere, cameretta ed accessori, per complessivi mq. 75.Identificato al Catasto Fabbricati del Comune di Roma al foglio 926, Part. 36, Sub. 49.Confina con vano scala, appartamento distinto con il numero interno quattro della scala “C”,giardino su due lati, salvo altri.L’edificio è stato realizzato ante 1939, per cui la scheda catastale del 30/11/1939 costituisce titoloedilizio.Lo stato attuale dei luoghi differisce dalla planimetria catastale, per alcune modifiche degli spaziinterni, realizzate senza titolo edilizio.Formalità pregiudizievoli: nessuna.Stato di occupazione: occupato con contratto di locazione opponibile alla procedura, aventescadenza il 14/07/2027.Il tutto come meglio descritto nell’elaborato peritale depositato in attiOCCUP2026-07-14T10:00:00SENZA INCANTOASINCRONA TELEMATICAN.A.274.000,00205.500,005.000,002016-07-13T23:59:00gestore delle venditehttps://www.fallcoaste.ithttps://www.fallcoaste.itsito pubblicitahttps://www.astegiudiziarie.ithttps://www.astegiudiziarie.itsito pubblicitahttps://www.fallcoaste.ithttps://www.fallcoaste.itsito pubblicitahttps://www.asteannunci.ithttps://www.asteannunci.it2026-04-10

Abitazione di tipo civile

Via Monza, 9, 00182 Roma RM, Italia, Roma (RM)

€ 274.000,00

Offerta minima € 205.500,00


Codice A4345348

Lotto Lotto unico

Data udienza 14/07/2026 ore 10:00

Termine presentazione offerte 13/07/2026 ore 23:59

Abitazione di tipo civile

Via Monza, 9, 00182 Roma RM, Italia, Roma (RM)

€ 274.000,00

Offerta minima € 205.500,00


Codice A4345348

Lotto Lotto unico

Data udienza 14/07/2026 ore 10:00

Termine presentazione offerte 13/07/2026 ore 23:59

Ti interessa questa vendita?

Documentazione

Visualizza su mappa

Mappa geografica del bene

Punti di interesse

Fonte dati

Nel raggio di {{range}}Km

Loading...
  • {{ getIcon(poi.type) }} {{ poi.localized }}: {{poi.count}}
  • {{ getIcon(poi.type) }} {{ poi.localized }}: {{poi.count}}
Dati non disponibili

Quota pari a 1/1 del diritto di piena proprietà su immobile sito in Roma, via Monza n. 9 – facenteparte del Fabbricato denominato “Fabbricato 3” e precisamente: appartamento posto al pianoprimo rialzato (in catasto piano secondo) della scala “C”, distinto con il numero interno 3,composto di due camere, cameretta ed accessori, per complessivi mq. 75.

Indirizzo
Via Monza, 9, 00182 Roma RM, Italia, Roma (RM)


Codice asta
4345348


Lotto
Lotto unico


Numero beni
1


Genere
Immobili


Categoria
Immobile residenziale


Valore di stima
-


Abitazione di tipo civile

Quota pari a 1/1 del diritto di piena proprietà su immobile sito in Roma, via Monza n. 9 – facenteparte del Fabbricato denominato “Fabbricato 3” e precisamente: appartamento posto al pianoprimo rialzato (in catasto piano secondo) della scala “C”, distinto con il numero interno 3,composto di due camere, cameretta ed accessori, per complessivi mq. 75.Identificato al Catasto Fabbricati del Comune di Roma al foglio 926, Part. 36, Sub. 49.Confina con vano scala, appartamento distinto con il numero interno quattro della scala “C”,giardino su due lati, salvo altri.L’edificio è stato realizzato ante 1939, per cui la scheda catastale del 30/11/1939 costituisce titoloedilizio.Lo stato attuale dei luoghi differisce dalla planimetria catastale, per alcune modifiche degli spaziinterni, realizzate senza titolo edilizio.Formalità pregiudizievoli: nessuna.Stato di occupazione: occupato con contratto di locazione opponibile alla procedura, aventescadenza il 14/07/2027.Il tutto come meglio descritto nell’elaborato peritale depositato in atti

Indirizzo
Via Monza, 9, 00182 Roma RM, Italia, Roma (RM)


Piano
2


Disponibilità
OCCUPATO


Vani
3,50


Bagni
1


Metri quadri
75,00


Certificazione energetica
-


Data udienza
14/07/2026 ore 10:00


Tipo di vendita
Senza incanto


Modalità di vendita
Asincrona telematica


Luogo
N.A. -


Luogo presentazione offerte
-


Termine presentazione offerte
13/07/2026 ore 23:59


Prezzo base
€ 274.000,00


Offerta minima
€ 205.500,00


Rialzo minimo in caso di gara
€ 5.000,00


Deposito cauzionale
-


Deposito in conto spese
-


Tribunale
Roma

Tipo di procedura
Espropriazione immobiliare (cartabia)

Ruolo
977/2024

Giudice
Russo 

Recapiti
-

Email
-

Delegato alla vendita
Pica Emanuele
(Procede alle operazioni di vendita)

Recapiti
-

Email
-

Custode giudiziario
I.v.g di roma s.r.l. istituto vendite giudiziarie 
(Gestisce la visita del bene)

Recapiti
Tel. 06 83751500

Scheda COD. 4345348 - Pubblicata dal 24/04/2026

La presente scheda di vendita riporta integralmente informazioni e documenti pervenuti ufficialmente dal Ministero e dal professionista incaricato.


Pubblicazione autorizzata dall’Autorità competente, è vietata ogni ripubblicazione o riproduzione anche parziale


Ti interessa questa vendita?

Documentazione

Visualizza su mappa

Mappa geografica del bene

Punti di interesse

Fonte dati

Nel raggio di {{range}}Km

Loading...
  • {{ getIcon(poi.type) }} {{ poi.localized }}: {{poi.count}}
  • {{ getIcon(poi.type) }} {{ poi.localized }}: {{poi.count}}
Dati non disponibili