Astegiudiziarie.it è parte di Rete Aste Network

Accedi o registrati

Non sei ancora registrato?

Oppure

Accedi

giudiziariagiudiziariaTribunale di ROMAESECUZIONI CIVILI IMMOBILIARIESPROPRIAZIONE IMMOBILIARE (CARTABIA)1022024Delegato alla venditaMassimilianoCatapanoCTPMSM73B03H501GtruefalseGiudiceGiuseppeLauropolifalsefalseCustodeIvg di roma srlPRCFNC50L27A241Tpvp@visiteivgroma.it0689569801falsetrue2384566LOTTO UNICOIMMOBILIIMMOBILE RESIDENZIALEVia Monforte S. Giorgio, 6, 00133 Roma RM, ItaliaRomaRomaLazioItaliaQuota pari ad 1/1 del diritto di piena proprietà su appartamento sito in Roma (RM), Via Monforte San Giorgio n. 6, piano 3, interno 3, con terrazzo esclusivo di pertinenza al piano 4.3078485IMMOBILE RESIDENZIALEABITAZIONE DI TIPO CIVILEVia Monforte S. Giorgio, 6, 00133 Roma RM, ItaliaRomaRomaLazioItaliaQuota pari ad 1/1 del diritto di piena proprietà su appartamento sito in Roma (RM), Via Monforte San Giorgio n. 6, piano 3, interno 3, con terrazzo esclusivo di pertinenza al piano 4. L’appartamento si compone di disimpegno, soggiorno - angolo cottura, tre camere, bagno e due balconi. Il terrazzo di pertinenza esclusiva, costituito dal lastrico solare di copertura del fabbricato, è posto al piano quarto soprastante l’appartamento ed è raggiungibile tramite il vano scala comune. Sul predetto terrazzo è presente un locale in muratura completamente chiuso ed adibito a deposito. Il tutto, eccetto tale manufatto, per una superficie convenzionale complessiva pari a mq. 109,11 circa. L’intero compendio immobiliare confina con distacco su Via Mazzarrà Sant’Andrea, distacco su Via Monforte San Giorgio, vano scala, salvo altri e più esatti confini. L’appartamento è identificato al Catasto Fabbricati del Comune di Roma al foglio 1021, part.lla 86, sub 5, z.c. 6, cat. A/2, classe 4, consistenza 5 vani, superficie catastale totale 101 mq, totale escluse aree scoperte 93 mq., rendita euro 593,93, Via Monforte San Giorgio, piano 3. Il terrazzo esclusivo (lastrico solare di copertura) è identificato al Catasto Fabbricati del Comune di Roma al foglio 1021, part.lla 86, sub 501, cat. F/5, consistenza 103 mq, Via Monforte San Giorgio n. 6, piano 4. Gli immobili sono occupati dalla parte esecutata che vi abita con il figlio. Non potrà essere emesso l’ordine di liberazione prima del decreto di trasferimento. L’Esperto, a seguito delle indagini esperite presso gli Uffici Competenti e della disamina degli atti, come meglio e dettagliatamente indicato nella propria relazione, segnala che il fabbricato del quale sono parte gli immobili pignorati è stato realizzato in assenza di titolo edilizio abilitativo e terminato, come da domanda di condono, presumibilmente nel 1982. L’Esperto rappresenta che risultano agli atti n. 3 Domande di Condono relative al fabbricato aventi protocollo n. 86/58999/1 per appartamento interno 1 e garage, n. 86/58999/2 per appartamento interno 2, e n. 86/58999/3 per l’appartamento interno 3 oggetto di pignoramento. L’Esperto riferisce inoltre che, a causa dell’errato rilascio della Concessione in Sanatoria n. 99596 del 21/03/1999 per l’immobile interno 1 (laddove la relativa domanda si riferiva, invece, all’interno 2), risulta presentata istanza di riesame con scorporo ed annullamento dell’unica Concessione in Sanatoria rilasciata di cui sopra e per la nuova emissione di separate concessioni in sanatoria per le tre singole unità immobiliari. Dall’analisi della documentazione rilasciata dall’Ufficio Speciale Condono Edilizio relativa al fabbricato di cui trattasi, in particolare relativamente ai protocolli n. 86/58999/2 e n. 86/58999/3, l’Esperto rileva come nei rispettivi fascicoli siano presenti documenti inerenti tutte e tre le unità immobiliari. L’Esperto evidenzia che tale situazione comporta, di fatto, confusione e difficoltà nel distinguere i successivi provvedimenti e/o rilasci di Concessioni Edilizie in Sanatoria e che, pertanto, al fine di avere una visione globale delle problematiche e per l’ottenimento di regolare Concessione Edilizia in Sanatoria per l’appartamento interno 3 oggetto di pignoramento, è necessaria l’analisi congiunta di tutti i tre fascicoli, per quanto, a giudizio dello stesso, non dovrebbero sussistere particolari motivi ostativi. L’Esperto, nella stima dell’immobile pignorato, ha, dunque, tenuto conto della domanda di condono come ancora in fase istruttoria. Dalle ulteriori ricerche effettuate dall’Esperto presso il competente Municipio VI di appartenenza non risulta alcuna ulteriore pratica edilizia né provvedimento sanzionatorio per l’abuso sul terrazzo di copertura. Per la verifica della conformità edilizia degli immobili pignorati, l’Esperto ha ritenuto di prendere a riferimento la Domanda di Condono sopra citata, ancora in fase istruttoria e pertanto priva della relativa Concessione Edilizia in Sanatoria. Non essendo stata rilasciata a tutt’oggi la Concessione Edilizia in Sanatoria l’Esperto rappresenta che non risulta rilasciato neppure il relativo certificato di agibilità. Sarà, pertanto, a cura e spese dell’aggiudicatario presentare la Segnalazione Certificata di Agibilità (S.C.A.), dopo l’eventuale regolarizzazione urbanistico – edilizia, nel rispetto della normativa vigente. L’Esperto ritiene probabilmente sanabile l’abuso relativo alla costruzione in assenza di titolo edilizio abilitativo del compendio pignorato poiché per tale abuso sono state presentate tre Domande di Condono ai sensi della Legge n. 47/1985 in data 27/03/1986. Dall’analisi degli elaborati relativi a tali Domande di Condono, con particolare riferimento ai protocolli n. 86/58999/2 e n. 86/58999/3, della planimetria di progetto e della planimetria catastale relativi all’appartamento pignorato, l’Esperto ha potuto constatare la sostanziale conformità tra gli stessi e quanto rilevato in sede di sopralluogo. Ad oggi, come più sopra evidenziato, la pratica di condono risulta ancora in fase istruttoria e non risulta rilasciato alcun titolo autorizzativo (Concessione Edilizia in Sanatoria) né diniego. L’Esperto ha altresì rilevato difformità sia rispetto alle planimetrie catastali che rispetto alle Domande di Condono ed alla documentazione allegata relativamente alla presenza di un locale in muratura completamente chiuso ed adibito a deposito realizzato sulla terrazza di copertura. Trattasi di intervento con variazioni essenziali dal progetto per caratteristiche costruttive e destinazione d’uso, ai sensi del D.P.R. n. 380/2001 (Testo Unico dell’Edilizia). L’Esperto ritiene non sanabile tale abuso poiché detta modifica, realizzata mediante la costruzione di apposito manufatto, ha apportato variazioni di superfici calpestabili e volumetrie esterne e precisa, dunque, che tale locale presente sul terrazzo di copertura al piano quarto dovrà essere rimosso con il ripristino dello stato quo ante a mezzo di CILA a cura e spese dell’aggiudicatario. Ogni problematica e/o questione rispetto a tutto quanto sopra evidenziato e meglio rilevato, riportato e descritto nell’elaborato peritale nonché riguardo ad eventuali rapporti, vincoli, oneri, servitù e/o diritti di terzi o comunque connessa o dipendente dalla predetta situazione esistente nonché tutti gli oneri e costi che dovessero derivarne, il conseguimento dei titoli abilitativi, la regolarizzazione e/o le rimozioni con il ripristino nello stato legittimato e/o assentito nonché le relative variazioni ed aggiornamenti catastali, saranno a totale rischio, carico, cura e spese dell’aggiudicatario, come meglio indicato in perizia. Di tutto quanto sopra e della complessiva situazione esistente, delle criticità, della mancanza di garanzia e dei rischi relativi alla incertezza circa la reale situazione in merito alla regolarità urbanistica, delle condizioni e dello stato del compendio, nonché di quanto necessario per il ripristino e la regolarizzazione urbanistica ed amministrativa nonché catastale, come meglio precisato in perizia, ivi inclusi oneri e spese di ogni genere, che sono ad esclusivo carico e cura dell’aggiudicatario, si è tenuto conto nella determinazione del valore di stima. Non è stato possibile redigere l’APE in considerazione dello stato di fatto ed in assenza della necessaria documentazione. Il tutto come meglio descritto nell’elaborato peritale depositato in atti.1021865OCCST1015.033078504ALTRA CATEGORIALASTRICO SOLAREVia Monforte S. Giorgio, 6, 00133 Roma RM, ItaliaRomaRomaLazioItaliaQuota pari ad 1/1 del diritto di piena proprietà su appartamento sito in Roma (RM), Via Monforte San Giorgio n. 6, piano 3, interno 3, con terrazzo esclusivo di pertinenza al piano 4. L’appartamento si compone di disimpegno, soggiorno - angolo cottura, tre camere, bagno e due balconi. Il terrazzo di pertinenza esclusiva, costituito dal lastrico solare di copertura del fabbricato, è posto al piano quarto soprastante l’appartamento ed è raggiungibile tramite il vano scala comune. Sul predetto terrazzo è presente un locale in muratura completamente chiuso ed adibito a deposito. Il tutto, eccetto tale manufatto, per una superficie convenzionale complessiva pari a mq. 109,11 circa. L’intero compendio immobiliare confina con distacco su Via Mazzarrà Sant’Andrea, distacco su Via Monforte San Giorgio, vano scala, salvo altri e più esatti confini. L’appartamento è identificato al Catasto Fabbricati del Comune di Roma al foglio 1021, part.lla 86, sub 5, z.c. 6, cat. A/2, classe 4, consistenza 5 vani, superficie catastale totale 101 mq, totale escluse aree scoperte 93 mq., rendita euro 593,93, Via Monforte San Giorgio, piano 3. Il terrazzo esclusivo (lastrico solare di copertura) è identificato al Catasto Fabbricati del Comune di Roma al foglio 1021, part.lla 86, sub 501, cat. F/5, consistenza 103 mq, Via Monforte San Giorgio n. 6, piano 4. Gli immobili sono occupati dalla parte esecutata che vi abita con il figlio. Non potrà essere emesso l’ordine di liberazione prima del decreto di trasferimento. L’Esperto, a seguito delle indagini esperite presso gli Uffici Competenti e della disamina degli atti, come meglio e dettagliatamente indicato nella propria relazione, segnala che il fabbricato del quale sono parte gli immobili pignorati è stato realizzato in assenza di titolo edilizio abilitativo e terminato, come da domanda di condono, presumibilmente nel 1982. L’Esperto rappresenta che risultano agli atti n. 3 Domande di Condono relative al fabbricato aventi protocollo n. 86/58999/1 per appartamento interno 1 e garage, n. 86/58999/2 per appartamento interno 2, e n. 86/58999/3 per l’appartamento interno 3 oggetto di pignoramento. L’Esperto riferisce inoltre che, a causa dell’errato rilascio della Concessione in Sanatoria n. 99596 del 21/03/1999 per l’immobile interno 1 (laddove la relativa domanda si riferiva, invece, all’interno 2), risulta presentata istanza di riesame con scorporo ed annullamento dell’unica Concessione in Sanatoria rilasciata di cui sopra e per la nuova emissione di separate concessioni in sanatoria per le tre singole unità immobiliari. Dall’analisi della documentazione rilasciata dall’Ufficio Speciale Condono Edilizio relativa al fabbricato di cui trattasi, in particolare relativamente ai protocolli n. 86/58999/2 e n. 86/58999/3, l’Esperto rileva come nei rispettivi fascicoli siano presenti documenti inerenti tutte e tre le unità immobiliari. L’Esperto evidenzia che tale situazione comporta, di fatto, confusione e difficoltà nel distinguere i successivi provvedimenti e/o rilasci di Concessioni Edilizie in Sanatoria e che, pertanto, al fine di avere una visione globale delle problematiche e per l’ottenimento di regolare Concessione Edilizia in Sanatoria per l’appartamento interno 3 oggetto di pignoramento, è necessaria l’analisi congiunta di tutti i tre fascicoli, per quanto, a giudizio dello stesso, non dovrebbero sussistere particolari motivi ostativi. L’Esperto, nella stima dell’immobile pignorato, ha, dunque, tenuto conto della domanda di condono come ancora in fase istruttoria. Dalle ulteriori ricerche effettuate dall’Esperto presso il competente Municipio VI di appartenenza non risulta alcuna ulteriore pratica edilizia né provvedimento sanzionatorio per l’abuso sul terrazzo di copertura. Per la verifica della conformità edilizia degli immobili pignorati, l’Esperto ha ritenuto di prendere a riferimento la Domanda di Condono sopra citata, ancora in fase istruttoria e pertanto priva della relativa Concessione Edilizia in Sanatoria. Non essendo stata rilasciata a tutt’oggi la Concessione Edilizia in Sanatoria l’Esperto rappresenta che non risulta rilasciato neppure il relativo certificato di agibilità. Sarà, pertanto, a cura e spese dell’aggiudicatario presentare la Segnalazione Certificata di Agibilità (S.C.A.), dopo l’eventuale regolarizzazione urbanistico – edilizia, nel rispetto della normativa vigente. L’Esperto ritiene probabilmente sanabile l’abuso relativo alla costruzione in assenza di titolo edilizio abilitativo del compendio pignorato poiché per tale abuso sono state presentate tre Domande di Condono ai sensi della Legge n. 47/1985 in data 27/03/1986. Dall’analisi degli elaborati relativi a tali Domande di Condono, con particolare riferimento ai protocolli n. 86/58999/2 e n. 86/58999/3, della planimetria di progetto e della planimetria catastale relativi all’appartamento pignorato, l’Esperto ha potuto constatare la sostanziale conformità tra gli stessi e quanto rilevato in sede di sopralluogo. Ad oggi, come più sopra evidenziato, la pratica di condono risulta ancora in fase istruttoria e non risulta rilasciato alcun titolo autorizzativo (Concessione Edilizia in Sanatoria) né diniego. L’Esperto ha altresì rilevato difformità sia rispetto alle planimetrie catastali che rispetto alle Domande di Condono ed alla documentazione allegata relativamente alla presenza di un locale in muratura completamente chiuso ed adibito a deposito realizzato sulla terrazza di copertura. Trattasi di intervento con variazioni essenziali dal progetto per caratteristiche costruttive e destinazione d’uso, ai sensi del D.P.R. n. 380/2001 (Testo Unico dell’Edilizia). L’Esperto ritiene non sanabile tale abuso poiché detta modifica, realizzata mediante la costruzione di apposito manufatto, ha apportato variazioni di superfici calpestabili e volumetrie esterne e precisa, dunque, che tale locale presente sul terrazzo di copertura al piano quarto dovrà essere rimosso con il ripristino dello stato quo ante a mezzo di CILA a cura e spese dell’aggiudicatario. Ogni problematica e/o questione rispetto a tutto quanto sopra evidenziato e meglio rilevato, riportato e descritto nell’elaborato peritale nonché riguardo ad eventuali rapporti, vincoli, oneri, servitù e/o diritti di terzi o comunque connessa o dipendente dalla predetta situazione esistente nonché tutti gli oneri e costi che dovessero derivarne, il conseguimento dei titoli abilitativi, la regolarizzazione e/o le rimozioni con il ripristino nello stato legittimato e/o assentito nonché le relative variazioni ed aggiornamenti catastali, saranno a totale rischio, carico, cura e spese dell’aggiudicatario, come meglio indicato in perizia. Di tutto quanto sopra e della complessiva situazione esistente, delle criticità, della mancanza di garanzia e dei rischi relativi alla incertezza circa la reale situazione in merito alla regolarità urbanistica, delle condizioni e dello stato del compendio, nonché di quanto necessario per il ripristino e la regolarizzazione urbanistica ed amministrativa nonché catastale, come meglio precisato in perizia, ivi inclusi oneri e spese di ogni genere, che sono ad esclusivo carico e cura dell’aggiudicatario, si è tenuto conto nella determinazione del valore di stima. Non è stato possibile redigere l’APE in considerazione dello stato di fatto ed in assenza della necessaria documentazione. Il tutto come meglio descritto nell’elaborato peritale depositato in atti.102186501OCCST10342026-04-15T14:00:00SENZA INCANTOASINCRONA TELEMATICAN.A.123.200,0092.400,005.000,002026-04-14T23:59:00sito pubblicitahttps://www.fallcoaste.ithttps://www.fallcoaste.itgestore delle venditehttps://www.fallcoaste.ithttps://www.fallcoaste.itsito pubblicitahttps://www.asteannunci.ithttps://www.asteannunci.itsito pubblicitahttps://www.astegiudiziarie.ithttps://www.astegiudiziarie.it2026-01-29

Abitazione di tipo civile, lastrico solare

Via Monforte S. Giorgio, 6, 00133 Roma RM, Italia, Roma (RM)

€ 123.200,00

Offerta minima € 92.400,00


Codice A4338313

Lotto Lotto unico

Data udienza 15/04/2026 ore 14:00

Termine presentazione offerte 14/04/2026 ore 23:59

Abitazione di tipo civile, lastrico solare

Via Monforte S. Giorgio, 6, 00133 Roma RM, Italia, Roma (RM)

€ 123.200,00

Offerta minima € 92.400,00


Codice A4338313

Lotto Lotto unico

Data udienza 15/04/2026 ore 14:00

Termine presentazione offerte 14/04/2026 ore 23:59

Ti interessa questa vendita?

Documentazione

Visualizza su mappa

Mappa geografica del bene

Punti di interesse

Fonte dati

Nel raggio di {{range}}Km

Loading...
  • {{ getIcon(poi.type) }} {{ poi.localized }}: {{poi.count}}
  • {{ getIcon(poi.type) }} {{ poi.localized }}: {{poi.count}}
Dati non disponibili

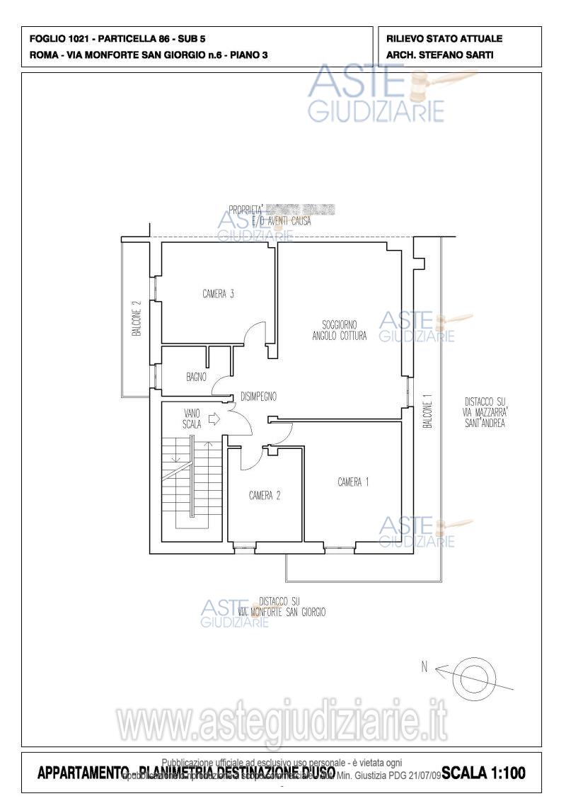
Quota pari ad 1/1 del diritto di piena proprietà su appartamento sito in Roma (RM), Via Monforte San Giorgio n. 6, piano 3, interno 3, con terrazzo esclusivo di pertinenza al piano 4.

Indirizzo
Via Monforte S. Giorgio, 6, 00133 Roma RM, Italia, Roma (RM)


Codice asta
4338313


Lotto
Lotto unico


Numero beni
2


Genere
Immobili


Categoria
Immobile residenziale


Valore di stima
-


Abitazione di tipo civile

Quota pari ad 1/1 del diritto di piena proprietà su appartamento sito in Roma (RM), Via Monforte San Giorgio n. 6, piano 3, interno 3, con terrazzo esclusivo di pertinenza al piano 4. L’appartamento si compone di disimpegno, soggiorno - angolo cottura, tre camere, bagno e due balconi. Il terrazzo di pertinenza esclusiva, costituito dal lastrico solare di copertura del fabbricato, è posto al piano quarto soprastante l’appartamento ed è raggiungibile tramite il vano scala comune. Sul predetto terrazzo è presente un locale in muratura completamente chiuso ed adibito a deposito. Il tutto, eccetto tale manufatto, per una superficie convenzionale complessiva pari a mq. 109,11 circa. L’intero compendio immobiliare confina con distacco su Via Mazzarrà Sant’Andrea, distacco su Via Monforte San Giorgio, vano scala, salvo altri e più esatti confini. L’appartamento è identificato al Catasto Fabbricati del Comune di Roma al foglio 1021, part.lla 86, sub 5, z.c. 6, cat. A/2, classe 4, consistenza 5 vani, superficie catastale totale 101 mq, totale escluse aree scoperte 93 mq., rendita euro 593,93, Via Monforte San Giorgio, piano 3. Il terrazzo esclusivo (lastrico solare di copertura) è identificato al Catasto Fabbricati del Comune di Roma al foglio 1021, part.lla 86, sub 501, cat. F/5, consistenza 103 mq, Via Monforte San Giorgio n. 6, piano 4. Gli immobili sono occupati dalla parte esecutata che vi abita con il figlio. Non potrà essere emesso l’ordine di liberazione prima del decreto di trasferimento. L’Esperto, a seguito delle indagini esperite presso gli Uffici Competenti e della disamina degli atti, come meglio e dettagliatamente indicato nella propria relazione, segnala che il fabbricato del quale sono parte gli immobili pignorati è stato realizzato in assenza di titolo edilizio abilitativo e terminato, come da domanda di condono, presumibilmente nel 1982. L’Esperto rappresenta che risultano agli atti n. 3 Domande di Condono relative al fabbricato aventi protocollo n. 86/58999/1 per appartamento interno 1 e garage, n. 86/58999/2 per appartamento interno 2, e n. 86/58999/3 per l’appartamento interno 3 oggetto di pignoramento. L’Esperto riferisce inoltre che, a causa dell’errato rilascio della Concessione in Sanatoria n. 99596 del 21/03/1999 per l’immobile interno 1 (laddove la relativa domanda si riferiva, invece, all’interno 2), risulta presentata istanza di riesame con scorporo ed annullamento dell’unica Concessione in Sanatoria rilasciata di cui sopra e per la nuova emissione di separate concessioni in sanatoria per le tre singole unità immobiliari. Dall’analisi della documentazione rilasciata dall’Ufficio Speciale Condono Edilizio relativa al fabbricato di cui trattasi, in particolare relativamente ai protocolli n. 86/58999/2 e n. 86/58999/3, l’Esperto rileva come nei rispettivi fascicoli siano presenti documenti inerenti tutte e tre le unità immobiliari. L’Esperto evidenzia che tale situazione comporta, di fatto, confusione e difficoltà nel distinguere i successivi provvedimenti e/o rilasci di Concessioni Edilizie in Sanatoria e che, pertanto, al fine di avere una visione globale delle problematiche e per l’ottenimento di regolare Concessione Edilizia in Sanatoria per l’appartamento interno 3 oggetto di pignoramento, è necessaria l’analisi congiunta di tutti i tre fascicoli, per quanto, a giudizio dello stesso, non dovrebbero sussistere particolari motivi ostativi. L’Esperto, nella stima dell’immobile pignorato, ha, dunque, tenuto conto della domanda di condono come ancora in fase istruttoria. Dalle ulteriori ricerche effettuate dall’Esperto presso il competente Municipio VI di appartenenza non risulta alcuna ulteriore pratica edilizia né provvedimento sanzionatorio per l’abuso sul terrazzo di copertura. Per la verifica della conformità edilizia degli immobili pignorati, l’Esperto ha ritenuto di prendere a riferimento la Domanda di Condono sopra citata, ancora in fase istruttoria e pertanto priva della relativa Concessione Edilizia in Sanatoria. Non essendo stata rilasciata a tutt’oggi la Concessione Edilizia in Sanatoria l’Esperto rappresenta che non risulta rilasciato neppure il relativo certificato di agibilità. Sarà, pertanto, a cura e spese dell’aggiudicatario presentare la Segnalazione Certificata di Agibilità (S.C.A.), dopo l’eventuale regolarizzazione urbanistico – edilizia, nel rispetto della normativa vigente. L’Esperto ritiene probabilmente sanabile l’abuso relativo alla costruzione in assenza di titolo edilizio abilitativo del compendio pignorato poiché per tale abuso sono state presentate tre Domande di Condono ai sensi della Legge n. 47/1985 in data 27/03/1986. Dall’analisi degli elaborati relativi a tali Domande di Condono, con particolare riferimento ai protocolli n. 86/58999/2 e n. 86/58999/3, della planimetria di progetto e della planimetria catastale relativi all’appartamento pignorato, l’Esperto ha potuto constatare la sostanziale conformità tra gli stessi e quanto rilevato in sede di sopralluogo. Ad oggi, come più sopra evidenziato, la pratica di condono risulta ancora in fase istruttoria e non risulta rilasciato alcun titolo autorizzativo (Concessione Edilizia in Sanatoria) né diniego. L’Esperto ha altresì rilevato difformità sia rispetto alle planimetrie catastali che rispetto alle Domande di Condono ed alla documentazione allegata relativamente alla presenza di un locale in muratura completamente chiuso ed adibito a deposito realizzato sulla terrazza di copertura. Trattasi di intervento con variazioni essenziali dal progetto per caratteristiche costruttive e destinazione d’uso, ai sensi del D.P.R. n. 380/2001 (Testo Unico dell’Edilizia). L’Esperto ritiene non sanabile tale abuso poiché detta modifica, realizzata mediante la costruzione di apposito manufatto, ha apportato variazioni di superfici calpestabili e volumetrie esterne e precisa, dunque, che tale locale presente sul terrazzo di copertura al piano quarto dovrà essere rimosso con il ripristino dello stato quo ante a mezzo di CILA a cura e spese dell’aggiudicatario. Ogni problematica e/o questione rispetto a tutto quanto sopra evidenziato e meglio rilevato, riportato e descritto nell’elaborato peritale nonché riguardo ad eventuali rapporti, vincoli, oneri, servitù e/o diritti di terzi o comunque connessa o dipendente dalla predetta situazione esistente nonché tutti gli oneri e costi che dovessero derivarne, il conseguimento dei titoli abilitativi, la regolarizzazione e/o le rimozioni con il ripristino nello stato legittimato e/o assentito nonché le relative variazioni ed aggiornamenti catastali, saranno a totale rischio, carico, cura e spese dell’aggiudicatario, come meglio indicato in perizia. Di tutto quanto sopra e della complessiva situazione esistente, delle criticità, della mancanza di garanzia e dei rischi relativi alla incertezza circa la reale situazione in merito alla regolarità urbanistica, delle condizioni e dello stato del compendio, nonché di quanto necessario per il ripristino e la regolarizzazione urbanistica ed amministrativa nonché catastale, come meglio precisato in perizia, ivi inclusi oneri e spese di ogni genere, che sono ad esclusivo carico e cura dell’aggiudicatario, si è tenuto conto nella determinazione del valore di stima. Non è stato possibile redigere l’APE in considerazione dello stato di fatto ed in assenza della necessaria documentazione. Il tutto come meglio descritto nell’elaborato peritale depositato in atti.

Indirizzo
Via Monforte S. Giorgio, 6, 00133 Roma RM, Italia, Roma (RM)


Piano
3


Disponibilità
Occupato senza titolo


Vani
5,00


Bagni
1


Metri quadri
101,00


Certificazione energetica
-


Dati catastali

Foglio:1021, Particella:86, Subalterno:5


Lastrico solare

Quota pari ad 1/1 del diritto di piena proprietà su appartamento sito in Roma (RM), Via Monforte San Giorgio n. 6, piano 3, interno 3, con terrazzo esclusivo di pertinenza al piano 4. L’appartamento si compone di disimpegno, soggiorno - angolo cottura, tre camere, bagno e due balconi. Il terrazzo di pertinenza esclusiva, costituito dal lastrico solare di copertura del fabbricato, è posto al piano quarto soprastante l’appartamento ed è raggiungibile tramite il vano scala comune. Sul predetto terrazzo è presente un locale in muratura completamente chiuso ed adibito a deposito. Il tutto, eccetto tale manufatto, per una superficie convenzionale complessiva pari a mq. 109,11 circa. L’intero compendio immobiliare confina con distacco su Via Mazzarrà Sant’Andrea, distacco su Via Monforte San Giorgio, vano scala, salvo altri e più esatti confini. L’appartamento è identificato al Catasto Fabbricati del Comune di Roma al foglio 1021, part.lla 86, sub 5, z.c. 6, cat. A/2, classe 4, consistenza 5 vani, superficie catastale totale 101 mq, totale escluse aree scoperte 93 mq., rendita euro 593,93, Via Monforte San Giorgio, piano 3. Il terrazzo esclusivo (lastrico solare di copertura) è identificato al Catasto Fabbricati del Comune di Roma al foglio 1021, part.lla 86, sub 501, cat. F/5, consistenza 103 mq, Via Monforte San Giorgio n. 6, piano 4. Gli immobili sono occupati dalla parte esecutata che vi abita con il figlio. Non potrà essere emesso l’ordine di liberazione prima del decreto di trasferimento. L’Esperto, a seguito delle indagini esperite presso gli Uffici Competenti e della disamina degli atti, come meglio e dettagliatamente indicato nella propria relazione, segnala che il fabbricato del quale sono parte gli immobili pignorati è stato realizzato in assenza di titolo edilizio abilitativo e terminato, come da domanda di condono, presumibilmente nel 1982. L’Esperto rappresenta che risultano agli atti n. 3 Domande di Condono relative al fabbricato aventi protocollo n. 86/58999/1 per appartamento interno 1 e garage, n. 86/58999/2 per appartamento interno 2, e n. 86/58999/3 per l’appartamento interno 3 oggetto di pignoramento. L’Esperto riferisce inoltre che, a causa dell’errato rilascio della Concessione in Sanatoria n. 99596 del 21/03/1999 per l’immobile interno 1 (laddove la relativa domanda si riferiva, invece, all’interno 2), risulta presentata istanza di riesame con scorporo ed annullamento dell’unica Concessione in Sanatoria rilasciata di cui sopra e per la nuova emissione di separate concessioni in sanatoria per le tre singole unità immobiliari. Dall’analisi della documentazione rilasciata dall’Ufficio Speciale Condono Edilizio relativa al fabbricato di cui trattasi, in particolare relativamente ai protocolli n. 86/58999/2 e n. 86/58999/3, l’Esperto rileva come nei rispettivi fascicoli siano presenti documenti inerenti tutte e tre le unità immobiliari. L’Esperto evidenzia che tale situazione comporta, di fatto, confusione e difficoltà nel distinguere i successivi provvedimenti e/o rilasci di Concessioni Edilizie in Sanatoria e che, pertanto, al fine di avere una visione globale delle problematiche e per l’ottenimento di regolare Concessione Edilizia in Sanatoria per l’appartamento interno 3 oggetto di pignoramento, è necessaria l’analisi congiunta di tutti i tre fascicoli, per quanto, a giudizio dello stesso, non dovrebbero sussistere particolari motivi ostativi. L’Esperto, nella stima dell’immobile pignorato, ha, dunque, tenuto conto della domanda di condono come ancora in fase istruttoria. Dalle ulteriori ricerche effettuate dall’Esperto presso il competente Municipio VI di appartenenza non risulta alcuna ulteriore pratica edilizia né provvedimento sanzionatorio per l’abuso sul terrazzo di copertura. Per la verifica della conformità edilizia degli immobili pignorati, l’Esperto ha ritenuto di prendere a riferimento la Domanda di Condono sopra citata, ancora in fase istruttoria e pertanto priva della relativa Concessione Edilizia in Sanatoria. Non essendo stata rilasciata a tutt’oggi la Concessione Edilizia in Sanatoria l’Esperto rappresenta che non risulta rilasciato neppure il relativo certificato di agibilità. Sarà, pertanto, a cura e spese dell’aggiudicatario presentare la Segnalazione Certificata di Agibilità (S.C.A.), dopo l’eventuale regolarizzazione urbanistico – edilizia, nel rispetto della normativa vigente. L’Esperto ritiene probabilmente sanabile l’abuso relativo alla costruzione in assenza di titolo edilizio abilitativo del compendio pignorato poiché per tale abuso sono state presentate tre Domande di Condono ai sensi della Legge n. 47/1985 in data 27/03/1986. Dall’analisi degli elaborati relativi a tali Domande di Condono, con particolare riferimento ai protocolli n. 86/58999/2 e n. 86/58999/3, della planimetria di progetto e della planimetria catastale relativi all’appartamento pignorato, l’Esperto ha potuto constatare la sostanziale conformità tra gli stessi e quanto rilevato in sede di sopralluogo. Ad oggi, come più sopra evidenziato, la pratica di condono risulta ancora in fase istruttoria e non risulta rilasciato alcun titolo autorizzativo (Concessione Edilizia in Sanatoria) né diniego. L’Esperto ha altresì rilevato difformità sia rispetto alle planimetrie catastali che rispetto alle Domande di Condono ed alla documentazione allegata relativamente alla presenza di un locale in muratura completamente chiuso ed adibito a deposito realizzato sulla terrazza di copertura. Trattasi di intervento con variazioni essenziali dal progetto per caratteristiche costruttive e destinazione d’uso, ai sensi del D.P.R. n. 380/2001 (Testo Unico dell’Edilizia). L’Esperto ritiene non sanabile tale abuso poiché detta modifica, realizzata mediante la costruzione di apposito manufatto, ha apportato variazioni di superfici calpestabili e volumetrie esterne e precisa, dunque, che tale locale presente sul terrazzo di copertura al piano quarto dovrà essere rimosso con il ripristino dello stato quo ante a mezzo di CILA a cura e spese dell’aggiudicatario. Ogni problematica e/o questione rispetto a tutto quanto sopra evidenziato e meglio rilevato, riportato e descritto nell’elaborato peritale nonché riguardo ad eventuali rapporti, vincoli, oneri, servitù e/o diritti di terzi o comunque connessa o dipendente dalla predetta situazione esistente nonché tutti gli oneri e costi che dovessero derivarne, il conseguimento dei titoli abilitativi, la regolarizzazione e/o le rimozioni con il ripristino nello stato legittimato e/o assentito nonché le relative variazioni ed aggiornamenti catastali, saranno a totale rischio, carico, cura e spese dell’aggiudicatario, come meglio indicato in perizia. Di tutto quanto sopra e della complessiva situazione esistente, delle criticità, della mancanza di garanzia e dei rischi relativi alla incertezza circa la reale situazione in merito alla regolarità urbanistica, delle condizioni e dello stato del compendio, nonché di quanto necessario per il ripristino e la regolarizzazione urbanistica ed amministrativa nonché catastale, come meglio precisato in perizia, ivi inclusi oneri e spese di ogni genere, che sono ad esclusivo carico e cura dell’aggiudicatario, si è tenuto conto nella determinazione del valore di stima. Non è stato possibile redigere l’APE in considerazione dello stato di fatto ed in assenza della necessaria documentazione. Il tutto come meglio descritto nell’elaborato peritale depositato in atti.

Indirizzo
Via Monforte S. Giorgio, 6, 00133 Roma RM, Italia, Roma (RM)


Piano
4


Disponibilità
Occupato senza titolo


Vani
1,00


Bagni
0


Metri quadri
103,00


Certificazione energetica
-


Dati catastali

Foglio:1021, Particella:86, Subalterno:501


Data udienza
15/04/2026 ore 14:00


Tipo di vendita
Senza incanto


Modalità di vendita
Asincrona telematica


Luogo
N.A. -


Luogo presentazione offerte
-


Termine presentazione offerte
14/04/2026 ore 23:59


Prezzo base
€ 123.200,00


Offerta minima
€ 92.400,00


Rialzo minimo in caso di gara
€ 5.000,00


Deposito cauzionale
-


Deposito in conto spese
-


Tribunale
Roma

Tipo di procedura
Espropriazione immobiliare (cartabia)

Ruolo
102/2024

Giudice
Lauropoli Giuseppe

Recapiti
-

Email
-

Delegato alla vendita
Catapano Massimiliano
(Procede alle operazioni di vendita)

Recapiti
-

Email
-

Custode giudiziario
Ivg di roma srl 
(Gestisce la visita del bene)

Recapiti
Tel. 0689569801

Scheda COD. 4338313 - Pubblicata dal 20/02/2026

La presente scheda di vendita riporta integralmente informazioni e documenti pervenuti ufficialmente dal Ministero e dal professionista incaricato.


Pubblicazione autorizzata dall’Autorità competente, è vietata ogni ripubblicazione o riproduzione anche parziale


Ti interessa questa vendita?

Documentazione

Visualizza su mappa

Mappa geografica del bene

Storico delle vendite

Data venditaPrezzo base
20/01/2026€ 154.000,00
15/04/2026€ 123.200,00

Punti di interesse

Fonte dati

Nel raggio di {{range}}Km

Loading...
  • {{ getIcon(poi.type) }} {{ poi.localized }}: {{poi.count}}
  • {{ getIcon(poi.type) }} {{ poi.localized }}: {{poi.count}}
Dati non disponibili