Astegiudiziarie.it è parte di Rete Aste Network

Accedi o registrati

Non sei ancora registrato?

Oppure

Accedi

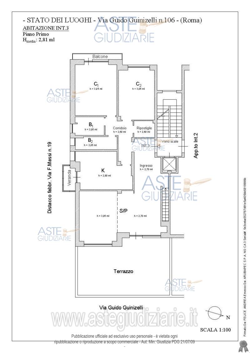
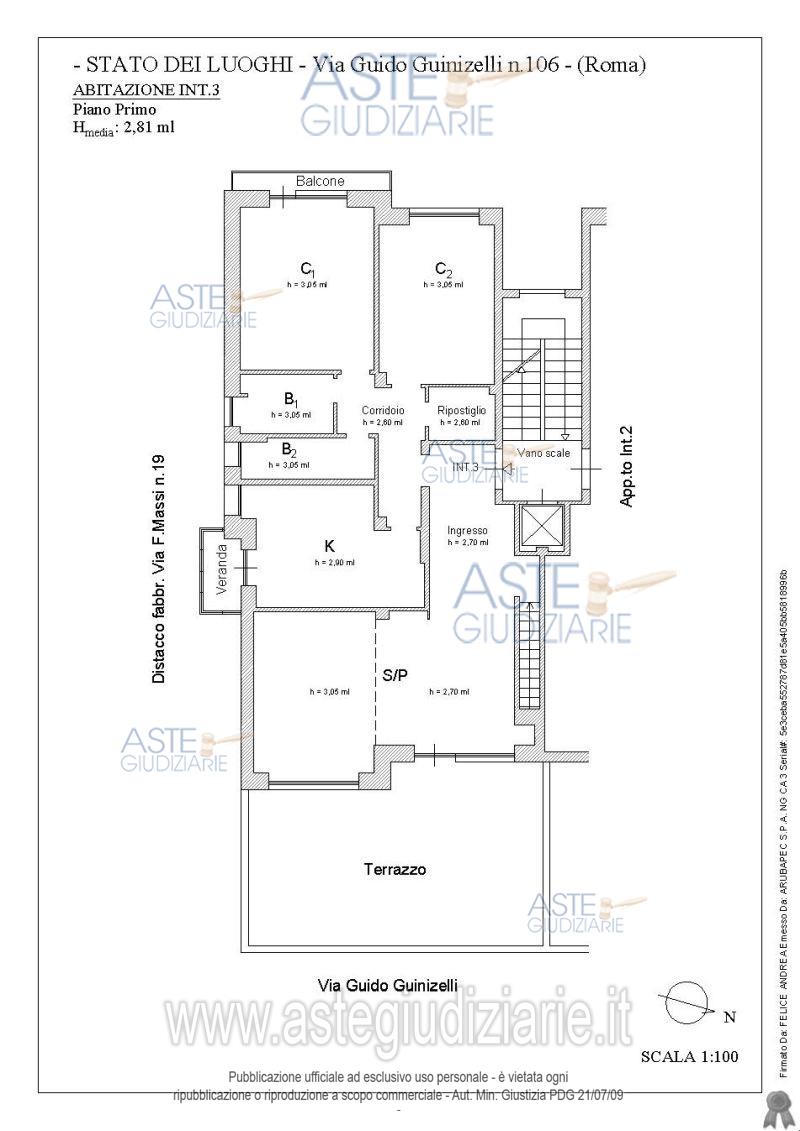
giudiziariagiudiziariaTribunale di ROMAESECUZIONI CIVILI IMMOBILIARIESECUZIONE IMMOBILIARE POST LEGGE 809852019CustodeIvg di roma srlIvg di roma srlPRCFNC50L27A241Tivgroma@associazioneivg.legalmail.it06837515000683751500falsetrueGiudiceFernandoDott. scolarofalsefalseDelegato alla venditaGiovanniDott. caravettaCRVGNN64E10H501Rgiovanni.caravetta@legalmail.it068416868068416868truefalse2343302LOTTO UNICOIMMOBILIIMMOBILE RESIDENZIALEVia Guido Guinizelli, 106, 00152 Roma RM, Italia00152RomaRomaLazioItalia100/100 del diritto di proprietà su appartamento in Roma Via Guido Guinizelli n. 106, P.1, T, S1, Int. 3. L’acquirente dell’immobile avrà una quota proporzionale millesimale, rispetto all’appartamento, dell’area coperta e scoperta di pertinenza del fabbricato identificata al Catasto Terreni sez. A Comune Roma Fg.460, part. 590 Ente Urbano. Si dovrà procedere con S.C.I.A. in sanatoria (art. 37 D.P.R. 380/01). Formalità pregiudizievoli non cancellabili dal G.E Emesso ordine liberazione immobile il 3.10.25.3027870IMMOBILE RESIDENZIALEABITAZIONE DI TIPO CIVILEVia Guido Guinizelli, 106, 00152 Roma RM, Italia00152RomaRomaLazioItaliaQuota pari a 100/100 del diritto di proprietà su appartamento sito in Roma – Via Guido Guinizellin. 106, P.1, T, S1, Int. 3. L’immobile si sviluppa su tre livelli. L’acquirente dell’immobile avrà una quota proporzionalemillesimale, rispetto all’appartamento sopra descritto, dell’area coperta e scoperta di pertinenza del fabbricato identificata al Catasto Terreni sez. A del Comune di Roma Fg.460, part. 590 Ente Urbano. Si dovrà procedere con una S.C.I.A. in sanatoria (art. 37 del D.P.R. 380/01) per la regolarizzazione dei vani finestra e sanare anche quella piccola difformità interna. Formalità pregiudizievoli non cancellabili dal G.E.: domanda giudiziale trascritta in data 08.02.2016 formalità 12519/8553, avente ad oggetto esecuzione in forma specifica del 05.02.2016 Tribunale di Roma 1504/2016. Emesso ordine liberazione immobile in data 3.10.2025460590504INCOR2026-01-08T10:00:00SENZA INCANTOASINCRONA TELEMATICAN.A.628.000,00471.000,003.000,002026-01-07T23:59:00gestore delle venditehttps://www.garavirtuale.ithttps://www.garavirtuale.itsito pubblicitahttps://www.astegiudiziarie.ithttps://www.astegiudiziarie.itsito pubblicitahttps://www.asteannunci.ithttps://www.asteannunci.itsito pubblicitahttps://www.fallcoaste.ithttps://www.fallcoaste.it2025-10-28AVVISO DI RETTIFICASI COMUNICA CHE IN DATA 3.10.2025 IL G.E. HA EMESSO L'ORDINE DI LIBERAZIONE DEL BENE EX ART 560 CPC 2025-10-28

Abitazione di tipo civile

Via Guido Guinizelli, 106, 00152 Roma RM, Italia, Roma (RM)

€ 628.000,00

Offerta minima € 471.000,00


Codice A4331123

Lotto Lotto unico

Data udienza 08/01/2026 ore 10:00

Termine presentazione offerte 07/01/2026 ore 23:59

Abitazione di tipo civile

Via Guido Guinizelli, 106, 00152 Roma RM, Italia, Roma (RM)

€ 628.000,00

Offerta minima € 471.000,00


Codice A4331123

Lotto Lotto unico

Data udienza 08/01/2026 ore 10:00

Termine presentazione offerte 07/01/2026 ore 23:59

Ti interessa questa vendita?

Documentazione

Visualizza su mappa

Mappa geografica del bene

Punti di interesse

Fonte dati

Nel raggio di {{range}}Km

Loading...
  • {{ getIcon(poi.type) }} {{ poi.localized }}: {{poi.count}}
  • {{ getIcon(poi.type) }} {{ poi.localized }}: {{poi.count}}
Dati non disponibili

100/100 del diritto di proprietà su appartamento in Roma Via Guido Guinizelli n. 106, P.1, T, S1, Int. 3. L’acquirente dell’immobile avrà una quota proporzionale millesimale, rispetto all’appartamento, dell’area coperta e scoperta di pertinenza del fabbricato identificata al Catasto Terreni sez. A Comune Roma Fg.460, part. 590 Ente Urbano. Si dovrà procedere con S.C.I.A. in sanatoria (art. 37 D.P.R. 380/01). Formalità pregiudizievoli non cancellabili dal G.E Emesso ordine liberazione immobile il 3.10.25.

Indirizzo
Via Guido Guinizelli, 106, 00152 Roma RM, Italia, Roma (RM)


Codice asta
4331123


Lotto
Lotto unico


Numero beni
1


Genere
Immobili


Categoria
Immobile residenziale


Valore di stima
-


Abitazione di tipo civile

Quota pari a 100/100 del diritto di proprietà su appartamento sito in Roma – Via Guido Guinizellin. 106, P.1, T, S1, Int. 3. L’immobile si sviluppa su tre livelli. L’acquirente dell’immobile avrà una quota proporzionalemillesimale, rispetto all’appartamento sopra descritto, dell’area coperta e scoperta di pertinenza del fabbricato identificata al Catasto Terreni sez. A del Comune di Roma Fg.460, part. 590 Ente Urbano. Si dovrà procedere con una S.C.I.A. in sanatoria (art. 37 del D.P.R. 380/01) per la regolarizzazione dei vani finestra e sanare anche quella piccola difformità interna. Formalità pregiudizievoli non cancellabili dal G.E.: domanda giudiziale trascritta in data 08.02.2016 formalità 12519/8553, avente ad oggetto esecuzione in forma specifica del 05.02.2016 Tribunale di Roma 1504/2016. Emesso ordine liberazione immobile in data 3.10.2025

Indirizzo
Via Guido Guinizelli, 106, 00152 Roma RM, Italia, Roma (RM)


Piano
S1-T-1


Disponibilità
IN CORSO DI LIBERAZIONE


Vani
11,00


Bagni
4


Metri quadri
193,00


Certificazione energetica
-


Dati catastali

Foglio:460, Particella:590, Subalterno:504


Data udienza
08/01/2026 ore 10:00


Tipo di vendita
Senza incanto


Modalità di vendita
Asincrona telematica


Luogo
N.A. -


Luogo presentazione offerte
-


Termine presentazione offerte
07/01/2026 ore 23:59


Prezzo base
€ 628.000,00


Offerta minima
€ 471.000,00


Rialzo minimo in caso di gara
€ 3.000,00


Deposito cauzionale
-


Deposito in conto spese
-


Tribunale
Roma

Tipo di procedura
Esecuzione immobiliare post legge 80

Ruolo
985/2019

Giudice
Dott. scolaro Fernando

Recapiti
-

Email
-

Delegato alla vendita
Dott. caravetta Giovanni
(Procede alle operazioni di vendita)

Recapiti
-

Email
-

Custode giudiziario
Ivg di roma srl Ivg di roma srl
(Gestisce la visita del bene)

Recapiti
Cell. 0683751500
Tel. 0683751500

Data
28/10/2025


Tipologia
AVVISO DI RETTIFICA


Descrizione
SI COMUNICA CHE IN DATA 3.10.2025 IL G.E. HA EMESSO L'ORDINE DI LIBERAZIONE DEL BENE EX ART 560 CPC


Scheda COD. 4331123 - Pubblicata dal 28/10/2025

La presente scheda di vendita riporta integralmente informazioni e documenti pervenuti ufficialmente dal Ministero e dal professionista incaricato.

Pubblicazione notarizzata su Blockchain


Pubblicazione autorizzata dall’Autorità competente, è vietata ogni ripubblicazione o riproduzione anche parziale


Ti interessa questa vendita?

Documentazione

Visualizza su mappa

Mappa geografica del bene

Storico delle vendite

Data venditaPrezzo base
13/10/2025€ 785.000,00
08/01/2026€ 628.000,00

Punti di interesse

Fonte dati

Nel raggio di {{range}}Km

Loading...
  • {{ getIcon(poi.type) }} {{ poi.localized }}: {{poi.count}}
  • {{ getIcon(poi.type) }} {{ poi.localized }}: {{poi.count}}
Dati non disponibili