Astegiudiziarie.it è parte di Rete Aste Network

Accedi o registrati

Non sei ancora registrato?

Oppure

Accedi

giudiziariagiudiziariaTribunale di ROMACONTENZIOSO CIVILECONTENZIOSO CIVILE 82452020Delegato alla venditaGabriellaBoscoBSCGRL66L67F546Davvgbosco@gmail.comtruetrue2355382LOTTO UNICOIMMOBILIIMMOBILE RESIDENZIALEVia di Valle Muricana, 56, 00188 Roma RM, Italia00188RomaRomaLazioItaliaQuota pari a 1/1 del diritto di proprietà su appartamento ad uso civile abitazione posto al Piano T-S1, int.3 - Censito al Catasto Fabbricati di Roma al foglio 62, part. 1956, sub 13, Z.C. 3, Cat. A/2, classe 6, vani 10,5, Superficie catastale 229 mq, escluse aree scoperte 209 mq, r.c. € 1,708,18 (appartamento). Inoltre, posto auto posto al Piano T. int.3 -foglio 62-, part. 1956-, sub 4-, Z.C.3, Cat. C/6, classe 6 (in atti 8), consistenza 15 Mq, r.c. € 32,54 (posto auto). 3042642IMMOBILE RESIDENZIALEABITAZIONE DI TIPO CIVILEVia di Valle Muricana, 56, 00188 Roma RM, Italia00188RomaRomaLazioItaliaQuota pari a 1/1 del diritto di proprietà su appartamento ad uso civile abitazione posto al Piano T-S1, int.3 - Censito al Catasto Fabbricati di Roma al foglio 62, part. 1956, sub 13, Z.C. 3, Cat. A/2, classe 6, vani 10,5, Superficie catastale 229 mq, escluse aree scoperte 209 mq, r.c. € 1,708,18 (appartamento). Inoltre, posto auto posto al Piano T. int.3 -foglio 62-, part. 1956-, sub 4-, Z.C.3, Cat. C/6, classe 6 (in atti 8), consistenza 15 Mq, r.c. € 32,54 (posto auto). 2026-03-12T11:00:00SENZA INCANTOASINCRONA TELEMATICAN.A.420.000,00315.000,005.000,002026-03-11T23:59:00sito pubblicitahttps://www.astegiudiziarie.ithttps://www.astegiudiziarie.itgestore delle venditehttp://www.astetelematiche.ithttp://www.astetelematiche.it2025-11-20

Abitazione di tipo civile

Via di Valle Muricana, 56, 00188 Roma RM, Italia, Roma (RM)

€ 420.000,00

Offerta minima € 315.000,00


Codice A4339955

Lotto Lotto unico

Data udienza 12/03/2026 ore 11:00

Termine presentazione offerte 11/03/2026 ore 23:59

Abitazione di tipo civile

Via di Valle Muricana, 56, 00188 Roma RM, Italia, Roma (RM)

€ 420.000,00

Offerta minima € 315.000,00


Codice A4339955

Lotto Lotto unico

Data udienza 12/03/2026 ore 11:00

Termine presentazione offerte 11/03/2026 ore 23:59

Ti interessa questa vendita?

Documentazione

Visualizza su mappa

Mappa geografica del bene

Punti di interesse

Fonte dati

Nel raggio di {{range}}Km

Loading...
  • {{ getIcon(poi.type) }} {{ poi.localized }}: {{poi.count}}
  • {{ getIcon(poi.type) }} {{ poi.localized }}: {{poi.count}}
Dati non disponibili

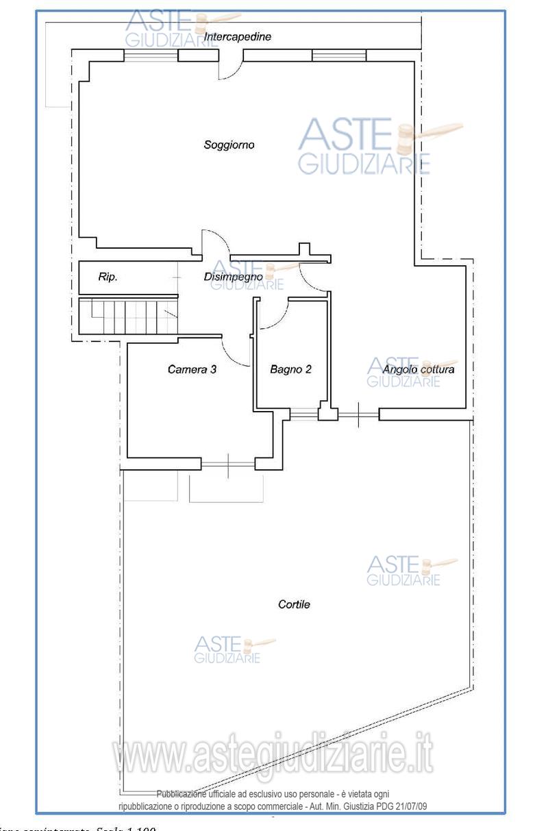
Quota pari a 1/1 del diritto di proprietà su appartamento ad uso civile abitazione posto al Piano T-S1, int.3 - Censito al Catasto Fabbricati di Roma al foglio 62, part. 1956, sub 13, Z.C. 3, Cat. A/2, classe 6, vani 10,5, Superficie catastale 229 mq, escluse aree scoperte 209 mq, r.c. € 1,708,18 (appartamento). Inoltre, posto auto posto al Piano T. int.3 -foglio 62-, part. 1956-, sub 4-, Z.C.3, Cat. C/6, classe 6 (in atti 8), consistenza 15 Mq, r.c. € 32,54 (posto auto).

Indirizzo
Via di Valle Muricana, 56, 00188 Roma RM, Italia, Roma (RM)


Codice asta
4339955


Lotto
Lotto unico


Numero beni
1


Genere
Immobili


Categoria
Immobile residenziale


Valore di stima
-


Abitazione di tipo civile

Quota pari a 1/1 del diritto di proprietà su appartamento ad uso civile abitazione posto al Piano T-S1, int.3 - Censito al Catasto Fabbricati di Roma al foglio 62, part. 1956, sub 13, Z.C. 3, Cat. A/2, classe 6, vani 10,5, Superficie catastale 229 mq, escluse aree scoperte 209 mq, r.c. € 1,708,18 (appartamento). Inoltre, posto auto posto al Piano T. int.3 -foglio 62-, part. 1956-, sub 4-, Z.C.3, Cat. C/6, classe 6 (in atti 8), consistenza 15 Mq, r.c. € 32,54 (posto auto).

Indirizzo
Via di Valle Muricana, 56, 00188 Roma RM, Italia, Roma (RM)


Piano
s1-t


Disponibilità
-


Vani
10,50


Bagni
3


Metri quadri
229,00


Certificazione energetica
-


Data udienza
12/03/2026 ore 11:00


Tipo di vendita
Senza incanto


Modalità di vendita
Asincrona telematica


Luogo
N.A. -


Luogo presentazione offerte
-


Termine presentazione offerte
11/03/2026 ore 23:59


Prezzo base
€ 420.000,00


Offerta minima
€ 315.000,00


Rialzo minimo in caso di gara
€ 5.000,00


Deposito cauzionale
-


Deposito in conto spese
-


Tribunale
Roma

Tipo di procedura
Contenzioso civile

Ruolo
8245/2020

Delegato alla vendita
Bosco Gabriella
(Procede alle operazioni di vendita)
(Gestisce la visita del bene)

Recapiti
-

Scheda COD. 4339955 - Pubblicata dal 02/12/2025

La presente scheda di vendita riporta integralmente informazioni e documenti pervenuti ufficialmente dal Ministero e dal professionista incaricato.

Pubblicazione notarizzata su Blockchain


Pubblicazione autorizzata dall’Autorità competente, è vietata ogni ripubblicazione o riproduzione anche parziale


Ti interessa questa vendita?

Documentazione

Visualizza su mappa

Mappa geografica del bene

Punti di interesse

Fonte dati

Nel raggio di {{range}}Km

Loading...
  • {{ getIcon(poi.type) }} {{ poi.localized }}: {{poi.count}}
  • {{ getIcon(poi.type) }} {{ poi.localized }}: {{poi.count}}
Dati non disponibili