Astegiudiziarie.it è parte di Rete Aste Network

Accedi o registrati

Non sei ancora registrato?

Oppure

Accedi

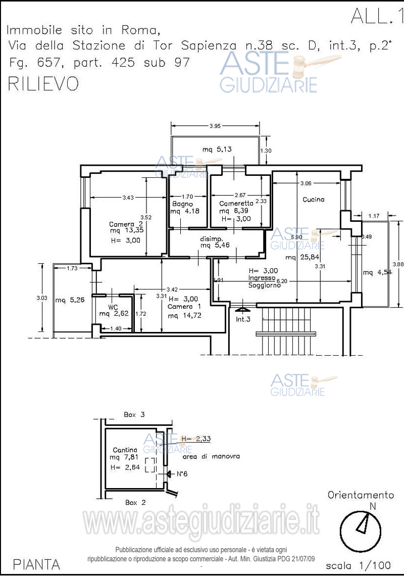
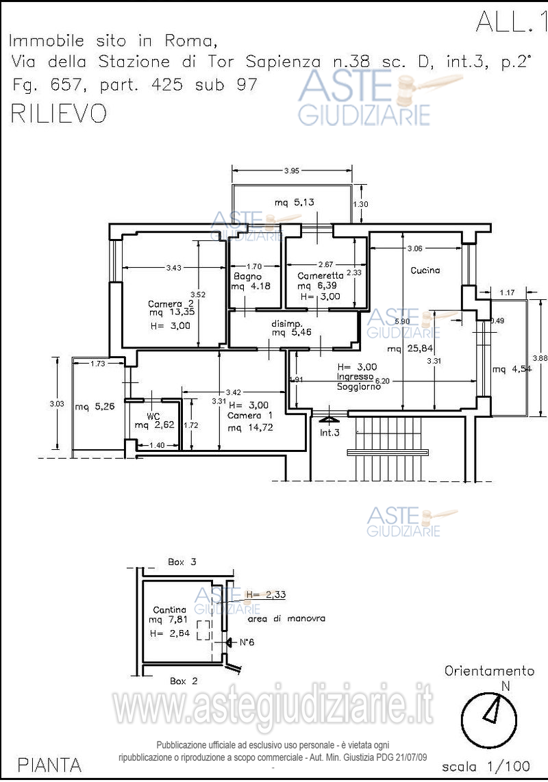
giudiziariagiudiziariaTribunale di ROMAESECUZIONI CIVILI IMMOBILIARIESPROPRIAZIONE IMMOBILIARE (CARTABIA)5702024Delegato alla venditaFrancescaGiambellucaGMBFNC59B55H501KtruefalseCustodeIvg di roma srlPRCFNC50L27A241Tpvp@visiteivgroma.it0689569801falsetrueGiudiceGiuseppe Lauropolifalsefalse2414006LOTTO UNICOIMMOBILIIMMOBILE RESIDENZIALEVia della Stazione di Tor Sapienza, 38, 00155 Roma RM, Italia00155RomaRomaLazioItaliaLOTTO UQuota pari a 1/1 del diritto di piena proprietà, Bene n. 1: appartamento composto da ingresso-soggiorno con angolo cottura, disimpegno, due camere, una cameretta, due bagni, tre balconi per complessivi mq. 99,42 superficie lorda e mq. 90,61 superficie convenzionale complessiva. Bene n. 2: cantina composta da un vano per complessivi mq. 7,81 superficie lorda e mq. 1,56 superficie convenzionale complessiva.3114281IMMOBILE RESIDENZIALEABITAZIONE DI TIPO ECONOMICOVia della Stazione di Tor Sapienza, 38, 00155 Roma RM, Italia00155RomaRomaLazioItaliaLOTTO U Quota pari a 1/1 del diritto di piena proprietà:- Bene n. 1: appartamento sito in Roma, Via della Stazione di Tor Sapienza n. 38, Edificio 2, scala D, interno 3, piano 2, composto da ingresso-soggiorno con angolo cottura, disimpegno, due camere, una cameretta, due bagni, tre balconi per complessivi mq. 99,42 superficie lorda e mq. 90,61 superficie convenzionale complessiva.Identificato al Catasto Fabbricati del Comune di Roma al foglio n 657, part 425, sub 97, z.c. 6, cat. A/3, cl. 3, cons. 5 vani, superficie catastale totale mq. 90, totale escluse aree scoperte mq. 85, rendita € 839,24.- Bene n. 2: cantina sita in Roma, Via della Stazione di Tor Sapienza n. 38, Scala D, interno 4, piano S1, composta da un vano per complessivi mq. 7,81 superficie lorda e mq. 1,56 superficie convenzionale complessiva.Identificato al Catasto Fabbricati del Comune di Roma al foglio n 657, part 425, sub 106, z.c. 6, cat. C/2, cl. 11, cons. 8 mq., superficie catastale totale mq. 10, rendita € 43,80.Stato di occupazione: l'immobile risulta occupato dalla debitrice esecutata e dalle figlie di entrambi i debitori esecutati (non potrà emettersi l’ordine di liberazione prima del decreto di trasferimento).Il tutto come meglio descritto nell’elaborato peritale depositato in atti.6574259765742510699,425.022026-07-07T14:00:00SENZA INCANTOASINCRONA TELEMATICAN.A.149.509,50112.132,135.000,002026-07-06T23:59:00sito pubblicitahttps://www.astegiudiziarie.ithttps://www.astegiudiziarie.itgestore delle venditehttp://www.astetelematiche.ithttp://www.astetelematiche.itsito pubblicitahttps://www.fallcoaste.ithttps://www.fallcoaste.itsito pubblicitahttps://www.asteannunci.ithttps://www.asteannunci.it2026-03-25

Abitazione di tipo economico

Via della Stazione di Tor Sapienza, 38, 00155 Roma RM, Italia, Roma (RM)

€ 149.509,50

Offerta minima € 112.132,13


Codice A4348352

Lotto Lotto unico

Data udienza 07/07/2026 ore 14:00

Termine presentazione offerte 06/07/2026 ore 23:59

Abitazione di tipo economico

Via della Stazione di Tor Sapienza, 38, 00155 Roma RM, Italia, Roma (RM)

€ 149.509,50

Offerta minima € 112.132,13


Codice A4348352

Lotto Lotto unico

Data udienza 07/07/2026 ore 14:00

Termine presentazione offerte 06/07/2026 ore 23:59

Ti interessa questa vendita?

Visualizza su mappa

Mappa geografica del bene

Punti di interesse

Fonte dati

Nel raggio di {{range}}Km

Loading...
  • {{ getIcon(poi.type) }} {{ poi.localized }}: {{poi.count}}
  • {{ getIcon(poi.type) }} {{ poi.localized }}: {{poi.count}}
Dati non disponibili

LOTTO UQuota pari a 1/1 del diritto di piena proprietà, Bene n. 1: appartamento composto da ingresso-soggiorno con angolo cottura, disimpegno, due camere, una cameretta, due bagni, tre balconi per complessivi mq. 99,42 superficie lorda e mq. 90,61 superficie convenzionale complessiva. Bene n. 2: cantina composta da un vano per complessivi mq. 7,81 superficie lorda e mq. 1,56 superficie convenzionale complessiva.

Indirizzo
Via della Stazione di Tor Sapienza, 38, 00155 Roma RM, Italia, Roma (RM)


Codice asta
4348352


Lotto
Lotto unico


Numero beni
1


Genere
Immobili


Categoria
Immobile residenziale


Valore di stima
-


Abitazione di tipo economico

LOTTO U Quota pari a 1/1 del diritto di piena proprietà:- Bene n. 1: appartamento sito in Roma, Via della Stazione di Tor Sapienza n. 38, Edificio 2, scala D, interno 3, piano 2, composto da ingresso-soggiorno con angolo cottura, disimpegno, due camere, una cameretta, due bagni, tre balconi per complessivi mq. 99,42 superficie lorda e mq. 90,61 superficie convenzionale complessiva.Identificato al Catasto Fabbricati del Comune di Roma al foglio n 657, part 425, sub 97, z.c. 6, cat. A/3, cl. 3, cons. 5 vani, superficie catastale totale mq. 90, totale escluse aree scoperte mq. 85, rendita € 839,24.- Bene n. 2: cantina sita in Roma, Via della Stazione di Tor Sapienza n. 38, Scala D, interno 4, piano S1, composta da un vano per complessivi mq. 7,81 superficie lorda e mq. 1,56 superficie convenzionale complessiva.Identificato al Catasto Fabbricati del Comune di Roma al foglio n 657, part 425, sub 106, z.c. 6, cat. C/2, cl. 11, cons. 8 mq., superficie catastale totale mq. 10, rendita € 43,80.Stato di occupazione: l'immobile risulta occupato dalla debitrice esecutata e dalle figlie di entrambi i debitori esecutati (non potrà emettersi l’ordine di liberazione prima del decreto di trasferimento).Il tutto come meglio descritto nell’elaborato peritale depositato in atti.

Indirizzo
Via della Stazione di Tor Sapienza, 38, 00155 Roma RM, Italia, Roma (RM)


Piano
2


Disponibilità
-


Vani
5,00


Bagni
2


Metri quadri
99,42


Certificazione energetica
-


Dati catastali

Foglio:657, Particella:425, Subalterno:97
Foglio:657, Particella:425, Subalterno:106


Data udienza
07/07/2026 ore 14:00


Tipo di vendita
Senza incanto


Modalità di vendita
Asincrona telematica


Luogo
N.A. -


Luogo presentazione offerte
-


Termine presentazione offerte
06/07/2026 ore 23:59


Prezzo base
€ 149.509,50


Offerta minima
€ 112.132,13


Rialzo minimo in caso di gara
€ 5.000,00


Deposito cauzionale
-


Deposito in conto spese
-


Tribunale
Roma

Tipo di procedura
Espropriazione immobiliare (cartabia)

Ruolo
570/2024

Giudice
Lauropoli Giuseppe

Recapiti
-

Email
-

Delegato alla vendita
Giambelluca Francesca
(Procede alle operazioni di vendita)

Recapiti
-

Email
-

Custode giudiziario
Ivg di roma srl 
(Gestisce la visita del bene)

Recapiti
Tel. 0689569801

Scheda COD. 4348352 - Pubblicata dal 14/04/2026

La presente scheda di vendita riporta integralmente informazioni e documenti pervenuti ufficialmente dal Ministero e dal professionista incaricato.


Pubblicazione autorizzata dall’Autorità competente, è vietata ogni ripubblicazione o riproduzione anche parziale


Ti interessa questa vendita?

Visualizza su mappa

Mappa geografica del bene

Punti di interesse

Fonte dati

Nel raggio di {{range}}Km

Loading...
  • {{ getIcon(poi.type) }} {{ poi.localized }}: {{poi.count}}
  • {{ getIcon(poi.type) }} {{ poi.localized }}: {{poi.count}}
Dati non disponibili