Astegiudiziarie.it è parte di Rete Aste Network

Accedi o registrati

Non sei ancora registrato?

Oppure

Accedi

giudiziariagiudiziariaTribunale di ROMAESECUZIONI CIVILI IMMOBILIARIESECUZIONE IMMOBILIARE POST LEGGE 80632021CustodeIvg di roma srlPRCFNC50L27A241Tpvp@visiteivgroma.it0689569801falsetrueDelegato alla venditaClaudioNicolaisNCLCLD79M27H501Otruefalse233480017IMMOBILIIMMOBILE RESIDENZIALEVia dei Bonacolsi, 87, 00163 Roma RM, Italia00163RomaRomaLazioItaliaBene N° 35 in perizia - quota pari 1/1 del diritto di piena proprietà su appartamento sito in Roma (RM) - via dei Bonacolsi 87, interno A, piano T3017627IMMOBILE RESIDENZIALEABITAZIONE DI TIPO CIVILEVia dei Bonacolsi, 87, 00163 Roma RM, Italia00163RomaRomaLazioItaliaBene N° 35 in perizia - quota pari 1/1 del diritto di piena proprietà su appartamento sito in Roma (RM) - via dei Bonacolsi 87, interno A, piano T. La suddetta unità immobiliare si compone di: cucina, - bagno, - n.2 camere, - giardino, per una superficie totale lorda: Appartamento 47,50 mq, Giardino 37,50 mq. Identificato al catasto Fabbricati - Fg. 419, Part. 2525, Sub. 551, Zc.5, Categoria A2. L'immobile oggetto della presente procedura risulta confinante, salvo se con altri, con: viale condominiale, androne condominiale, appartamento int. "B". Come riportato dall’esperto stimatore, “per l'immobile in esame, espletate lo scrivente CTU le necessarie ricerche e domande di accesso agli atti sulla piattaforma SIPRE per le documentazioni presenti all'ufficio del condono, risulta presentata la seguente documentazione: - domanda per condono edilizio (...); superficie da condonare mq 39; tipologia d'abuso 4 frazionamento; - verbale di ricevimento di dichiarazione (...); superficie dell'abuso: int. A mq 39/ int. B mq 52; tipologia dell'abuso: 4; epoca dell'abuso: 1992, descrizione delle opere: frazionamento di una unità residenziale ubicata al piano terra in due unità residenziali distinte int. A e B; - titolo a sanatoria n.288733 del 15/11/2002 per nuova ristrutturazione/frazionamento con destinazione d'uso residenziale di mq 39,00 sull'immobile sito in Roma, via dei Bonacolsi 87 (...), piano terra int. A come risulta dall'istanza presentata e dall'accatastamento effettuato e depositato con il n. PROT. N. 780180/02 (foglio 419, NUM 2525 SUB 551) Tale titolo a sanatoria correttamente ritirato legittima di fatto l'immobile oggetto di perizia (si rammenta che il titolo a sanatoria non costituisce abitabilità e che la stessa non risulta tra i documenti nella disponibilità del perito a valle delle indagini e richieste). Onde appurare la legittimità dell'edificio di cui l'immobile è parte, lo scrivente CTU svolgeva indagini e inoltrava richieste all'Archivio Progetti di Roma Capitale ottenendo visura e copie delle seguenti documentazioni: - elaborato grafico che "sostituisce le planimetrie annullata sui nuovi tipi presentati in data 17/03/1969 in cui è visibile esclusivamente l'inquadramento generale del lotto di pertinenza del complesso di edifici in scala 1.2000 e 1.500 e sagoma delle tre palazzine gemelle in scala 1.200. Attenzione: nel fascicolo non è presente elaborato grafico architettonico da cui sia possibile evincere la reale consistenza di piante, prospetti e sezioni dei fabbricati. - rapporto XV ripartizione parere dell'ufficio divisione urbanistica da cui si evince presentato un progetto n.29506/70 relativo alla costruzione di "variante edifici via Bonacolsi". Si ribadisce che tale elaborato grafico non è presente nel fascicolo. - schede di "denuncia di variante" (timbro Comune di Roma - Ripartizione XV del 15/07/1970) in cui si dichiara che alla denuncia di costruzione n. 203/69 presentata il 12/01/1969 vengono apportate le seguenti variazioni: villino n. 1 - villino n. 2 - villino n. 3 - altro piano sottoterra. - copia di atto d'obbligo del 15/10/1969 e rettifica del 21/01/1970 con relative note di trascrizione. L'elaborato grafico allegato all'atto d'obbligo ha consentito allo scrivente CTU, in assenza del progetto originario, di effettuare una verifica riguardo la consistenza dello stato dei luoghi. In particolare gli elaborati contengono: - planimetria con perimetrazione dell'area di sedime del progetto; - planimetria con perimetrazione delle aree verdi; - planimetria con perimetrazione delle aree a parcheggio; Dal confronto fra i succitati elaborati e lo stato di fatto si evince che l'attuale area di sedime e la sagoma dei 3 edifici con i relativi distacchi è sostanzialmente conforme a quanto presentato. Dal confronto dello stato di fatto con i documenti sopra elencati si evincono le seguenti osservazioni: - l'immobile oggetto della presente perizia (appartamento al piano T interno A) nel progetto originario ultima variante disponibile non è presente in quanto non ancora realizzato al piano terra. Dal confronto dello stato di fatto con la planimetria catastale allegata al titolo a sanatoria legittimante il bene si evince che - l'appartamento è pienamente conforme. Nel caso in essere per il bene in esame interno A sub. 551: - risulta disponibile il condono relativo al mezzo piano trasformato in residenziale (sub. 547) in particolare: - domanda per condono edilizio (...); superficie da condonare mq 103,59 equivalenti; tipologia d'abuso 1.2 opere realizzate in difformità della licenza edilizia o concessione e non conformi alle norme urbanistiche; - relazione descrittiva dell'abuso per "realizzazione di abitazione in luogo del piano pilotis"; - titolo a sanatoria n.302811 del 24/07/2003 (prot. 87/000107354/001) per nuova costruzione/ampliamento con destinazione d'uso residenziale di mq 103,39 sull'immobile sito in Roma, via dei Bonacolsi 87 (...) come risulta dall'istanza presentata e dall'accatastamento effettuato e depositato con il n. PROT. N. 48628- 24/09/02(foglio 419, NUM 2525 SUB 547). La presente autorizza le seguenti destinazioni d'uso: residenziale mq 91,49 e non residenziale mq 20,16 per complessivi 103,59 equivalenti. - risulta disponibile il condono per frazionamento - concessione n. 288733 del 15.11.2002 per domanda prot. 72885/00 - con soppressione del mezzo piano originario e creazione dell'unità interno A sub. 551 per mq 39, destinazione d'uso residenziale, comprovata da accatastamento depositato con il numero prot. N.780180/02; - come sopra riportato la planimetria allegata alla concessione a sanatoria risulta conforme allo stato di fatto. (…)”. Formalità pregiudizievoli non cancellabili con il decreto di trasferimento: Atto di destinazione per fini meritevoli di tutela ex art.2645-ter c.c.” trascritto in data 9/10/2014 formalità n.77322 da soggetto comproprietario-esecutato su ½ del proprio diritto di piena proprietà. Immobile occupato da terzi sine titulo. Il tutto come meglio descritto ed illustrato nell’elaborato di stima pubblicato, di cui si invita attenta lettura. 41925255512026-01-20T09:00:00SENZA INCANTOASINCRONA TELEMATICAN.A.137.247,00102.935,255.000,002026-01-19T23:59:00gestore delle venditehttps://www.fallcoaste.ithttps://www.fallcoaste.itsito pubblicitahttps://www.astegiudiziarie.ithttps://www.astegiudiziarie.itsito pubblicitahttps://www.fallcoaste.ithttps://www.fallcoaste.itsito pubblicitahttps://www.asteannunci.ithttps://www.asteannunci.it2025-11-10

Abitazione di tipo civile

Via dei Bonacolsi, 87, 00163 Roma RM, Italia, Roma (RM)

€ 137.247,00

Offerta minima € 102.935,25


Codice A4339179

Lotto 17

Data udienza 20/01/2026 ore 09:00

Termine presentazione offerte 19/01/2026 ore 23:59

Abitazione di tipo civile

Via dei Bonacolsi, 87, 00163 Roma RM, Italia, Roma (RM)

€ 137.247,00

Offerta minima € 102.935,25


Codice A4339179

Lotto 17

Data udienza 20/01/2026 ore 09:00

Termine presentazione offerte 19/01/2026 ore 23:59

Ti interessa questa vendita?

Documentazione

Visualizza su mappa

Mappa geografica del bene

Punti di interesse

Fonte dati

Nel raggio di {{range}}Km

Loading...
  • {{ getIcon(poi.type) }} {{ poi.localized }}: {{poi.count}}
  • {{ getIcon(poi.type) }} {{ poi.localized }}: {{poi.count}}
Dati non disponibili

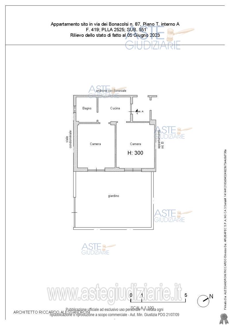
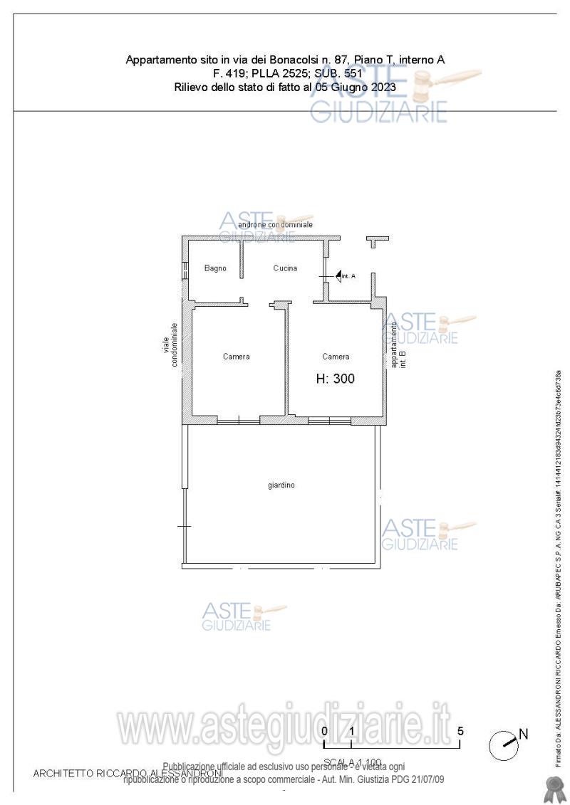
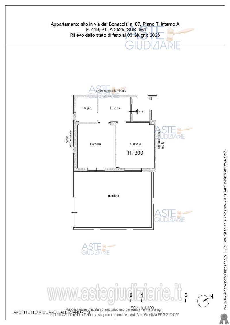
Bene N° 35 in perizia - quota pari 1/1 del diritto di piena proprietà su appartamento sito in Roma (RM) - via dei Bonacolsi 87, interno A, piano T

Indirizzo
Via dei Bonacolsi, 87, 00163 Roma RM, Italia, Roma (RM)


Codice asta
4339179


Lotto
17


Numero beni
1


Genere
Immobili


Categoria
Immobile residenziale


Valore di stima
-


Abitazione di tipo civile

Bene N° 35 in perizia - quota pari 1/1 del diritto di piena proprietà su appartamento sito in Roma (RM) - via dei Bonacolsi 87, interno A, piano T. La suddetta unità immobiliare si compone di: cucina, - bagno, - n.2 camere, - giardino, per una superficie totale lorda: Appartamento 47,50 mq, Giardino 37,50 mq. Identificato al catasto Fabbricati - Fg. 419, Part. 2525, Sub. 551, Zc.5, Categoria A2. L'immobile oggetto della presente procedura risulta confinante, salvo se con altri, con: viale condominiale, androne condominiale, appartamento int. "B". Come riportato dall’esperto stimatore, “per l'immobile in esame, espletate lo scrivente CTU le necessarie ricerche e domande di accesso agli atti sulla piattaforma SIPRE per le documentazioni presenti all'ufficio del condono, risulta presentata la seguente documentazione: - domanda per condono edilizio (...); superficie da condonare mq 39; tipologia d'abuso 4 frazionamento; - verbale di ricevimento di dichiarazione (...); superficie dell'abuso: int. A mq 39/ int. B mq 52; tipologia dell'abuso: 4; epoca dell'abuso: 1992, descrizione delle opere: frazionamento di una unità residenziale ubicata al piano terra in due unità residenziali distinte int. A e B; - titolo a sanatoria n.288733 del 15/11/2002 per nuova ristrutturazione/frazionamento con destinazione d'uso residenziale di mq 39,00 sull'immobile sito in Roma, via dei Bonacolsi 87 (...), piano terra int. A come risulta dall'istanza presentata e dall'accatastamento effettuato e depositato con il n. PROT. N. 780180/02 (foglio 419, NUM 2525 SUB 551) Tale titolo a sanatoria correttamente ritirato legittima di fatto l'immobile oggetto di perizia (si rammenta che il titolo a sanatoria non costituisce abitabilità e che la stessa non risulta tra i documenti nella disponibilità del perito a valle delle indagini e richieste). Onde appurare la legittimità dell'edificio di cui l'immobile è parte, lo scrivente CTU svolgeva indagini e inoltrava richieste all'Archivio Progetti di Roma Capitale ottenendo visura e copie delle seguenti documentazioni: - elaborato grafico che "sostituisce le planimetrie annullata sui nuovi tipi presentati in data 17/03/1969 in cui è visibile esclusivamente l'inquadramento generale del lotto di pertinenza del complesso di edifici in scala 1.2000 e 1.500 e sagoma delle tre palazzine gemelle in scala 1.200. Attenzione: nel fascicolo non è presente elaborato grafico architettonico da cui sia possibile evincere la reale consistenza di piante, prospetti e sezioni dei fabbricati. - rapporto XV ripartizione parere dell'ufficio divisione urbanistica da cui si evince presentato un progetto n.29506/70 relativo alla costruzione di "variante edifici via Bonacolsi". Si ribadisce che tale elaborato grafico non è presente nel fascicolo. - schede di "denuncia di variante" (timbro Comune di Roma - Ripartizione XV del 15/07/1970) in cui si dichiara che alla denuncia di costruzione n. 203/69 presentata il 12/01/1969 vengono apportate le seguenti variazioni: villino n. 1 - villino n. 2 - villino n. 3 - altro piano sottoterra. - copia di atto d'obbligo del 15/10/1969 e rettifica del 21/01/1970 con relative note di trascrizione. L'elaborato grafico allegato all'atto d'obbligo ha consentito allo scrivente CTU, in assenza del progetto originario, di effettuare una verifica riguardo la consistenza dello stato dei luoghi. In particolare gli elaborati contengono: - planimetria con perimetrazione dell'area di sedime del progetto; - planimetria con perimetrazione delle aree verdi; - planimetria con perimetrazione delle aree a parcheggio; Dal confronto fra i succitati elaborati e lo stato di fatto si evince che l'attuale area di sedime e la sagoma dei 3 edifici con i relativi distacchi è sostanzialmente conforme a quanto presentato. Dal confronto dello stato di fatto con i documenti sopra elencati si evincono le seguenti osservazioni: - l'immobile oggetto della presente perizia (appartamento al piano T interno A) nel progetto originario ultima variante disponibile non è presente in quanto non ancora realizzato al piano terra. Dal confronto dello stato di fatto con la planimetria catastale allegata al titolo a sanatoria legittimante il bene si evince che - l'appartamento è pienamente conforme. Nel caso in essere per il bene in esame interno A sub. 551: - risulta disponibile il condono relativo al mezzo piano trasformato in residenziale (sub. 547) in particolare: - domanda per condono edilizio (...); superficie da condonare mq 103,59 equivalenti; tipologia d'abuso 1.2 opere realizzate in difformità della licenza edilizia o concessione e non conformi alle norme urbanistiche; - relazione descrittiva dell'abuso per "realizzazione di abitazione in luogo del piano pilotis"; - titolo a sanatoria n.302811 del 24/07/2003 (prot. 87/000107354/001) per nuova costruzione/ampliamento con destinazione d'uso residenziale di mq 103,39 sull'immobile sito in Roma, via dei Bonacolsi 87 (...) come risulta dall'istanza presentata e dall'accatastamento effettuato e depositato con il n. PROT. N. 48628- 24/09/02(foglio 419, NUM 2525 SUB 547). La presente autorizza le seguenti destinazioni d'uso: residenziale mq 91,49 e non residenziale mq 20,16 per complessivi 103,59 equivalenti. - risulta disponibile il condono per frazionamento - concessione n. 288733 del 15.11.2002 per domanda prot. 72885/00 - con soppressione del mezzo piano originario e creazione dell'unità interno A sub. 551 per mq 39, destinazione d'uso residenziale, comprovata da accatastamento depositato con il numero prot. N.780180/02; - come sopra riportato la planimetria allegata alla concessione a sanatoria risulta conforme allo stato di fatto. (…)”. Formalità pregiudizievoli non cancellabili con il decreto di trasferimento: Atto di destinazione per fini meritevoli di tutela ex art.2645-ter c.c.” trascritto in data 9/10/2014 formalità n.77322 da soggetto comproprietario-esecutato su ½ del proprio diritto di piena proprietà. Immobile occupato da terzi sine titulo. Il tutto come meglio descritto ed illustrato nell’elaborato di stima pubblicato, di cui si invita attenta lettura.

Indirizzo
Via dei Bonacolsi, 87, 00163 Roma RM, Italia, Roma (RM)


Piano
T


Disponibilità
-


Vani
3,50


Bagni
1


Metri quadri
47,50


Certificazione energetica
-


Dati catastali

Foglio:419, Particella:2525, Subalterno:551


Data udienza
20/01/2026 ore 09:00


Tipo di vendita
Senza incanto


Modalità di vendita
Asincrona telematica


Luogo
N.A. -


Luogo presentazione offerte
-


Termine presentazione offerte
19/01/2026 ore 23:59


Prezzo base
€ 137.247,00


Offerta minima
€ 102.935,25


Rialzo minimo in caso di gara
€ 5.000,00


Deposito cauzionale
-


Deposito in conto spese
-


Tribunale
Roma

Tipo di procedura
Esecuzione immobiliare post legge 80

Ruolo
63/2021

Giudice
D'ambrosio 

Recapiti
-

Email
-

Delegato alla vendita
Nicolais Claudio
(Procede alle operazioni di vendita)

Recapiti
-

Email
-

Custode giudiziario
Ivg di roma srl 
(Gestisce la visita del bene)

Recapiti
Tel. 0689569801

Scheda COD. 4339179 - Pubblicata dal 13/11/2025

La presente scheda di vendita riporta integralmente informazioni e documenti pervenuti ufficialmente dal Ministero e dal professionista incaricato.


Pubblicazione autorizzata dall’Autorità competente, è vietata ogni ripubblicazione o riproduzione anche parziale


Ti interessa questa vendita?

Documentazione

Visualizza su mappa

Mappa geografica del bene

Punti di interesse

Fonte dati

Nel raggio di {{range}}Km

Loading...
  • {{ getIcon(poi.type) }} {{ poi.localized }}: {{poi.count}}
  • {{ getIcon(poi.type) }} {{ poi.localized }}: {{poi.count}}
Dati non disponibili