Astegiudiziarie.it è parte di Rete Aste Network

Accedi o registrati

Non sei ancora registrato?

Oppure

Accedi

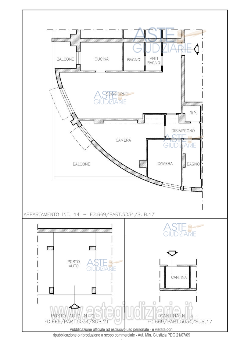
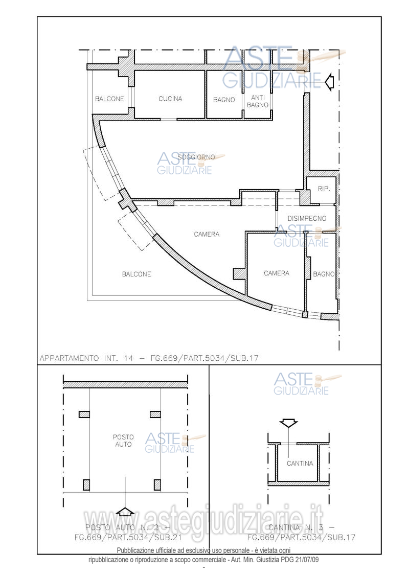
giudiziariagiudiziariaTribunale di ROMAESECUZIONI CIVILI IMMOBILIARIESECUZIONE IMMOBILIARE POST LEGGE 80172023CustodeIvg di roma s.r.l.PRCFNC50L27A241Tpvp@visiteivgroma.it0683751500falsetrueDelegato alla venditaNataleVottaVTTNTL61H11C352Etruefalse24032062IMMOBILIIMMOBILE RESIDENZIALEVia Cardinale Luigi Traglia, 85, 00132 Roma RM, ItaliaRomaRomaLazioItaliaQuota pari a 1/1 del diritto di proprietà superficiaria ex art. 35 L. 865/1971 per la durata di 99 anni rinnovabili, su porzioni di fabbricato condominiale sito in Roma, Via Cardinale Luigi Traglia n. 85 (pedonale) e 89 (carrabile), e precisamente:- unità immobiliare ad uso civile abitazione posta al piano 3-S1, catastalmente composta da: ingresso/soggiorno, disimpegni, due bagni, cucina, due ripostigli, due camere e due balconi;- annessa cantina al piano S1- posto auto coperto3101493IMMOBILE RESIDENZIALEABITAZIONE DI TIPO CIVILEVia Cardinale Luigi Traglia, 85, 00132 Roma RM, ItaliaRomaRomaLazioItaliaQuota pari a 1/1 del diritto di proprietà superficiaria ex art. 35 L. 22/10/1971 n. 865, non usufruente di finanziamenti pubblici, per la durata di 99 anni rinnovabili, decorrenti dalla Convenzione a rogito Notaio Giovanni Ungari Trasatti in data 29/03/2013 rep. 47508 – racc. 26329, su porzioni di fabbricato condominiale sito Comune di Roma, Via Cardinal Luigi Traglia n. 85 (pedonale) e 89 (carrabile), PDZ Castelverde – comparto “I/parte” e precisamente:- unità immobiliare ad uso civile abitazione posta al piano 3-S1, contraddistinta con l’int. 14, catastalmente composta da: ingresso/soggiorno, disimpegni, due bagni, cucina, due ripostigli, due camere e due balconi;- con annessa cantina al piano S1, contraddistinta con l’int. 3, di forma regolare non finestrata; - A confine con: appartamento int. 13 (sub. 16), appartamento int. 15 (sub. 18), distacchi, salvi altri e diversi confini (l’unità immobiliare ad unsi civile abitazione); corridoio di accesso, cantina n. 4 (sub.41), cantina n. 2 (sub. 4), salvi altri e diversi confini (la cantina); -Il tutto censito al Catasto dei Fabbricati del Comune di Roma, in ditta alla società esecutata per la proprietà superficiaria e al Comune di Roma per la proprietà dell’area, al foglio 669, part. 5034,-sub. 17, z.c. 6, via Cardinale Luigi Traglia n. 85 int. 14 piani 3-S1, cat. A/2, cl. 5, vani 6, superf. cat. tot. 110 mq – escluse aree scoperte 102 mq. r.c. € 836,66;-Stato dei luoghi, regolarità urbanistica, destinazione urbanistica, convenzione edilizia ed eventuale affrancazione, eventuali vincoli o usi civici, stato d’uso, destinazione urbanistica, parti comuni, oneri e millesimi condominiali, impianti e formalità pregiudizievoli come in avviso di vendita e in perizia.Si precisa che, trattandosi di vendita coattiva in assenza di finanziamento pubblico, l’asta è aperta a tutti senza alcuna limitazione soggettiva, patrimoniale e di reddito, pur non escludendosi che ad una successiva rivendita possano essere applicabili tutte le limitazioni soggettive e oggettive nascenti dalla Convenzione.In merito alla determinazione del conguaglio ex art. 35, comma 12 L. 865/1971: si precisa che il Perito non ha avuto nessuna indicazione da parte degli organi preposti in quanto non è stato ancora determinato il costo definitivo del Piano di Zona. Dell’eventuale conguaglio, onere reale, allo stato non determinabile, dovrà farsi carico l’aggiudicatario e suoi aventi causa, circostanza di cui si è tenuto conto nella valutazione del bene.In merito al prezzo di massima cessione: si precisa che da accertamenti del Perito e riscontri degli uffici preposti è emerso che le tabelle per la determinazione del prezzo di massima cessione sono state depositate dalla Cooperativa presso il Dip. P.A.U. - U.O. Edilizia Residenziale Pubblica ma non sono state approvate per carenza documentale.Si precisa che l’ascensore non è funzionante.Gli impianti elettrico, idrico e di riscaldamento non sono attestati di conformità.Non è stato possibile redigere l’APE.Gli immobili sono nella disponibilità della parte esecutata.Emesso ordine di liberazione.Vendita soggetta a iva su opzione della società esecutata, ex art. 10, primo comma n. 8-bis, del D.P.R. 633/1972.Il tutto come meglio descritto nell’elaborato peritale depositato in atti6695034173101517ALTRA CATEGORIAPOSTO AUTOVia Cardinale Luigi Traglia, 89, 00132 Roma RM, ItaliaRomaRomaLazioItaliaQuota pari a 1/1 del diritto di proprietà superficiaria ex art. 35 L. 22/10/1971 n. 865, non usufruente di finanziamenti pubblici, per la durata di 99 anni rinnovabili, decorrenti dalla Convenzione a rogito Notaio Giovanni Ungari Trasatti in data 29/03/2013 rep. 47508 – racc. 26329, su porzioni di fabbricato condominiale sito Comune di Roma, Via Cardinal Luigi Traglia n. 85 (pedonale) e 89 (carrabile), PDZ Castelverde – comparto “I/parte” e precisamente:- -- posto auto coperto con ingresso dal civico n. 91(catastalmente n. 89) posto al piano S1 e contraddistinto con l’int. 2.A confine con: -- posto auto n. 3 (sub. 22), posto auto n. 1 (sub. 20), spazio di manovra, salvi altri e diversi confini (il posto auto).Il tutto censito al Catasto dei Fabbricati del Comune di Roma, in ditta alla società esecutata per la proprietà superficiaria e al Comune di Roma per la proprietà dell’area, al foglio 669, part. 5034,--sub. 21, z.c. 6, via Cardinale Luigi Traglia n. 89 int. 2 piano S1, cat. C/6, cl. 11, cons. 17 mq, superf. cat. tot. 17 mq, r.c. € 58,82.Stato dei luoghi, regolarità urbanistica, destinazione urbanistica, convenzione edilizia ed eventuale affrancazione, eventuali vincoli o usi civici, stato d’uso, destinazione urbanistica, parti comuni, oneri e millesimi condominiali, impianti e formalità pregiudizievoli come in avviso di vendita e in perizia.Si precisa che, trattandosi di vendita coattiva in assenza di finanziamento pubblico, l’asta è aperta a tutti senza alcuna limitazione soggettiva, patrimoniale e di reddito, pur non escludendosi che ad una successiva rivendita possano essere applicabili tutte le limitazioni soggettive e oggettive nascenti dalla Convenzione.In merito alla determinazione del conguaglio ex art. 35, comma 12 L. 865/1971: si precisa che il Perito non ha avuto nessuna indicazione da parte degli organi preposti in quanto non è stato ancora determinato il costo definitivo del Piano di Zona. Dell’eventuale conguaglio, onere reale, allo stato non determinabile, dovrà farsi carico l’aggiudicatario e suoi aventi causa, circostanza di cui si è tenuto conto nella valutazione del bene.In merito al prezzo di massima cessione: si precisa che da accertamenti del Perito e riscontri degli uffici preposti è emerso che le tabelle per la determinazione del prezzo di massima cessione sono state depositate dalla Cooperativa presso il Dip. P.A.U. - U.O. Edilizia Residenziale Pubblica ma non sono state approvate per carenza documentale.Si precisa che l’ascensore non è funzionante.Gli impianti elettrico, idrico e di riscaldamento non sono attestati di conformità.Non è stato possibile redigere l’APE.Gli immobili sono nella disponibilità della parte esecutata.Emesso ordine di liberazione.Vendita soggetta a iva su opzione della società esecutata, ex art. 10, primo comma n. 8-bis, del D.P.R. 633/1972.Il tutto come meglio descritto nell’elaborato peritale depositato in atti6695034212026-05-13T11:00:00SENZA INCANTOASINCRONA TELEMATICAN.A.118.912,0089.184,005.000,002026-05-12T23:59:00sito pubblicitahttps://www.astegiudiziarie.ithttps://www.astegiudiziarie.itgestore delle venditehttps://www.garavirtuale.ithttps://www.garavirtuale.itsito pubblicitahttps://www.fallcoaste.ithttps://www.fallcoaste.itsito pubblicitahttps://www.asteannunci.ithttps://www.asteannunci.it2026-03-04

Abitazione di tipo civile, posto auto

Via Cardinale Luigi Traglia, 85, 00132 Roma RM, Italia, Roma (RM)

€ 118.912,00

Offerta minima € 89.184,00


Codice A4337086

Lotto 2

Data udienza 13/05/2026 ore 11:00

Termine presentazione offerte 12/05/2026 ore 23:59

Abitazione di tipo civile, posto auto

Via Cardinale Luigi Traglia, 85, 00132 Roma RM, Italia, Roma (RM)

€ 118.912,00

Offerta minima € 89.184,00


Codice A4337086

Lotto 2

Data udienza 13/05/2026 ore 11:00

Termine presentazione offerte 12/05/2026 ore 23:59

Ti interessa questa vendita?

Documentazione

Visualizza su mappa

Mappa geografica del bene

Punti di interesse

Fonte dati

Nel raggio di {{range}}Km

Loading...
  • {{ getIcon(poi.type) }} {{ poi.localized }}: {{poi.count}}
  • {{ getIcon(poi.type) }} {{ poi.localized }}: {{poi.count}}
Dati non disponibili

Quota pari a 1/1 del diritto di proprietà superficiaria ex art. 35 L. 865/1971 per la durata di 99 anni rinnovabili, su porzioni di fabbricato condominiale sito in Roma, Via Cardinale Luigi Traglia n. 85 (pedonale) e 89 (carrabile), e precisamente:- unità immobiliare ad uso civile abitazione posta al piano 3-S1, catastalmente composta da: ingresso/soggiorno, disimpegni, due bagni, cucina, due ripostigli, due camere e due balconi;- annessa cantina al piano S1- posto auto coperto

Indirizzo
Via Cardinale Luigi Traglia, 85, 00132 Roma RM, Italia, Roma (RM)


Codice asta
4337086


Lotto
2


Numero beni
2


Genere
Immobili


Categoria
Immobile residenziale


Valore di stima
-


Abitazione di tipo civile

Quota pari a 1/1 del diritto di proprietà superficiaria ex art. 35 L. 22/10/1971 n. 865, non usufruente di finanziamenti pubblici, per la durata di 99 anni rinnovabili, decorrenti dalla Convenzione a rogito Notaio Giovanni Ungari Trasatti in data 29/03/2013 rep. 47508 – racc. 26329, su porzioni di fabbricato condominiale sito Comune di Roma, Via Cardinal Luigi Traglia n. 85 (pedonale) e 89 (carrabile), PDZ Castelverde – comparto “I/parte” e precisamente:- unità immobiliare ad uso civile abitazione posta al piano 3-S1, contraddistinta con l’int. 14, catastalmente composta da: ingresso/soggiorno, disimpegni, due bagni, cucina, due ripostigli, due camere e due balconi;- con annessa cantina al piano S1, contraddistinta con l’int. 3, di forma regolare non finestrata; - A confine con: appartamento int. 13 (sub. 16), appartamento int. 15 (sub. 18), distacchi, salvi altri e diversi confini (l’unità immobiliare ad unsi civile abitazione); corridoio di accesso, cantina n. 4 (sub.41), cantina n. 2 (sub. 4), salvi altri e diversi confini (la cantina); -Il tutto censito al Catasto dei Fabbricati del Comune di Roma, in ditta alla società esecutata per la proprietà superficiaria e al Comune di Roma per la proprietà dell’area, al foglio 669, part. 5034,-sub. 17, z.c. 6, via Cardinale Luigi Traglia n. 85 int. 14 piani 3-S1, cat. A/2, cl. 5, vani 6, superf. cat. tot. 110 mq – escluse aree scoperte 102 mq. r.c. € 836,66;-Stato dei luoghi, regolarità urbanistica, destinazione urbanistica, convenzione edilizia ed eventuale affrancazione, eventuali vincoli o usi civici, stato d’uso, destinazione urbanistica, parti comuni, oneri e millesimi condominiali, impianti e formalità pregiudizievoli come in avviso di vendita e in perizia.Si precisa che, trattandosi di vendita coattiva in assenza di finanziamento pubblico, l’asta è aperta a tutti senza alcuna limitazione soggettiva, patrimoniale e di reddito, pur non escludendosi che ad una successiva rivendita possano essere applicabili tutte le limitazioni soggettive e oggettive nascenti dalla Convenzione.In merito alla determinazione del conguaglio ex art. 35, comma 12 L. 865/1971: si precisa che il Perito non ha avuto nessuna indicazione da parte degli organi preposti in quanto non è stato ancora determinato il costo definitivo del Piano di Zona. Dell’eventuale conguaglio, onere reale, allo stato non determinabile, dovrà farsi carico l’aggiudicatario e suoi aventi causa, circostanza di cui si è tenuto conto nella valutazione del bene.In merito al prezzo di massima cessione: si precisa che da accertamenti del Perito e riscontri degli uffici preposti è emerso che le tabelle per la determinazione del prezzo di massima cessione sono state depositate dalla Cooperativa presso il Dip. P.A.U. - U.O. Edilizia Residenziale Pubblica ma non sono state approvate per carenza documentale.Si precisa che l’ascensore non è funzionante.Gli impianti elettrico, idrico e di riscaldamento non sono attestati di conformità.Non è stato possibile redigere l’APE.Gli immobili sono nella disponibilità della parte esecutata.Emesso ordine di liberazione.Vendita soggetta a iva su opzione della società esecutata, ex art. 10, primo comma n. 8-bis, del D.P.R. 633/1972.Il tutto come meglio descritto nell’elaborato peritale depositato in atti

Indirizzo
Via Cardinale Luigi Traglia, 85, 00132 Roma RM, Italia, Roma (RM)


Piano
3


Disponibilità
-


Vani
6,00


Bagni
2


Metri quadri
110,00


Certificazione energetica
-


Dati catastali

Foglio:669, Particella:5034, Subalterno:17


Posto auto

Quota pari a 1/1 del diritto di proprietà superficiaria ex art. 35 L. 22/10/1971 n. 865, non usufruente di finanziamenti pubblici, per la durata di 99 anni rinnovabili, decorrenti dalla Convenzione a rogito Notaio Giovanni Ungari Trasatti in data 29/03/2013 rep. 47508 – racc. 26329, su porzioni di fabbricato condominiale sito Comune di Roma, Via Cardinal Luigi Traglia n. 85 (pedonale) e 89 (carrabile), PDZ Castelverde – comparto “I/parte” e precisamente:- -- posto auto coperto con ingresso dal civico n. 91(catastalmente n. 89) posto al piano S1 e contraddistinto con l’int. 2.A confine con: -- posto auto n. 3 (sub. 22), posto auto n. 1 (sub. 20), spazio di manovra, salvi altri e diversi confini (il posto auto).Il tutto censito al Catasto dei Fabbricati del Comune di Roma, in ditta alla società esecutata per la proprietà superficiaria e al Comune di Roma per la proprietà dell’area, al foglio 669, part. 5034,--sub. 21, z.c. 6, via Cardinale Luigi Traglia n. 89 int. 2 piano S1, cat. C/6, cl. 11, cons. 17 mq, superf. cat. tot. 17 mq, r.c. € 58,82.Stato dei luoghi, regolarità urbanistica, destinazione urbanistica, convenzione edilizia ed eventuale affrancazione, eventuali vincoli o usi civici, stato d’uso, destinazione urbanistica, parti comuni, oneri e millesimi condominiali, impianti e formalità pregiudizievoli come in avviso di vendita e in perizia.Si precisa che, trattandosi di vendita coattiva in assenza di finanziamento pubblico, l’asta è aperta a tutti senza alcuna limitazione soggettiva, patrimoniale e di reddito, pur non escludendosi che ad una successiva rivendita possano essere applicabili tutte le limitazioni soggettive e oggettive nascenti dalla Convenzione.In merito alla determinazione del conguaglio ex art. 35, comma 12 L. 865/1971: si precisa che il Perito non ha avuto nessuna indicazione da parte degli organi preposti in quanto non è stato ancora determinato il costo definitivo del Piano di Zona. Dell’eventuale conguaglio, onere reale, allo stato non determinabile, dovrà farsi carico l’aggiudicatario e suoi aventi causa, circostanza di cui si è tenuto conto nella valutazione del bene.In merito al prezzo di massima cessione: si precisa che da accertamenti del Perito e riscontri degli uffici preposti è emerso che le tabelle per la determinazione del prezzo di massima cessione sono state depositate dalla Cooperativa presso il Dip. P.A.U. - U.O. Edilizia Residenziale Pubblica ma non sono state approvate per carenza documentale.Si precisa che l’ascensore non è funzionante.Gli impianti elettrico, idrico e di riscaldamento non sono attestati di conformità.Non è stato possibile redigere l’APE.Gli immobili sono nella disponibilità della parte esecutata.Emesso ordine di liberazione.Vendita soggetta a iva su opzione della società esecutata, ex art. 10, primo comma n. 8-bis, del D.P.R. 633/1972.Il tutto come meglio descritto nell’elaborato peritale depositato in atti

Indirizzo
Via Cardinale Luigi Traglia, 89, 00132 Roma RM, Italia, Roma (RM)


Piano
s1


Disponibilità
-


Vani
1,00


Bagni
0


Metri quadri
17,00


Certificazione energetica
-


Dati catastali

Foglio:669, Particella:5034, Subalterno:21


Data udienza
13/05/2026 ore 11:00


Tipo di vendita
Senza incanto


Modalità di vendita
Asincrona telematica


Luogo
N.A. -


Luogo presentazione offerte
-


Termine presentazione offerte
12/05/2026 ore 23:59


Prezzo base
€ 118.912,00


Offerta minima
€ 89.184,00


Rialzo minimo in caso di gara
€ 5.000,00


Deposito cauzionale
-


Deposito in conto spese
-


Tribunale
Roma

Tipo di procedura
Esecuzione immobiliare post legge 80

Ruolo
17/2023

Giudice
Ciufolini Romolo

Recapiti
-

Email
-

Delegato alla vendita
Votta Natale
(Procede alle operazioni di vendita)

Recapiti
-

Email
-

Custode giudiziario
Ivg di roma s.r.l. 
(Gestisce la visita del bene)

Recapiti
Tel. 0683751500

Scheda COD. 4337086 - Pubblicata dal 25/03/2026

La presente scheda di vendita riporta integralmente informazioni e documenti pervenuti ufficialmente dal Ministero e dal professionista incaricato.

Pubblicazione notarizzata su Blockchain


Pubblicazione autorizzata dall’Autorità competente, è vietata ogni ripubblicazione o riproduzione anche parziale


Ti interessa questa vendita?

Documentazione

Visualizza su mappa

Mappa geografica del bene

Storico delle vendite

Data venditaPrezzo base
11/12/2025€ 185.800,00
19/02/2026€ 148.640,00
13/05/2026€ 118.912,00

Punti di interesse

Fonte dati

Nel raggio di {{range}}Km

Loading...
  • {{ getIcon(poi.type) }} {{ poi.localized }}: {{poi.count}}
  • {{ getIcon(poi.type) }} {{ poi.localized }}: {{poi.count}}
Dati non disponibili