Astegiudiziarie.it è parte di Rete Aste Network

Accedi o registrati

Non sei ancora registrato?

Oppure

Accedi

Abitazione di tipo civile

Via Cava, 15, 80030 Roccarainola NA, Italia, Roccarainola (NA)

€ 81.978,85

Offerta minima € 61.484,14


Codice A4339261

Lotto 1

Data udienza 16/06/2026 ore 16:00

Termine presentazione offerte 15/06/2026 ore 23:59

Abitazione di tipo civile

Via Cava, 15, 80030 Roccarainola NA, Italia, Roccarainola (NA)

€ 81.978,85

Offerta minima € 61.484,14


Codice A4339261

Lotto 1

Data udienza 16/06/2026 ore 16:00

Termine presentazione offerte 15/06/2026 ore 23:59

Ti interessa questa vendita?

Documentazione

Visualizza su mappa

Mappa geografica del bene

Punti di interesse

Fonte dati

Nel raggio di {{range}}Km

Loading...
  • {{ getIcon(poi.type) }} {{ poi.localized }}: {{poi.count}}
  • {{ getIcon(poi.type) }} {{ poi.localized }}: {{poi.count}}
Dati non disponibili

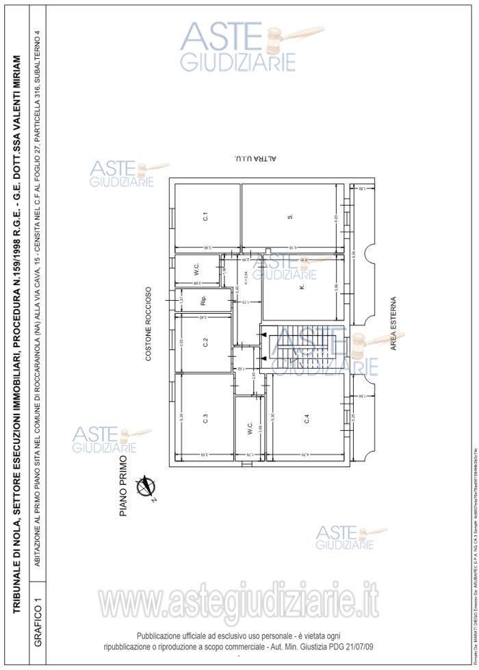
Appartamento sito al primo piano di circa 179 mq. composto da un'ampia cucina, cinque camere e doppi servizi igienici.

Indirizzo
Via Cava, 15, 80030 Roccarainola NA, Italia, Roccarainola (NA)


Codice asta
4339261


Lotto
1


Numero beni
1


Genere
Immobili


Categoria
Immobile residenziale


Valore di stima
-


Abitazione di tipo civile

Appartamento ubicato a Roccarainola (NA) - Via Cava, 15, piano 1. Trattasi di un appartamento al primo piano di circa 179 mq. (superficie commerciale) composto da un'ampia cucina, cinque camere e doppi servizi igienici

Indirizzo
Via Cava, 15, 80030 Roccarainola NA, Italia, Roccarainola (NA)


Piano
1


Disponibilità
LIBERO


Vani
5,00


Bagni
-


Metri quadri
179,00


Certificazione energetica
-


Dati catastali

Foglio:27, Particella:316, Subalterno:4


Data udienza
16/06/2026 ore 16:00


Tipo di vendita
Senza incanto


Modalità di vendita
Asincrona telematica


Luogo
N.A. -


Luogo presentazione offerte
-


Termine presentazione offerte
15/06/2026 ore 23:59


Prezzo base
€ 81.978,85


Offerta minima
€ 61.484,14


Rialzo minimo in caso di gara
€ 2.000,00


Deposito cauzionale
10% del prezzo offerto


Deposito in conto spese
-


Tribunale
Nola

Tipo di procedura
Esecuzione immobiliari

Ruolo
159/1998

Custode giudiziario
Fortuna Gioconda
(Procede alle operazioni di vendita)
(Gestisce la visita del bene)

Recapiti
Cell. 3483406195
Tel. 0818493093

Scheda COD. 4339261 - Pubblicata dal 14/04/2026

La presente scheda di vendita riporta integralmente informazioni e documenti pervenuti ufficialmente dal Ministero e dal professionista incaricato.

Pubblicazione notarizzata su Blockchain


Pubblicazione autorizzata dall’Autorità competente, è vietata ogni ripubblicazione o riproduzione anche parziale


Ti interessa questa vendita?

Documentazione

Visualizza su mappa

Mappa geografica del bene

Storico delle vendite

Data venditaPrezzo base
11/02/2026€ 109.305,13
16/06/2026€ 81.978,85

Punti di interesse

Fonte dati

Nel raggio di {{range}}Km

Loading...
  • {{ getIcon(poi.type) }} {{ poi.localized }}: {{poi.count}}
  • {{ getIcon(poi.type) }} {{ poi.localized }}: {{poi.count}}
Dati non disponibili