Astegiudiziarie.it è parte di Rete Aste Network

Accedi o registrati

Non sei ancora registrato?

Oppure

Accedi

Abitazione di tipo civile

Via Camillo Benso Cavour, 107, 93016 Riesi CL, Italia, Riesi (CL)

€ 188.280,00

Offerta minima € 141.210,00


Codice A4341742

Lotto Lotto unico

Data udienza 19/02/2026 ore 16:00

Termine presentazione offerte 18/02/2026 ore 12:00

Abitazione di tipo civile

Via Camillo Benso Cavour, 107, 93016 Riesi CL, Italia, Riesi (CL)

€ 188.280,00

Offerta minima € 141.210,00


Codice A4341742

Lotto Lotto unico

Data udienza 19/02/2026 ore 16:00

Termine presentazione offerte 18/02/2026 ore 12:00

Ti interessa questa vendita?

Visualizza su mappa

Mappa geografica del bene

Punti di interesse

Fonte dati

Nel raggio di {{range}}Km

Loading...
  • {{ getIcon(poi.type) }} {{ poi.localized }}: {{poi.count}}
  • {{ getIcon(poi.type) }} {{ poi.localized }}: {{poi.count}}
Dati non disponibili

Il bene in vendita è composto da: Immobile 1 per identificare l'appartamento in via Cavour n. 107 (ex 111) a Riesi (CL) (piano primo); Immobile 2 per identificare l'appartamento in via Cavour n. 107 (ex 111) a Riesi (CL) (piano secondo); Immobile 3 per identificare l'appartamento in via Cavour n. 107 (ex 111) a Riesi (CL) (piano terzo).

Indirizzo
Via Camillo Benso Cavour, 107, 93016 Riesi CL, Italia, Riesi (CL)


Codice asta
4341742


Lotto
Lotto unico


Numero beni
3


Genere
Immobili


Categoria
Immobile residenziale


Valore di stima
-


Abitazione di tipo civile

Immobile 2: appartamento al secondo piano composto da soggiorno, cucina abitabile, due camere da letto, un bagno, corridoio e tre balconi.

Indirizzo
Via Camillo Benso Cavour, 107, 93016 Riesi CL, Italia, Riesi (CL)


Piano
-


Disponibilità
-


Vani
5,00


Bagni
-


Metri quadri
164,00


Certificazione energetica
-


Abitazione di tipo civile

L'immobile 1: appartamento al primo piano composto da soggiorno, cucina abitabile, due camere da letto, due bagni, lavanderia, ripostiglio, corridoio e tre balconi.

Indirizzo
Via Camillo Benso Cavour, 107, 93016 Riesi CL, Italia, Riesi (CL)


Piano
-


Disponibilità
-


Vani
8,00


Bagni
-


Metri quadri
162,98


Certificazione energetica
-


Abitazione di tipo civile

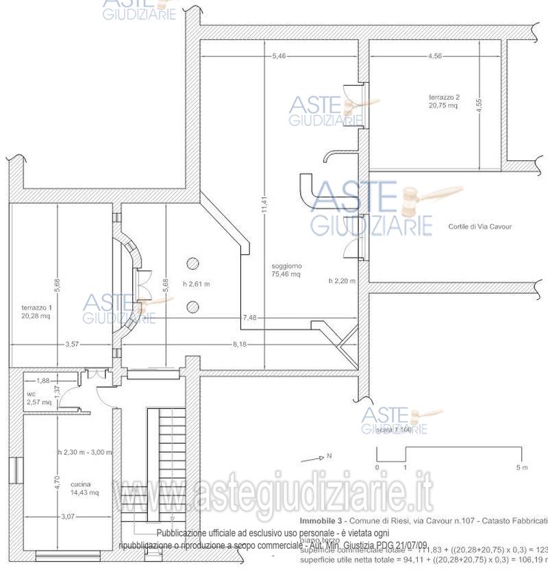
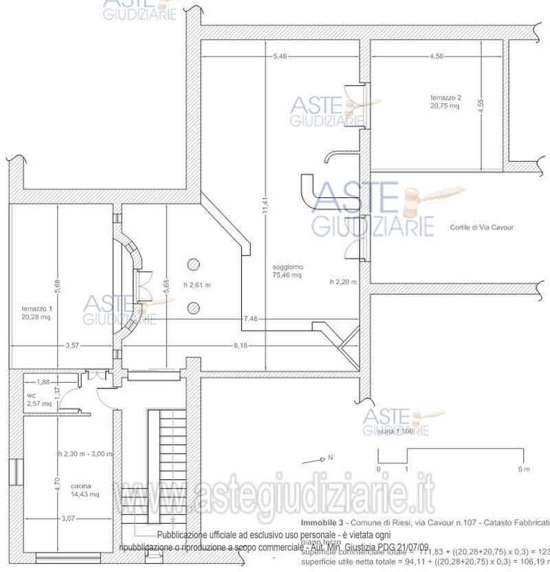
Immobile 3: appartamento al terzo piano composto da soggiorno, cucina abitabile, un bagno, corridoio e due terrazze.

Indirizzo
Via Camillo Benso Cavour, 107, 93016 Riesi CL, Italia, Riesi (CL)


Piano
-


Disponibilità
-


Vani
3,00


Bagni
-


Metri quadri
123,91


Certificazione energetica
-


Data udienza
19/02/2026 ore 16:00


Tipo di vendita
Senza incanto


Modalità di vendita
Sincrona mista


Luogo
via Nino Savarese n. 47 - Caltanissetta 93100


Luogo presentazione offerte
-


Termine presentazione offerte
18/02/2026 ore 12:00


Prezzo base
€ 188.280,00


Offerta minima
€ 141.210,00


Rialzo minimo in caso di gara
€ 5.000,00


Deposito cauzionale
10% del prezzo offerto


Deposito in conto spese
-


Tribunale
Caltanissetta

Tipo di procedura
Espropriazione immobiliare (cartabia)

Ruolo
73/2023

Giudice
Lauricella Francesco

Recapiti
-

Email
-

Delegato alla vendita
Caramazza Luigia
(Procede alle operazioni di vendita)

Recapiti
-

Email
-

Custode giudiziario
Caramazza Luigia
(Gestisce la visita del bene)

Recapiti
Cell. 3331024486

Scheda COD. 4341742 - Pubblicata dal 19/12/2025

La presente scheda di vendita riporta integralmente informazioni e documenti pervenuti ufficialmente dal Ministero e dal professionista incaricato.


Pubblicazione autorizzata dall’Autorità competente, è vietata ogni ripubblicazione o riproduzione anche parziale


Ti interessa questa vendita?

Visualizza su mappa

Mappa geografica del bene

Punti di interesse

Fonte dati

Nel raggio di {{range}}Km

Loading...
  • {{ getIcon(poi.type) }} {{ poi.localized }}: {{poi.count}}
  • {{ getIcon(poi.type) }} {{ poi.localized }}: {{poi.count}}
Dati non disponibili