Astegiudiziarie.it è parte di Rete Aste Network

Accedi o registrati

Non sei ancora registrato?

Oppure

Accedi

Appartamento

loc. Ciliegi, Reggello (FI)

€ 53.795,00

Offerta minima -


Codice A4318415

Lotto 3

Data vendita 18/02/2026 ore 12:00

Termine presentazione offerte 17/02/2026 ore 12:00

Appartamento

loc. Ciliegi, Reggello (FI)

€ 53.795,00

Offerta minima -


Codice A4318415

Lotto 3

Data Vendita 18/02/2026 ore 12:00

Termine presentazione offerte 17/02/2026 ore 12:00

Ti interessa questa vendita?

Documentazione

Visualizza su mappa

Mappa geografica del bene

Punti di interesse

Fonte dati

Nel raggio di {{range}}Km

Loading...
  • {{ getIcon(poi.type) }} {{ poi.localized }}: {{poi.count}}
  • {{ getIcon(poi.type) }} {{ poi.localized }}: {{poi.count}}
Dati non disponibili

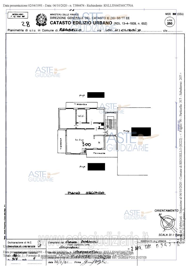
Appartamento ubicato al secondo piano del corpo di fabbrica in ampliamento composto da: ingresso, soggiorno con angolo cottura, disimpegno, una camera singola, due camere matrimoniali, bagno finestrato (dotato di lavabo, w.c., bidet, box doccia), ripostiglio, loggia e tre terrazze.

Indirizzo
loc. Ciliegi, Reggello (FI)


Codice asta
4318415


Lotto
3


Numero beni
1


Genere
Immobili


Categoria
Immobile residenziale


Valore di stima
-


Appartamento

Appartamento ubicato al secondo piano del corpo di fabbrica in ampliamento composto da: ingresso, soggiorno con angolo cottura, disimpegno, una camera singola, due camere matrimoniali, bagno finestrato (dotato di lavabo, w.c., bidet, box doccia), ripostiglio, loggia e tre terrazze.

Indirizzo
loc. Ciliegi, Reggello (FI)


Piano
-


Disponibilità
-


Vani
-


Bagni
-


Metri quadri
-


Certificazione energetica
-


Data vendita
18/02/2026 ore 12:00


Tipo di vendita
Competitiva


Modalità di vendita
Presso il venditore


Luogo
via B. latini n. 31 - Reggello 50066


Luogo presentazione offerte
-


Termine presentazione offerte
17/02/2026 ore 12:00


Prezzo base
€ 53.795,00


Offerta minima
-


Rialzo minimo in caso di gara
€ 2.500,00


Deposito cauzionale
5379,57


Deposito in conto spese
-


Tribunale
Firenze

Tipo di procedura
Fallimento

Ruolo
188/2017

Curatore fallimentare
Tozzi Elisa
(Procede alle operazioni di vendita)

Recapiti
Tel. 055 869497

Email
-

Scheda COD. 4318415 - Pubblicata dal 30/12/2025

La presente scheda di vendita riporta integralmente informazioni e documenti pervenuti ufficialmente dal Ministero e dal professionista incaricato.


Pubblicazione autorizzata dall’Autorità competente, è vietata ogni ripubblicazione o riproduzione anche parziale


Ti interessa questa vendita?

Documentazione

Visualizza su mappa

Mappa geografica del bene

Storico delle vendite

Data venditaPrezzo base
14/02/2025€ 76.851,00
18/02/2026€ 53.795,00

Punti di interesse

Fonte dati

Nel raggio di {{range}}Km

Loading...
  • {{ getIcon(poi.type) }} {{ poi.localized }}: {{poi.count}}
  • {{ getIcon(poi.type) }} {{ poi.localized }}: {{poi.count}}
Dati non disponibili