Astegiudiziarie.it è parte di Rete Aste Network

Accedi o registrati

Non sei ancora registrato?

Oppure

Accedi

Appartamento

Via Ciocca Luigi 36, Quinzano d'Oglio (BS)

€ 46.600,00

Offerta minima € 34.950,00


Codice A4341284

Lotto Lotto unico

Data udienza 03/02/2026 ore 12:00

Termine presentazione offerte 02/02/2026 ore 12:00

Appartamento

Via Ciocca Luigi 36, Quinzano d'Oglio (BS)

€ 46.600,00

Offerta minima € 34.950,00


Codice A4341284

Lotto Lotto unico

Data udienza 03/02/2026 ore 12:00

Termine presentazione offerte 02/02/2026 ore 12:00

Ti interessa questa vendita?

Documentazione

Visualizza su mappa

Mappa geografica del bene

Punti di interesse

Fonte dati

Nel raggio di {{range}}Km

Loading...
  • {{ getIcon(poi.type) }} {{ poi.localized }}: {{poi.count}}
  • {{ getIcon(poi.type) }} {{ poi.localized }}: {{poi.count}}
Dati non disponibili

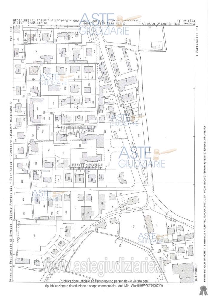
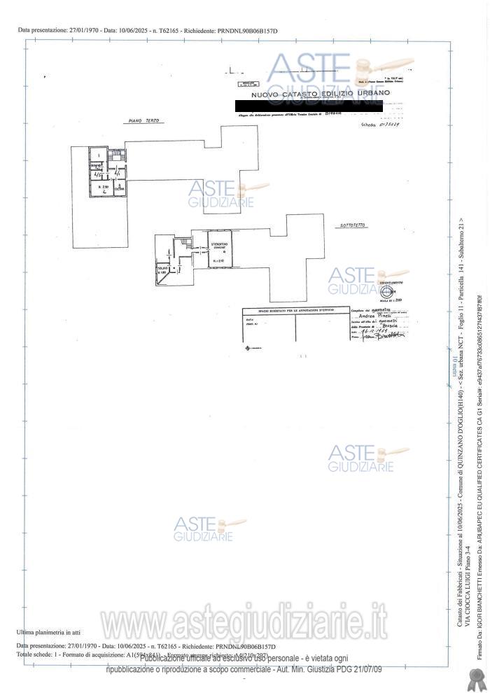
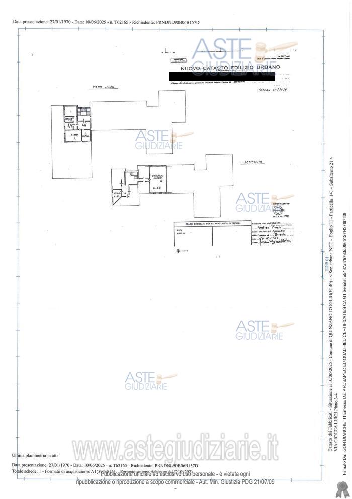
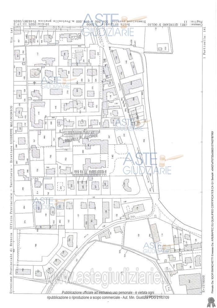
Appartamento quadrilocale posto al piano terzo, con solaio al piano quarto, sito in edificio condominiale

Indirizzo
Via Ciocca Luigi 36, Quinzano d'Oglio (BS)


Codice asta
4341284


Lotto
Lotto unico


Numero beni
1


Genere
Immobili


Categoria
Immobile residenziale


Valore di stima
-


Appartamento

Appartamento quadrilocale posto al piano terzo, con solaio al piano quarto, sito in edificio condominiale, identificato al catasto fabbricati del comune di Quinzano d'Oglio (BS) con i seguenti dati: - sez. NCT, foglio 11, part. 141, sub.21, cat. A/2, piano 3-4, classe 2, cons. 4,5 vani, superficie catastale totale 111 mq., escluse aree scoperte 111 mq., rendita catastale €.195,22. Con proporzionale quota di comproprietà delle parti del fabbricato comuni alle unità immobiliari ai sensi dell’art.1117 c.c.

Indirizzo
Via Ciocca Luigi 36, Quinzano d'Oglio (BS)


Piano
-


Disponibilità
OCCUP


Vani
4,00


Bagni
-


Metri quadri
111,00


Certificazione energetica
-


Data udienza
03/02/2026 ore 12:00


Tipo di vendita
Senza incanto


Modalità di vendita
Asincrona telematica


Luogo
N.A. -


Luogo presentazione offerte
-


Termine presentazione offerte
02/02/2026 ore 12:00


Prezzo base
€ 46.600,00


Offerta minima
€ 34.950,00


Rialzo minimo in caso di gara
€ 1.000,00


Deposito cauzionale
-


Deposito in conto spese
-


Tribunale
Brescia

Tipo di procedura
Espropriazione immobiliare (cartabia)

Ruolo
173/2025

Giudice
Bruno Simonetta

Recapiti
-

Email
-

Delegato alla vendita
Chiari Simona
(Procede alle operazioni di vendita)

Recapiti
-

Email
-

Custode giudiziario
Chiari Simona
(Gestisce la visita del bene)

Recapiti
-

Scheda COD. 4341284 - Pubblicata dal 17/12/2025

La presente scheda di vendita riporta integralmente informazioni e documenti pervenuti ufficialmente dal Ministero e dal professionista incaricato.


Pubblicazione autorizzata dall’Autorità competente, è vietata ogni ripubblicazione o riproduzione anche parziale


Ti interessa questa vendita?

Documentazione

Visualizza su mappa

Mappa geografica del bene

Punti di interesse

Fonte dati

Nel raggio di {{range}}Km

Loading...
  • {{ getIcon(poi.type) }} {{ poi.localized }}: {{poi.count}}
  • {{ getIcon(poi.type) }} {{ poi.localized }}: {{poi.count}}
Dati non disponibili