Astegiudiziarie.it è parte di Rete Aste Network

Accedi o registrati

Non sei ancora registrato?

Oppure

Accedi

Abitazione di tipo economico, lastrico solare

Via Pisciarelli n.8, Pozzuoli (NA)

€ 121.000,00

Offerta minima € 90.750,00


Codice A4348338

Lotto 2

Data udienza 07/07/2026 ore 15:30

Termine presentazione offerte 06/07/2026 ore 23:59

Abitazione di tipo economico, lastrico solare

Via Pisciarelli n.8, Pozzuoli (NA)

€ 121.000,00

Offerta minima € 90.750,00


Codice A4348338

Lotto 2

Data udienza 07/07/2026 ore 15:30

Termine presentazione offerte 06/07/2026 ore 23:59

Ti interessa questa vendita?

Documentazione

Visualizza su mappa

Mappa geografica del bene

Punti di interesse

Fonte dati

Nel raggio di {{range}}Km

Loading...
  • {{ getIcon(poi.type) }} {{ poi.localized }}: {{poi.count}}
  • {{ getIcon(poi.type) }} {{ poi.localized }}: {{poi.count}}
Dati non disponibili

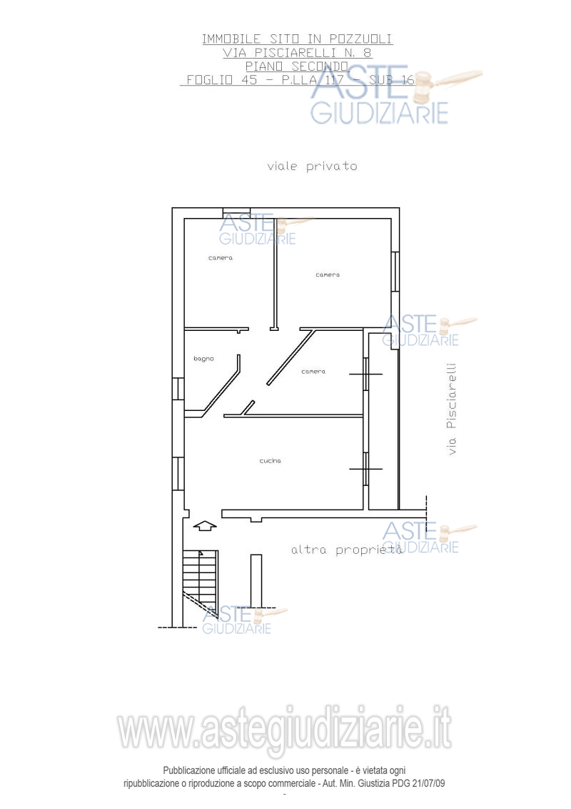
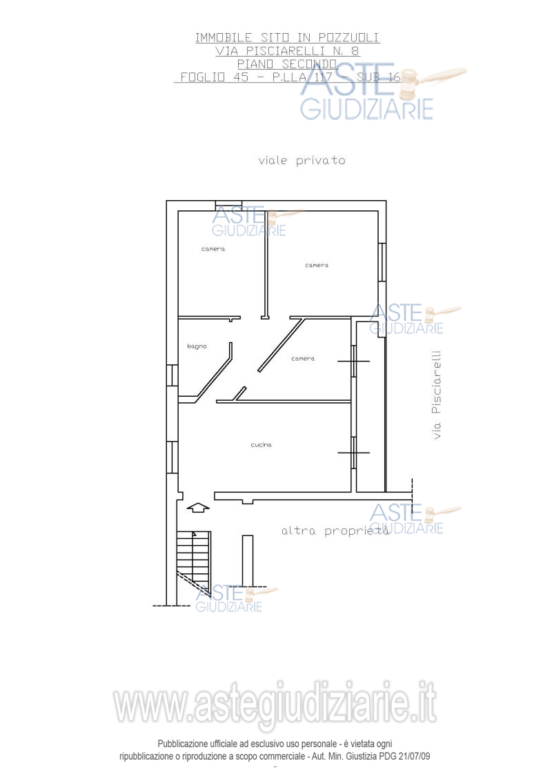
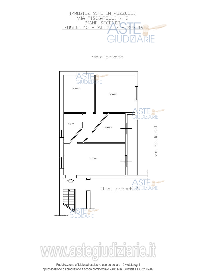
Piena ed intera proprietà di appartamento sito in Pozzuoli (NA) alla Via Pisciarelli n.8/A, piano secondo, composto da cucina, corridoio, bagno e tre camere, con soprastante lastrico solare di copertura.

Indirizzo
Via Pisciarelli n.8, Pozzuoli (NA)


Codice asta
4348338


Lotto
2


Numero beni
2


Genere
Immobili


Categoria
Immobile residenziale


Valore di stima
-


Abitazione di tipo economico

Piena ed intera proprietà di appartamento sito in Pozzuoli (NA) alla Via Pisciarelli n.8/A, piano secondo, composto da cucina, corridoio, bagno e tre camere, con soprastante lastrico solare di copertura.

Indirizzo
Via Pisciarelli n.8, Pozzuoli (NA)


Piano
-


Disponibilità
LIBERO


Vani
5,00


Bagni
1


Metri quadri
97,00


Certificazione energetica
-


Dati catastali

Foglio:45, Particella:117, Subalterno:16


Lastrico solare

Piena ed intera proprietà di appartamento sito in Pozzuoli (NA) alla Via Pisciarelli n.8/A, piano secondo, composto da cucina, corridoio, bagno e tre camere, con soprastante lastrico solare di copertura.

Indirizzo
Via Pisciarelli n.8, Pozzuoli (NA)


Piano
-


Disponibilità
LIBERO


Vani
-


Bagni
-


Metri quadri
95,00


Certificazione energetica
-


Dati catastali

Foglio:45, Particella:117, Subalterno:26


Data udienza
07/07/2026 ore 15:30


Tipo di vendita
Senza incanto


Modalità di vendita
Asincrona telematica


Luogo
N.A. -


Luogo presentazione offerte
-


Termine presentazione offerte
06/07/2026 ore 23:59


Prezzo base
€ 121.000,00


Offerta minima
€ 90.750,00


Rialzo minimo in caso di gara
€ 5.000,00


Deposito cauzionale
10% del prezzo offerto


Deposito in conto spese
-


Tribunale
Napoli

Tipo di procedura
Espropriazione immobiliare (cartabia)

Ruolo
605/2023

Delegato alla vendita
Avallone Daniela
(Procede alle operazioni di vendita)
(Gestisce la visita del bene)

Recapiti
Tel. 0817613117

Scheda COD. 4348338 - Pubblicata dal 01/04/2026

La presente scheda di vendita riporta integralmente informazioni e documenti pervenuti ufficialmente dal Ministero e dal professionista incaricato.


Pubblicazione autorizzata dall’Autorità competente, è vietata ogni ripubblicazione o riproduzione anche parziale


Ti interessa questa vendita?

Documentazione

Visualizza su mappa

Mappa geografica del bene

Punti di interesse

Fonte dati

Nel raggio di {{range}}Km

Loading...
  • {{ getIcon(poi.type) }} {{ poi.localized }}: {{poi.count}}
  • {{ getIcon(poi.type) }} {{ poi.localized }}: {{poi.count}}
Dati non disponibili