Astegiudiziarie.it è parte di Rete Aste Network

Accedi o registrati

Non sei ancora registrato?

Oppure

Accedi

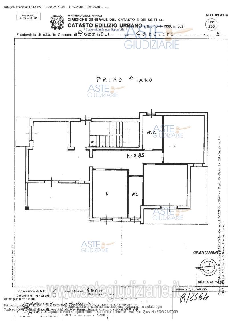
giudiziariagiudiziariaTribunale di NAPOLIESECUZIONI CIVILI IMMOBILIARIESPROPRIAZIONE IMMOBILIARE (CARTABIA)2232024Delegato alla venditaStefanoVitaleVTLSFN69B03E131Lstefanovitale@studiolegalevitale.net338987881008118088520truefalseCustodeStefanoVitaleVTLSFN69B03E131Lstefanovitale@studiolegalevitale.net338987881008118088520falsetrue23646391IMMOBILIIMMOBILE RESIDENZIALEVia del Cantiere, 5, 80078 Pozzuoli NA, Italia80078NapoliNapoliCampaniaItaliaAppartamento composto da soggiorno-cucina, tre camere, due bagni, disimpegno e tre balconi, ubicato al primo piano di una villetta su due livelli con circostante area in parte pavimentata ed in parte trattata a verde.3054139IMMOBILE RESIDENZIALEABITAZIONE DI TIPO CIVILEVia del Cantiere, 5, 80078 Pozzuoli NA, Italia80078PozzuoliNapoliCampaniaItaliaAppartamento composto da soggiorno-cucina, tre camere, due bagni, disimpegno e tre balconi, ubicato al primo piano di una villetta su due livelli con circostante area in parte pavimentata ed in parte trattata a verde. 932543OCCST5.512026-03-10T16:00:00SENZA INCANTOASINCRONA TELEMATICAN.A.84.937,5063.703,123.000,002026-03-09T23:59:00gestore delle venditehttps://www.spazioaste.ithttps://www.spazioaste.itsito pubblicitahttps://www.astalegale.nethttps://www.astalegale.netsito pubblicitahttps://www.astegiudiziarie.ithttps://www.astegiudiziarie.itsito pubblicitahttps://www.asteannunci.ithttps://www.asteannunci.it2025-12-29

Abitazione di tipo civile

Via del Cantiere, 5, 80078 Pozzuoli NA, Italia, Pozzuoli (NA)

€ 84.937,50

Offerta minima € 63.703,12


Codice A4327907

Lotto 1

Data udienza 10/03/2026 ore 16:00

Termine presentazione offerte 09/03/2026 ore 23:59

Abitazione di tipo civile

Via del Cantiere, 5, 80078 Pozzuoli NA, Italia, Pozzuoli (NA)

€ 84.937,50

Offerta minima € 63.703,12


Codice A4327907

Lotto 1

Data udienza 10/03/2026 ore 16:00

Termine presentazione offerte 09/03/2026 ore 23:59

Ti interessa questa vendita?

Documentazione

Visualizza su mappa

Mappa geografica del bene

Punti di interesse

Fonte dati

Nel raggio di {{range}}Km

Loading...
  • {{ getIcon(poi.type) }} {{ poi.localized }}: {{poi.count}}
  • {{ getIcon(poi.type) }} {{ poi.localized }}: {{poi.count}}
Dati non disponibili

Appartamento composto da soggiorno-cucina, tre camere, due bagni, disimpegno e tre balconi, ubicato al primo piano di una villetta su due livelli con circostante area in parte pavimentata ed in parte trattata a verde.

Indirizzo
Via del Cantiere, 5, 80078 Pozzuoli NA, Italia, Pozzuoli (NA)


Codice asta
4327907


Lotto
1


Numero beni
1


Genere
Immobili


Categoria
Immobile residenziale


Valore di stima
€ 151.000,00


Abitazione di tipo civile

Appartamento composto da soggiorno-cucina, tre camere, due bagni, disimpegno e tre balconi, ubicato al primo piano di una villetta su due livelli con circostante area in parte pavimentata ed in parte trattata a verde.

Indirizzo
Via del Cantiere, 5, 80078 Pozzuoli NA, Italia, Pozzuoli (NA)


Piano
1


Disponibilità
Occupato senza titolo


Vani
5,50


Bagni
-


Metri quadri
94,00


Certificazione energetica
-


Dati catastali

Foglio:93, Particella:254, Subalterno:3


Data udienza
10/03/2026 ore 16:00


Tipo di vendita
Senza incanto


Modalità di vendita
Asincrona telematica


Luogo
N.A. -


Luogo presentazione offerte
-


Termine presentazione offerte
09/03/2026 ore 23:59


Prezzo base
€ 84.937,50


Offerta minima
€ 63.703,12


Rialzo minimo in caso di gara
€ 3.000,00


Deposito cauzionale
10% del prezzo offerto


Deposito in conto spese
-


Tribunale
Napoli

Tipo di procedura
Espropriazione immobiliare (cartabia)

Ruolo
223/2024

Delegato alla vendita
Vitale Stefano
(Procede alle operazioni di vendita)

Recapiti
Cell. 3389878810
Tel. 08118088520

Email
stefanovitale@studiolegalevita...

Custode giudiziario
Vitale Stefano
(Gestisce la visita del bene)

Recapiti
Cell. 3389878810
Tel. 08118088520

Scheda COD. 4327907 - Pubblicata dal 29/12/2025

La presente scheda di vendita riporta integralmente informazioni e documenti pervenuti ufficialmente dal Ministero e dal professionista incaricato.


Pubblicazione autorizzata dall’Autorità competente, è vietata ogni ripubblicazione o riproduzione anche parziale


Ti interessa questa vendita?

Documentazione

Visualizza su mappa

Mappa geografica del bene

Storico delle vendite

Data venditaPrezzo base
15/07/2025€ 151.000,00
02/12/2025€ 113.250,00
10/03/2026€ 84.937,50

Punti di interesse

Fonte dati

Nel raggio di {{range}}Km

Loading...
  • {{ getIcon(poi.type) }} {{ poi.localized }}: {{poi.count}}
  • {{ getIcon(poi.type) }} {{ poi.localized }}: {{poi.count}}
Dati non disponibili