Astegiudiziarie.it è parte di Rete Aste Network

Accedi o registrati

Non sei ancora registrato?

Oppure

Accedi

Abitazione di tipo economico

Via De Gasperi, 21, 09010 Portoscuso SU, Italia, Portoscuso (SU)

€ 66.586,00

Offerta minima € 49.940,00


Codice A4320621

Lotto Lotto unico

Data udienza 26/11/2025 ore 15:00

Termine presentazione offerte 25/11/2025 ore 15:00

Abitazione di tipo economico

Via De Gasperi, 21, 09010 Portoscuso SU, Italia, Portoscuso (SU)

€ 66.586,00

Offerta minima € 49.940,00


Codice A4320621

Lotto Lotto unico

Data udienza 26/11/2025 ore 15:00

Termine presentazione offerte 25/11/2025 ore 15:00

Ti interessa questa vendita?

Documentazione

Visualizza su mappa

Mappa geografica del bene

Punti di interesse

Fonte dati

Nel raggio di {{range}}Km

Loading...
  • {{ getIcon(poi.type) }} {{ poi.localized }}: {{poi.count}}
  • {{ getIcon(poi.type) }} {{ poi.localized }}: {{poi.count}}
Dati non disponibili

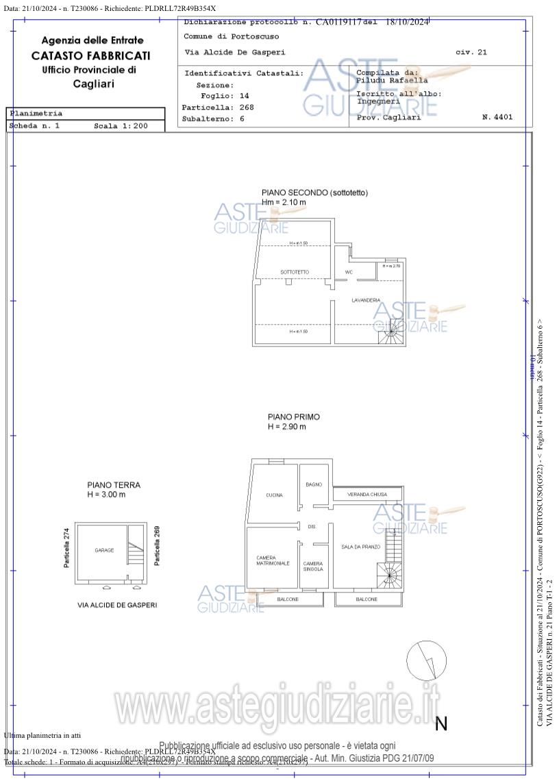
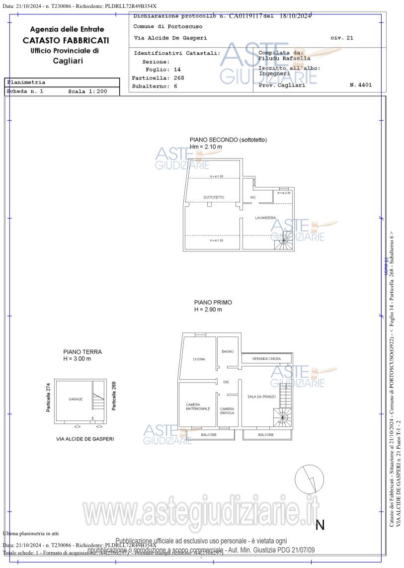
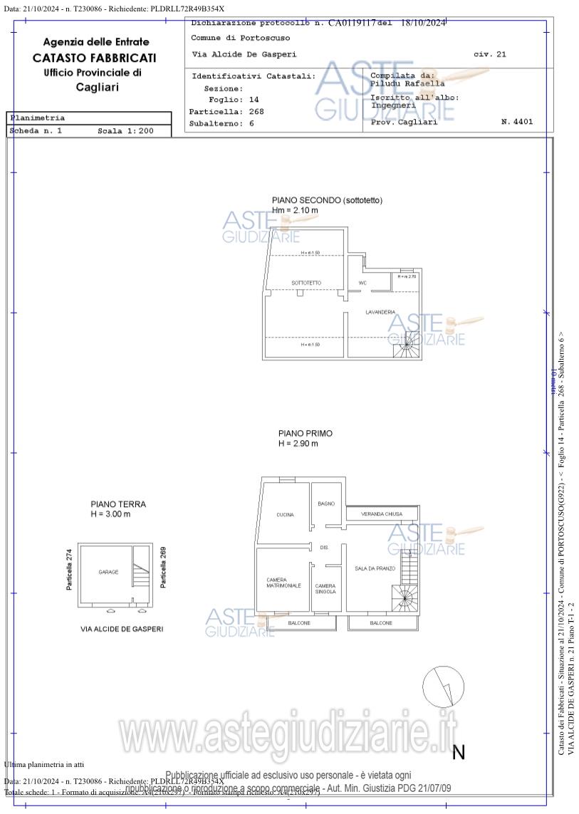
Unità indipendente ad uso civile abitazione su tre piani, sita in Comune di Portoscuso (SU), Via Alcide de Gasperi n. 21, composta al piano terra da garage e scala di accesso ai successivi piani, al piano primo da salone, bagno, disimpegno, ripostiglio, due camere da letto con due balconate ed al piano secondo da zona lavanderia e stenditoio.

Indirizzo
Via De Gasperi, 21, 09010 Portoscuso SU, Italia, Portoscuso (SU)


Codice asta
4320621


Lotto
Lotto unico


Numero beni
1


Genere
Immobili


Categoria
Immobile residenziale


Valore di stima
-


Abitazione di tipo economico

Unità indipendente ad uso civile abitazione su tre piani, composta al piano terra da garage e scala di accesso ai successivi piani, al piano primo da salone, bagno, disimpegno, ripostiglio, due camere da letto con due balconate ed al piano secondo da zona lavanderia e stenditoio.

Indirizzo
Via De Gasperi, 21, 09010 Portoscuso SU, Italia, Portoscuso (SU)


Piano
-


Disponibilità
-


Vani
6,50


Bagni
1


Metri quadri
145,00


Certificazione energetica
-


Dati catastali

Foglio:14, Particella:268, Subalterno:6


Data udienza
26/11/2025 ore 15:00


Tipo di vendita
Senza incanto


Modalità di vendita
Asincrona telematica


Luogo
-


Luogo presentazione offerte
-


Termine presentazione offerte
25/11/2025 ore 15:00


Prezzo base
€ 66.586,00


Offerta minima
€ 49.940,00


Rialzo minimo in caso di gara
€ 2.000,00


Deposito cauzionale
10000


Deposito in conto spese
-


Tribunale
Cagliari

Tipo di procedura
Esecuzione immobiliare post legge 80

Ruolo
390/2022

Giudice
Cocco Silvia

Recapiti
-

Email
-

Delegato alla vendita
Casu Carolina
(Procede alle operazioni di vendita)

Recapiti
Cell. 3454100790
Tel. 0706848841

Email
studiocasu.dott@tiscali.it

Custode giudiziario
Istituto vendite giudiziarie  
(Gestisce la visita del bene)

Recapiti
Tel. 0702299036

Scheda COD. 4320621 - Pubblicata dal 08/10/2025

La presente scheda di vendita riporta integralmente informazioni e documenti pervenuti ufficialmente dal Ministero e dal professionista incaricato.

Pubblicazione notarizzata su Blockchain


Pubblicazione autorizzata dall’Autorità competente, è vietata ogni ripubblicazione o riproduzione anche parziale


Ti interessa questa vendita?

Documentazione

Visualizza su mappa

Mappa geografica del bene

Storico delle vendite

Data venditaPrezzo base
26/03/2025€ 122.400,00
11/06/2025€ 97.920,00
24/09/2025€ 78.336,00
26/11/2025€ 66.586,00

Punti di interesse

Fonte dati

Nel raggio di {{range}}Km

Loading...
  • {{ getIcon(poi.type) }} {{ poi.localized }}: {{poi.count}}
  • {{ getIcon(poi.type) }} {{ poi.localized }}: {{poi.count}}
Dati non disponibili