Astegiudiziarie.it è parte di Rete Aste Network

Accedi o registrati

Non sei ancora registrato?

Oppure

Accedi

Abitazione di tipo economico, stalle, scuderie, rimesse, autorimesse

Via Giuseppe di Vittorio, 42,, Porto Cesareo (LE)

€ 144.252,50

Offerta minima € 108.189,50


Codice A4342401

Lotto Lotto unico

Data udienza 18/06/2026 ore 10:00

Termine presentazione offerte 11/06/2026 ore 12:00

Abitazione di tipo economico, stalle, scuderie, rimesse, autorimesse

Via Giuseppe di Vittorio, 42,, Porto Cesareo (LE)

€ 144.252,50

Offerta minima € 108.189,50


Codice A4342401

Lotto Lotto unico

Data udienza 18/06/2026 ore 10:00

Termine presentazione offerte 11/06/2026 ore 12:00

Ti interessa questa vendita?

Documentazione

Visualizza su mappa

Mappa geografica del bene

Punti di interesse

Fonte dati

Nel raggio di {{range}}Km

Loading...
  • {{ getIcon(poi.type) }} {{ poi.localized }}: {{poi.count}}
  • {{ getIcon(poi.type) }} {{ poi.localized }}: {{poi.count}}
Dati non disponibili

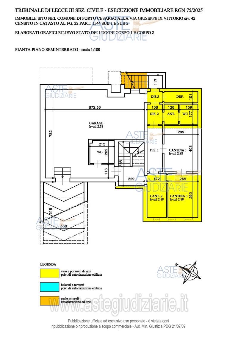
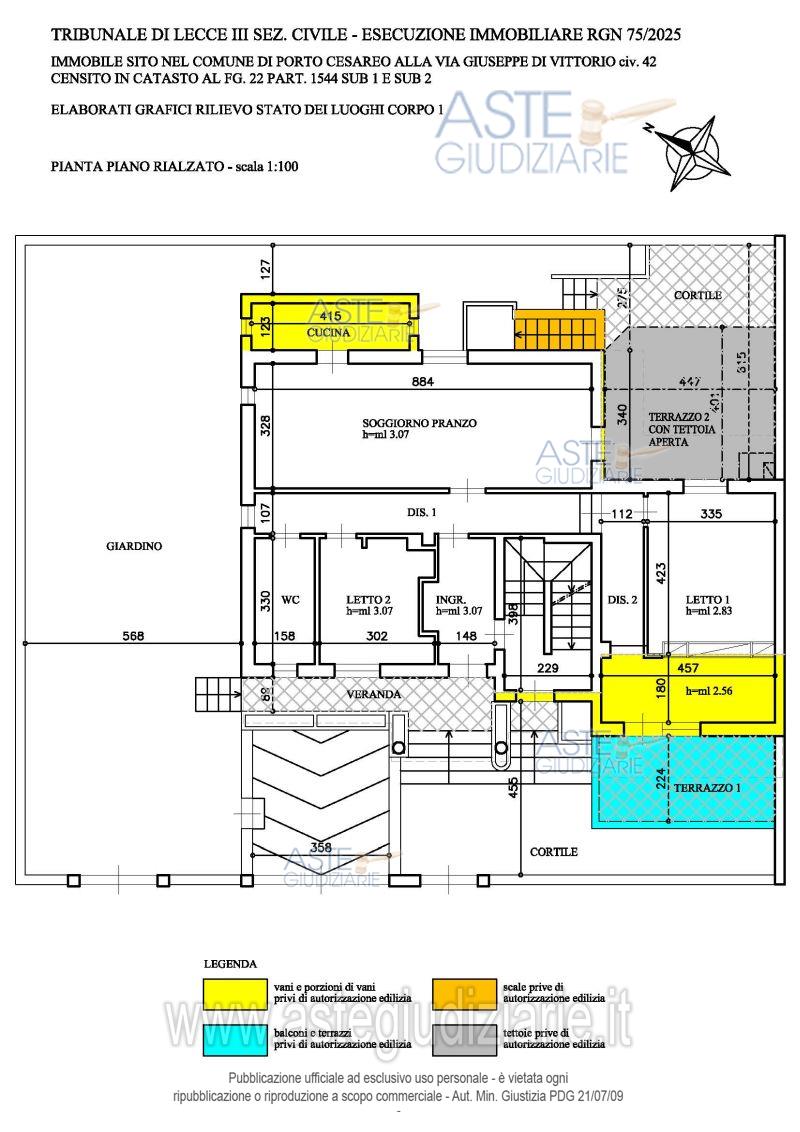
A - Piena proprietà per la quota di 1000/1000 di abitazione di tipo economico, sita in Porto Cesareo (Lecce) alla Via Giuseppe Di Vittorio Civ. 42. Nel NCEU al Fl 22, pc 1554 sub. 1, cat. A/3, classe 4, Consistenza: 10,5 vani B. Piena proprietà per la quota di 1000/1000 di un garage, sito in Porto Cesareo (Lecce) Via Giuseppe Di Vittorio Civ. 42. Nel NCEU al Fl 22, pc.1554 sub 2, cat. C/6, classe 3, Consistenza: 60 Mq.

Indirizzo
Via Giuseppe di Vittorio, 42,, Porto Cesareo (LE)


Codice asta
4342401


Lotto
Lotto unico


Numero beni
2


Genere
Immobili


Categoria
Immobile residenziale


Valore di stima
-


Abitazione di tipo economico

A - Piena proprietà per la quota di 1000/1000 di abitazione di tipo economico, sita in Porto Cesareo (Lecce) alla Via Giuseppe Di Vittorio Civ. 42. IDENTIFICAZIONE CATASTALE: • Foglio 22 mappale 1554 subalterno 1, categoria A/3, classe 4, Consistenza: 10,5 vani Superficie Catastale TOTALE: 273 mq. TOTALE ESCLUSE AREE SCOPERTE: 259 mq., posto al piano S1-T - 1, Rendita: Euro 677,85.L’immobile è costituito da un’unità immobiliare con destinazione residenziale posta ai piani seminterrato, rialzato e primo di un fabbricato a due piani fuori terra ed uno interrato sito in Porto Cesareo alla Via Giuseppe Di Vittorio civ. 42.Il piano seminterrato dell’unità immobiliare presenta accesso da scala interna posta sul fronte ovest e da scala esterna posta sul fronte est, e si compone di tre vani ad uso cantina, tre disimpegni, un antibagno, un wc ed un deposito, parte dei quali sono risultati essere privi di autorizzazione edilizia. La superficie lorda della porzione autorizzata del piano seminterrato è risultata essere pari a mq 20,00 circa, quella lorda della porzione priva di autorizzazione posta sul fronte ovest è pari a mq 21,00 circa, quella lorda della porzione priva di autorizzazione posta sul fronte est su area al di fuori della sagoma già autorizzata è pari a mq 12,00 circa, quella lorda priva di autorizzazione della porzione posta sul fronte est già autorizzata ad uso scala esterna è pari a mq 5,00 circa, e quella lorda della scala esterna sul fronte est è pari a mq 5,00 circa. L’altezza utile del piano seminterrato è risultata essere pari a ml 2,88 circa.Il piano rialzato dell’unità immobiliare presenta accesso a mezzo di cortile posto a ridosso della sede stradale, e si compone di un ingresso, due disimpegni, uno dei quali in parte privo di autorizzazione edilizia, un soggiorno pranzo, un vano cucina privo di autorizzazione edilizia, e due vani letto, uno dei quali privo di autorizzazione edilizia, oltre ad una veranda ed un terrazzo, quest’ultimo privo di autorizzazione edilizia, posti sul fronte anteriore ovest, un terrazzo posto sul fronte posteriore est, all’interno del quale è presente tettoia aperta priva di autorizzazione edilizia, un cortile anteriore, un cortile posteriore, ed un giardino posto sul fronte nord. La superficie lorda della porzione autorizzata del piano rialzato è risultata essere pari a mq 93,00 circa, quella lorda priva di autorizzazione edilizia posta sul fronte ovest, costituita da parte del disimpegno 2 e del letto 1, su area già autorizzata ad uso veranda, è pari a mq 5,00 circa, quella lorda priva di autorizzazione edilizia posta sul fronte ovest su area già autorizzata ad uso cortile, è pari a mq 6,00 circa, quella lorda priva di autorizzazione edilizia posta sul fronte est costituita dal vano cucina su area già autorizzata in parte ad uso scala esterna ed in parte ad uso cortile è pari a mq 7,00 circa, quella lorda priva di autorizzazione edilizia eccedente il limite della sagoma autorizzata ricadente su parte del fronte est del fabbricato e su parte del corpo scala è pari a mq 1,00 circa, quella lorda del cortile anteriore è pari a mq 26,00 circa, quella lorda del cortileposteriore è pari a mq 14,00 circa, quella lorda del terrazzo posteriore è pari a mq 15,00 circa, quella lorda del terrazzo anteriore privo di autorizzazione edilizia è pari a mq 12,00 circa, quella lorda del giardino è pari a mq 121,00 circa. L’altezza utile del piano terra è compresa tra ml 2,83 circa e ml 3,07 circa.Il piano primo dell’unità immobiliare presenta accesso da scala interna, e si compone di tre vani, un disimpegno e tre vani wc, in parte privi di autorizzazione edilizia, oltre ad un terrazzo posto sul fronte nord all’interno del quale è posta tettoia chiusa, e tre balconi privi di autorizzazione edilizia, dei quali due sul fronte ovest ed uno sul fronte est. La superficie lorda della porzione autorizzata del piano primo è risultata essere pari a mq 54,00 circa, quella lorda priva di autorizzazione edilizia sul fronte ovest su area già autorizzata ad uso terrazzo è pari a mq 5,00 circa, quella lorda priva di autorizzazione edilizia sul fronte ovest al di fuori della sagoma autorizzata è pari a mq 5,00 circa, quella lorda priva di autorizzazione edilizia posta sul fronte nord su area già autorizzata ad uso terrazzo è pari a mq 25,00 circa, quella lorda della porzione di terrazzo posta sul fronte nord occupata da tettoia chiusa priva di autorizzazione edilizia è pari a mq 15,00 circa, quella lorda dei balconi privi di autorizzazione posti sul fronte ovest è pari a mq 19,00 circa, quella lorda del balcone privo di autorizzazione edilizia posto sul fronte est è pari a mq 74,00 circa. L’altezza utile del piano primo è pari a ml 2,77 circa.I lastrici solari dell’immobile sono risultati non essere accessibili a causa della chiusura della porta di comunicazione con la porzione terminale del corpo scala.Sono presenti impianti di adduzione idrica ed impianto di riscaldamento con corpi radianti e caldaia alimentata a GPL collegati alle reti pubbliche e privi di utenze in essere, impianto elettrico con utenza intestata a terzi, ed impianto fognante con smaltimento in fossa biologica. Tutti gli impianti sono risultati essere in comune con il corpo “B”.La struttura portante dell’edificio del quale il corpo A costituito dall’abitazione oggetto della procedura è costituita da telaio con travi, pilastri e fondazioni in c.a., e coperture composte da solai latero cementizi piani.Lo stato dell’immobile si intende inclusa ogni accessione, pertinenza, servitù attive e passive, visibili e non.L’immobile è privo di certificazione di abitabilità.DESTINAZIONE URBANISTICAPUG del Comune di Porto Cesareo approvato con Delibera di Giunta Regione Puglia n. 105 del 23/01/2012 e successiva Variante adottata con Deliberazione di Consiglio Comunale n. 26 del 13/06/2025 del Comune di Porto Cesareo comprensiva del Rapporto Ambientale VAS e della Sintesi non TecnicaART. 3.2.1.5 ZONE B1 (ex B3 e B4 Torre Lapillo) – Zone satureAi sensi del vigente PUTT Regione Puglia il lotto sul quale insiste l’immobile risulta ricadere in area sottoposta a vincolo paesaggistico istituito ai sensi della L. 1497 04- 09-1975, modificato da vincoli successivi istituiti con DGR n. 623 /2018 e DGR n. 652/2023

Indirizzo
Via Giuseppe di Vittorio, 42,, Porto Cesareo (LE)


Piano
-


Disponibilità
IN CORSO DI LIBERAZIONE


Vani
105,00


Bagni
-


Metri quadri
273,00


Certificazione energetica
-


Dati catastali

Foglio:22, Particella:1554, Subalterno:1


Stalle, scuderie, rimesse, autorimesse

B - Piena proprietà per la quota di 1000/1000 di un garage, sito in Porto Cesareo (Lecce) Via Giuseppe Di Vittorio Civ. 42. IDENTIFICAZIONE CATASTALE: • Foglio 22 mappale 1554 subalterno 2, categoria C/6, classe 3, Consistenza: 60 Mq. posto al piano S1, Rendita: Euro 133,25.Trattasi di unità immobiliare con destinazione garage costituente pertinenza dell’abitazione di cui al corpo “A”, posto al piano seminterrato di un fabbricato a due piani fuori terra ed uno interrato sito in Porto Cesareo alla Via Giuseppe Di Vittorio civ. 42.L’unità presenta accesso da scala interna posta sul fronte ovest e da rampa posta a ridosso del fronte stradale, e si compone di un ambiente ad uso garage, comunicante anche con il disimpegno 3 dello scantinato dell’unità di cui al corpo “A”, ed un vano wc. La superficie lorda del garage e del vano wc è risultata essere pari a mq 70,00 circa, quella lorda della rampa è pari a mq 23,00 circa. L’altezza utile dell’unità è risultata essere pari a ml 2,38 circa.Sono presenti impianti di adduzione idrica collegato alla rete pubblica privo di utenza in essere, ed impianto elettrico con utenza intestata a terzi, entrambi risultati essere in comune con il corpo “A”.La struttura portante dell’edificio del quale il corpo “B” costituito da garage di pertinenza dell’abitazione di cui al corpo “A” oggetto della procedura è costituita da telaio con travi, pilastri e fondazioni in c.a., e coperture composte da solai latero cementizi piani.L’unità immobiliare è priva di certificazione di abitabilitàDESTINAZIONE URBANISTICA:PUG del Comune di Porto Cesareo approvato con Delibera di Giunta Regione Puglia n. 105 del 23/01/2012 e successiva Variante adottata con Deliberazione di Consiglio Comunale n. 26 del 13/06/2025 del Comune di Porto Cesareo comprensiva del Rapporto Ambientale VAS e della Sintesi non TecnicaART. 3.2.1.5 ZONE B1 (ex B3 e B4 Torre Lapillo) – Zone satureAi sensi del vigente PUTT Regione Puglia il lotto sul quale insiste l’immobile risulta ricadere in area sottoposta a vincolo paesaggistico istituito ai sensi della L. 1497 04- 09-1975, modificato da vincoli successivi istituiti con DGR n. 623 /2018 e DGR n. 652/2023

Indirizzo
Via Giuseppe di Vittorio, 42,, Porto Cesareo (LE)


Piano
interrato


Disponibilità
LIBERO


Vani
-


Bagni
-


Metri quadri
60,00


Certificazione energetica
-


Dati catastali

Foglio:22, Particella:1554, Subalterno:2


Data udienza
18/06/2026 ore 10:00


Tipo di vendita
Senza incanto


Modalità di vendita
Asincrona telematica


Luogo
N.A. -


Luogo presentazione offerte
-


Termine presentazione offerte
11/06/2026 ore 12:00


Prezzo base
€ 144.252,50


Offerta minima
€ 108.189,50


Rialzo minimo in caso di gara
€ 2.000,00


Deposito cauzionale
10% del prezzo offerto


Deposito in conto spese
-


Tribunale
Lecce

Tipo di procedura
Espropriazione immobiliare (cartabia)

Ruolo
75/2025

Delegato alla vendita
Lagna Adele gaetana
(Procede alle operazioni di vendita)
(Gestisce la visita del bene)

Recapiti
Tel. 3284427677

Scheda COD. 4342401 - Pubblicata dal 29/04/2026

La presente scheda di vendita riporta integralmente informazioni e documenti pervenuti ufficialmente dal Ministero e dal professionista incaricato.


Pubblicazione autorizzata dall’Autorità competente, è vietata ogni ripubblicazione o riproduzione anche parziale


Ti interessa questa vendita?

Documentazione

Visualizza su mappa

Mappa geografica del bene

Storico delle vendite

Data venditaPrezzo base
26/02/2026€ 192.336,55
18/06/2026€ 144.252,50

Punti di interesse

Fonte dati

Nel raggio di {{range}}Km

Loading...
  • {{ getIcon(poi.type) }} {{ poi.localized }}: {{poi.count}}
  • {{ getIcon(poi.type) }} {{ poi.localized }}: {{poi.count}}
Dati non disponibili