Astegiudiziarie.it è parte di Rete Aste Network

Accedi o registrati

Non sei ancora registrato?

Oppure

Accedi

Abitazione di tipo civile, posto auto

Via Rumenia, 00071 Torvaianica RM, Italia, Pomezia (RM)

€ 107.250,00

Offerta minima € 80.437,50


Codice A4315560

Lotto 1

Data udienza 05/03/2026 ore 10:00

Termine presentazione offerte 04/03/2026 ore 23:59

Abitazione di tipo civile, posto auto

Via Rumenia, 00071 Torvaianica RM, Italia, Pomezia (RM)

€ 107.250,00

Offerta minima € 80.437,50


Codice A4315560

Lotto 1

Data udienza 05/03/2026 ore 10:00

Termine presentazione offerte 04/03/2026 ore 23:59

Ti interessa questa vendita?

Documentazione

Visualizza su mappa

Mappa geografica del bene

Punti di interesse

Fonte dati

Nel raggio di {{range}}Km

Loading...
  • {{ getIcon(poi.type) }} {{ poi.localized }}: {{poi.count}}
  • {{ getIcon(poi.type) }} {{ poi.localized }}: {{poi.count}}
Dati non disponibili

Bene 1 - Appartamento. Bene 2 - Posto auto.

Indirizzo
Via Rumenia, 00071 Torvaianica RM, Italia, Pomezia (RM)


Codice asta
4315560


Lotto
1


Numero beni
2


Genere
Immobili


Categoria
Immobile residenziale


Valore di stima
-


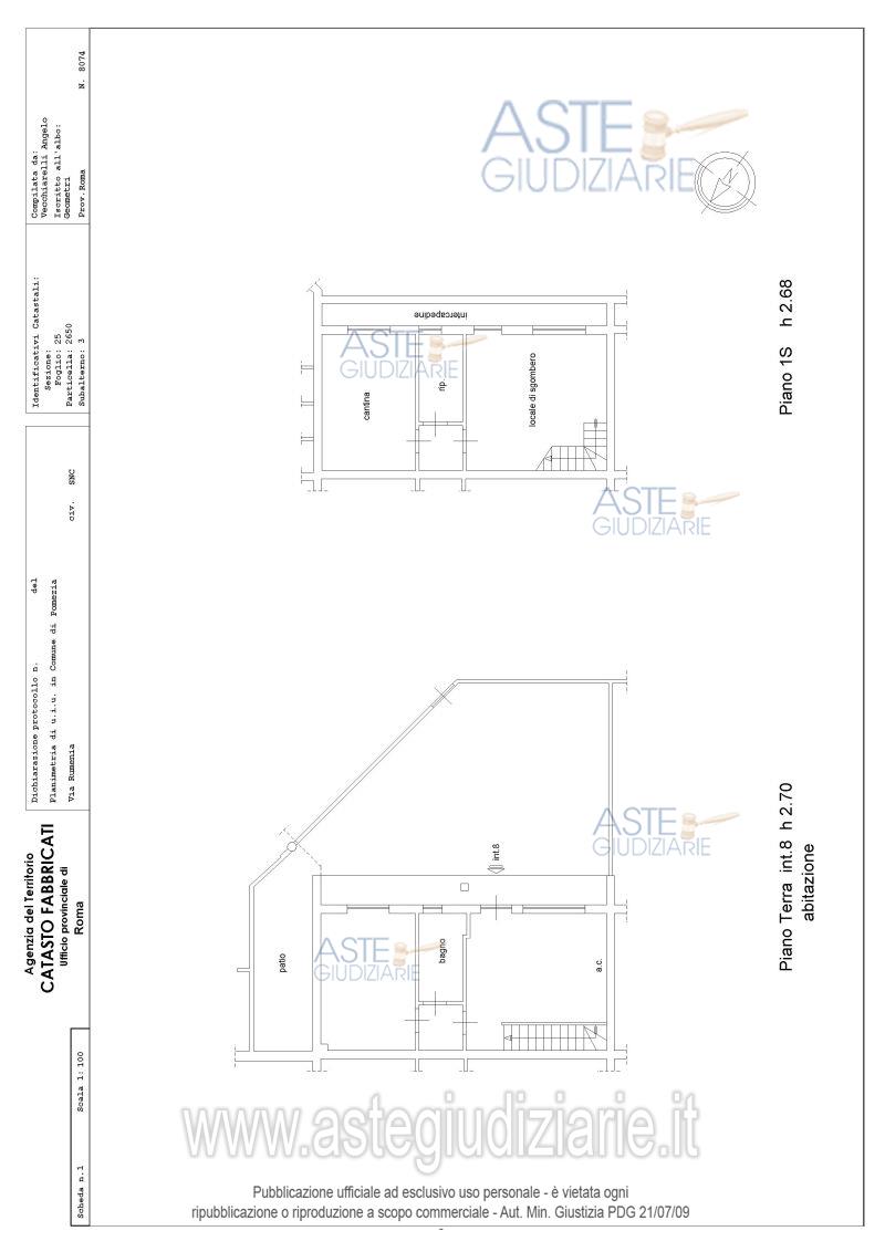
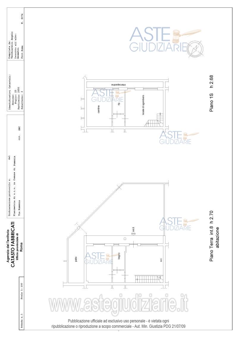
Abitazione di tipo civile

Bene 1 – Appartamento disposto su due livelli, piano terra e piano seminterrato, con annessa corte esclusiva. L’appartamento è composto: al piano terra da un soggiorno con angolo cottura, disimpegno, una camera ed un bagno; al piano seminterrato un disimpegno, un ambiente a destinazione cantina, un bagno ed un ambiente con destinazione locale di sgombero.

Indirizzo
Via Rumenia, 00071 Torvaianica RM, Italia, Pomezia (RM)


Piano
-


Disponibilità
Libero


Vani
5,00


Bagni
2


Metri quadri
75,00


Certificazione energetica
-


Posto auto

Bene 2 - Posto auto scoperto.

Indirizzo
Via Rumenia, 00071 Torvaianica RM, Italia, Pomezia (RM)


Piano
-


Disponibilità
-


Vani
-


Bagni
-


Metri quadri
10,00


Certificazione energetica
-


Data udienza
05/03/2026 ore 10:00


Tipo di vendita
Senza incanto


Modalità di vendita
Asincrona telematica


Luogo
N.A. -


Luogo presentazione offerte
-


Termine presentazione offerte
04/03/2026 ore 23:59


Prezzo base
€ 107.250,00


Offerta minima
€ 80.437,50


Rialzo minimo in caso di gara
€ 5.400,00


Deposito cauzionale
almeno il 10 % del prezzo offerto


Deposito in conto spese
-


Tribunale
Velletri

Tipo di procedura
Espropriazione immobiliare (cartabia)

Ruolo
154/2023

Giudice
Di serafino Anna luisa

Recapiti
-

Email
-

Delegato alla vendita
Santilli Emanuela
(Procede alle operazioni di vendita)

Recapiti
-

Email
-

Custode giudiziario
Santilli Emanuela
(Gestisce la visita del bene)

Recapiti
Cell. 3337452682
Tel. 069634699

Scheda COD. 4315560 - Pubblicata dal 31/12/2025

La presente scheda di vendita riporta integralmente informazioni e documenti pervenuti ufficialmente dal Ministero e dal professionista incaricato.


Pubblicazione autorizzata dall’Autorità competente, è vietata ogni ripubblicazione o riproduzione anche parziale


Ti interessa questa vendita?

Documentazione

Visualizza su mappa

Mappa geografica del bene

Storico delle vendite

Data venditaPrezzo base
16/01/2025€ 179.744,00
05/06/2025€ 143.000,00
05/03/2026€ 107.250,00

Punti di interesse

Fonte dati

Nel raggio di {{range}}Km

Loading...
  • {{ getIcon(poi.type) }} {{ poi.localized }}: {{poi.count}}
  • {{ getIcon(poi.type) }} {{ poi.localized }}: {{poi.count}}
Dati non disponibili