Astegiudiziarie.it è parte di Rete Aste Network

Accedi o registrati

Non sei ancora registrato?

Oppure

Accedi

Appartamento, garage o autorimessa

Via Pino Romualdi, 6, 00071 Pomezia RM, Italia, Pomezia (RM)

€ 136.500,00

Offerta minima € 102.375,00


Codice A4334132

Lotto Lotto unico

Data udienza 14/07/2026 ore 10:00

Termine presentazione offerte 13/07/2026 ore 23:59

Appartamento, garage o autorimessa

Via Pino Romualdi, 6, 00071 Pomezia RM, Italia, Pomezia (RM)

€ 136.500,00

Offerta minima € 102.375,00


Codice A4334132

Lotto Lotto unico

Data udienza 14/07/2026 ore 10:00

Termine presentazione offerte 13/07/2026 ore 23:59

Ti interessa questa vendita?

Documentazione

Visualizza su mappa

Mappa geografica del bene

Punti di interesse

Fonte dati

Nel raggio di {{range}}Km

Loading...
  • {{ getIcon(poi.type) }} {{ poi.localized }}: {{poi.count}}
  • {{ getIcon(poi.type) }} {{ poi.localized }}: {{poi.count}}
Dati non disponibili

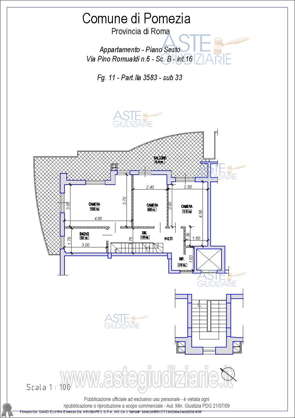
Proprietà superficiaria dell’appartamento sito in Comune Pomezia (RM) - Via Pino Romualdi 6, scala B, con annesso box sito al secondo piano interrato, piano S2.

Indirizzo
Via Pino Romualdi, 6, 00071 Pomezia RM, Italia, Pomezia (RM)


Codice asta
4334132


Lotto
Lotto unico


Numero beni
2


Genere
Immobili


Categoria
Immobile residenziale


Valore di stima
-


Appartamento

Proprietà superficiaria di Appartamento su due livelli ubicato nel Comune di Pomezia (RM) - Via Pino Romualdi 6, Scala B.

Indirizzo
Via Pino Romualdi, 6, 00071 Pomezia RM, Italia, Pomezia (RM)


Piano
-


Disponibilità
-


Vani
4,00


Bagni
2


Metri quadri
135,00


Certificazione energetica
-


Garage o autorimessa

Proprietà superficiaria su box sito al secondo piano interrato, piano S2.

Indirizzo
Via Pino Romualdi, 6, 00071 Pomezia RM, Italia, Pomezia (RM)


Piano
-


Disponibilità
-


Vani
-


Bagni
-


Metri quadri
18,00


Certificazione energetica
-


Data udienza
14/07/2026 ore 10:00


Tipo di vendita
Senza incanto


Modalità di vendita
Asincrona telematica


Luogo
N.A. -


Luogo presentazione offerte
-


Termine presentazione offerte
13/07/2026 ore 23:59


Prezzo base
€ 136.500,00


Offerta minima
€ 102.375,00


Rialzo minimo in caso di gara
€ 7.000,00


Deposito cauzionale
10% del prezzo offerto


Deposito in conto spese
-


Tribunale
Velletri

Tipo di procedura
Espropriazione immobiliare (cartabia)

Ruolo
190/2024

Giudice
Di serafino Anna luisa

Recapiti
-

Email
-

Delegato alla vendita
Pantaleo Diego
(Procede alle operazioni di vendita)

Recapiti
-

Email
avvocatopantaleo@gmail.com

Custode giudiziario
Ivg di roma srl istituto vendite giudiziarie 
(Gestisce la visita del bene)

Recapiti
Tel. 0689569801

Scheda COD. 4334132 - Pubblicata dal 27/04/2026

La presente scheda di vendita riporta integralmente informazioni e documenti pervenuti ufficialmente dal Ministero e dal professionista incaricato.


Pubblicazione autorizzata dall’Autorità competente, è vietata ogni ripubblicazione o riproduzione anche parziale


Ti interessa questa vendita?

Documentazione

Visualizza su mappa

Mappa geografica del bene

Punti di interesse

Fonte dati

Nel raggio di {{range}}Km

Loading...
  • {{ getIcon(poi.type) }} {{ poi.localized }}: {{poi.count}}
  • {{ getIcon(poi.type) }} {{ poi.localized }}: {{poi.count}}
Dati non disponibili