Astegiudiziarie.it è parte di Rete Aste Network

Accedi o registrati

Non sei ancora registrato?

Oppure

Accedi

Appartamento, garage o autorimessa

Via Don Marino Mori, 51018 Pieve A Nievole PT, Italia, Pieve a Nievole (PT)

€ 260.000,00

Offerta minima € 195.000,00


Codice A4201594

Lotto Lotto unico

Data udienza 06/05/2026 ore 15:00

Termine presentazione offerte 05/05/2026 ore 12:00

Appartamento, garage o autorimessa

Via Don Marino Mori, 51018 Pieve A Nievole PT, Italia, Pieve a Nievole (PT)

€ 260.000,00

Offerta minima € 195.000,00


Codice A4201594

Lotto Lotto unico

Data udienza 06/05/2026 ore 15:00

Termine presentazione offerte 05/05/2026 ore 12:00

Ti interessa questa vendita?

Documentazione

Visualizza su mappa

Mappa geografica del bene

Punti di interesse

Fonte dati

Nel raggio di {{range}}Km

Loading...
  • {{ getIcon(poi.type) }} {{ poi.localized }}: {{poi.count}}
  • {{ getIcon(poi.type) }} {{ poi.localized }}: {{poi.count}}
Dati non disponibili

Terratetto, corredato da giardino ed autorimessa.

Indirizzo
Via Don Marino Mori, 51018 Pieve A Nievole PT, Italia, Pieve a Nievole (PT)


Codice asta
4201594


Lotto
Lotto unico


Numero beni
2


Genere
Immobili


Categoria
Immobile residenziale


Valore di stima
-


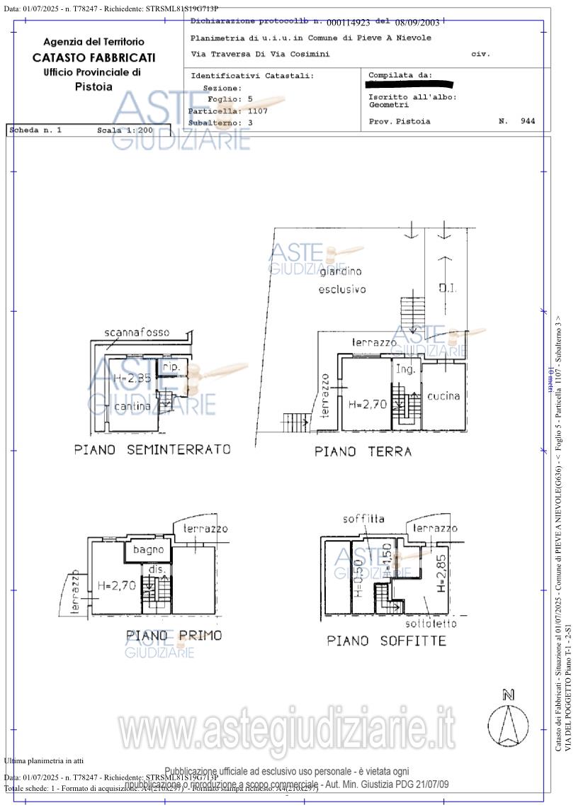
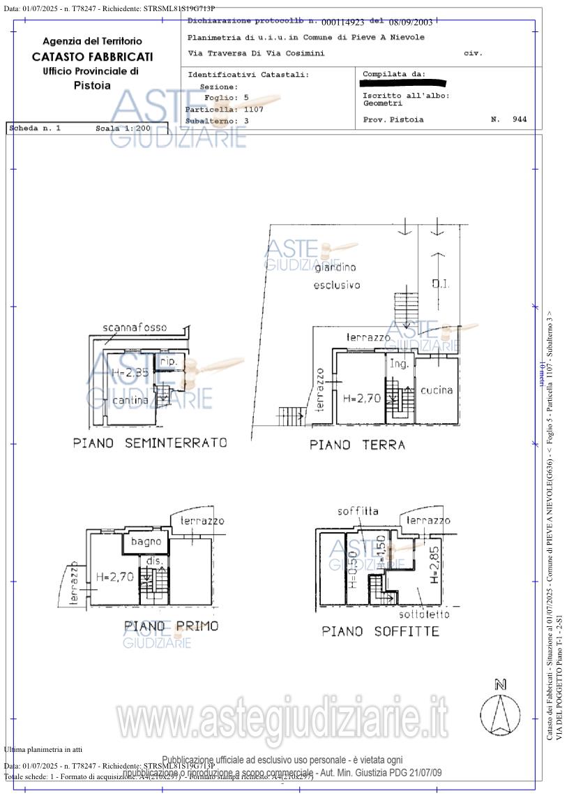
Appartamento

Unità immobiliare ad uso civile abitazione da terra a tetto, libera su due lati, posta nell'angolo nord ovest di un più ampio fabbricato composta da - al piano terra da ingresso, cucina, soggiorno oltre a terrazzo e giardino esclusivo; - al piano primo da disimpegno, due camere, un bagno e due terrazzi;- al piano secondo sottotetto da due vani ad uso soffitta e un wc; - al piano seminterrato da disimpegno, cantina utilizzata quale taverna e un wc, oltre giardino pertinenziale esclusivo.

Indirizzo
Via Don Marino Mori, 51018 Pieve A Nievole PT, Italia, Pieve a Nievole (PT)


Piano
-


Disponibilità
-


Vani
8,00


Bagni
1


Metri quadri
150,00


Certificazione energetica
-


Garage o autorimessa

Autorimessa al piano interrato.

Indirizzo
Via Don Marino Mori, 51018 Pieve A Nievole PT, Italia, Pieve a Nievole (PT)


Piano
-


Disponibilità
-


Vani
-


Bagni
-


Metri quadri
24,00


Certificazione energetica
-


Data udienza
06/05/2026 ore 15:00


Tipo di vendita
Senza incanto


Modalità di vendita
Asincrona telematica


Luogo
N.A. -


Luogo presentazione offerte
-


Termine presentazione offerte
05/05/2026 ore 12:00


Prezzo base
€ 260.000,00


Offerta minima
€ 195.000,00


Rialzo minimo in caso di gara
€ 5.000,00


Deposito cauzionale
10% del prezzo offerto


Deposito in conto spese
-


Tribunale
Pistoia

Tipo di procedura
Esecuzione immobiliare post legge 80

Ruolo
89/2019

Giudice
Garofalo Sergio

Recapiti
-

Email
-

Delegato alla vendita
Franchi Emanuela
(Procede alle operazioni di vendita)

Recapiti
-

Email
e.franchi@avvpatriziorosi.it

Custode giudiziario
Isveg 
(Gestisce la visita del bene)

Recapiti
-

Scheda COD. 4201594 - Pubblicata dal 12/01/2026

La presente scheda di vendita riporta integralmente informazioni e documenti pervenuti ufficialmente dal Ministero e dal professionista incaricato.


Pubblicazione autorizzata dall’Autorità competente, è vietata ogni ripubblicazione o riproduzione anche parziale


Ti interessa questa vendita?

Documentazione

Visualizza su mappa

Mappa geografica del bene

Storico delle vendite

Data venditaPrezzo base
07/07/2021€ 44.500,00
06/05/2026€ 260.000,00

Punti di interesse

Fonte dati

Nel raggio di {{range}}Km

Loading...
  • {{ getIcon(poi.type) }} {{ poi.localized }}: {{poi.count}}
  • {{ getIcon(poi.type) }} {{ poi.localized }}: {{poi.count}}
Dati non disponibili