Astegiudiziarie.it è parte di Rete Aste Network

Accedi o registrati

Non sei ancora registrato?

Oppure

Accedi

giudiziariagiudiziariaTribunale di VERBANIAESECUZIONI CIVILI IMMOBILIARIESECUZIONE IMMOBILIARE POST LEGGE 801002010Custode aste giudiziarie inlinea spaMNTGLC63E08E625Hufficiocustodie@astegiudiziarie.itfalsetrueGiudiceAntonietta saccoSCCNNT89C64F799Ptruefalse23407804IMMOBILIIMMOBILE RESIDENZIALEVia per Boleto, 22, 28010 Alzo NO, ItaliaPellaNovaraPiemonteItaliaDiritto di 1/2 di piena proprietà e 1/2 di nuda proprietà su appartamento e garage.3024902IMMOBILE COMMERCIALEGARAGE O AUTORIMESSAVia per Boleto, 22, 28894 Pella NO, ItaliaPellaNovaraPiemonteItaliaDiritto di 1/2 di piena proprietà e 1/2 di nuda proprietà su garage al piano interrato.503024903IMMOBILE RESIDENZIALEAPPARTAMENTOVia per Boleto, 22, 28894 Pella NO, ItaliaPellaNovaraPiemonteItaliaDiritto di 1/2 di piena proprietà e 1/2 di nuda proprietà su APPARTAMENTO al piano primo di edificio bifamiliare. L’appartamento è composto da zona giorno con disimpegno, ampio soggiorno e cucina, e annessi balconi, e zona notte con disimpegno, tre camere con balcone, doppi servizi igienici, ripostiglio e piccola lavanderia. Sul pianerottolo della scala è anche presente un ampio spazio destinato ad ulteriore ripostiglio.2197.52025-12-19T10:00:00SENZA INCANTOASINCRONA TELEMATICAN.A.88.800,0066.600,005.000,002025-12-18T12:00:00gestore delle venditehttp://www.astetelematiche.ithttp://www.astetelematiche.itsito pubblicitahttps://www.astegiudiziarie.ithttps://www.astegiudiziarie.it2025-10-22AVVISO DI RETTIFICASI PRENDA VISIONE DELLA CORREZIONE ALL'ORDINANZA DI VENDITA PUBBLICATA SUL SITO WWW.ASTEGIUDIZIARIE.IT. LO STATO DI OCCUPAZIONE E' DA INTENDERSI OCCUPATO DAL DEBITORE ESECUTATO.2025-11-11

Appartamento, garage o autorimessa

Via per Boleto, 22, 28010 Alzo NO, Italia, Pella (NO)

€ 88.800,00

Offerta minima € 66.600,00


Codice A4300890

Lotto 4

Data udienza 19/12/2025 ore 10:00

Termine presentazione offerte 18/12/2025 ore 12:00

Appartamento, garage o autorimessa

Via per Boleto, 22, 28010 Alzo NO, Italia, Pella (NO)

€ 88.800,00

Offerta minima € 66.600,00


Codice A4300890

Lotto 4

Data udienza 19/12/2025 ore 10:00

Termine presentazione offerte 18/12/2025 ore 12:00

Vendita deserta

Ti interessa questa vendita?

Documentazione

Visualizza su mappa

Mappa geografica del bene

Punti di interesse

Fonte dati

Nel raggio di {{range}}Km

Loading...
  • {{ getIcon(poi.type) }} {{ poi.localized }}: {{poi.count}}
  • {{ getIcon(poi.type) }} {{ poi.localized }}: {{poi.count}}
Dati non disponibili

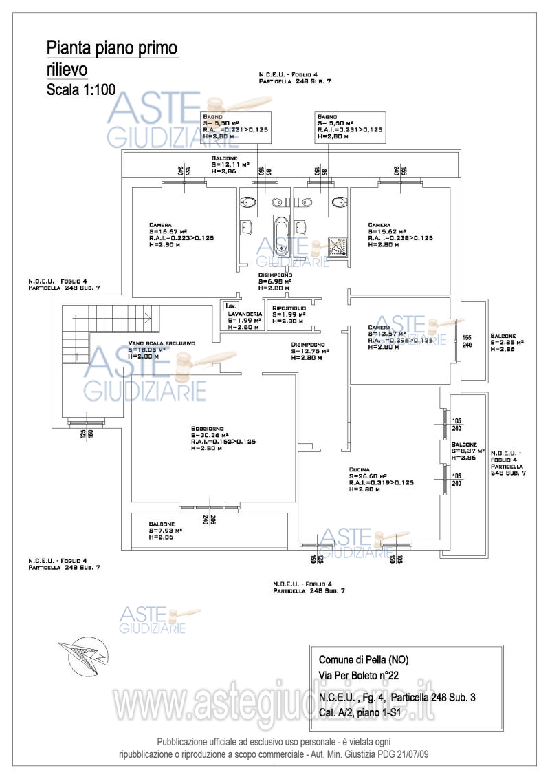
Diritto di 1/2 di piena proprietà e 1/2 di nuda proprietà su appartamento e garage.

Indirizzo
Via per Boleto, 22, 28010 Alzo NO, Italia, Pella (NO)


Codice asta
4300890


Lotto
4


Numero beni
2


Genere
Immobili


Categoria
Immobile residenziale


Valore di stima
-


Appartamento

Diritto di 1/2 di piena proprietà e 1/2 di nuda proprietà su APPARTAMENTO al piano primo di edificio bifamiliare. L’appartamento è composto da zona giorno con disimpegno, ampio soggiorno e cucina, e annessi balconi, e zona notte con disimpegno, tre camere con balcone, doppi servizi igienici, ripostiglio e piccola lavanderia. Sul pianerottolo della scala è anche presente un ampio spazio destinato ad ulteriore ripostiglio.

Indirizzo
Via per Boleto, 22, 28894 Pella NO, Italia, Pella (NO)


Piano
-


Disponibilità
-


Vani
7,50


Bagni
-


Metri quadri
219,00


Certificazione energetica
-


Garage o autorimessa

Diritto di 1/2 di piena proprietà e 1/2 di nuda proprietà su garage al piano interrato.

Indirizzo
Via per Boleto, 22, 28894 Pella NO, Italia, Pella (NO)


Piano
-


Disponibilità
-


Vani
-


Bagni
-


Metri quadri
50,00


Certificazione energetica
-


Tribunale
Verbania

Tipo di procedura
Esecuzione immobiliare post legge 80

Ruolo
100/2010

Giudice
sacco Antonietta
(Procede alle operazioni di vendita)

Recapiti
-

Email
-

Custode giudiziario
aste giudiziarie inlinea spa 
(Gestisce la visita del bene)

Recapiti
-

Email

Data
11/11/2025


Tipologia
AVVISO DI RETTIFICA


Descrizione
SI PRENDA VISIONE DELLA CORREZIONE ALL'ORDINANZA DI VENDITA PUBBLICATA SUL SITO WWW.ASTEGIUDIZIARIE.IT. LO STATO DI OCCUPAZIONE E' DA INTENDERSI OCCUPATO DAL DEBITORE ESECUTATO.


Scheda COD. 4300890 - Pubblicata dal 22/10/2025

La presente scheda di vendita riporta integralmente informazioni e documenti pervenuti ufficialmente dal Ministero e dal professionista incaricato.

La sua pubblicazione è prolungata, in conformità agli accordi con il Tribunale, con l’obiettivo di garantire un’informazione continua e aggiornata, nel rispetto delle tempistiche procedurali.

Pubblicazione notarizzata su Blockchain


Pubblicazione autorizzata dall’Autorità competente, è vietata ogni ripubblicazione o riproduzione anche parziale


Ti interessa questa vendita?

Documentazione

Visualizza su mappa

Mappa geografica del bene

Storico delle vendite

Data venditaPrezzo base
04/06/2024€ 154.000,00
20/12/2024€ 139.000,00
17/06/2025€ 111.000,00
19/12/2025€ 88.800,00

Punti di interesse

Fonte dati

Nel raggio di {{range}}Km

Loading...
  • {{ getIcon(poi.type) }} {{ poi.localized }}: {{poi.count}}
  • {{ getIcon(poi.type) }} {{ poi.localized }}: {{poi.count}}
Dati non disponibili