Astegiudiziarie.it è parte di Rete Aste Network

Accedi o registrati

Non sei ancora registrato?

Oppure

Accedi

Abitazione di tipo civile

Via del Molino, 54 - loc. Le Piagge, Peccioli (PI)

€ 58.000,00

Offerta minima € 43.500,00


Codice A4269775

Lotto 2

Data udienza 20/05/2026 ore 14:00

Termine presentazione offerte 19/05/2026 ore 13:00

Abitazione di tipo civile

Via del Molino, 54 - loc. Le Piagge, Peccioli (PI)

€ 58.000,00

Offerta minima € 43.500,00


Codice A4269775

Lotto 2

Data udienza 20/05/2026 ore 14:00

Termine presentazione offerte 19/05/2026 ore 13:00

Ti interessa questa vendita?

Documentazione

Visualizza su mappa

Mappa geografica del bene

Punti di interesse

Fonte dati

Nel raggio di {{range}}Km

Loading...
  • {{ getIcon(poi.type) }} {{ poi.localized }}: {{poi.count}}
  • {{ getIcon(poi.type) }} {{ poi.localized }}: {{poi.count}}
Dati non disponibili

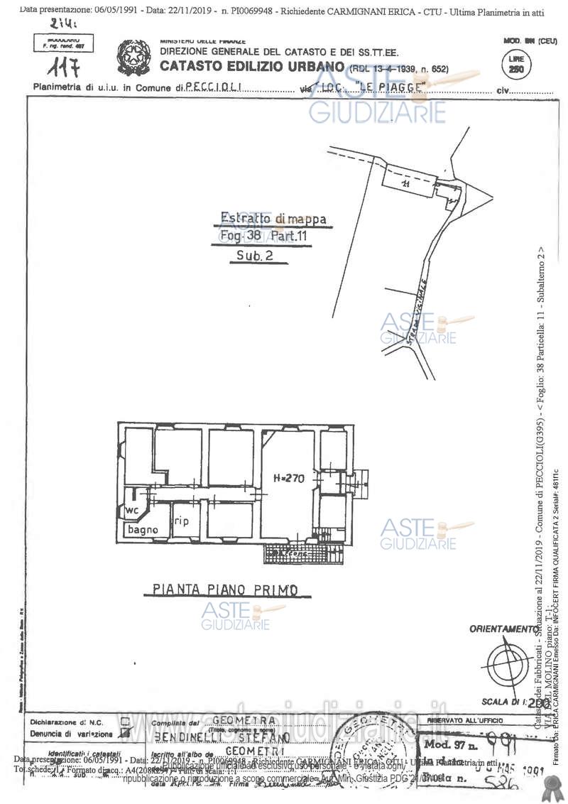
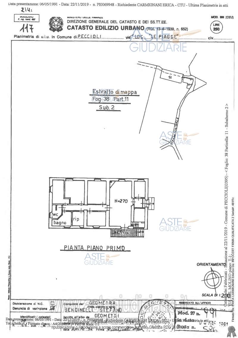
In Peccioli, località Le Piagge, via del Molino numero civico 54, piena proprietà dell’intero di porzione abitativa, posta al piano primo di un più ampio fabbricato rurale, con accesso diretto dalla pubblica via (ex strada vicinale delle Piagge) mediante cortile esterno esclusivo (prospetto ovest).

Indirizzo
Via del Molino, 54 - loc. Le Piagge, Peccioli (PI)


Codice asta
4269775


Lotto
2


Numero beni
1


Genere
Immobili


Categoria
Immobile residenziale


Valore di stima
-


Abitazione di tipo civile

In Peccioli, località Le Piagge, via del Molino numero civico 54, piena proprietà dell’intero di porzione abitativa, posta al piano primo di un più ampio fabbricato rurale, con accesso diretto dalla pubblica via (ex strada vicinale delle Piagge) mediante cortile esterno esclusivo (prospetto ovest). Il fabbricato è inoltre corredato da cortile esterno comune con i beni di cui al precedente Lotto 1. Il quartiere è composto da ampio ingresso in soggiorno, locale studio rialzato (con accesso diretto dall’ingresso – soggiorno mediante vano scale interno), disimpegno e adiacente lavanderia, ampio disimpegno, cucina – pranzo, due camere due servizi igienici e due locali ripostiglio, per una superficie utile complessiva di circa mq. 117, oltre a balcone esterno di accesso (prospetto ovest - mq. 6,75). Il CTU precisa che nel locale ripostiglio centrale è presente una scala a chiocciola che collega direttamente il quartiere abitativo con altra unità immobiliare posta al piano terra (facente parte del Lotto 1 e identificata dalla particella 11 sub. 1 del foglio 38). E’ infine compresa la piena proprietà di cinque particelle di terreno agricolo della superficie catastale complessiva pari a mq. 4.948,00, posti in prossimità della Cassa d’espansione del Fiume Era ed oggetto della procedura di occupazione d’urgenza preordinata all’esproprio.

Indirizzo
Via del Molino, 54 - loc. Le Piagge, Peccioli (PI)


Piano
-


Disponibilità
Occupato


Vani
8,00


Bagni
-


Metri quadri
156,81


Certificazione energetica
-


Dati catastali

Foglio:38, Sezione:U, Particella:11, Subalterno:2
Foglio:38, Sezione:T, Particella:259, 261, 254, 256, 13


Data udienza
20/05/2026 ore 14:00


Tipo di vendita
Senza incanto


Modalità di vendita
Asincrona telematica


Luogo
N.A. -


Luogo presentazione offerte
-


Termine presentazione offerte
19/05/2026 ore 13:00


Prezzo base
€ 58.000,00


Offerta minima
€ 43.500,00


Rialzo minimo in caso di gara
€ 1.000,00


Deposito cauzionale
10% del prezzo offerto


Deposito in conto spese
-


Tribunale
Pisa

Tipo di procedura
Esecuzione immobiliare post legge 80

Ruolo
195/2019

Giudice
Zinna Marco

Recapiti
-

Email
-

Delegato alla vendita
Di lella Vittorio
(Procede alle operazioni di vendita)

Recapiti
-

Email
-

Custode giudiziario
Erriquez Cosimo
(Gestisce la visita del bene)

Recapiti
-

Scheda COD. 4269775 - Pubblicata dal 09/04/2026

La presente scheda di vendita riporta integralmente informazioni e documenti pervenuti ufficialmente dal Ministero e dal professionista incaricato.

Pubblicazione notarizzata su Blockchain


Pubblicazione autorizzata dall’Autorità competente, è vietata ogni ripubblicazione o riproduzione anche parziale


Ti interessa questa vendita?

Documentazione

Visualizza su mappa

Mappa geografica del bene

Storico delle vendite

Data venditaPrezzo base
09/05/2023€ 149.300,00
16/01/2024€ 119.500,00
28/05/2024€ 102.000,00
17/09/2025€ 76.500,00
20/05/2026€ 58.000,00

Punti di interesse

Fonte dati

Nel raggio di {{range}}Km

Loading...
  • {{ getIcon(poi.type) }} {{ poi.localized }}: {{poi.count}}
  • {{ getIcon(poi.type) }} {{ poi.localized }}: {{poi.count}}
Dati non disponibili