Astegiudiziarie.it è parte di Rete Aste Network

Accedi o registrati

Non sei ancora registrato?

Oppure

Accedi

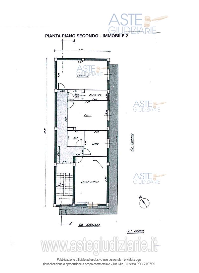
giudiziariagiudiziariaTribunale di CATANIAESECUZIONI CIVILI IMMOBILIARIESECUZIONE IMMOBILIARE POST LEGGE 803482021Delegato alla venditaDanielaFuriaFRUDNL65L66C351Jdaniela.furia@tiscali.it095388875truetrue24215632IMMOBILIIMMOBILE RESIDENZIALEVIA SARDEGNA N.195047PaternòCataniaSiciliaItaliaLOTTO 2) Appartamento sito in Paternò, Via Sardegna n. 1, posto al piano secondo, composto due vani, un salone, oltre cucina, disimpegno, ripostiglio, antibagno e wc.3123578IMMOBILE RESIDENZIALEABITAZIONE DI TIPO ECONOMICOVIA SARDEGNA N.195047PaternòCataniaSiciliaItaliaLOTTO 2) Appartamento sito in Paternò, Via Sardegna n. 1, posto al piano secondo, composto due vani, un salone, oltre cucina, disimpegno, ripostiglio, antibagno e wc.61283842026-07-01T10:00:00SENZA INCANTOSINCRONA TELEMATICAN.A.60.500,0045.375,001.800,002026-06-30T10:00:00gestore delle venditehttps://www.fallcoaste.ithttps://www.fallcoaste.itsito pubblicitahttps://www.astegiudiziarie.ithttps://www.astegiudiziarie.itsito pubblicitahttps://www.fallcoaste.ithttps://www.fallcoaste.it2026-04-10AVVISO DI RETTIFICASI PRECISA CHE LE OFFERTE DOVRANNO ESSERE DEPOSITATE ENTRO LE ORE 13.00 DEL GIORNO ANTECEDENTE LA DATA DI VENDITA2026-04-10

Abitazione di tipo economico

VIA SARDEGNA N.1, Paternò (CT)

€ 60.500,00

Offerta minima € 45.375,00


Codice A4349849

Lotto 2

Data udienza 01/07/2026 ore 10:00

Termine presentazione offerte 30/06/2026 ore 13:00

Abitazione di tipo economico

VIA SARDEGNA N.1, Paternò (CT)

€ 60.500,00

Offerta minima € 45.375,00


Codice A4349849

Lotto 2

Data udienza 01/07/2026 ore 10:00

Termine presentazione offerte 30/06/2026 ore 13:00

Ti interessa questa vendita?

Documentazione

Visualizza su mappa

Mappa geografica del bene

Punti di interesse

Fonte dati

Nel raggio di {{range}}Km

Loading...
  • {{ getIcon(poi.type) }} {{ poi.localized }}: {{poi.count}}
  • {{ getIcon(poi.type) }} {{ poi.localized }}: {{poi.count}}
Dati non disponibili

LOTTO 2) Appartamento sito in Paternò, Via Sardegna n. 1, posto al piano secondo, composto due vani, un salone, oltre cucina, disimpegno, ripostiglio, antibagno e wc.

Indirizzo
VIA SARDEGNA N.1, Paternò (CT)


Codice asta
4349849


Lotto
2


Numero beni
1


Genere
Immobili


Categoria
Immobile residenziale


Valore di stima
-


Abitazione di tipo economico

LOTTO 2) Appartamento sito in Paternò, Via Sardegna n. 1, posto al piano secondo, composto due vani, un salone, oltre cucina, disimpegno, ripostiglio, antibagno e wc.

Indirizzo
VIA SARDEGNA N.1, Paternò (CT)


Piano
-


Disponibilità
-


Vani
2,00


Bagni
-


Metri quadri
109,20


Certificazione energetica
-


Dati catastali

Foglio:61, Particella:2838, Subalterno:4


Data udienza
01/07/2026 ore 10:00


Tipo di vendita
Senza incanto


Modalità di vendita
Sincrona telematica


Luogo
-


Luogo presentazione offerte
-


Termine presentazione offerte
30/06/2026 ore 13:00


Prezzo base
€ 60.500,00


Offerta minima
€ 45.375,00


Rialzo minimo in caso di gara
€ 1.800,00


Deposito cauzionale
10% del prezzo offerto


Deposito in conto spese
-


Tribunale
Catania

Tipo di procedura
Esecuzione immobiliare post legge 80

Ruolo
348/2021

Delegato alla vendita
Furia Daniela
(Procede alle operazioni di vendita)
(Gestisce la visita del bene)

Recapiti
Tel. 095388875

Data
10/04/2026


Tipologia
AVVISO DI RETTIFICA


Descrizione
SI PRECISA CHE LE OFFERTE DOVRANNO ESSERE DEPOSITATE ENTRO LE ORE 13.00 DEL GIORNO ANTECEDENTE LA DATA DI VENDITA


Scheda COD. 4349849 - Pubblicata dal 17/04/2026

La presente scheda di vendita riporta integralmente informazioni e documenti pervenuti ufficialmente dal Ministero e dal professionista incaricato.

Pubblicazione notarizzata su Blockchain


Pubblicazione autorizzata dall’Autorità competente, è vietata ogni ripubblicazione o riproduzione anche parziale


Ti interessa questa vendita?

Documentazione

Visualizza su mappa

Mappa geografica del bene

Punti di interesse

Fonte dati

Nel raggio di {{range}}Km

Loading...
  • {{ getIcon(poi.type) }} {{ poi.localized }}: {{poi.count}}
  • {{ getIcon(poi.type) }} {{ poi.localized }}: {{poi.count}}
Dati non disponibili