Astegiudiziarie.it è parte di Rete Aste Network

Accedi o registrati

Non sei ancora registrato?

Oppure

Accedi

Abitazione di tipo civile

Via Sandro Pertini n. 10, Partinico (PA)

€ 22.561,74

Offerta minima € 16.921,31


Codice A4305194

Lotto Lotto unico

Data udienza 06/02/2026 ore 11:00

Termine presentazione offerte 05/02/2026 ore 13:00

Abitazione di tipo civile

Via Sandro Pertini n. 10, Partinico (PA)

€ 22.561,74

Offerta minima € 16.921,31


Codice A4305194

Lotto Lotto unico

Data udienza 06/02/2026 ore 11:00

Termine presentazione offerte 05/02/2026 ore 13:00

Ti interessa questa vendita?

Documentazione

Visualizza su mappa

Mappa geografica del bene

Punti di interesse

Fonte dati

Nel raggio di {{range}}Km

Loading...
  • {{ getIcon(poi.type) }} {{ poi.localized }}: {{poi.count}}
  • {{ getIcon(poi.type) }} {{ poi.localized }}: {{poi.count}}
Dati non disponibili

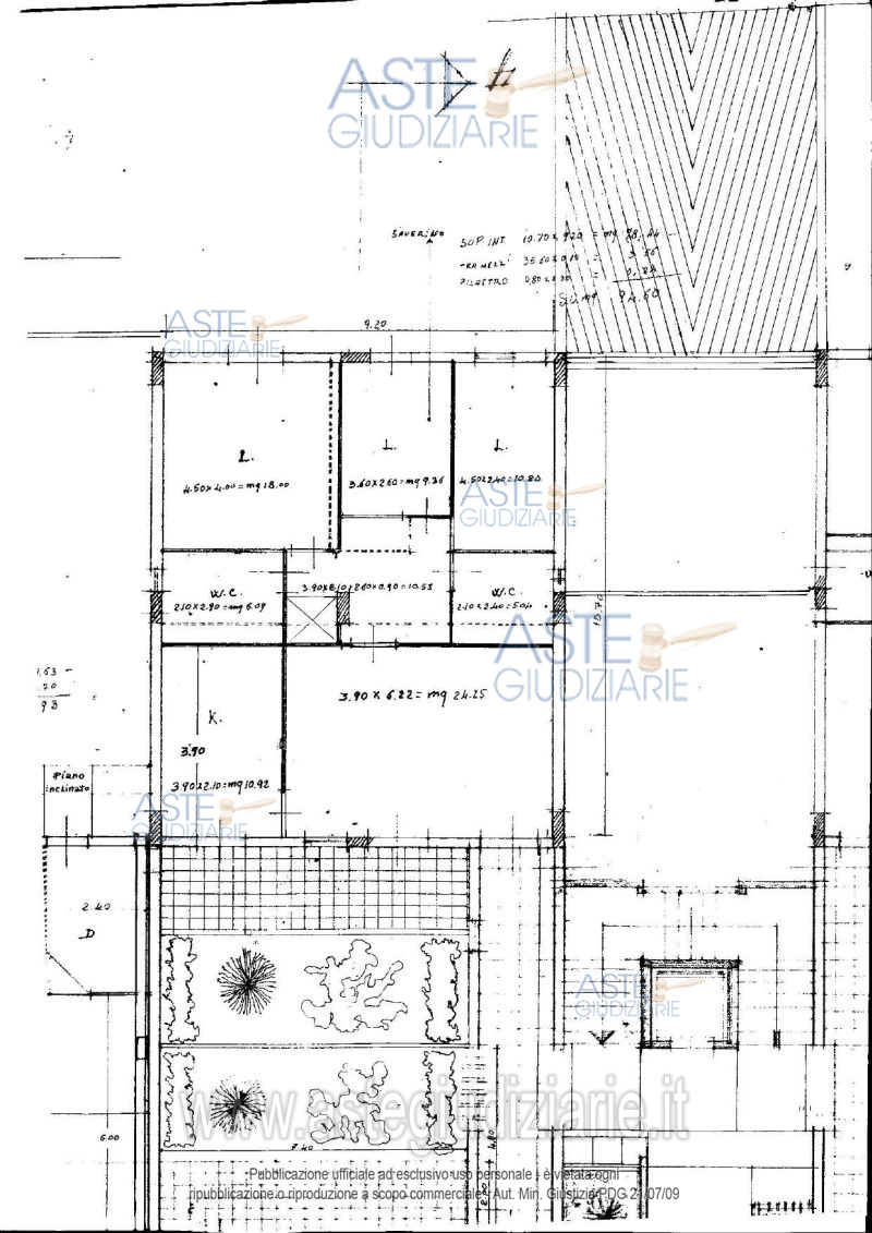
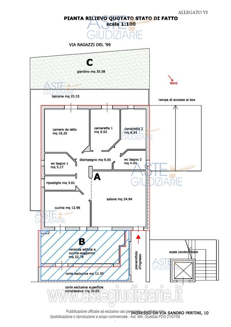
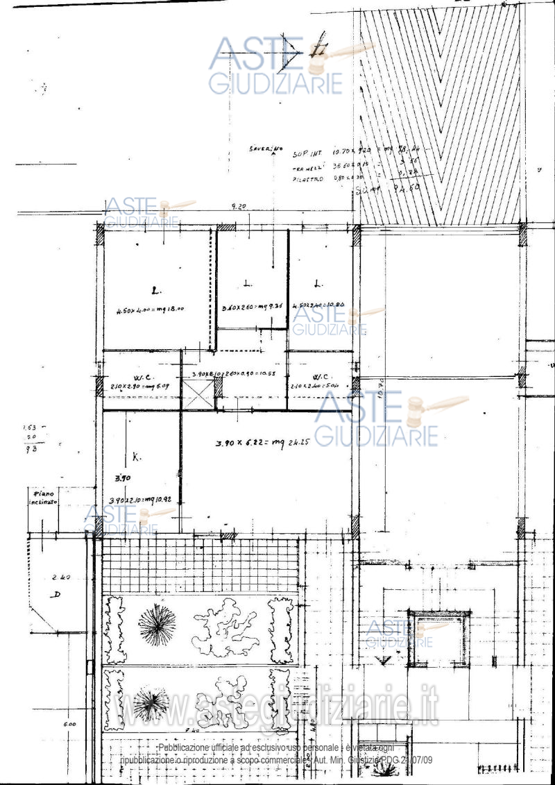
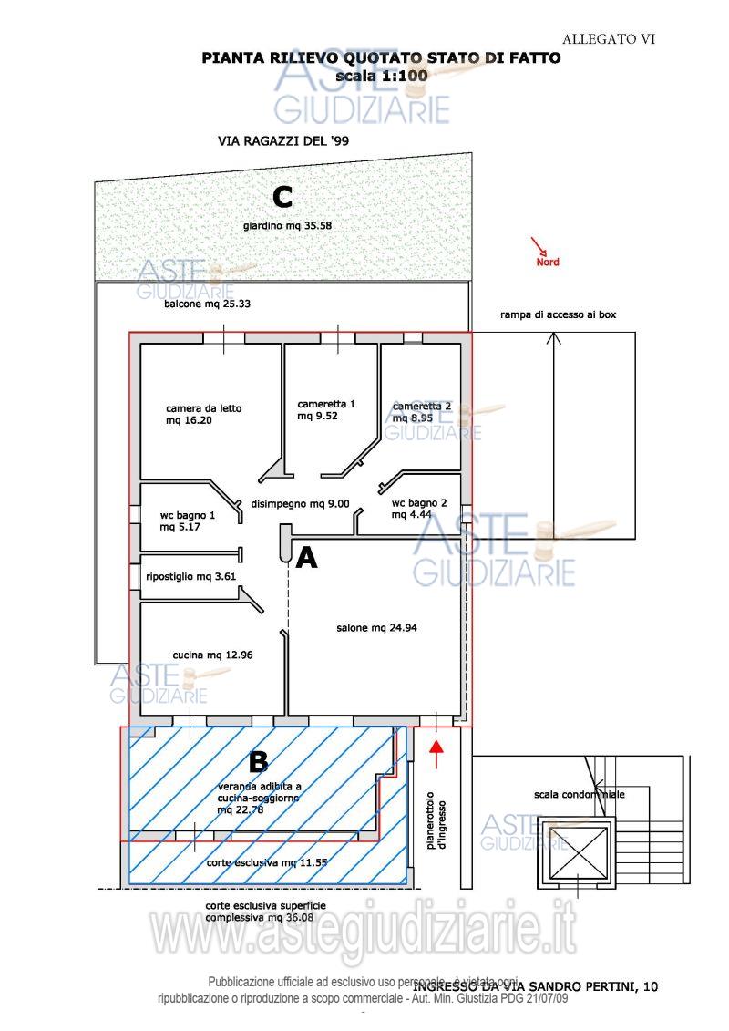
piena proprietà di un appartamento per civile abitazione, sito a Partinico (PA) in Via Sandro Pertini n. 10, piano terra, scala A, interno 2, identificato al N.C.E.U. del Comune di Partinico al foglio 40, particella 3368, subalterno 10, categoria A/2 e del posto auto in garage sito a Partinico con accesso da Via da denominare oggi via Ragazzi del ’99, piano interrato S1, scala A, identificato al N.C.E.U. del Comune di Partinico nel foglio 40, particella 3368, subalterno 32, categoria C/6,

Indirizzo
Via Sandro Pertini n. 10, Partinico (PA)


Codice asta
4305194


Lotto
Lotto unico


Numero beni
1


Genere
Immobili


Categoria
Immobile residenziale


Valore di stima
-


Abitazione di tipo civile

LOTTO UNICO: piena proprietà di un appartamento per civile abitazione, sito a Partinico (PA) in Via Sandro Pertini n. 10, piano terra, scala A, interno 2, identificato al N.C.E.U. del Comune di Partinico al foglio 40, particella 3368, subalterno 10, categoria A/2, cl. 4, vani 6,5, mq 134, r.c. € 486,76 e piena proprietà del posto auto in garage sito a Partinico con accesso da Via da denominare oggi via Ragazzi del ’99, piano interrato S1, scala A, identificato al N.C.E.U. del Comune di Partinico nel foglio 40, particella 3368, subalterno 32, categoria C/6, cl. 5, mq 27, r.c. € 58,57.

Indirizzo
Via Sandro Pertini, 10, 90047 Partinico PA, Italia, Partinico (PA)


Piano
terra


Disponibilità
OCCUP


Vani
-


Bagni
-


Metri quadri
-


Certificazione energetica
-


Data udienza
06/02/2026 ore 11:00


Tipo di vendita
Senza incanto


Modalità di vendita
Sincrona mista


Luogo
Via Generale Giuseppe Arimondi n. 2/Q - Palermo 90100


Luogo presentazione offerte
-


Termine presentazione offerte
05/02/2026 ore 13:00


Prezzo base
€ 22.561,74


Offerta minima
€ 16.921,31


Rialzo minimo in caso di gara
€ 1.000,00


Deposito cauzionale
10% del prezzo offerto


Deposito in conto spese
-


Tribunale
Palermo

Tipo di procedura
Esecuzione immobiliare post legge 80

Ruolo
293/2022

Delegato alla vendita
Rizzo Giovanni
(Procede alle operazioni di vendita)
(Gestisce la visita del bene)

Recapiti
Tel. 0917910068

Scheda COD. 4305194 - Pubblicata dal 22/10/2025

La presente scheda di vendita riporta integralmente informazioni e documenti pervenuti ufficialmente dal Ministero e dal professionista incaricato.

Pubblicazione notarizzata su Blockchain


Pubblicazione autorizzata dall’Autorità competente, è vietata ogni ripubblicazione o riproduzione anche parziale


Ti interessa questa vendita?

Documentazione

Visualizza su mappa

Mappa geografica del bene

Storico delle vendite

Data venditaPrezzo base
18/10/2024€ 89.132,80
14/02/2025€ 66.849,60
23/05/2025€ 50.137,20
26/09/2025€ 37.602,90
06/02/2026€ 22.561,74

Punti di interesse

Fonte dati

Nel raggio di {{range}}Km

Loading...
  • {{ getIcon(poi.type) }} {{ poi.localized }}: {{poi.count}}
  • {{ getIcon(poi.type) }} {{ poi.localized }}: {{poi.count}}
Dati non disponibili