Astegiudiziarie.it è parte di Rete Aste Network

Accedi o registrati

Non sei ancora registrato?

Oppure

Accedi

giudiziariagiudiziariaTribunale di BARIESECUZIONI CIVILI IMMOBILIARIESECUZIONE IMMOBILIARE POST LEGGE 80372021Delegato alla venditaMariaLisoLSIMRA63E66A893Oavvmarialiso@libero.it0803212828truefalseCustodeMariaLisoLSIMRA63E66A893Oavvmarialiso@libero.itfalsetrueGiudiceMarinaCavallofalsefalse2294702LOTTO UNICOIMMOBILIIMMOBILE RESIDENZIALEVia Erculea Proles ang. Via Ameruosi70027Palo del ColleBariPugliaItaliaIl lotto è costituito da una palazzina formata da tre beni : Appartamento a piano 1-2, e n.2 rimesse a piano terra,2968810IMMOBILE RESIDENZIALEABITAZIONE DI TIPO ECONOMICOVia Erculea Proles ang. Via Ameruosi70027Palo del ColleBariPugliaItaliaIl lotto è costituito da una palazzina formata da tre beni : appartamento ubicato a piano 1-2, e n. 2 rimesse a piano terra.211565-2-3993.512025-11-20T15:30:00SENZA INCANTOASINCRONA TELEMATICAN.A.41.152,3632.921,812.500,002025-11-13T12:00:00sito pubblicitahttps://www.astegiudiziarie.ithttps://www.astegiudiziarie.itgestore delle venditehttps://www.gobidreal.ithttps://www.gobidreal.it2025-07-03

Abitazione di tipo economico

Via Erculea Proles ang. Via Ameruosi, Palo del Colle (BA)

€ 41.152,36

Offerta minima € 32.921,81


Codice A4294081

Lotto Lotto unico

Data udienza 20/11/2025 ore 15:30

Termine presentazione offerte 13/11/2025 ore 12:00

Abitazione di tipo economico

Via Erculea Proles ang. Via Ameruosi, Palo del Colle (BA)

€ 41.152,36

Offerta minima € 32.921,81


Codice A4294081

Lotto Lotto unico

Data udienza 20/11/2025 ore 15:30

Termine presentazione offerte 13/11/2025 ore 12:00

Ti interessa questa vendita?

Documentazione

Visualizza su mappa

Mappa geografica del bene

Punti di interesse

Fonte dati

Nel raggio di {{range}}Km

Loading...
  • {{ getIcon(poi.type) }} {{ poi.localized }}: {{poi.count}}
  • {{ getIcon(poi.type) }} {{ poi.localized }}: {{poi.count}}
Dati non disponibili

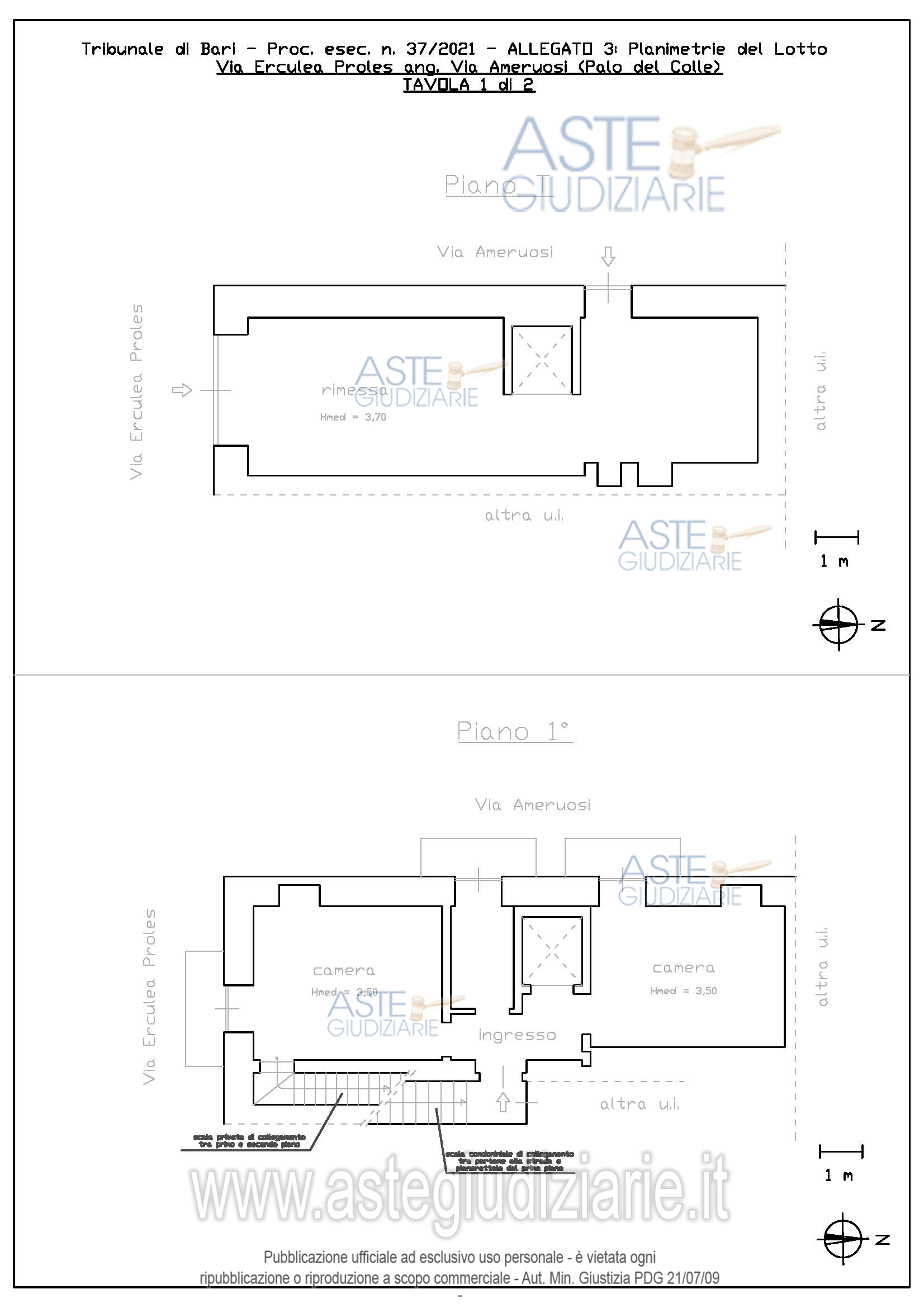
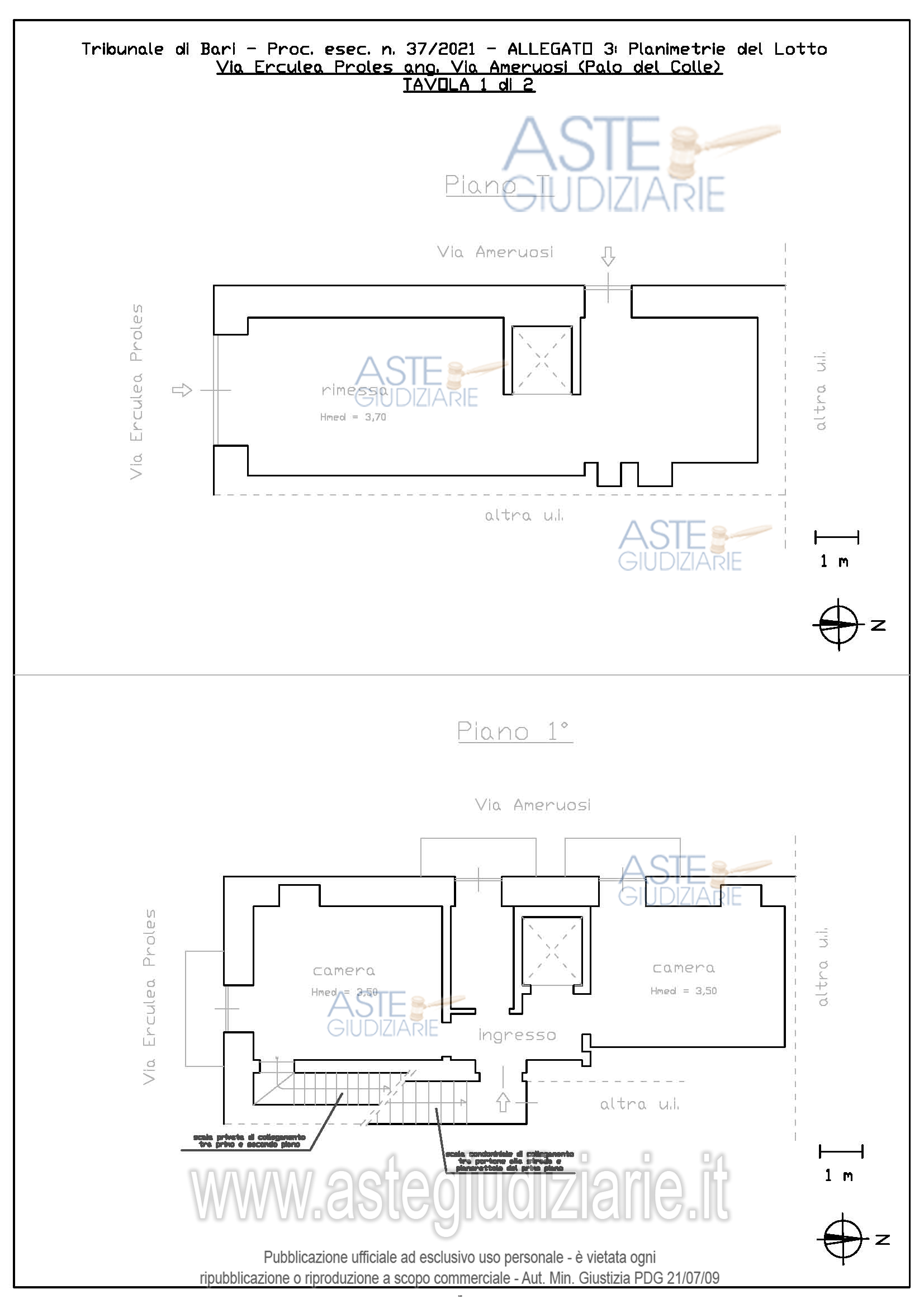
Il lotto è costituito da una palazzina formata da tre beni : Appartamento a piano 1-2, e n.2 rimesse a piano terra,

Indirizzo
Via Erculea Proles ang. Via Ameruosi, Palo del Colle (BA)


Codice asta
4294081


Lotto
Lotto unico


Numero beni
1


Genere
Immobili


Categoria
Immobile residenziale


Valore di stima
-


Abitazione di tipo economico

Il lotto è costituito da una palazzina formata da tre beni : appartamento ubicato a piano 1-2, e n. 2 rimesse a piano terra.

Indirizzo
Via Erculea Proles ang. Via Ameruosi, Palo del Colle (BA)


Piano
1


Disponibilità
-


Vani
3,50


Bagni
-


Metri quadri
99,00


Certificazione energetica
-


Dati catastali

Foglio:21, Particella:156, Subalterno:5-2-3


Data udienza
20/11/2025 ore 15:30


Tipo di vendita
Senza incanto


Modalità di vendita
Asincrona telematica


Luogo
N.A. -


Luogo presentazione offerte
-


Termine presentazione offerte
13/11/2025 ore 12:00


Prezzo base
€ 41.152,36


Offerta minima
€ 32.921,81


Rialzo minimo in caso di gara
€ 2.500,00


Deposito cauzionale
10% del prezzo offerto


Deposito in conto spese
-


Tribunale
Bari

Tipo di procedura
Esecuzione immobiliare post legge 80

Ruolo
37/2021

Giudice
Cavallo Marina

Recapiti
-

Email
-

Delegato alla vendita
Liso Maria
(Procede alle operazioni di vendita)

Recapiti
Tel. 0803212828

Email
avvmarialiso@libero.it

Custode giudiziario
Liso Maria
(Gestisce la visita del bene)

Recapiti
-

Scheda COD. 4294081 - Pubblicata dal 03/07/2025

La presente scheda di vendita riporta integralmente informazioni e documenti pervenuti ufficialmente dal Ministero e dal professionista incaricato.

Pubblicazione notarizzata su Blockchain


Pubblicazione autorizzata dall’Autorità competente, è vietata ogni ripubblicazione o riproduzione anche parziale


Ti interessa questa vendita?

Documentazione

Visualizza su mappa

Mappa geografica del bene

Storico delle vendite

Data venditaPrezzo base
20/05/2024€ 73.159,50
20/02/2025€ 54.869,62
20/11/2025€ 41.152,36

Punti di interesse

Fonte dati

Nel raggio di {{range}}Km

Loading...
  • {{ getIcon(poi.type) }} {{ poi.localized }}: {{poi.count}}
  • {{ getIcon(poi.type) }} {{ poi.localized }}: {{poi.count}}
Dati non disponibili