Astegiudiziarie.it è parte di Rete Aste Network

Accedi o registrati

Non sei ancora registrato?

Oppure

Accedi

Abitazione di tipo civile

N.A., Palermo (PA)

€ 116.000,00

Offerta minima € 87.000,00


Codice A4339754

Lotto 1

Data udienza 22/04/2026 ore 14:30

Termine presentazione offerte 21/04/2026 ore 13:00

Abitazione di tipo civile

N.A., Palermo (PA)

€ 116.000,00

Offerta minima € 87.000,00


Codice A4339754

Lotto 1

Data udienza 22/04/2026 ore 14:30

Termine presentazione offerte 21/04/2026 ore 13:00

Ti interessa questa vendita?

Documentazione

Visualizza su mappa

Mappa geografica del bene

Punti di interesse

Fonte dati

Nel raggio di {{range}}Km

Loading...
  • {{ getIcon(poi.type) }} {{ poi.localized }}: {{poi.count}}
  • {{ getIcon(poi.type) }} {{ poi.localized }}: {{poi.count}}
Dati non disponibili

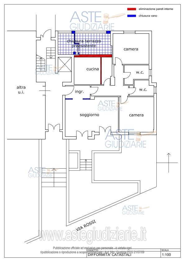
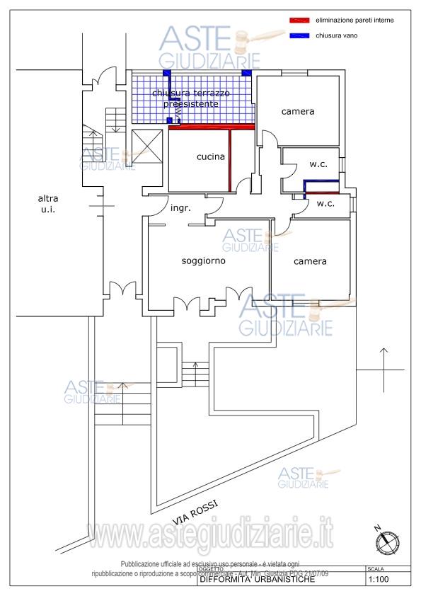
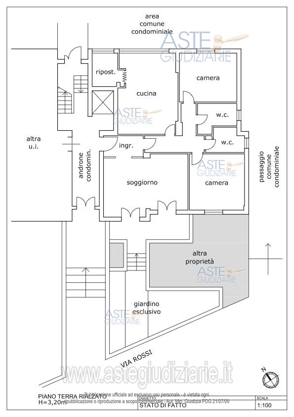
LOTTO 1: appartamento di civile abitazione sito in Palermo via Rossi n. 22 piano T, identificato al NCEU foglio di mappa 7 p.lla 268 sub 2 graffata con p.lla 853 cat. A/2 consistenza 6 vani, rendita catastale 433,82, Tot. Superfice commerciale 128,03 mq di cui giardino pertinenziale 25,62 mq

Indirizzo
N.A., Palermo (PA)


Codice asta
4339754


Lotto
1


Numero beni
1


Genere
Immobili


Categoria
Immobile residenziale


Valore di stima
-


Abitazione di tipo civile

LOTTO 1: appartamento di civile abitazione sito in Palermo via Rossi n. 22 piano T, identificato al NCEU foglio di mappa 7 p.lla 268 sub 2 graffata con p.lla 853 cat. A/2 consistenza 6 vani, rendita catastale 433,82, Tot. Superfice commerciale 128,03 mq di cui giardino pertinenziale 25,62 mq.

Indirizzo
Via Rossi, 22, 90147 Palermo PA, Italia, Palermo (PA)


Piano
-


Disponibilità
-


Vani
-


Bagni
-


Metri quadri
25,62


Certificazione energetica
-


Data udienza
22/04/2026 ore 14:30


Tipo di vendita
Senza incanto


Modalità di vendita
Sincrona mista


Luogo
Via Noto, 34, 90141 Palermo PA, Italia - Palermo 90100


Luogo presentazione offerte
-


Termine presentazione offerte
21/04/2026 ore 13:00


Prezzo base
€ 116.000,00


Offerta minima
€ 87.000,00


Rialzo minimo in caso di gara
€ 2.000,00


Deposito cauzionale
10% del prezzo offerto


Deposito in conto spese
-


Tribunale
Palermo

Tipo di procedura
Esecuzione immobiliare post legge 80

Ruolo
116/2023

Delegato alla vendita
Rizzo Marzia
(Procede alle operazioni di vendita)
(Gestisce la visita del bene)

Recapiti
Tel. 3807980564

Scheda COD. 4339754 - Pubblicata dal 04/03/2026

La presente scheda di vendita riporta integralmente informazioni e documenti pervenuti ufficialmente dal Ministero e dal professionista incaricato.

Pubblicazione notarizzata su Blockchain


Pubblicazione autorizzata dall’Autorità competente, è vietata ogni ripubblicazione o riproduzione anche parziale


Ti interessa questa vendita?

Documentazione

Visualizza su mappa

Mappa geografica del bene

Storico delle vendite

Data venditaPrezzo base
09/01/2026€ 154.500,00
22/04/2026€ 116.000,00

Punti di interesse

Fonte dati

Nel raggio di {{range}}Km

Loading...
  • {{ getIcon(poi.type) }} {{ poi.localized }}: {{poi.count}}
  • {{ getIcon(poi.type) }} {{ poi.localized }}: {{poi.count}}
Dati non disponibili