Astegiudiziarie.it è parte di Rete Aste Network

Accedi o registrati

Non sei ancora registrato?

Oppure

Accedi

Abitazione di tipo civile

Via Leonardo da Vinci, 5, 08028 Orosei NU, Italia, Orosei (NU)

€ 410.900,00

Offerta minima € 308.500,00


Codice A4347161

Lotto Lotto unico

Data udienza 05/05/2026 ore 12:00

Termine presentazione offerte 04/05/2026 ore 12:00

Abitazione di tipo civile

Via Leonardo da Vinci, 5, 08028 Orosei NU, Italia, Orosei (NU)

€ 410.900,00

Offerta minima € 308.500,00


Codice A4347161

Lotto Lotto unico

Data udienza 05/05/2026 ore 12:00

Termine presentazione offerte 04/05/2026 ore 12:00

Ti interessa questa vendita?

Documentazione

Visualizza su mappa

Mappa geografica del bene

Punti di interesse

Fonte dati

Nel raggio di {{range}}Km

Loading...
  • {{ getIcon(poi.type) }} {{ poi.localized }}: {{poi.count}}
  • {{ getIcon(poi.type) }} {{ poi.localized }}: {{poi.count}}
Dati non disponibili

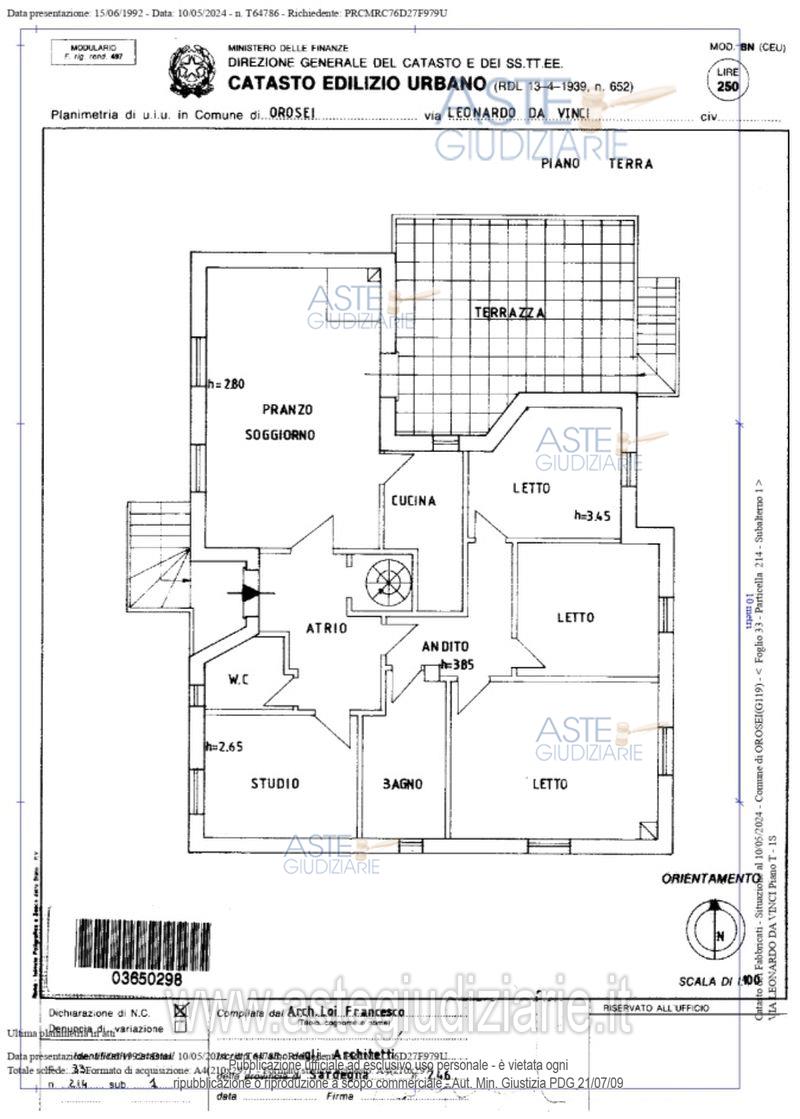
Villino sito nel Comune di Orosei, Via L. da Vinci 5, distinto al N.C.E.U. Fg. 33,Part. 214,Sub. 1,Cat. A7,Graffato SI,composto da piano terra/piano seminterrato,comunicanti con scala interna a chiocciola e cortile di pertinenza.Piano terra composto da ingresso,sala pranzo/soggiorno,cucina,2 bagni,4 camere da letto,andito e terrazza;piano seminterrato con magazzino,locale sgombero,ripostiglio,locale deposito,cantina,cucina rustica, 1 bagno, andito e centrale termica. Immobile occupato da terzi senza titolo

Indirizzo
Via Leonardo da Vinci, 5, 08028 Orosei NU, Italia, Orosei (NU)


Codice asta
4347161


Lotto
Lotto unico


Numero beni
1


Genere
Immobili


Categoria
Immobile residenziale


Valore di stima
-


Abitazione di tipo civile

Piena proprietà villino sito nel Comune di Orosei (NU), Via Leonardo da Vinci n. 5, distinto al N.C.E.U. di detto Comune al Fg. 33, Part. 214, Sub. 1, Categoria A7, Graffato SI, composto da un piano terra e un piano seminterrato, comunicanti tra loro per mezzo di una scala interna a chiocciola, con annesso cortile di pertinenza. Il piano terra, adibito a residenza, si compone di ampio vano di ingresso, sala pranzo/soggiorno, cucina, due servizi igienici, quattro camere da letto, oltre a un andito ed un’ampia terrazza, mentre il piano seminterrato presenta un vano adibito a magazzino, un locale di sgombero, un ripostiglio, un locale di deposito, una cantina, una cucina rustica, un servizio igienico, oltre a un andito e centrale termica. Al fabbricato si accede per mezzo di una scala esterna posta sull'area cortilizia di pertinenza e direttamente prospiciente la pubblica via Leonardo da Vinci, oltre a due ingressi carrabili di cui uno posto sulla via Tiziano Vecellio. Immobile in buono stato di conservazione, occupato da terzi senza titolo

Indirizzo
Via Leonardo da Vinci, 5, 08028 Orosei NU, Italia, Orosei (NU)


Piano
TS


Disponibilità
OCCUPATO SENZA TITOLO


Vani
-


Bagni
-


Metri quadri
370,21


Certificazione energetica
-


Dati catastali

Foglio:33, Particella:214, Subalterno:1, Graffato:SI


Data udienza
05/05/2026 ore 12:00


Tipo di vendita
Senza incanto


Modalità di vendita
Asincrona telematica


Luogo
N.A. -


Luogo presentazione offerte
-


Termine presentazione offerte
04/05/2026 ore 12:00


Prezzo base
€ 410.900,00


Offerta minima
€ 308.500,00


Rialzo minimo in caso di gara
€ 5.000,00


Deposito cauzionale
10% del prezzo offerto


Deposito in conto spese
-


Tribunale
Nuoro

Tipo di procedura
Espropriazione immobiliare (cartabia)

Ruolo
50/2023

Giudice
Ecca Denise

Recapiti
-

Email
-

Delegato alla vendita
Dolfi Ubio
(Procede alle operazioni di vendita)

Recapiti
Tel. 3476380321

Email
avv.ubiodolfi@gmail.com

Custode giudiziario
Ivg tempio pausania 
(Gestisce la visita del bene)

Recapiti
Tel. 079630505

Scheda COD. 4347161 - Pubblicata dal 16/03/2026

La presente scheda di vendita riporta integralmente informazioni e documenti pervenuti ufficialmente dal Ministero e dal professionista incaricato.


Pubblicazione autorizzata dall’Autorità competente, è vietata ogni ripubblicazione o riproduzione anche parziale


Ti interessa questa vendita?

Documentazione

Visualizza su mappa

Mappa geografica del bene

Punti di interesse

Fonte dati

Nel raggio di {{range}}Km

Loading...
  • {{ getIcon(poi.type) }} {{ poi.localized }}: {{poi.count}}
  • {{ getIcon(poi.type) }} {{ poi.localized }}: {{poi.count}}
Dati non disponibili